Apprendre – se divertir
Apprendre – se divertir

Maison de quartier Michel Durand

37170 CHAMBRAY LES TOURS - Indre et Loire - Centre-Val de Loire

BÂTIMENT / LOGEMENT

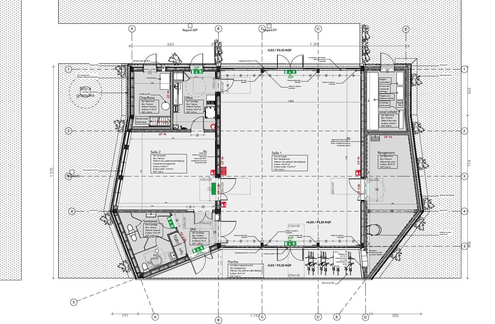
Véritable rotule urbaine de l'écoquartier de la Guignardière, la maison de quartier propose plusieurs pignons pliés à l'image des origamis japonais (et pour intégrer les panneaux solaires). Porte monumentale, elle invite les habitants à se l’approprier. Composé de pleins servants et de vides servis, elle est composée d'une salle principale et d'une petite salle secondaire avec tout le confort moderne attenant. Dédiée au Quartier la maison avec son gisement solaire en toiture éclaire les voiries du quartier

Catégorie Bâtiment / logement
Numéro de projet8089
Adresse du projet place Dian Fossey
37170 CHAMBRAY LES TOURS
Date de candidature10/03/2023

Bâtiment / logement

Détail projet

Typologie de bâtiment : Neuf
Type de bâtiment : Culture
Année de livraison : 2021
Surface totale du bâtiment en m² : 270
Coût total en € HT (hors foncier, hors VRD, hors honoraires) : 615000
Bois Français : oui
Matériaux issus du ré-emploi (préciser dans le descriptif technique) : non
Isolations biosourcées (préciser dans le descriptif technique) : oui
Matériaux géosourcés (préciser dans le descriptif technique) : non
Finitions intéreures biosourcées ou géosourcées (préciser dans le descriptif technique) : oui

Structure bois du bâtiment

Structure verticale :

ProduitEssenceProvenances (lieu de croissance du bois)Traitements de préservationMarque et certification produit
Panneau ossature boisDouglasNouvelle-AquitaineJe n'ai pas l'informationPEFC

Structure horizontale :

ProduitEssenceProvenances (lieu de croissance du bois)Traitements de préservationMarque et certification produit
Plancher mixte bois-acier DouglasNouvelle-AquitaineJe n'ai pas l'informationPEFC

Charpente :

ProduitEssenceProvenances (lieu de croissance du bois)Traitements de préservationMarque et certification produit
Charpente bois lamellé-colléPin maritimePays-de-la-LoireJe n'ai pas l'informationPEFC

Revêtement bois extérieur

Revêtement bois ou dérivés :

ProduitEssenceProvenances (lieu de croissance du bois)Marque et certification produitFinitionTraitements de préservation
Lame bois massifPin sylvestrePays-de-la-LoirePEFCpré-griséTraitement Classe 4 (autoclave)

Menuiserie intérieure et extérieure

Menuiserie intérieure :

ProduitEssenceProvenances (lieu de croissance du bois)FinitionMarque et certification produit
MobilierNouvelle-AquitaineJe n'ai pas l'informationPEFC

Isolation des murs

Isolation intérieure des murs :

Produit
Fibre de bois (Panneaux)
Epaisseur (mm) Isolation intérieure des murs : 50

Isolation entre-montant des murs :

Produit
Epaisseur (mm) Isolation entre-montant des murs : 200

Isolation extérieure des murs :

Produit
Fibre de bois (Panneaux)
Epaisseur (mm) Isolation extérieure des murs : 50

Isolation de la toiture

Epaisseur (mm) Isolation extérieure de la toiture : 240

Approche environnementale : Projet compact et bien orienté. Le débord au Sud et le métal déployé (Est et Ouest) permettent de se protéger du rayonnement solaire. Les panneaux solaires éclairent le quartier. bâtiment positif

Descriptif technique : MOB pour la partie Ouest, parpaings béton à l'Est (rgnt et local batterie). Poutre en lamellé collé, dalle béton isolant sous chape. isolant bio-sourcé dans la MOB. 80 panneaux solaires. double flux, plafond rayonnant basse température, chaudière bois à granules

Chauffage au Bois : oui
Appareil de chauffage au bois : Chaudière
Données déclaratives

Acteurs du projet

Maître d'ouvrage (1)

Maître d'ouvrage - État ou collectivité (locale et territ)

Commune de Chambray Lès Tours (37)

Etudes et ingénieries (1)

Maître d'œuvre - Architecte mandataire

Jean-Charles LIDDELL (37)

Entreprises des lots bois (1)

Charpentier

SARL MILLET (37)




* : L'entreprise n'est plus active
Retour à la liste