Habiter une maison
Habiter une maison

La S(ph)erre intérieure

35000 RENNES - Ille et Vilaine - Bretagne

BÂTIMENT / LOGEMENT

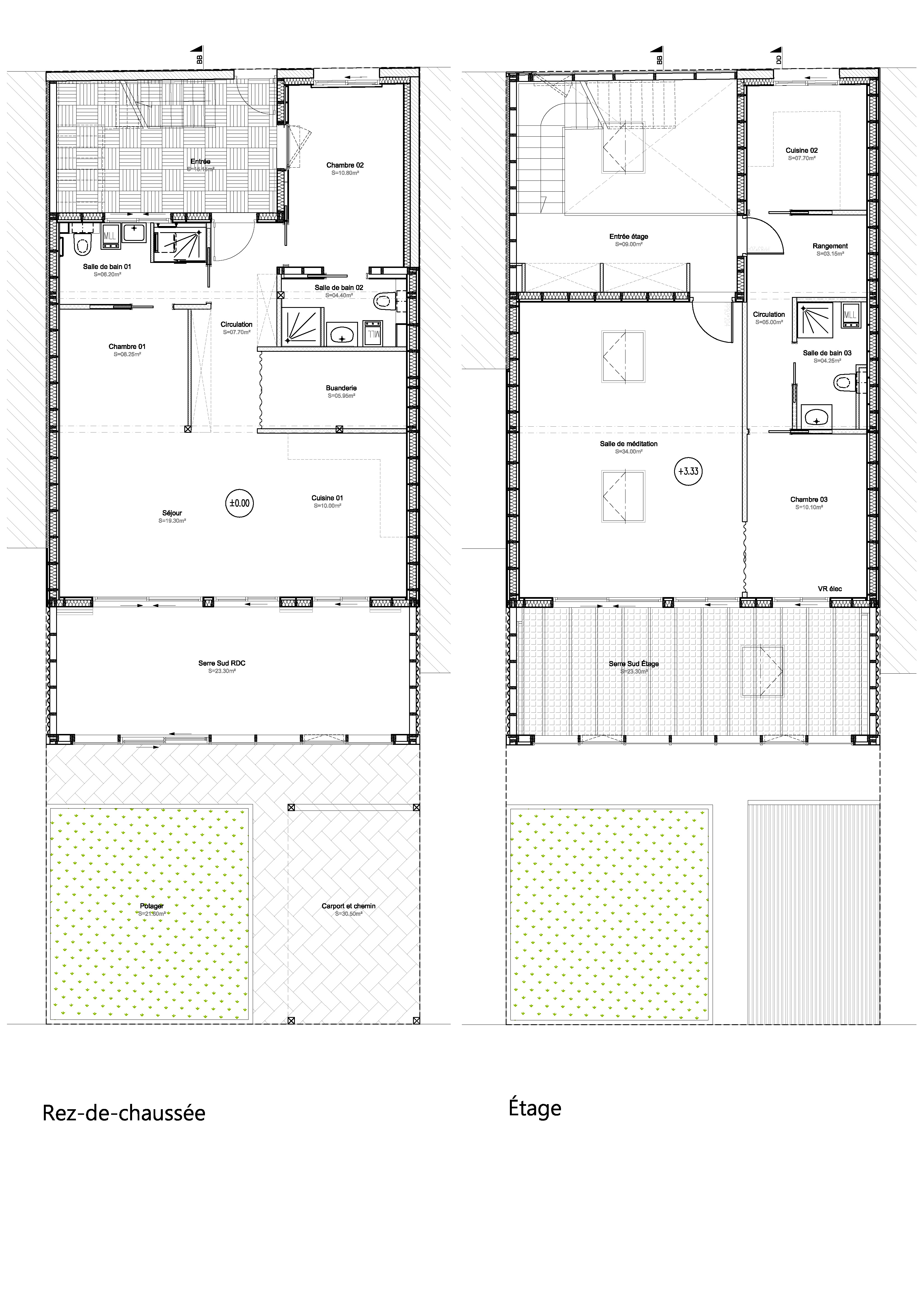
Un petit terrain de 180m², étriqué entre deux maisons et un objectif de 200m² de surface de plancher pour un budget très serré : c’est ainsi que débute le projet de cette femme seule. L’ambition du projet ? Créer un lieu de vie pour accueillir ses aînés dans l’esprit de sa culture cambodgienne, et cultiver son terrain.

Catégorie Bâtiment / logement
Numéro de projet8017
Date de candidature09/03/2023

Bâtiment / logement

Détail projet

Typologie de bâtiment : Neuf
Type de bâtiment : Logement individuel supérieur à 120 m²
Année de livraison : 2020
Surface totale du bâtiment en m² : 199
Coût total en € HT (hors foncier, hors VRD, hors honoraires) : 210800
Coût du lot bois n°1 - € HT : 63357
Lot bois n°2 concerné : Charpente bois,Bardage bois,Menuiserie intérieure bois,ossature bois,Autre lot bois
Bois Français : oui
Matériaux issus du ré-emploi (préciser dans le descriptif technique) : non
Isolations biosourcées (préciser dans le descriptif technique) : oui
Matériaux géosourcés (préciser dans le descriptif technique) : non
Finitions intéreures biosourcées ou géosourcées (préciser dans le descriptif technique) : non

Structure bois du bâtiment

Structure verticale :

ProduitEssenceProvenances (lieu de croissance du bois)Traitements de préservationMarque et certification produit
Poteau poutreDouglasTraitement Classe 3b (autoclave)Je n'ai pas l'information
Panneau ossature boisDouglasTraitement Classe 3b (autoclave)Je n'ai pas l'information

Structure horizontale :

ProduitEssenceProvenances (lieu de croissance du bois)Traitements de préservationMarque et certification produit
Solivage traditionnelDouglasTraitement Classe 3b (autoclave)

Charpente :

ProduitEssenceProvenances (lieu de croissance du bois)Traitements de préservationMarque et certification produit
Charpente traditionnelleÉpicéa communTraitement Classe 3b (autoclave)

Revêtement bois extérieur

Revêtement bois ou dérivés :

ProduitEssenceProvenances (lieu de croissance du bois)Marque et certification produitFinitionTraitements de préservation
Panneau contreplaquéPeuplierAucune finitionTraitement Classe 3b (autoclave)

Revêtement minéral :

Produit
Enduit ciment
Autres

Autre revêtement métallique :

Produit
Acier

Menuiserie intérieure et extérieure

Menuiserie intérieure :

ProduitEssenceProvenances (lieu de croissance du bois)FinitionMarque et certification produit
EscalierÉpicéa communAucune finition
ParquetBAMBOUJe n'ai pas l'information
Lambris, Panneau massif d'agencementPeuplierAucune finitionJe n'ai pas l'information

Isolation des murs

Isolation intérieure des murs :

Produit
Laine de bois souple
Epaisseur (mm) Isolation intérieure des murs : 145

Isolation entre-montant des murs :

Produit
Laine de bois souple
Epaisseur (mm) Isolation entre-montant des murs : 145

Isolation de la toiture

Epaisseur (mm) Isolation entre-montant de la toiture : 280

Approche environnementale : La surface de la parcelle étant assez contrainte, un principe de serres intérieures réparties sur deux niveaux s’est vite imposé. Situées au Nord et au Sud, les deux serres servant de tampons thermiques permettent de travailler le confort bioclimatique, tout en laissant traverser la lumière dans les pièces de vie. La serre au Nord accueillant l’entrée et l’escalier isole du froid extérieur. La serre au Sud pour le potager, emmagasine la chaleur pour la restituer dans la maison, tout en protégeant à la fois de la grosse chaleur d’été en l’évacuant par le velux en toiture.

Descriptif technique : C’est une maison dans une maison. On peut également dire une maison dans une serre. L’enveloppe extérieure est étanche à l’eau alors que la maison intérieure est étanche à l’air. Du fait de séparer ces deux étanchéités, nous économisons des coûts de paroi (bardage, pare-pluie, isolation). L’accent est donc mis sur les matériaux bruts. La structure est ainsi révélée. Les matériaux sont bruts au maximum, du doublage en contre-plaqué, aux ossatures bois des serres laissées apparentes, en passant par les planchers des serres en caillebotis métallique pour finir par les menuiseries en alu brut non laquée.

Performance du bâtiment (Cep en kWhep/m²/an) : 48.9
Chauffage au Bois : non
Données déclaratives

Acteurs du projet

Maître d'ouvrage (1)

Maître d'ouvrage - Particuliers

particulier (x)

Etudes et ingénieries (2)

Maître d'œuvre - Architecte mandataire

ATELIER M AU CARRE (35)

Bureau d'études thermique

ICOFLUIDES Maison (35)

Entreprises des lots bois (1)

Charpentier

CHARPENTE JPG (35)




* : L'entreprise n'est plus active
Retour à la liste