Réhabiliter un logement
Réhabiliter un logement

Réhabilitation rue Bergère

75009 PARIS 09 - Paris - Ile de France

BÂTIMENT / LOGEMENT

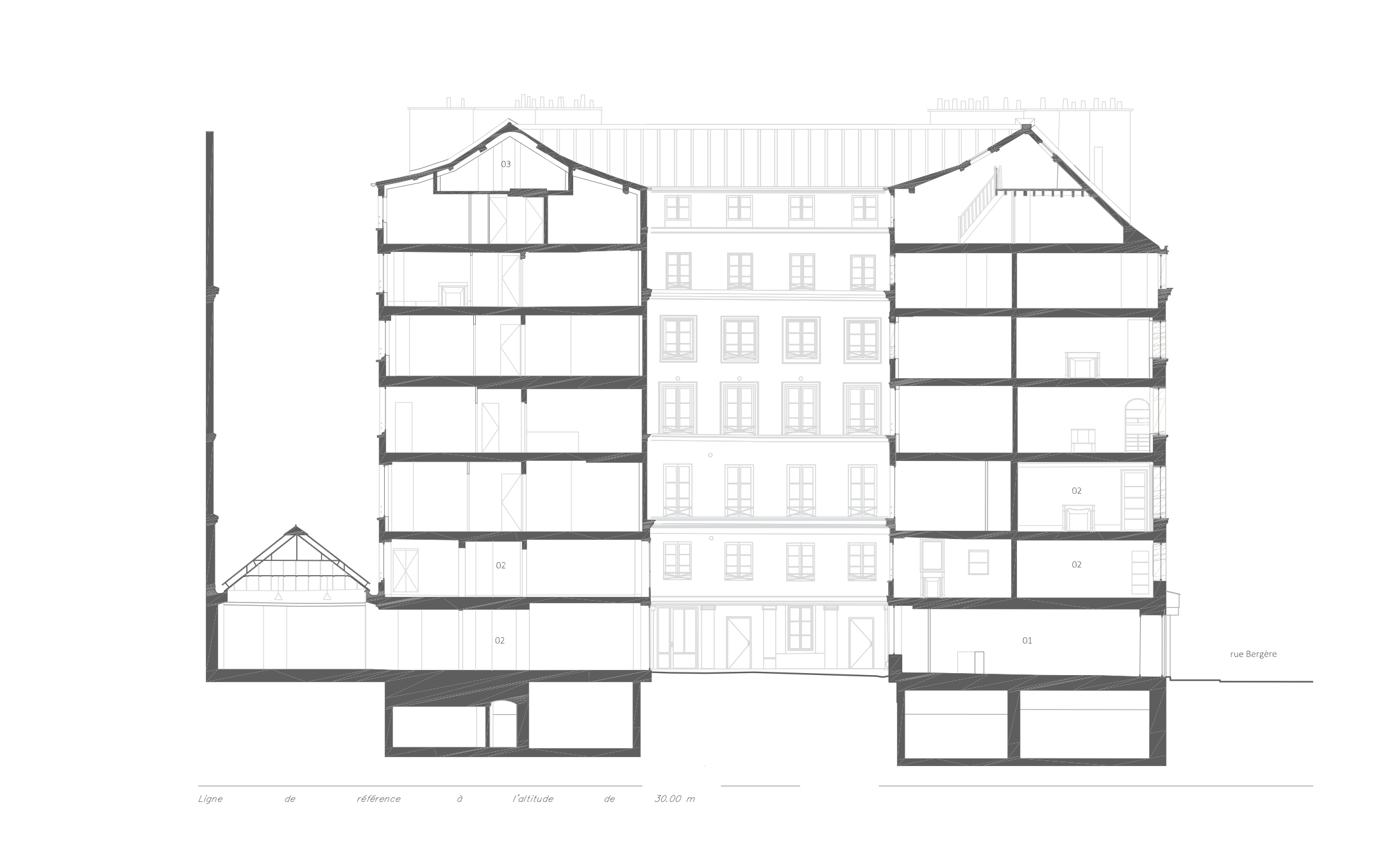
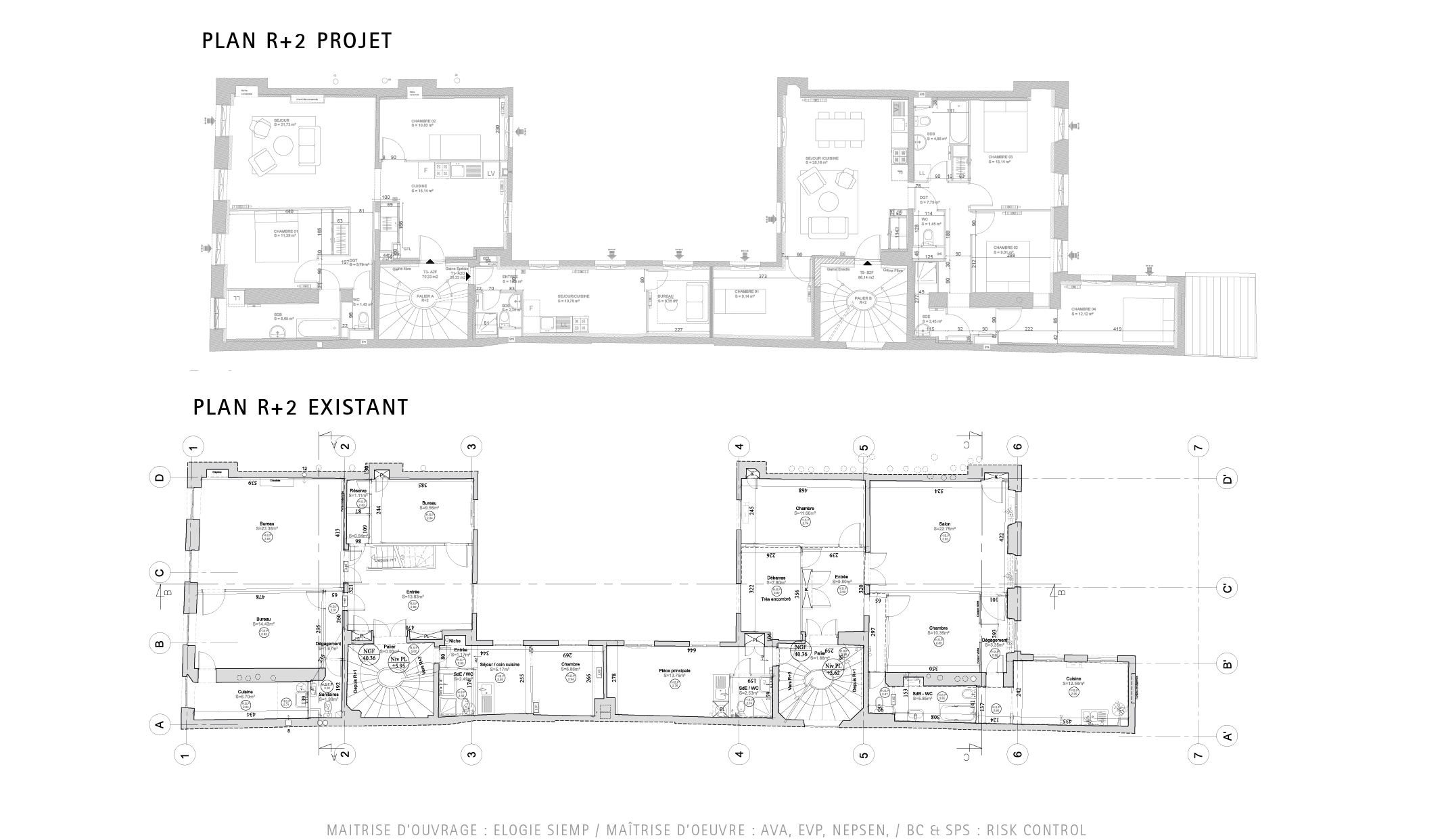
Cet immeuble d'habitation construit au début du XIXe siècle et situé en périmètre inscrit au titre des bâtiments de France projet a fait l'objet d'une réhabilitation lourde, avec remaniement typologique en site semi-occupé. Le système constructif en pans de bois et moellons, les reprises ponctuelles, et la présence de plomb et d'amiante ont conféré au bâti une complexité et une fragilité. Méthodologie sur mesure, anticipation, dialogue habitant, capacité d’adaptation, reprises en structure bois traditionnelle et réemploi des parquets existants rythment cette expérience.

Catégorie Bâtiment / logement
Numéro de projet7977
Date de candidature08/03/2023

Bâtiment / logement

Détail projet

Typologie de bâtiment : Rénovation / Réhabilitation
Type de bâtiment : Logement collectif
Année de livraison : 2023
Surface totale du bâtiment en m² : 1264
Coût total en € HT (hors foncier, hors VRD, hors honoraires) : 3002723.68
Lot bois n°1 concerné : Charpente bois,ossature bois
Volume lot bois n°1 - m³ : 47545
Coût du lot bois n°1 - € HT : 328500
Lot bois n°2 concerné : Menuiserie intérieure bois,Menuiserie extérieure bois,Autre lot bois
Volume lot bois n°2 - m³ : 37025
Coût du lot bois n°2 - € HT : 288000
Bois Français : oui
Matériaux issus du ré-emploi (préciser dans le descriptif technique) : oui
Isolations biosourcées (préciser dans le descriptif technique) : non
Matériaux géosourcés (préciser dans le descriptif technique) : non
Finitions intéreures biosourcées ou géosourcées (préciser dans le descriptif technique) : non

Structure bois du bâtiment

Structure verticale :

ProduitEssenceProvenances (lieu de croissance du bois)Traitements de préservationMarque et certification produit
ColombageTempéréFranceTraitement Classe 2 (trempage)Bois de France

Structure horizontale :

ProduitEssenceProvenances (lieu de croissance du bois)Traitements de préservationMarque et certification produit
Solivage traditionnelTempéréFranceTraitement Classe 2 (trempage)Bois de France

Charpente :

ProduitEssenceProvenances (lieu de croissance du bois)Traitements de préservationMarque et certification produit
Charpente traditionnelleTempéréFranceTraitement Classe 2 (trempage)Bois de France

Revêtement bois extérieur

Revêtement minéral :

Produit
Enduit chaux

Menuiserie intérieure et extérieure

Menuiserie intérieure :

ProduitEssenceProvenances (lieu de croissance du bois)FinitionMarque et certification produit
ParquetTempéréEuropeAutres Je n'ai pas l'information

Menuiserie extérieure :

ProduitEssenceProvenances (lieu de croissance du bois)Marque et certification produitFinition
Menuiserie boisTempéréEuropeFSCLasure

Isolation des murs

Isolation intérieure des murs :

Produit
Laine de verre
Epaisseur (mm) Isolation intérieure des murs : 12

Isolation de la toiture

Epaisseur (mm) Isolation intérieure de la toiture : 18

Approche environnementale : Le projet s'inscrit dans une démarche environnementale générale et répond aux exigences du Plan Climat de la Ville de Paris. Les engagements du projet s'expriment dans une démarche de réemploi des matériaux in situ autant que faire se peut : escaliers, charpente traditionnelle et parquets en partie conservés. Il s'agit de 3824 dm3 de chêne issu d'une charpente de 1830, 880 m2 de parquet, 10 m2 d’escalier et rampe, 93 portes.

Descriptif technique : Le bâtiment, immeuble de faubourg suit l’alignement de la rue. Le socle accueille deux commerces sur rue, un commerce en fond de parcelle et une cour intérieure. Les planchers d’étages existants sur solivage sont renforcés ou remplacés par des planchers bois isolés entre solives. Les murs contreventant sont en moellons et les autres murs sont en pans de bois. Certains pans de bois entier ont été refait à l'identique ou rénovés par substitution de pièces de bois. La charpente d’origine est rénovée et les pièces abimées remplacées. Une partie de la charpente est refaite à neuf dû aux trop faibles sections de bois. Les deux escaliers ellipsoïdales sont restaurés.

Performance du bâtiment (Cep en kWhep/m²/an) : 89.9
Chauffage au Bois : non
Données déclaratives

Acteurs du projet

Maître d'ouvrage (1)

Maître d'ouvrage - Bailleur social public

ELOGIE - SIEMP (75)

Etudes et ingénieries (6)

Maître d'œuvre - Architecte mandataire

Aldebert Verdier (33)

Bureau d'études acoustique

Cabinet Conseil Vincent Hedont (33)

Bureau d'études structure bois

EVP INGÉNIERIE (75)

Bureau d'études thermique

NEPSEN (94)

Economiste

VPEAS (33)

Autre intervenant de la construction - bureau de contrôle, AMO, BIM...

RISK CONTROL (93)

Entreprises des lots bois (3)

Charpentier

HERVOUET SAS (93)

Menuisier

GORSEDAS BAT (75)

Autre lot de la construction (en lien avec le bois)

GENERE (94)




* : L'entreprise n'est plus active
Retour à la liste