Habiter une maison
Habiter une maison

Maison U

53000 LAVAL - Mayenne - Pays de la Loire

BÂTIMENT / LOGEMENT

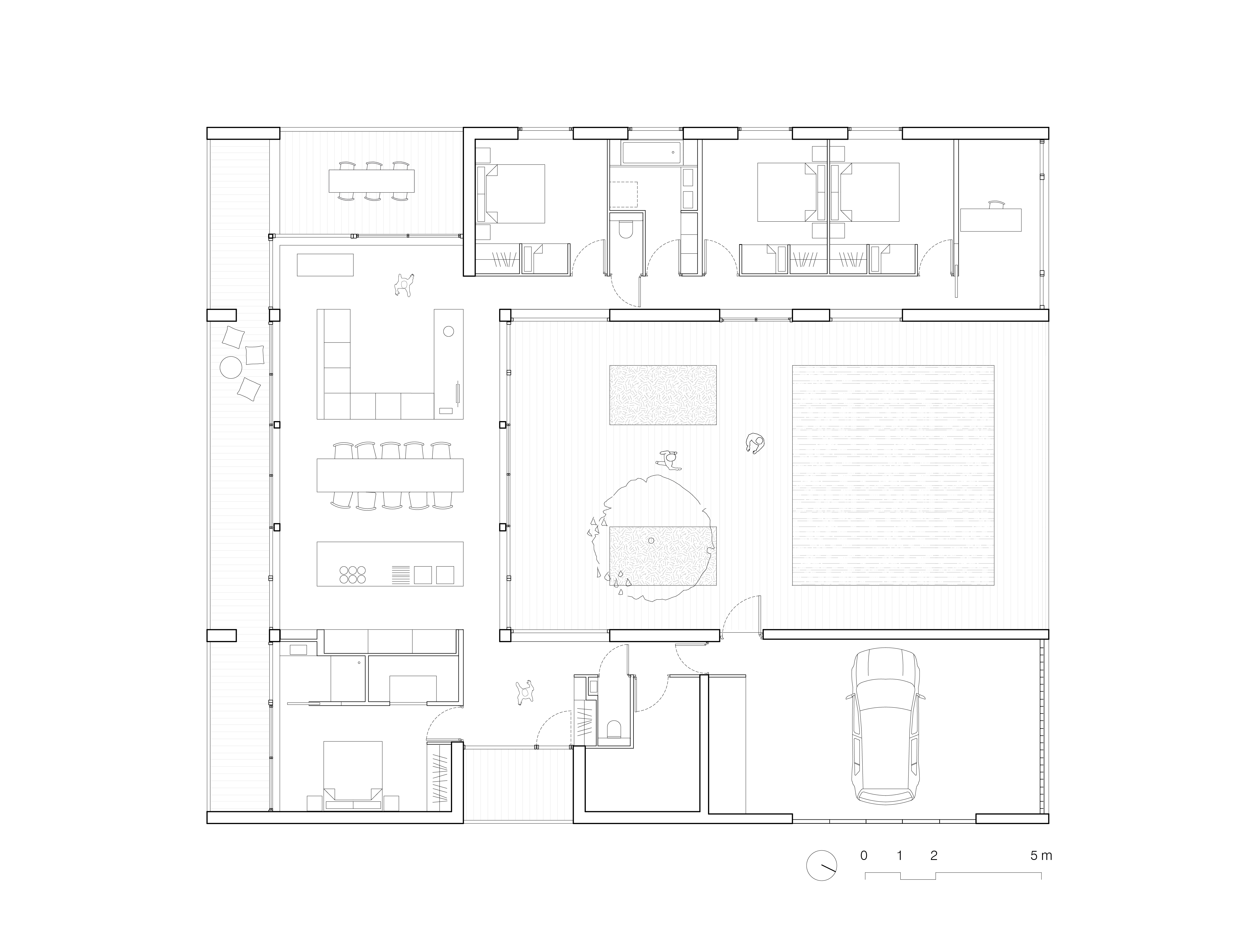
L’emprise de la maison est un rectangle à l’intérieur duquel un vide est extrudé pour abriter une vaste pièce extérieure ouverte sur le ciel. Dans la continuité, le séjour traversant s’ouvre largement tandis que les programmes plus intimes forment deux blocs plus introvertis sur les limites Est et Ouest. Deux failles y sont percées pour créer des porosités visuelles à l’Ouest. Les terrasses et le séjour développent un grand espace continu accessible depuis chaque pièce de la maison. Cette disposition dessine un lieu multiple et hybride où les limites entre intérieur et extérieur s’effacent.

Catégorie Bâtiment / logement
Numéro de projet7934
Date de candidature07/03/2023

Bâtiment / logement

Détail projet

Typologie de bâtiment : Neuf
Type de bâtiment : Logement individuel supérieur à 120 m²
Année de livraison : 2021
Surface totale du bâtiment en m² : 182
Coût total en € HT (hors foncier, hors VRD, hors honoraires) : 460000.00
Bois Français : oui
Matériaux issus du ré-emploi (préciser dans le descriptif technique) : non
Isolations biosourcées (préciser dans le descriptif technique) : oui
Matériaux géosourcés (préciser dans le descriptif technique) : non
Finitions intéreures biosourcées ou géosourcées (préciser dans le descriptif technique) : non

Structure bois du bâtiment

Structure verticale :

ProduitEssenceProvenances (lieu de croissance du bois)Traitements de préservationMarque et certification produit
Panneau de bois massif (CLT collé ou CLT cloué)Sapin de NordmannTraitement Classe 3a (trempage)

Structure horizontale :

ProduitEssenceProvenances (lieu de croissance du bois)Traitements de préservationMarque et certification produit
Solivage traditionnelRésineux
Panneau de bois massif (CLT collé ou CLT cloué)

Charpente :

ProduitEssenceProvenances (lieu de croissance du bois)Traitements de préservationMarque et certification produit
Charpente bois lamellé-collé, Panneau massifÉpicéa communTraitement Classe 2 (trempage)

Revêtement bois extérieur

Revêtement bois ou dérivés :

ProduitEssenceProvenances (lieu de croissance du bois)Marque et certification produitFinitionTraitements de préservation
Lame bois massifPin sylvestrepré-grisé

Menuiserie intérieure et extérieure

Isolation des murs

Isolation intérieure des murs :

Produit
Laine de bois souple
Epaisseur (mm) Isolation intérieure des murs : 50

Isolation entre-montant des murs :

Produit
Epaisseur (mm) Isolation entre-montant des murs : 150

Isolation de la toiture

Epaisseur (mm) Isolation entre-montant de la toiture : 220
Epaisseur (mm) Isolation extérieure de la toiture : 50

Approche environnementale : La maison est construite en bois, avec une isolation issue de matériaux biosourcés. Une isolation en ouate de cellulose est insufflée entre les éléments d’ossature verticaux et horizontaux. À l’intérieur du complexe de façade, un complément en laine de bois est ajouté tandis qu’à l’extérieur un isolant en fibre de bois sert de support au bardage en pin du nord. Posé verticalement à claire-voie, il recouvre l’ensemble des murs, des sous-faces des loggias et des bandeaux. Traité haute température et huilé en noir, il contraste avec le vert, couleur dominante du paysage arboré du site.

Descriptif technique : Les éléments porteurs en superstructure sont réalisés en ossature bois, ils se posent sur le socle béton qui les protège de l’eau. La mise en place d’un corbeau en pied de mur permet d’aligner ce soubassement avec le nu du bardage bois. Un socle assure le contact de la maison avec le sol, formant, en fonction de la situation, des marches ou des assises vers le jardin. La charpente mixte est composée de chevrons de bois massif et de poutres en lamellé collé afin de franchir les grandes portées. Les terrasses, en bois grisé, s’harmonisent avec le béton qui le constitue. Ce traitement associé à celui de l’acrotère en retrait affirment l’horizontalité de la maison. Les façades des blocs Est et Ouest, plus fermées, contrastent avec les façades entièrement vitrées du Sud et du Nord.

Chauffage au Bois : oui
Appareil de chauffage au bois : Poële/insert
Données déclaratives

Acteurs du projet

Maître d'ouvrage (1)

Maître d'ouvrage - Particuliers

particulier (x)

Etudes et ingénieries (1)

Maître d'œuvre - Architecte mandataire

ATELIER 56S (35)

Entreprises des lots bois (1)

Charpentier

ISO Construction (35)




* : L'entreprise n'est plus active
Retour à la liste