Habiter une maison
Habiter une maison

MAS

44120 VERTOU - Loire Atlantique - Pays de la Loire
Lauréat régional

BÂTIMENT / LOGEMENT

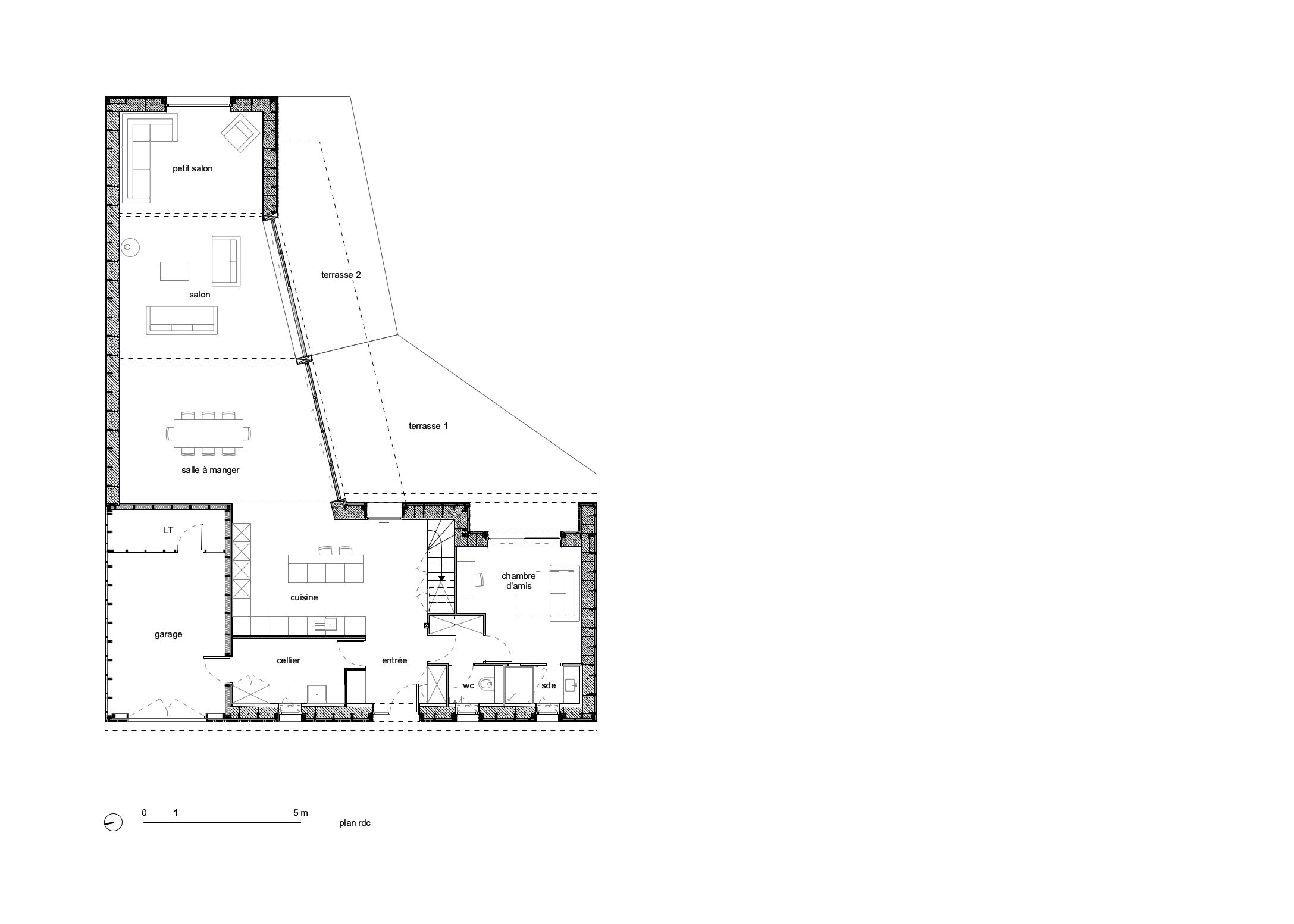
La construction de cette maison se veut vertueuse et confortable. Elle se compose d'espaces de vie aux usages multiples. Son orientation et sa configuration en L permettent de répartir les différents espaces en adéquation avec les apports solaires. Le choix des matériaux et équipements utilisés est primordial dans la recherche de l’équilibre entre confort d’usage et faible impact environnemental. C’est par l'association de techniques et de savoirs faire qualitatifs que le caractère massif et le confort de cette maison de famille s’inscrit de manière vertueuse et durable à même ses murs.

Catégorie Bâtiment / logement
Numéro de projet7927
Date de candidature07/03/2023

Bâtiment / logement

Détail projet

Typologie de bâtiment : Neuf
Type de bâtiment : Logement individuel supérieur à 120 m²
Année de livraison : 2022
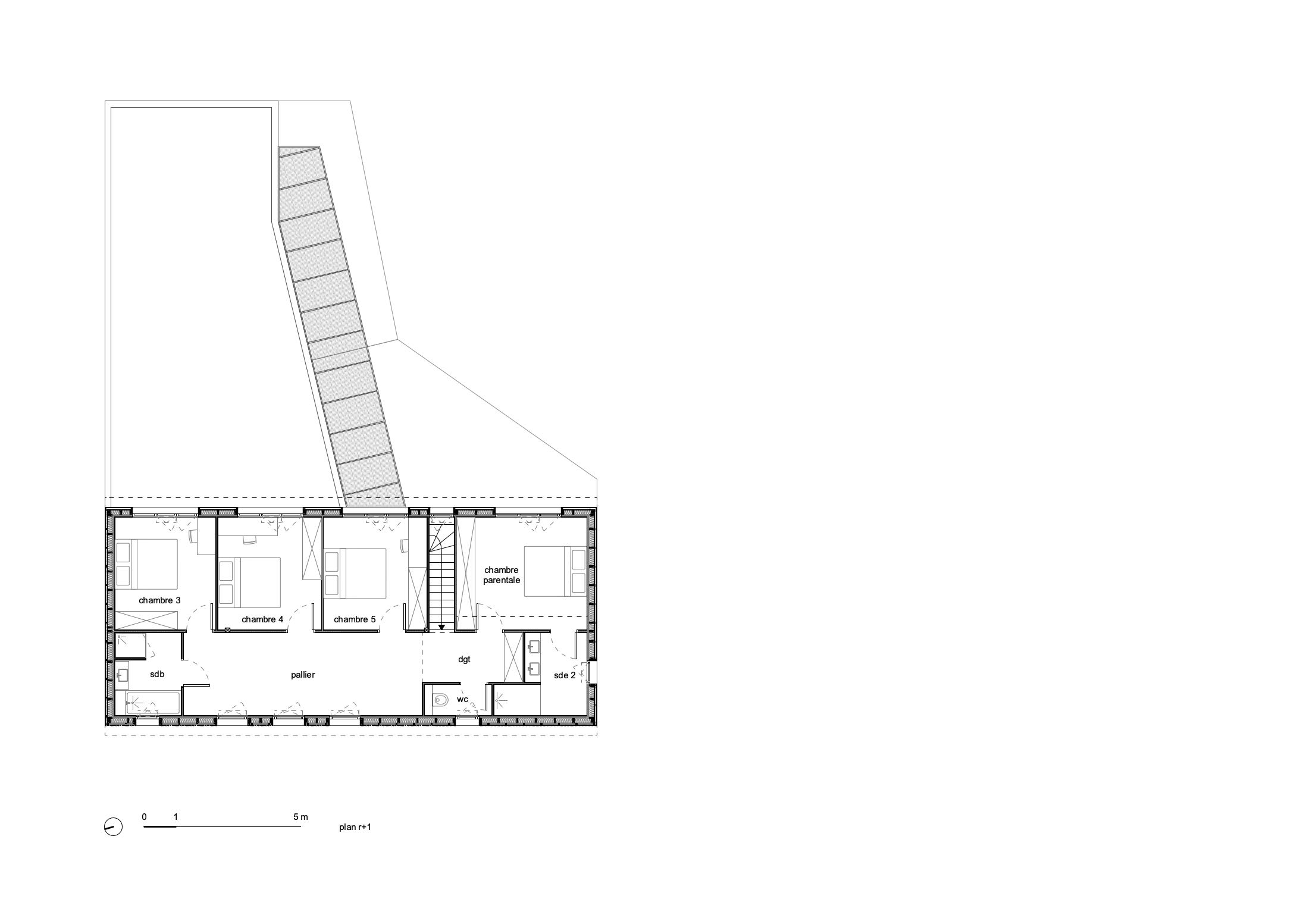
Surface totale du bâtiment en m² : 228
Coût total en € HT (hors foncier, hors VRD, hors honoraires) : 566000
Lot bois n°1 concerné : Charpente bois,Bardage bois,ossature bois
Coût du lot bois n°1 - € HT : 175000
Lot bois n°2 concerné : Menuiserie intérieure bois,Autre lot bois
Coût du lot bois n°2 - € HT : 37025
Bois Français : non
Matériaux issus du ré-emploi (préciser dans le descriptif technique) : non
Isolations biosourcées (préciser dans le descriptif technique) : oui
Matériaux géosourcés (préciser dans le descriptif technique) : oui
Finitions intéreures biosourcées ou géosourcées (préciser dans le descriptif technique) : oui

Structure bois du bâtiment

Structure verticale :

ProduitEssenceProvenances (lieu de croissance du bois)Traitements de préservationMarque et certification produit
Panneau ossature boisÉpicéa communTraitement Classe 2 (trempage)

Structure horizontale :

ProduitEssenceProvenances (lieu de croissance du bois)Traitements de préservationMarque et certification produit
Solivage traditionnel

Charpente :

ProduitEssenceProvenances (lieu de croissance du bois)Traitements de préservationMarque et certification produit
Charpente bois lamellé-collé, Charpente traditionnelle

Revêtement bois extérieur

Revêtement bois ou dérivés :

ProduitEssenceProvenances (lieu de croissance du bois)Marque et certification produitFinitionTraitements de préservation
Bardeau boisWestern red cedar (Thuya géant)Aucune finition

Autre revêtement métallique :

Produit
Zinc

Menuiserie intérieure et extérieure

Menuiserie intérieure :

ProduitEssenceProvenances (lieu de croissance du bois)FinitionMarque et certification produit
Escalier, Mobilier, Parquet

Menuiserie extérieure :

ProduitEssenceProvenances (lieu de croissance du bois)Marque et certification produitFinition
Volet bois

Isolation des murs

Isolation intérieure des murs :

Produit
Autres
Laine de bois souple
Epaisseur (mm) Isolation entre-montant des murs : 370

Isolation de la toiture

Epaisseur (mm) Isolation intérieure de la toiture : 100
Epaisseur (mm) Isolation entre-montant de la toiture : 220

Approche environnementale : C'est l'imaginaire de la maison familiale massive et durable qui a permis d'aborder et de défendre l'usage de matériaux bio-sourcés. Le confort apporté par les matériaux bio et géo sourcés a été mis en avant, mais aussi la valeur environnementale et économique à long terme. Par la présence de la maitrise d'ouvrage sur le chantier et une attention aux finitions, la perception des matériaux bio et géo sourcés a finalement basculée : le bois, la terre et la paille sont finalement considérés comme produisant des espaces pérennes confortables.

Descriptif technique : La technique de la construction MOB a été suivie, limitant l'usage des ballots de paille et des blocs de terre-allégée en isolation et apport de masse. Cette technique constructive a nécessité le développement de nombreux détails en échanges direct avec les artisans. Des tests préalables ont été réalisés pour assurer la production des blocs isolants et la finition de l'enduit intérieur. Les échanges avec les artisans et entreprises ont permis dès la conception de croiser les expertises et expériences de chacun pour assurer à la construction un cadre règlementaire et une mise en œuvre dans les règles de l'art. Approvisionnement local: terre prélevée sur site + chantier à moins de 100km paille produite à moins de 100km Chauffage: géothermie

Chauffage au Bois : non
Données déclaratives

Acteurs du projet

Maître d'ouvrage (1)

Maître d'ouvrage - Particuliers

particulier (x)

Etudes et ingénieries (3)

Maître d'œuvre - Architecte mandataire

Stéphanie Le Carluer Architecte (44)

Bureau d'études structure bois

Eurl Safran Charpente Briodeau (44)

Bureau d'études thermique

ADNE INGENIERIE (85)

Entreprises des lots bois (4)

Charpentier

Eurl Safran Charpente Briodeau (44)

Menuisier

Atelier Ma-ma (44)

Autre lot de la construction (en lien avec le bois)

SCOP L'Aronde (44)
Théobat (49)




* : L'entreprise n'est plus active
Retour à la liste