Réhabiliter un logement

Maison sur les hauteurs

38700 CORENC - Isère - Auvergne-Rhône-Alpes

BÂTIMENT / LOGEMENT

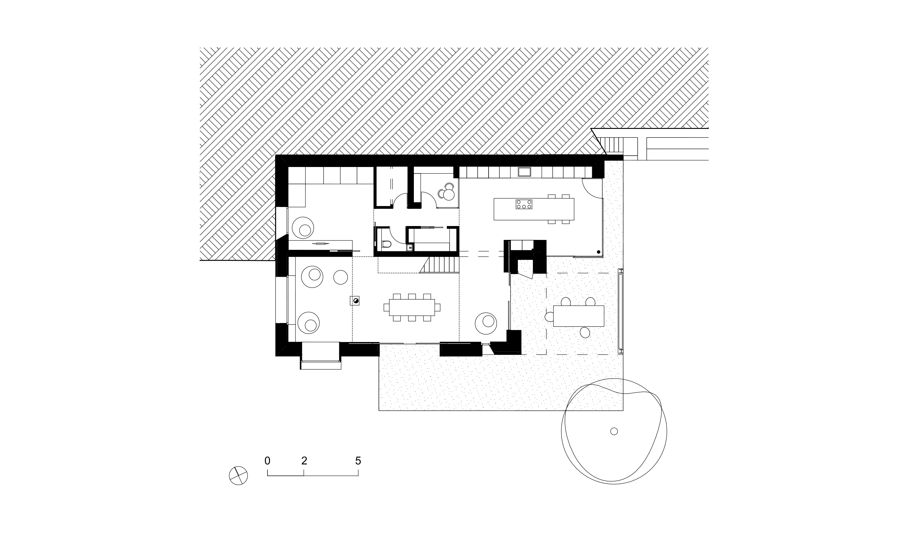
Dans le souci de réduire les surfaces bâties, notre intervention s’est attachée à mettre à profit les mètres carré existants. Le fonctionnement a été entièrement repensé. Les surfaces à vivre ont été augmentée dans le volume initial en aménageant le niveau rez-de jardin qui était peu ou mal utilisé. Ce niveau a été entièrement restructuré et relié au niveau d’entrée par la création d’une double hauteur totalement vitrée en façade sud permettant de capter la vue privilégiée qu’offre le site dès l’entrée. La maison est enveloppée de bois de manière à simplifier la lecture du volume.

Catégorie Bâtiment / logement
Numéro de projet7901
Date de candidature06/03/2023

Bâtiment / logement

Détail projet

Typologie de bâtiment : Extension / surélévation,Rénovation / Réhabilitation
Type de bâtiment : Logement individuel supérieur à 120 m²
Année de livraison : 2022
Surface totale du bâtiment en m² : 315
Dont extension / surélévation en m² : 16
Coût total en € HT (hors foncier, hors VRD, hors honoraires) : 347872
Lot bois n°1 concerné : Charpente bois,Bardage bois,Menuiserie intérieure bois
Volume lot bois n°1 - m³ : 51
Coût du lot bois n°1 - € HT : 91000
Bois Français : oui
Matériaux issus du ré-emploi (préciser dans le descriptif technique) : oui
Isolations biosourcées (préciser dans le descriptif technique) : oui
Matériaux géosourcés (préciser dans le descriptif technique) : oui
Finitions intéreures biosourcées ou géosourcées (préciser dans le descriptif technique) : oui

Structure bois du bâtiment

Structure verticale :

ProduitEssenceProvenances (lieu de croissance du bois)Traitements de préservationMarque et certification produit
Non précisé

Structure horizontale :

ProduitEssenceProvenances (lieu de croissance du bois)Traitements de préservationMarque et certification produit
Non précisé

Charpente :

ProduitEssenceProvenances (lieu de croissance du bois)Traitements de préservationMarque et certification produit
Charpente traditionnelle

Revêtement bois extérieur

Revêtement bois ou dérivés :

ProduitEssenceProvenances (lieu de croissance du bois)Marque et certification produitFinitionTraitements de préservation
Lame bois massifChâtaignierFrancepré-grisé

Autre revêtement métallique :

Produit
Alu

Menuiserie intérieure et extérieure

Menuiserie intérieure :

ProduitEssenceProvenances (lieu de croissance du bois)FinitionMarque et certification produit
EscalierChêneFranceHuile
Panneau massif d'agencementChêneFranceHuile

Isolation des murs

Isolation intérieure des murs :

Produit
Laine de verre
Epaisseur (mm) Isolation intérieure des murs : 50

Isolation extérieure des murs :

Produit
Laine de roche
Epaisseur (mm) Isolation extérieure des murs : 160

Isolation de la toiture

Epaisseur (mm) Isolation intérieure de la toiture : 200
Epaisseur (mm) Isolation entre-montant de la toiture : 100

Approche environnementale : L’ensemble du volume est unifiée par l’usage du matériau bois. Le redessin de l’enveloppe a permis d’effectuer une amélioration thermique complète par la mise en place d’un isolant par l’extérieur sur les murs et sur la toiture mais aussi sous l’ensemble du dallage qui a été recréé pour augmenter la hauteur du RDC. Les ouvertures sont munies de brise soleil orientables. La petite extension réalisée sur la partie Est de la maison présente un toit terrasse végétalisé qui contribue à fondre le bâtiment dans son environnement proche et lointain.

Descriptif technique : Afin de redonner de l’ampleur au niveau rez-de-chaussée, le niveau du dallage a été descendu. Une partie de la dalle de l’étage a été démolie fin de créer une double hauteur sur le séjour et le relier à l’entrée qui se fait au niveau R+1. Le volume de la maison a été simplifié en démolissant le balcon filant existant. Un bardage chataignier pré-grisé habille l’ensemble des façades. Les débords de toitures sont inexistants afin d’assurer un vieillissement homogène des façades. Les caniveaux sont intégrés dans la toiture. Les ouvertures présentent des encadrements en métal laqué afin de protéger les tranches de badage. Le matériau bois est utilisé également en aménagement intérieur (escalier et habillage de mur).

Chauffage au Bois : oui
Appareil de chauffage au bois : Poële/insert
Données déclaratives

Acteurs du projet

Maître d'ouvrage (1)

Maître d'ouvrage - Particuliers

particulier (x)

Etudes et ingénieries (1)

Maître d'œuvre - Architecte mandataire

CAAZ ARCHITECTURE (38)




* : L'entreprise n'est plus active
Retour à la liste