Réhabiliter un logement
Réhabiliter un logement

La Maison Champignon

35000 RENNES - Ille et Vilaine - Bretagne

BÂTIMENT / LOGEMENT

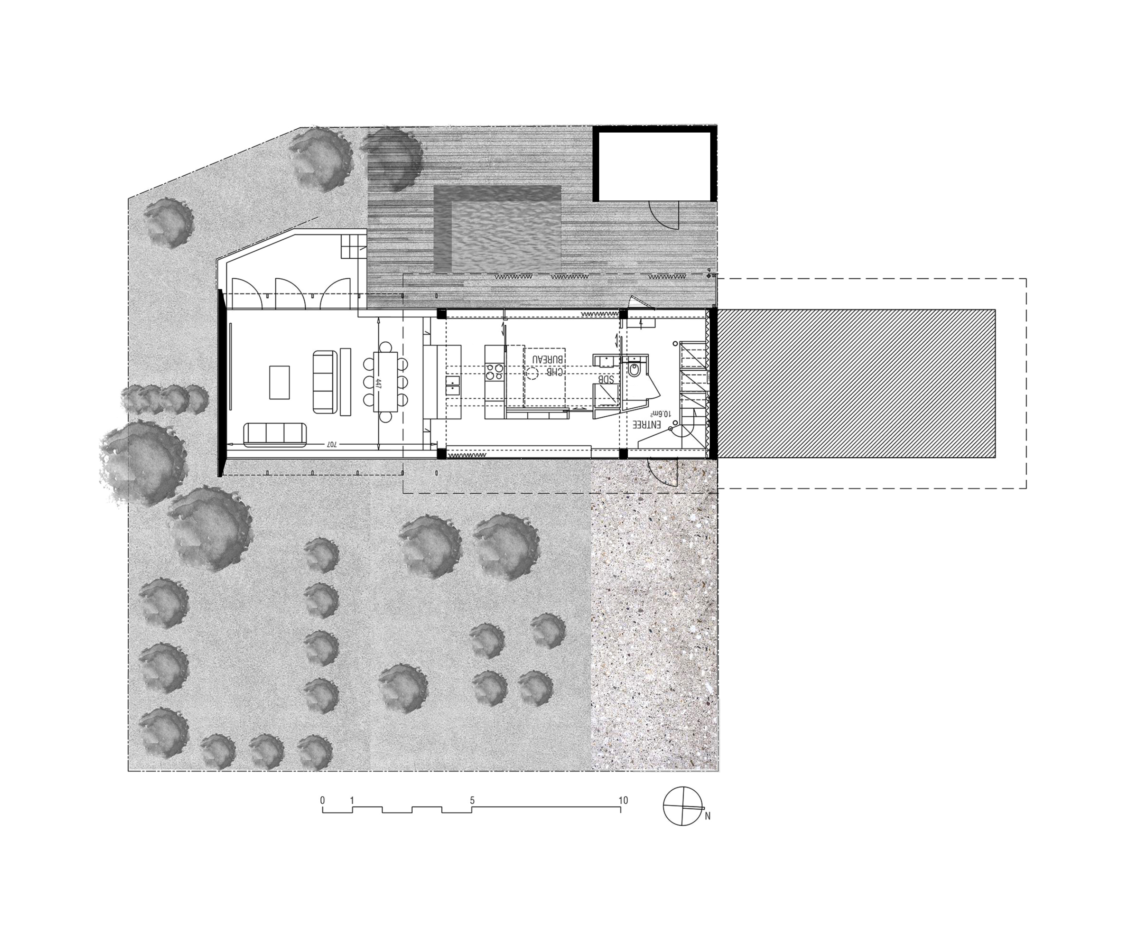
La cité-jardin de Cleunay constitue à Rennes un ensemble architectural et urbain remarquable. Répertoriées par la Ville de Rennes à titre de patrimoine d’intérêt local, ces 38 maisons jumelées achevées en 1958, portent le surnom de « maisons champignons ». Sur le principe de la maison soulevée, le volume haut des pièces de vie est posé sur un socle plus fin. L’une des gageures de ce projet a été de conserver et d’utiliser cette transparence tout en respectant l’architecture initiale. Il était primordial de ne pas altérer la lecture de la maison et de conserver sa forme de champignon.

Catégorie Bâtiment / logement
Numéro de projet7894
Date de candidature06/03/2023

Bâtiment / logement

Détail projet

Typologie de bâtiment : Extension / surélévation,Rénovation / Réhabilitation
Type de bâtiment : Logement individuel supérieur à 120 m²
Année de livraison : Octobre 2021
Surface totale du bâtiment en m² : 126
Dont extension / surélévation en m² : 34
Coût total en € HT (hors foncier, hors VRD, hors honoraires) : 270000
Lot bois n°1 concerné : Charpente bois,ossature bois
Coût du lot bois n°1 - € HT : 13000
Bois Français : oui
Matériaux issus du ré-emploi (préciser dans le descriptif technique) : non
Isolations biosourcées (préciser dans le descriptif technique) : oui
Matériaux géosourcés (préciser dans le descriptif technique) : non
Finitions intéreures biosourcées ou géosourcées (préciser dans le descriptif technique) : non

Structure bois du bâtiment

Structure verticale :

ProduitEssenceProvenances (lieu de croissance du bois)Traitements de préservationMarque et certification produit
Panneau ossature boisTempéréBretagneTraitement Classe 2 (trempage)Je n'ai pas l'information

Structure horizontale :

ProduitEssenceProvenances (lieu de croissance du bois)Traitements de préservationMarque et certification produit
Solivage traditionnelTempéréBretagneTraitement Classe 2 (trempage)Je n'ai pas l'information

Charpente :

ProduitEssenceProvenances (lieu de croissance du bois)Traitements de préservationMarque et certification produit
Charpente traditionnelleTempéréBretagneTraitement Classe 2 (trempage)Je n'ai pas l'information

Revêtement bois extérieur

Menuiserie intérieure et extérieure

Isolation des murs

Isolation intérieure des murs :

Produit
Fibre de bois (Panneaux)
Epaisseur (mm) Isolation intérieure des murs : 60

Isolation entre-montant des murs :

Produit
Fibre de bois (Panneaux)
Epaisseur (mm) Isolation entre-montant des murs : 140

Isolation de la toiture

Epaisseur (mm) Isolation intérieure de la toiture : 300

Approche environnementale : Au vu de la faible hauteur du rez-de-chaussée et afin de réaliser une extension, dans l’exact prolongement de l’existant, l’extension vient se glisser sous le volume haut du champignon pour une meilleure intégration environnementale. Le choix de la structure bois a permis également de réduire les nuisances sonores et les émissions de poussières liées au chantier. Les larges baies vitrées permettent des apports solaires optimum, régulés par la mise en place de brise- soleil intégrés et réglables.

Descriptif technique : Les murs sont faits de montants en 45x145 en épicéa traité classe 2, avec contreventement en panneaux d'OSB. La charpente en douglas est traditionnelle mais non visible. L'isolant est un mixte de laine de bois et laine de roche. Le rez-de-chaussée est intégralement vitré sur ses longs pans et accueille les pièces de vie. Une boîte centrale, opaque, permet d’intégrer les pièces d’eau, un coin bureau ouvert sur le jardin arrière, les équipements de cuisine, les rangements de l’entrée. Le principe de la boîte centrale permet de préserver la continuité des vitrages et offre la possibilité d’une circulation périphérique rendant l’espace fluide malgré la faible largeur disponible.

Chauffage au Bois : non
Données déclaratives

Acteurs du projet

Maître d'ouvrage (1)

Maître d'ouvrage - Particuliers

particulier (x)

Etudes et ingénieries (1)

Maître d'œuvre - Architecte mandataire

ATELIER DUPRIEZ (35)

Entreprises des lots bois (1)

Charpentier

CHARPENTE JPG (35)




* : L'entreprise n'est plus active
Retour à la liste