Aménager

Office de tourisme et gîte en bois brûlé

73140 ORELLE - Savoie - Auvergne-Rhône-Alpes

AMÉNAGEMENT BOIS

Aménagement intérieur

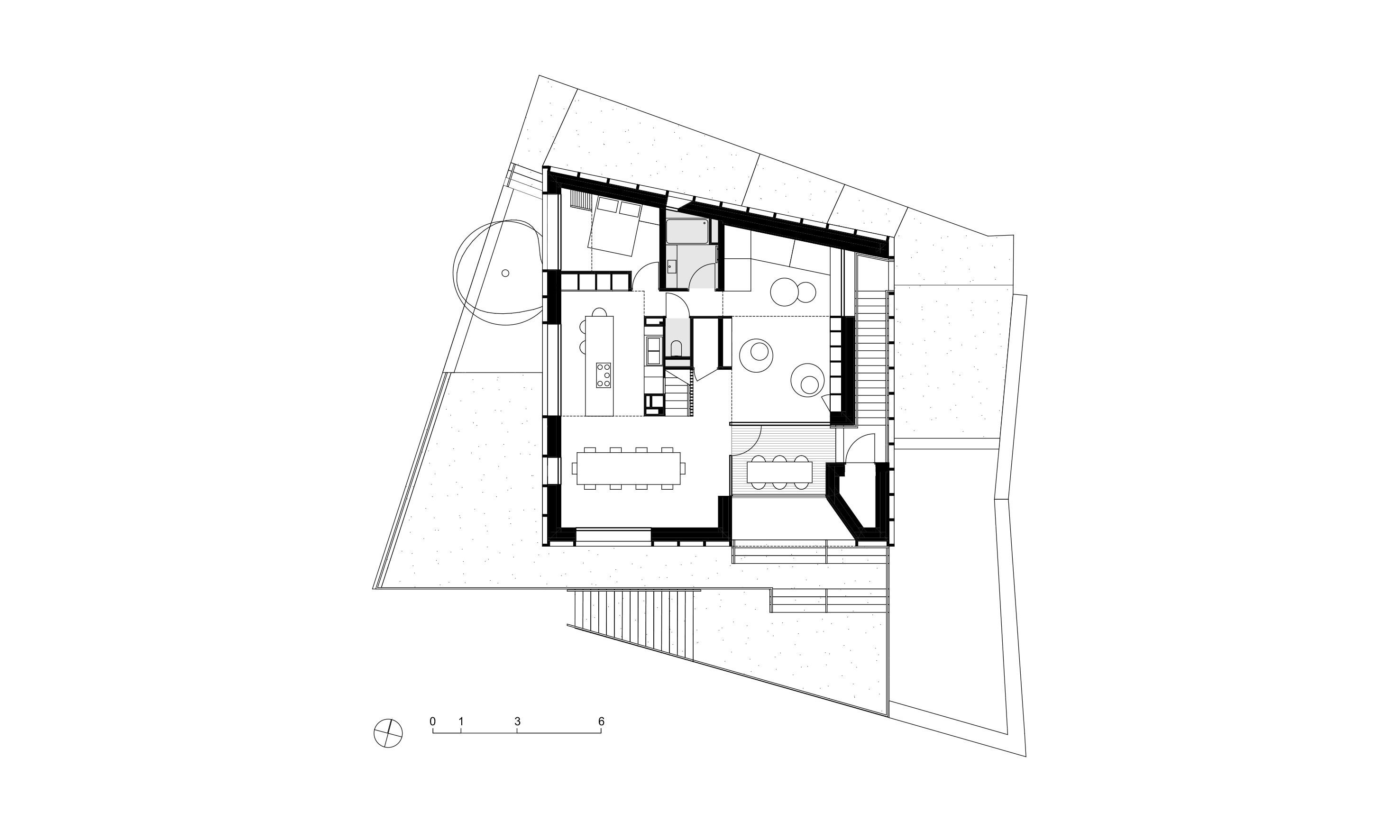
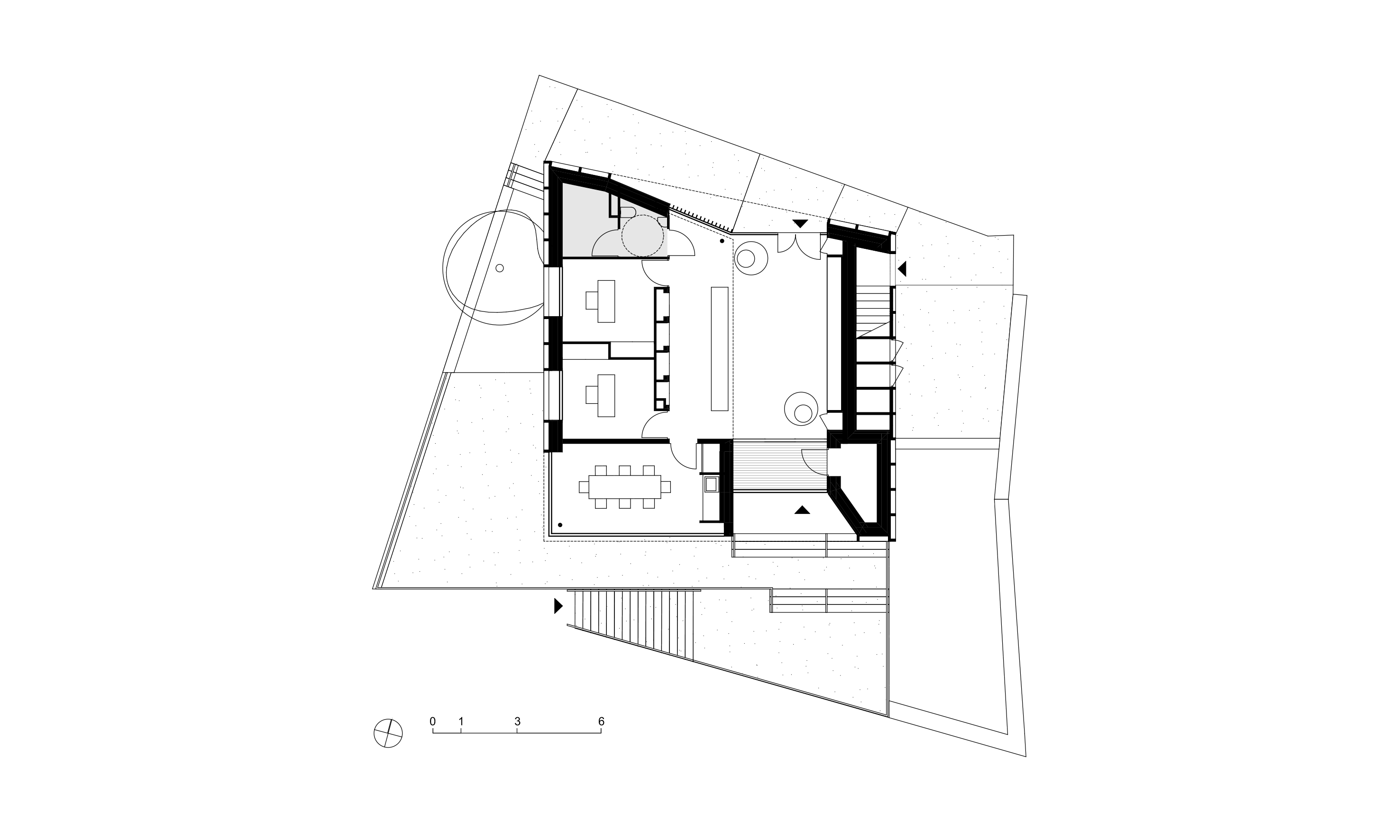
Les intérieurs sont travaillés avec le plus grand soin et dans les moindres détails, jouant entre bois, pierre, éclairage, lumière, couleurs et transparence. Des mobiliers fixes en bois agrémentent le gîte et l’office (banque, banquettes, présentoirs, cuisine, rangements…) Le sol du gîte est réalisé en parquet chêne. Le matériaux bois dans les intérieurs est utilisé dans les teintes clairs afin de contraster avec les façades en bois noir. Cela permet également de s’harmoniser avec le CLT laissé brut en murs, planchers et toiture. Nous avons donné une exigence élevée aux ambiances visuelles.

Catégorie aménagement bois, aménagement intérieur
Numéro de projet7828
Adresse du projet Le Francoz
73140 ORELLE
Date de candidature02/03/2023

aménagement bois

typologie : Logements de vacances ou de loisirs,Service institutionnel et public
Coût total en € HT : 1172287

aménagement intérieur

Année de réalisation : 2022
Coût total Aménagement Intérieur en € HT : 248000
Coût lots bois en € HT : 88267
Volume bois m³ : 52
Surface aménagée en m² : 270

Liste des produits :

ProduitEssenceProvenances (lieu de croissance du bois)Marque et certification produitFinition
EscalierChêneFranceHuile
MobilierFrêneJe n'ai pas l'information
ParquetChêneFranceHuile
Panneau massif d'agencementÉpicéa communEurope
Installation
Bois Français : oui

Approche environnementale : L’usage prévu des espaces intérieurs nécessitait la mise en œuvre de matériaux robustes et durables. La structure est laissée visible de tous et invite à lire la réalité constructive de l’ouvrage tout en faisant l’économie des doublages. L’aspect fini des murs chaleureux grâce au matériaux bois mais aussi très résistants. Il s’agit d’une démarche vertueuse dans son économie de moyens.

Descriptif technique de l'aménagement : L’ensemble de la structure est un bois provenant des alpes. Les meubles sont réalisés en placage frêne afin d’en harmoniser la teinte avec le bois brut des panneaux CLT. Le plancher bois entre le plafond de l’office de tourisme réalisé en structure légère a dû être acoustiquement compensé par l’ajout d’une masse sous le complexe de plancher chauffant afin de pouvoir ester brut.

Des matériaux issus du ré-emploi ont été utilisés dans le projet : non
Données déclaratives

Acteurs du projet

Maître d'ouvrage (1)

Maître d'ouvrage - État ou collectivité (locale et territ)

COMMUNE D'ORELLE (73)

Etudes et ingénieries (4)

Maître d'œuvre - Architecte mandataire

CAAZ ARCHITECTURE (38)

Bureau d'études structure bois

SORAETEC (38) *

Bureau d'études thermique

AXIOME IEC (38)

Economiste

MPF INGENIERIE (38)

Entreprises des lots bois (2)

Charpentier

BOIS EN 3 DIMENSIONS (73) *

Constructeur bois

BOIS EN 3 DIMENSIONS (73) *




* : L'entreprise n'est plus active
Retour à la liste