Apprendre – se divertir, Travailler – accueillir, Réhabiliter un équipement

Extension de l'EHPAD de Froges

38190 FROGES - Isère - Auvergne-Rhône-Alpes

BÂTIMENT / LOGEMENT

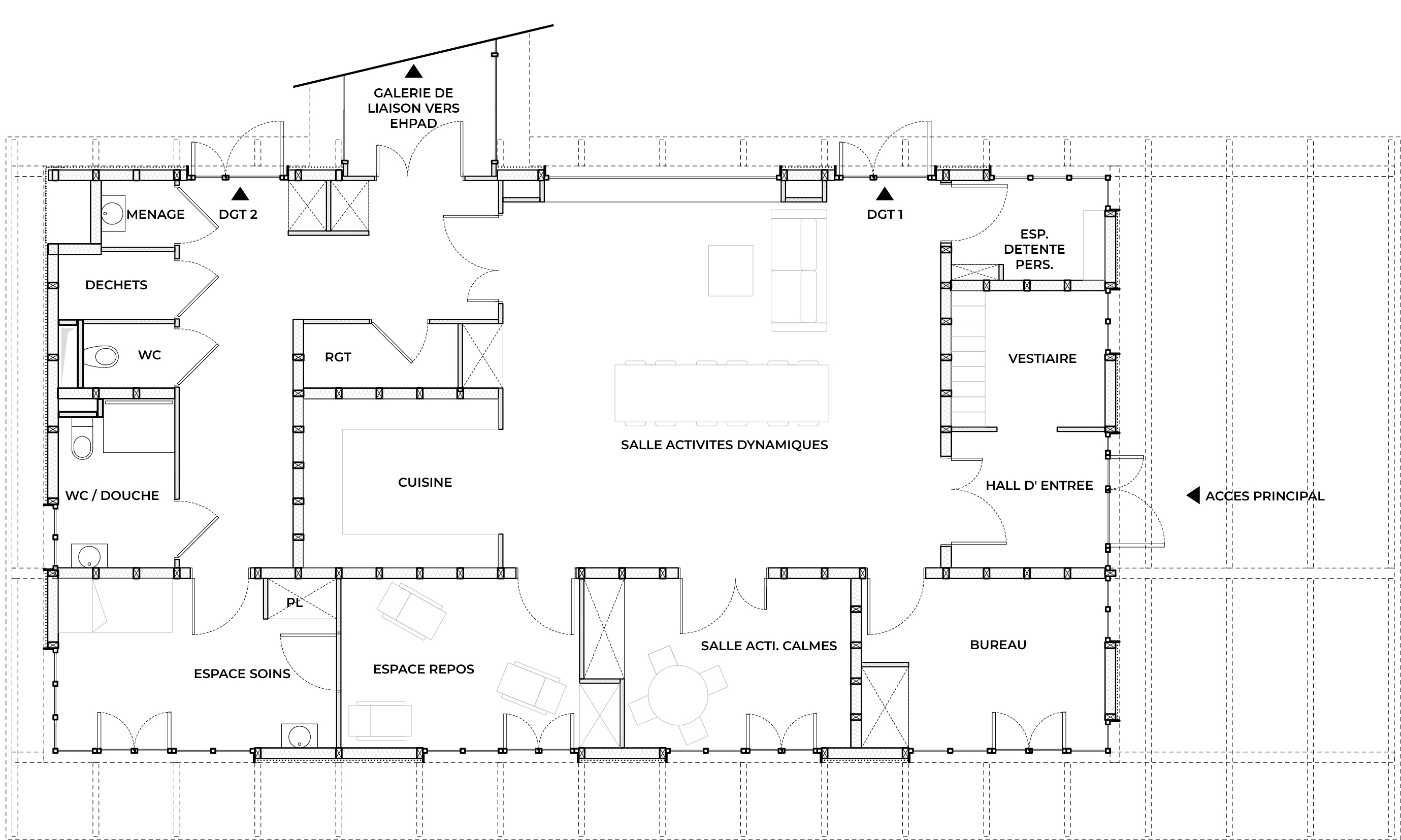
Le bâtiment prends l'apparence d'une grande "maison" de plain-pied, une figure architecturale qui vise à rassurer les résidents accueillis, suggère l'idée d'un deuxième "chez-soi", s'insère harmonieusement dans le tissu pavillonnaire. D’un point de vue constructif, le projet convoque la filière bois, un matériau prélevé localement. Dans le contexte d'un chantier en site occupé , le recours à la préfabrication en atelier a permis d'optimiser la durée du chantier et d'accroître la précision dans la mise en œuvre. L'isolation du bâtiment est réalisée en laine de bois biosourcée.

Catégorie Bâtiment / logement
Numéro de projet7818
Adresse du projet 346 Rue de Bretagne
38190 FROGES
Date de candidature02/03/2023

Bâtiment / logement

Détail projet

Typologie de bâtiment : Neuf,Extension / surélévation
Type de bâtiment : Loisirs,Santé,Service institutionnel et public
Année de livraison : 2021
Surface totale du bâtiment en m² : 165
Dont extension / surélévation en m² : 165
Coût total en € HT (hors foncier, hors VRD, hors honoraires) : 690000
Volume lot bois n°1 - m³ : 36.4
Coût du lot bois n°1 - € HT : 70428
Bois Français : oui
Matériaux issus du ré-emploi (préciser dans le descriptif technique) : non
Isolations biosourcées (préciser dans le descriptif technique) : oui
Matériaux géosourcés (préciser dans le descriptif technique) : non
Finitions intéreures biosourcées ou géosourcées (préciser dans le descriptif technique) : non

Structure bois du bâtiment

Structure verticale :

ProduitEssenceProvenances (lieu de croissance du bois)Traitements de préservationMarque et certification produit
Panneau ossature boisTempéréAuvergne-Rhône-AlpesTraitement Classe 3b (autoclave)Origine France Garantie

Structure horizontale :

ProduitEssenceProvenances (lieu de croissance du bois)Traitements de préservationMarque et certification produit
Solivage traditionnelAuvergne-Rhône-AlpesTraitement Classe 2 (trempage)PEFC

Charpente :

ProduitEssenceProvenances (lieu de croissance du bois)Traitements de préservationMarque et certification produit
Charpente bois lamellé-colléTempéréAuvergne-Rhône-AlpesTraitement Classe 2 (trempage)PEFC

Revêtement bois extérieur

Revêtement bois ou dérivés :

ProduitEssenceProvenances (lieu de croissance du bois)Marque et certification produitFinitionTraitements de préservation
Lame bois massifFrancePEFCpré-griséTraitement Classe 3b (autoclave)

Menuiserie intérieure et extérieure

Menuiserie intérieure :

ProduitEssenceProvenances (lieu de croissance du bois)FinitionMarque et certification produit
Mobilier, Panneau acoustique, Panneau massif d'agencementTempéréEuropeHuile

Isolation des murs

Isolation intérieure des murs :

Produit
Laine de verre
Epaisseur (mm) Isolation intérieure des murs : 100

Isolation entre-montant des murs :

Produit
Laine de verre
Epaisseur (mm) Isolation entre-montant des murs : 145

Isolation de la toiture

Epaisseur (mm) Isolation intérieure de la toiture : 200
Epaisseur (mm) Isolation entre-montant de la toiture : 140

Approche environnementale : - Infiltration de 100% des eaux de pluie à la parcelle - Bâtiment compact. Enveloppe faiblement déperditive - Recours majoritaire au matériau bois présent localement en quantité et nécessitant peu de transformation - Bâtiment très ouvert = limitation du recours à l'éclairage artificiel et à la ventilation mécanisée. Occultation par brise-soleils orientables

Descriptif technique : Dallage béton sur terre-plein Murs à ossature bois Epicea Charpente bois massif et lamellé-collé Epicea Menuiseries et brise-soleils orientables Aluminium Bardage bois en Douglas Toiture Zinc à joints debouts Isolation toiture en laine de bois Parois isolées en laine de verre

Performance du bâtiment (Cep en kWhep/m²/an) : 146.9
Chauffage au Bois : non
Certifications, labels et marques bâtiment : Bâtiment Biosourcé,HQE,PEFC
Données déclaratives

Acteurs du projet

Maître d'ouvrage (1)

Maître d'ouvrage - État ou collectivité (locale et territ)

COMMUNAUTE COM LE GRESIVAUDAN (38)

Etudes et ingénieries (7)

Maître d'œuvre - Architecte mandataire

MEMO ARCHITECTURE (69)

Bureau d'études structure bois

BOIS CONSEIL (38)

Bureau d'études environnement

BET GUILLEMARD (38)

Bureau d'études thermique

BET GUILLEMARD (38)

Economiste

I.B.S.E (38) *

Autre intervenant de la construction - bureau de contrôle, AMO, BIM...

SOCOTEC AGENCE CONSTRUCTION & IMMOBILIER GRENOBLE (38)

Paysagiste

L'ATELIER DES CAIRNS (73)

Entreprises des lots bois (2)

Charpentier

CHARPENTE CONTEMPORAINE (38)

Menuisier

L'ART DU BOIS (38)

Fournisseurs du bois (2)

Scierie

SCIERIE BARTHELEMY FRERES (38)

Industriel

PROTAC OUEST (22)




* : L'entreprise n'est plus active
Retour à la liste