Apprendre – se divertir
Apprendre – se divertir

Pôle aqualudique du Païcherou

11000 CARCASSONNE - Aude - Occitanie

BÂTIMENT / LOGEMENT

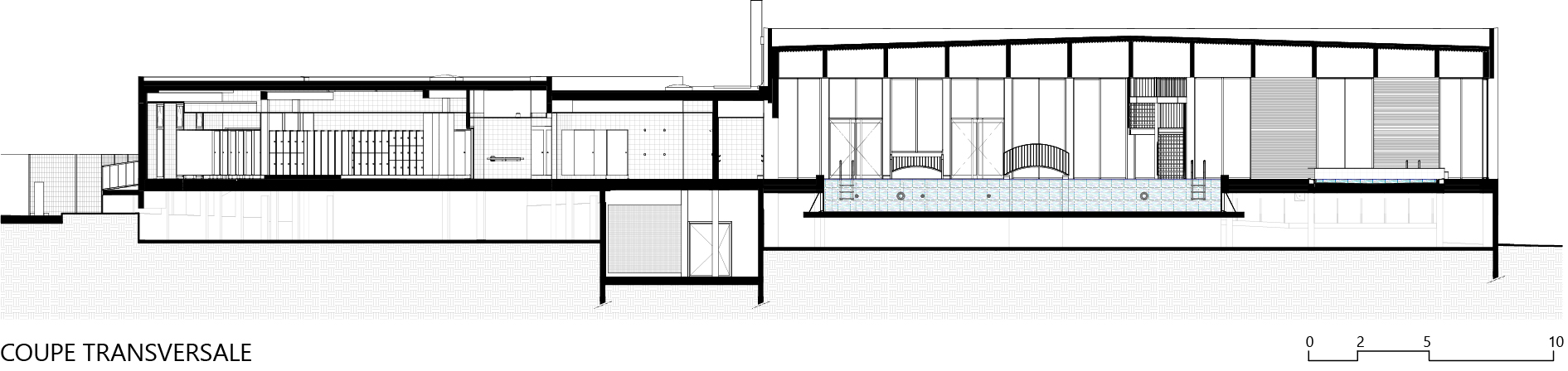
Le Pôle Aqualudique du Païcherou est à la fois compact et généreux. Sa lecture extérieure reflète l’imbrication des espaces intérieurs : Les bassins et la Balnéo génèrent une « halle » transparente, le hall d’entrée est une rotule centrale et les programmes annexes constituent le fond et l’arrière-plan. Le hall d’entrée est intégré au centre du site, entre les deux parties du bâtiment. Ce positionnement crée plusieurs parcours et s’adapte aux liaisons existantes: circuits vélos et piétons, de l’est vers l’ouest, les parkings et les arrêts de bus à l’ouest et le parking voiture à l’est.

Catégorie Bâtiment / logement
Numéro de projet7717
Adresse du projet 2 Quai du Paicherou
11000 CARCASSONNE
Date de candidature24/02/2023

Bâtiment / logement

Détail projet

Typologie de bâtiment : Neuf
Type de bâtiment : Sport
Année de livraison : 2021
Surface totale du bâtiment en m² : 2222
Coût total en € HT (hors foncier, hors VRD, hors honoraires) : 10800000
Lot bois n°1 concerné : Charpente bois
Volume lot bois n°1 - m³ : 182
Coût du lot bois n°1 - € HT : 194000
Lot bois n°2 concerné : Menuiserie intérieure bois
Bois Français : non
Matériaux issus du ré-emploi (préciser dans le descriptif technique) : non
Isolations biosourcées (préciser dans le descriptif technique) : non
Matériaux géosourcés (préciser dans le descriptif technique) : non
Finitions intéreures biosourcées ou géosourcées (préciser dans le descriptif technique) : non

Structure bois du bâtiment

Structure verticale :

ProduitEssenceProvenances (lieu de croissance du bois)Traitements de préservationMarque et certification produit
Poteau poutre

Structure horizontale :

ProduitEssenceProvenances (lieu de croissance du bois)Traitements de préservationMarque et certification produit
Plancher béton

Charpente :

ProduitEssenceProvenances (lieu de croissance du bois)Traitements de préservationMarque et certification produit
Charpente bois lamellé-collé, Charpente traditionnelleÉpicéa communEuropeTraitement Classe 2 (trempage)FSC
Charpente bois lamellé-collé, Charpente traditionnellePin sylvestreEuropeTraitement Classe 2 (trempage)FSC

Revêtement bois extérieur

Menuiserie intérieure et extérieure

Menuiserie intérieure :

ProduitEssenceProvenances (lieu de croissance du bois)FinitionMarque et certification produit
Panneau acoustiqueTempéréEuropeJe n'ai pas l'informationFSC

Isolation des murs

Isolation de la toiture

Approche environnementale : Au niveau architectural, le projet accentue les singularités du site. Les dépressions et les effets de socles existants permettent de travailler les vues vers l’Aude et de créer des relations avec le paysage environnant. Au niveau urbain et paysager, les limites et les accès vers le projet s’organisent le long de cheminements de ripisylve, en bordure de cours d’eau. Une grande partie des arbres existants sont conservés sur la parcelle afin d’articuler les entrées. L’identité paysagère est affirmée, avec des vues dégagées sur les berges et les cheminements doux.

Descriptif technique : Le Pôle Aqualudique du Païcherou est constitué d’un socle en béton sur lequel vient s’appuyer un objet évidé et transparent cadrant le paysage. Le verre et le vitrage s’articulent autour du métal et varient selon les besoins de la programmation, s’adaptant en menuiserie et se transformant en garde-corps pour les plages extérieures. La maçonnerie en béton est utilisée pour créer la structure et la grille constructive du projet. En façade, des poteaux suivent une trame régulière et supportent de grandes menuiseries de 4 m de hauteur en lien direct avec les berges de l’Aude. Sur cette structure en béton qui trame la façade, un système constructif en bois vient se poser. Cette charpente en bois lamellé-collé retient la toiture, sous la forme de caissons espacés de 2.55 mètres.

Chauffage au Bois : non
Certifications, labels et marques bâtiment : Acerbois
Données déclaratives

Acteurs du projet

Maître d'ouvrage (2)

Maître d'ouvrage - État ou collectivité (locale et territ)

COMMUNE DE CARCASSONNE (11)

Maître d'ouvrage - Industriels - commerçants - entreprise

Espaceo (11)

Etudes et ingénieries (3)

Maître d'œuvre - Architecte mandataire

TAILLANDIER ARCHITECTES ASSOCIES (31)

Bureau d'études structure bois

BETEM INGENIERIE (31)

Bureau d'études thermique

Patrick Tual Sarl (44)




* : L'entreprise n'est plus active
Retour à la liste