Travailler – accueillir
Travailler – accueillir

Bureaux du Conservatoire d'Espaces Naturels du Nord et du Pas-de-Calais

62190 LILLERS - Pas de Calais - Hauts-de-France

BÂTIMENT / LOGEMENT

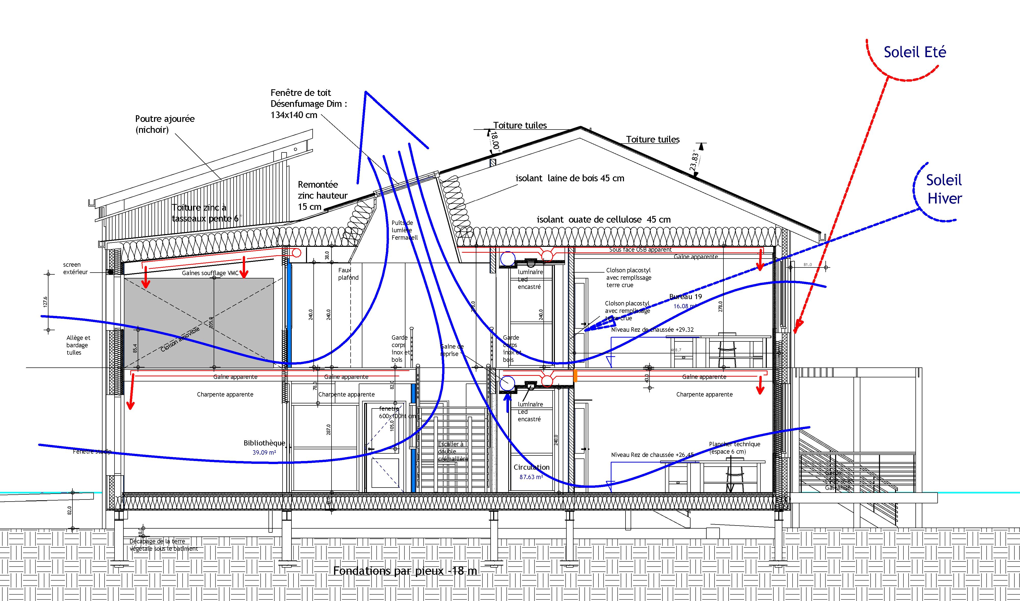
Le souhait du Conservatoire d'Espaces Naturels était de concevoir un ensemble de petits bureaux de 3 personnes maximum et de garder un ensemble convivial, tout en préservant la bio diversité locale et privilégiant les matériaux naturels locaux. l. Les bureaux s'organisent autour d'une coursive centrale éclairée naturellement aux extrémité.L'échelle du bâtiment est R+1, assez petite pour se déplacer. Les volumes des bâtiments, tres simples et en recherche d'économie sont adossés les uns aux autres. Ils participent de la même logique . Les façades extérieures sont habillées de bardages en planches a recouvrement laissées brutes et d'une pergola en bois .Pour permettre le développement de la bio diversité , les combles sont accessibles aux chouettes et chauves souris, des pilotis évitent l'emprise trop forte du bâtiment sur son territoire, une mare favorise les milieux aqueux

Catégorie Bâtiment / logement
Numéro de projet768
Adresse du projet 62190 LILLERS
Date de candidature25/04/2018

Bâtiment / logement

Détail projet

Typologie de bâtiment : Neuf
Type de bâtiment : Lieu d'entreprise
Année de livraison : 2017
Surface totale du bâtiment en m² : 1030
Coût total en € HT (hors foncier, hors VRD, hors honoraires) : 1710000
Lot bois n°1 concerné : ossature bois
Volume lot bois n°1 - m³ : 200
Lot bois n°2 concerné : Menuiserie extérieure bois
Bois Français : oui

Structure bois du bâtiment

Structure verticale :

ProduitEssenceProvenances (lieu de croissance du bois)Traitements de préservationMarque et certification produit
Poteau poutreChêneHauts-de-FranceAucun traitement

Structure horizontale :

ProduitEssenceProvenances (lieu de croissance du bois)Traitements de préservationMarque et certification produit
Solivage traditionnelChêneHauts-de-FranceAucun traitement

Charpente :

ProduitEssenceProvenances (lieu de croissance du bois)Traitements de préservationMarque et certification produit
Charpente bois lamellé-colléChêneHauts-de-FranceAucun traitement

Revêtement bois extérieur

Revêtement bois ou dérivés :

ProduitEssenceProvenances (lieu de croissance du bois)Marque et certification produitFinitionTraitements de préservation
Lame bois massifChêneHauts-de-FranceAucune finitionAucun traitement

Menuiserie intérieure et extérieure

Menuiserie extérieure :

ProduitEssenceProvenances (lieu de croissance du bois)Marque et certification produitFinition
Menuiserie mixteChêneHauts-de-FranceJe n'ai pas l'information

Isolation des murs

Isolation intérieure des murs :

Produit
Laine de bois souple

Isolation entre-montant des murs :

Produit
Laine de bois souple
Epaisseur (mm) Isolation entre-montant des murs : 300

Isolation de la toiture

Epaisseur (mm) Isolation intérieure de la toiture : 450

Approche environnementale : A la demande du maitre d'ouvrage, spécialisé dans la protection de l'environnement, les essences de bois ont été choisies parmi les espèces feuillues indigènes. La simulation thermique dynamique a validé les besoins d' inertie complémentaires (en briques de terre crue noyées dans les cloisons), les longueurs de débord de toits, la pergola au sud,la qualité des vitrages suivant l'orientation et enfin les screens sur les façades Ouest et Nord ouest pour éviter les surchauffes estivales. Une citerne d'eau pluviale de 20 000 litres(lavage des véhicules et les sanitaires) est implantée dans le jardin. Le parking est cerné par une butte brise vent.

Descriptif technique : La structure principale en poteaux poutres est composée d'éléments en lamellé collé de chêne.Elle permet la transformation ultérieure des bureaux. Des essais au FCBA pour la caratérisation du lamellé collé chêne ont été réalisés pour obtenir les garanties nécessaires . Les matériaux d'isolation sont bio sourcés; le sol du rez de chaussée en liège (35 cm), les murs en laine de bois (30 cm), les combles en ouate de cellulose (45 cm). Les murs intérieurs sont revêtus de plaques de platre qui absorbent les COV. Les ECS sont produites par un ballon thermodynamique sur air extrait. la VMC double flux est performante.

Chauffage au Bois : non
Données déclaratives

Acteurs du projet

Maître d'ouvrage (1)

Maître d'ouvrage - Services publics

CONSERVATOIRE D ESPACES NATURELS DES HAUTS DE FRANCE (CEN HDF) (80)

Etudes et ingénieries (4)

Maître d'œuvre - Architecte mandataire

Olivier GOUDESEUNE Architecte DPLG (59)

Bureau d'études structure bois

INGEBOIS STRUCTURES (59)

Bureau d'études environnement

ECOBATINGENIERIE (59)

Bureau d'études thermique

TW Ingénierie (59)

Entreprises des lots bois (2)

Menuisier

TILLIEUX Menuiseries (59)

Constructeur bois

ETABLISSEMENTS COQUART (62)

Fournisseurs du bois (2)

Scierie

SYLVABOIS (60)

Industriel

FCB CHARPENTES (62)




* : L'entreprise n'est plus active
Retour à la liste