Habiter ensemble, Réhabiliter un logement

La Maison Solidaire

73290 LA MOTTE SERVOLEX - Savoie - Auvergne-Rhône-Alpes

BÂTIMENT / LOGEMENT

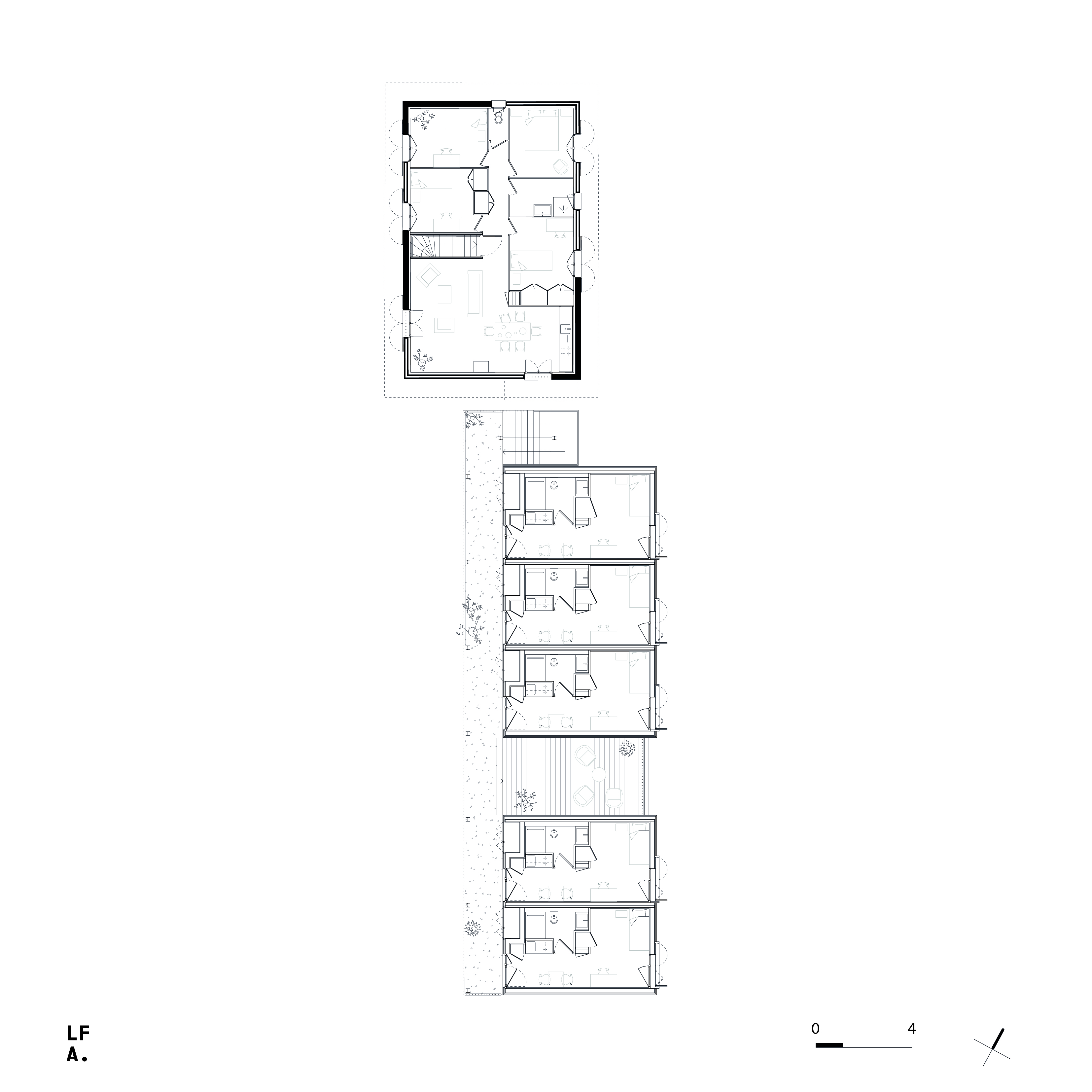
La Maison Solidaire est une résidence sociale composée de 16 modules en ossature bois certifié Bois des Alpes préfabriqués en atelier et entièrement démontables. Chaque module est un studio indépendant, traversant, offrant une vue privilégiée sur le massif des Bauges. Ils sont desservis par une grande terrasse partagée ainsi qu'une coursive, qui régule les apports thermiques solaires. La maison attenante existante a été réhabilitée pour loger le gardien et offrir un lieu commun pour les habitants. Les matériaux utilisés sont locaux et illustrent des savoirs-faire régionaux.

Catégorie Bâtiment / logement
Numéro de projet7676
Date de candidature22/02/2023

Bâtiment / logement

Détail projet

Typologie de bâtiment : Neuf,Rénovation / Réhabilitation
Type de bâtiment : Logement collectif
Année de livraison : 2022
Surface totale du bâtiment en m² : 518.3
Coût total en € HT (hors foncier, hors VRD, hors honoraires) : 1443191.31
Lot bois n°1 concerné : ossature bois
Volume lot bois n°1 - m³ : 33.24
Coût du lot bois n°1 - € HT : 53914.9
Bois Français : oui
Matériaux issus du ré-emploi (préciser dans le descriptif technique) : non
Isolations biosourcées (préciser dans le descriptif technique) : non
Matériaux géosourcés (préciser dans le descriptif technique) : non
Finitions intéreures biosourcées ou géosourcées (préciser dans le descriptif technique) : oui

Structure bois du bâtiment

Structure verticale :

ProduitEssenceProvenances (lieu de croissance du bois)Traitements de préservationMarque et certification produit
Panneau ossature boisÉpicéa communAuvergne-Rhône-AlpesTraitement Classe 2 (trempage)Marques de territoire (à préciser dans le texte)

Structure horizontale :

ProduitEssenceProvenances (lieu de croissance du bois)Traitements de préservationMarque et certification produit
Solivage traditionnelÉpicéa communAuvergne-Rhône-AlpesTraitement Classe 2 (trempage)Marques de territoire (à préciser dans le texte)

Charpente :

ProduitEssenceProvenances (lieu de croissance du bois)Traitements de préservationMarque et certification produit
Caisson de toitureÉpicéa communAuvergne-Rhône-AlpesTraitement Classe 2 (trempage)Marques de territoire (à préciser dans le texte)

Revêtement bois extérieur

Revêtement bois ou dérivés :

ProduitEssenceProvenances (lieu de croissance du bois)Marque et certification produitFinitionTraitements de préservation
Lame bois massifÉpicéa communEuropePEFCSaturateurTraitement Classe 3a (trempage)

Menuiserie intérieure et extérieure

Menuiserie intérieure :

ProduitEssenceProvenances (lieu de croissance du bois)FinitionMarque et certification produit
Mobilier

Menuiserie extérieure :

ProduitEssenceProvenances (lieu de croissance du bois)Marque et certification produitFinition
Menuiserie bois, Volet boisMélèzeEuropeJe n'ai pas l'informationSaturateur

Isolation des murs

Isolation intérieure des murs :

Produit
Laine de verre
Epaisseur (mm) Isolation intérieure des murs : 200

Isolation extérieure des murs :

Produit
Laine de verre
Epaisseur (mm) Isolation extérieure des murs : 200

Isolation de la toiture

Epaisseur (mm) Isolation intérieure de la toiture : 60
Epaisseur (mm) Isolation extérieure de la toiture : 140

Approche environnementale : L'implantation des modules sur la parcelle converse avec le bâti hérité rénové, le cœur d'îlot partagé et profite d'une judicieuse orientation pour bénéficier des apports solaires. Le paysage est largement mis en avant par le travail de baies vitrées en bois orientées vers les montagnes. Au-delà de son ancrage dans son contexte proche, le projet est aussi profondément ancré dans son territoire par sa composition matérielle certifiée bois des Alpes et sa fabrication par des charpentiers de la région. La modularité et l'évolutivité du projet son des réels vecteurs de durabilité constructive.

Descriptif technique : Le projet a débuté par des recherches sur les méthodes de construction permettant d’assurer à l’opération une réversibilité. Après analyses des ressources locales matérielles et artisanales, la solution de circuit-court - préfabrication bois local - a été retenue. Le chantier s'est déroulé en deux phases principales : une préfabrication des modules en atelier puis le chantier sur site. Les studios sont composés en ossature épicéa, les coursives en acier et béton, le bardage en lame massive d'épicéa et panneaux de fibrociment, les menuiseries extérieures en mélèze, le revêtement de sol est un linoléum biosourcé, et le mobilier en panneaux trois-plis huilés et agglomérés stratifiés. Ces logements sont alimentés par des réseaux soigneusement calepinés qui cheminent sous les coursives.

Performance du bâtiment (Cep en kWhep/m²/an) : 102.9
Chauffage au Bois : non
Appareil de chauffage au bois : Poële/insert
Certifications, labels et marques bâtiment : Bois de France,PEFC
Données déclaratives

Acteurs du projet

Maître d'ouvrage (1)

Maître d'ouvrage - Bailleur social privé

SAVOISIENNE HABITAT (73)

Etudes et ingénieries (6)

Maître d'œuvre - Architecte mandataire

TROLLAT ET GRABER ARCHITECTURE (69)

Bureau d'études acoustique

IN SITU INGENIERIE ET ACOUSTIQUE (73)

Bureau d'études structure bois

NEPSEN LYON (69)

Bureau d'études thermique

NEPSEN LYON (69)

Economiste

PR'ECO (69)

Autre intervenant de la construction - bureau de contrôle, AMO, BIM...

ALPES CONTROLES - LA MOTTE SERVOLEX (73)

Entreprises des lots bois (3)

Charpentier

SOCIETE DAUPHINOISE DE CHARPENTE COUVERTURE (SDCC) (38)

Menuisier

JEAN FAURE (69)

Constructeur bois

SOCIETE DAUPHINOISE DE CHARPENTE COUVERTURE (SDCC) (38)

Fournisseurs du bois (1)

Scierie

SCIERIE BOIS DU DAUPHINE (38)




* : L'entreprise n'est plus active
Retour à la liste