Aménager
Aménager

Les refuges du plateau d'Ambel sur le Vercors

26400 OMBLEZE - Drôme - Auvergne-Rhône-Alpes

AMÉNAGEMENT BOIS

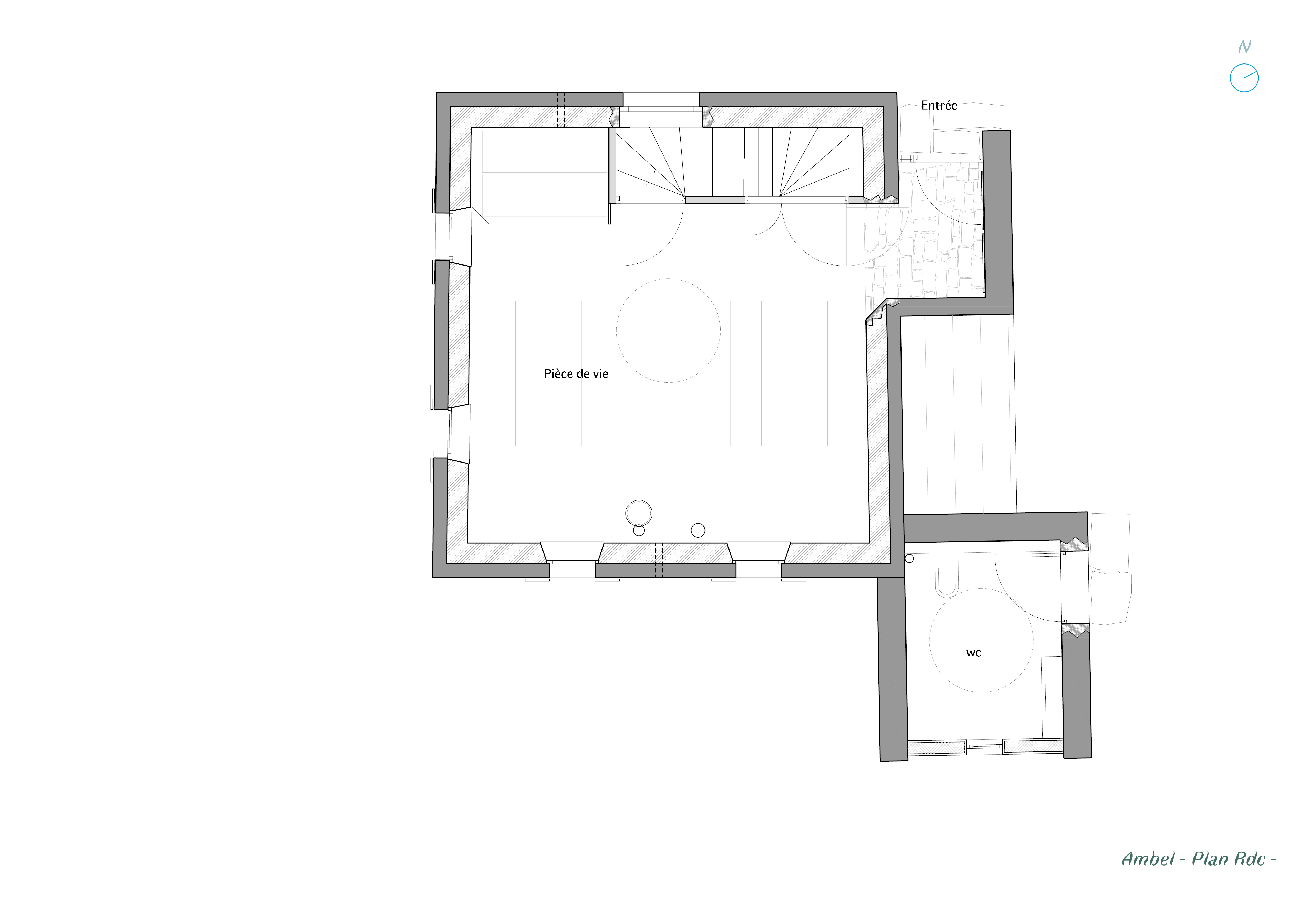
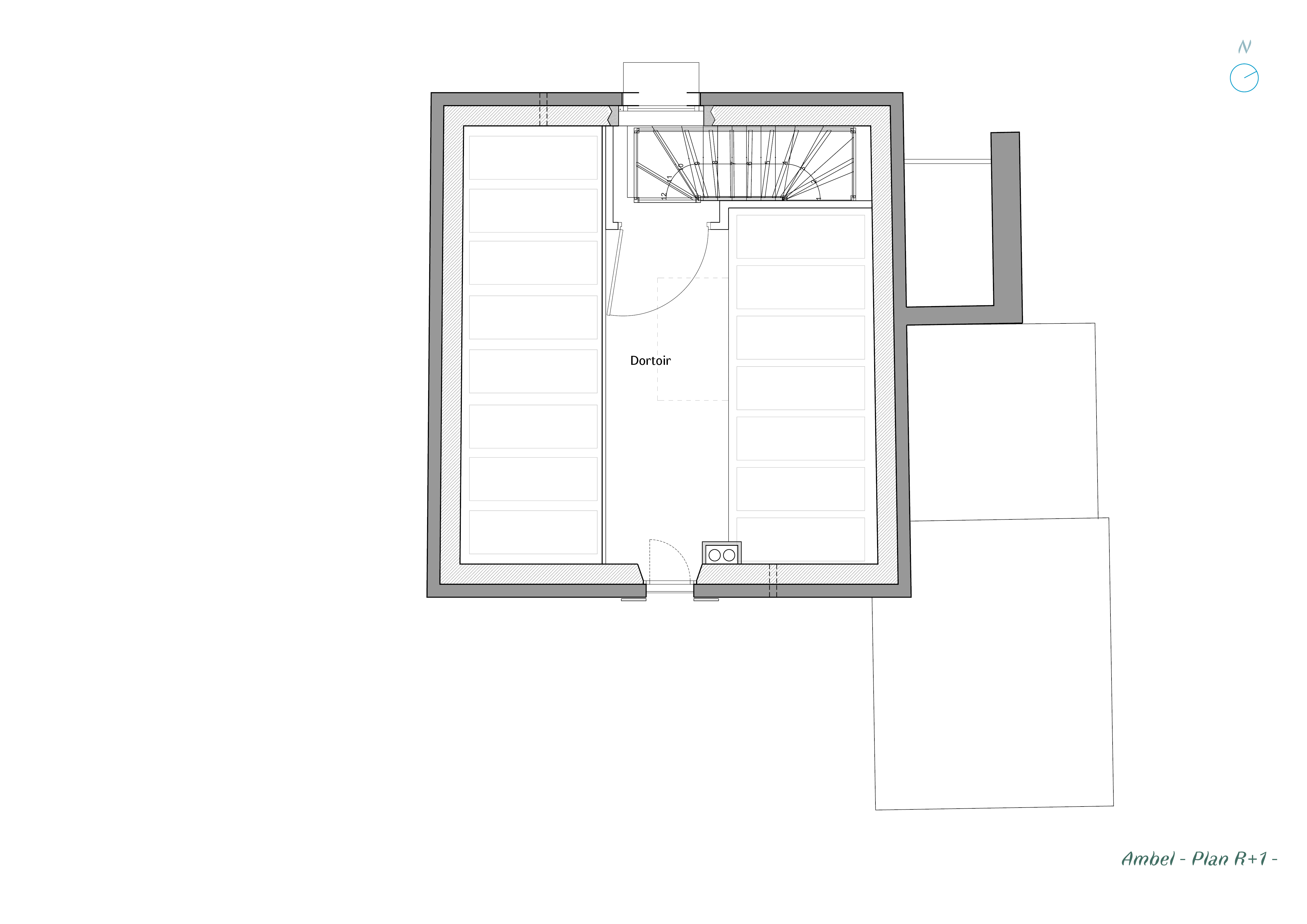
Aménagement intérieur

La réhabilitation des refuges du plateau d’Ambel marque la volonté du Département de la Drôme de mettre en valeur son patrimoine culturelle et touristique et de l’ouvrir à tous. Cette réhabilitation fait la part belle au bois local (douglas et hêtre) et donne une image chaleureuse à ces refuges de montagne. L’intervention architecturale se situe essentiellement dans l’aménagement intérieur afin de faire cohabiter les notions de convivialité, de confort et de sobriété. L’accueil de publics divers (familles, groupes de jeune, etc...) est rendu possible par le nouvel aménagement.

Catégorie aménagement bois, aménagement intérieur
Numéro de projet7643
Adresse du projet D199
26400 OMBLEZE
Date de candidature20/02/2023

aménagement bois

typologie : Logements de vacances ou de loisirs
Coût total en € HT : 329000

aménagement intérieur

Année de réalisation : 2022
Coût total Aménagement Intérieur en € HT : 153000
Coût lots bois en € HT : 151000
Volume bois m³ : 3
Surface aménagée en m² : 328

Liste des produits :

ProduitEssenceProvenances (lieu de croissance du bois)Marque et certification produitFinition
EscalierHêtreAuvergne-Rhône-AlpesAutres
MobilierHêtreAuvergne-Rhône-AlpesAutres
ParquetÉpicéa communFranceAutres
Panneau massif d'agencementMélèzeNouvelle-AquitaineAutres
Bois Français : oui

Approche environnementale : La rénovation thermique a pour but d’assainir les bâtiments peu occupés en hiver. Une ventilation naturelle a été mis en place. Les murs sont enduit à la chaux ou doublés pour favoriser l’aération des parois. Les toitures ont été isolées par de la laine de bois. Le hêtre utilisé en mobilier, escalier a été scié à quelques kilomètres du chantier. Ce chantier, isolé dans la montagne, a été réalisée par des entreprises du Vercors, au plus près des travaux. Un suivit sur le plan environnemental a été tenu pour limiter les nuisances dans cet espace d’exception.

Descriptif technique de l'aménagement : Les tables et bancs sont dessiné sur mesure par l’architecte et réalisée par l’entreprise en bois local. L'eco-garde à participer au projet en fournissant des branches qui ont été utilisé pour faire des portes manteaux et patères. La cage d’escalier est habillée de planches non délignées qui donne une matérialité en lien avec les conifères qui entourent le refuge. L’escalier et les jeux d’estrades pour s’asseoir ou pour dormir intègrent des rangements astucieux. A Gardiol, une banquette bois s’accole le long d’une large ouverture et invite à la contemplation de la nature environnante.

Des matériaux issus du ré-emploi ont été utilisés dans le projet : oui
Données déclaratives

Acteurs du projet

Maître d'ouvrage (1)

Maître d'ouvrage - État ou collectivité (locale et territ)

CONSEIL DEPARTEMENTAL DE LA DROME (26)

Etudes et ingénieries (2)

Maître d'œuvre - Architecte mandataire

COCO ARCHITECTURE (26)

Bureau d'études thermique

DOMELIO (26) *

Entreprises des lots bois (2)

Menuisier

CRESTOISE DE MENUISERIE (26) *
LA FABRIQUE (26)




* : L'entreprise n'est plus active
Retour à la liste