Travailler – accueillir

Office de tourisme et Gite en bois brûlé

73140 ORELLE - Savoie - Auvergne-Rhône-Alpes

BÂTIMENT / LOGEMENT

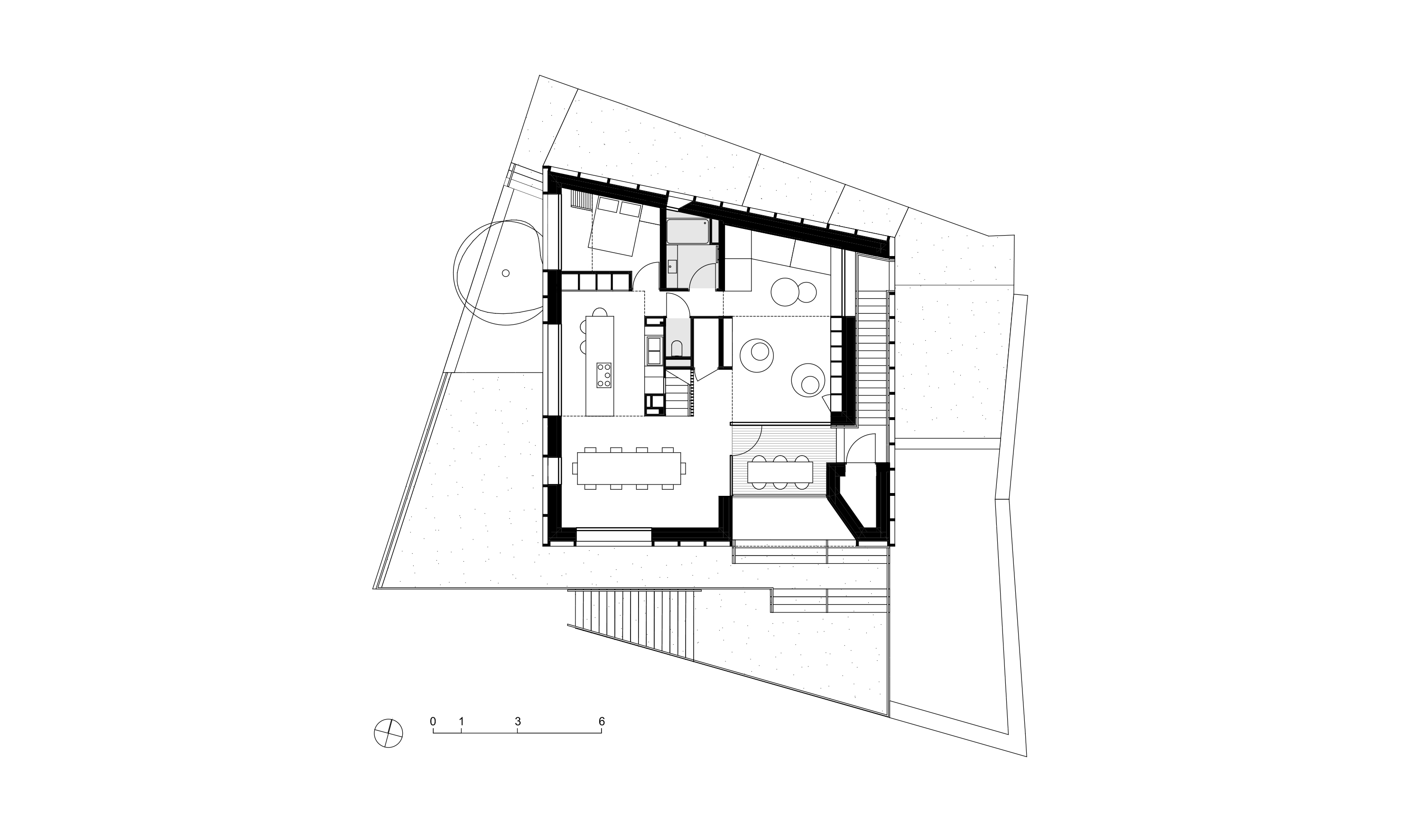
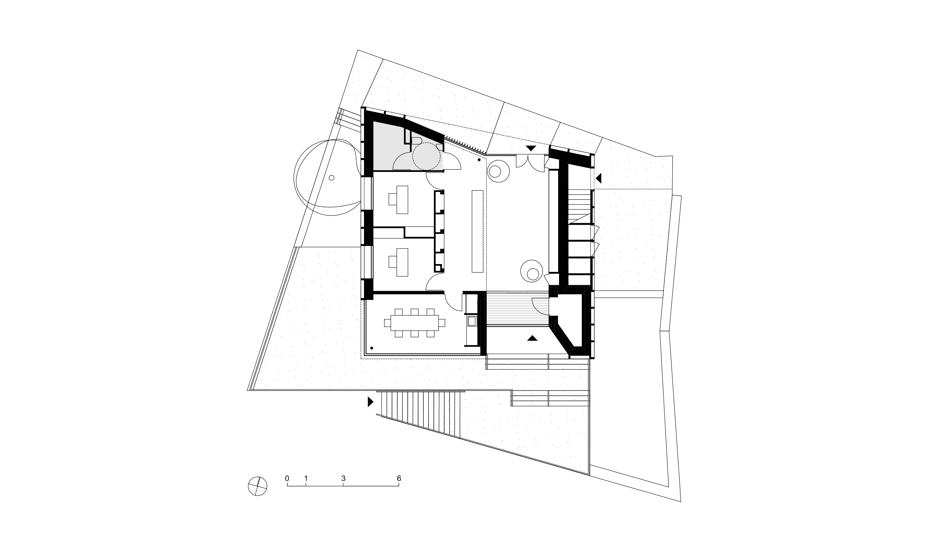
Posé sur le socle en pierre, un volume en bois à deux pans, réinterprète de façon contemporaine, le langage des constructions de montagne traditionnelles. Le volume haut donne à voir le paysage. Il cadre le versant qui lui fait face. L’élévation sud présente une façade creusée en double hauteur donnant une orientation franche à ce volume. Ce creux surdimensionné invite le visiteur à entrer en grimpant les marches en pierres de Luserne. Le plan de l’office est un espace traversant qui offre au piéton une percée visuelle depuis la rue haute vers le paysage.

Catégorie Bâtiment / logement
Numéro de projet7570
Adresse du projet le francoz
73140 ORELLE
Date de candidature14/02/2023

Bâtiment / logement

Détail projet

Typologie de bâtiment : Neuf
Type de bâtiment : Logements de vacances ou de loisirs,Service institutionnel et public
Année de livraison : 2022
Surface totale du bâtiment en m² : 459
Coût total en € HT (hors foncier, hors VRD, hors honoraires) : 1131482
Lot bois n°1 concerné : Charpente bois,Bardage bois,Menuiserie intérieure bois,ossature bois,Autre lot bois
Volume lot bois n°1 - m³ : 210
Coût du lot bois n°1 - € HT : 342000
Bois Français : oui
Matériaux issus du ré-emploi (préciser dans le descriptif technique) : oui
Isolations biosourcées (préciser dans le descriptif technique) : non
Matériaux géosourcés (préciser dans le descriptif technique) : oui
Finitions intéreures biosourcées ou géosourcées (préciser dans le descriptif technique) : oui

Structure bois du bâtiment

Structure verticale :

ProduitEssenceProvenances (lieu de croissance du bois)Traitements de préservationMarque et certification produit
Panneau de bois massif (CLT collé ou CLT cloué)Épicéa communEurope

Structure horizontale :

ProduitEssenceProvenances (lieu de croissance du bois)Traitements de préservationMarque et certification produit
Panneau de bois massif (CLT collé ou CLT cloué)Épicéa communEurope

Charpente :

ProduitEssenceProvenances (lieu de croissance du bois)Traitements de préservationMarque et certification produit
Panneau massifÉpicéa communEurope

Revêtement bois extérieur

Revêtement bois ou dérivés :

ProduitEssenceProvenances (lieu de croissance du bois)Marque et certification produitFinitionTraitements de préservation
Lame bois massifJe n'ai pas l'informationBois bruléJe n'ai pas l'information
Lame bois massifDouglasFranceHuile pigmentée
Lame bois massifÉpicéa communFranceHuile pigmentéeTraitement Classe 3a (trempage)

Revêtement minéral :

Produit
Pierre collée

Autre revêtement métallique :

Produit
Alu

Menuiserie intérieure et extérieure

Menuiserie intérieure :

ProduitEssenceProvenances (lieu de croissance du bois)FinitionMarque et certification produit
EscalierChêneFranceHuile
Mobilier, Panneau acoustiqueHuile
ParquetChêneHuile

Isolation des murs

Isolation extérieure des murs :

Produit
Laine de roche
Epaisseur (mm) Isolation extérieure des murs : 200

Isolation de la toiture

Epaisseur (mm) Isolation extérieure de la toiture : 260

Approche environnementale : L’ouvrage emploie des matériaux qui s’inscrivent dans la durée. Le bardage bois brûlé répond aux problématiques de vieillissement. Le CLT de la structure est laissé visible en finition intérieure. Il répond au besoin de robustesse de la partie office de tourisme qui reçoit des skieurs, en tenu de montagne et du gîte destiné à être loué. Cette mise en œuvre répond également à une économie de moyens en supprimant les doublages. La toiture CLT permet de profiter de l’ensemble du volume construit. Toutes la hauteur est utilisée en couchages pour le gîte. L’épaisseur de la charpente est optimisée.

Descriptif technique : Les parties des façades soumises aux intempéries présentent un bardage en bois brûlé qui ne connaitra pas de vieillissement différencié. Les parties protégées(en creux)sont revêtus d’un bois aux teintes plus chaudes(douglas)afin d’apporter la chaleur naturelle du bois.La structure CLT en murs, plancher et toiture permet un montage rapide sur site. Elle réduit les surcoûts liés à l’acoustique: le projet est situé à proximité immédiate de la station de téléphérique très bruyante.Afin de régler les isolements acoustiques entre l’office de tourisme et le gîte une masse a été recréée par le biais de l’apport de 10cm de graviers sur le plancher CLT sous le complexe de plancher chauffant. Le projet présente une toiture revêtue de lauze typique de la vallée. issu du réemploi: pierre des murets

Chauffage au Bois : oui
Appareil de chauffage au bois : Chaudière
Certifications, labels et marques bâtiment : Aucun
Données déclaratives

Acteurs du projet

Maître d'ouvrage (1)

Maître d'ouvrage - État ou collectivité (locale et territ)

COMMUNE D'ORELLE (73)

Etudes et ingénieries (4)

Maître d'œuvre - Architecte mandataire

CAAZ ARCHITECTURE (38)

Bureau d'études structure bois

SORAETEC (38) *

Bureau d'études thermique

AXIOME IEC (38)

Economiste

MPF INGENIERIE (38)

Entreprises des lots bois (2)

Charpentier

BOIS EN 3 DIMENSIONS (73) *

Constructeur bois

BOIS EN 3 DIMENSIONS (73) *




* : L'entreprise n'est plus active
Retour à la liste