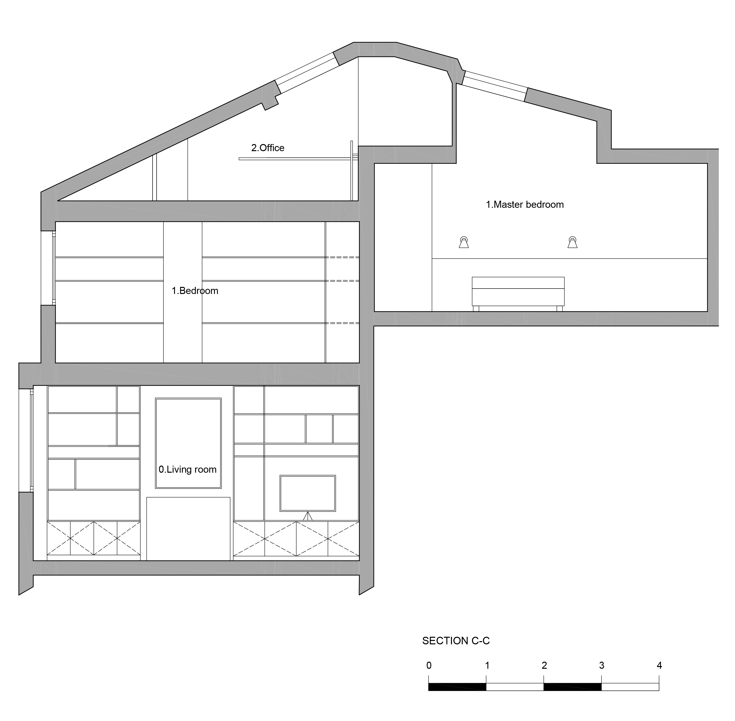
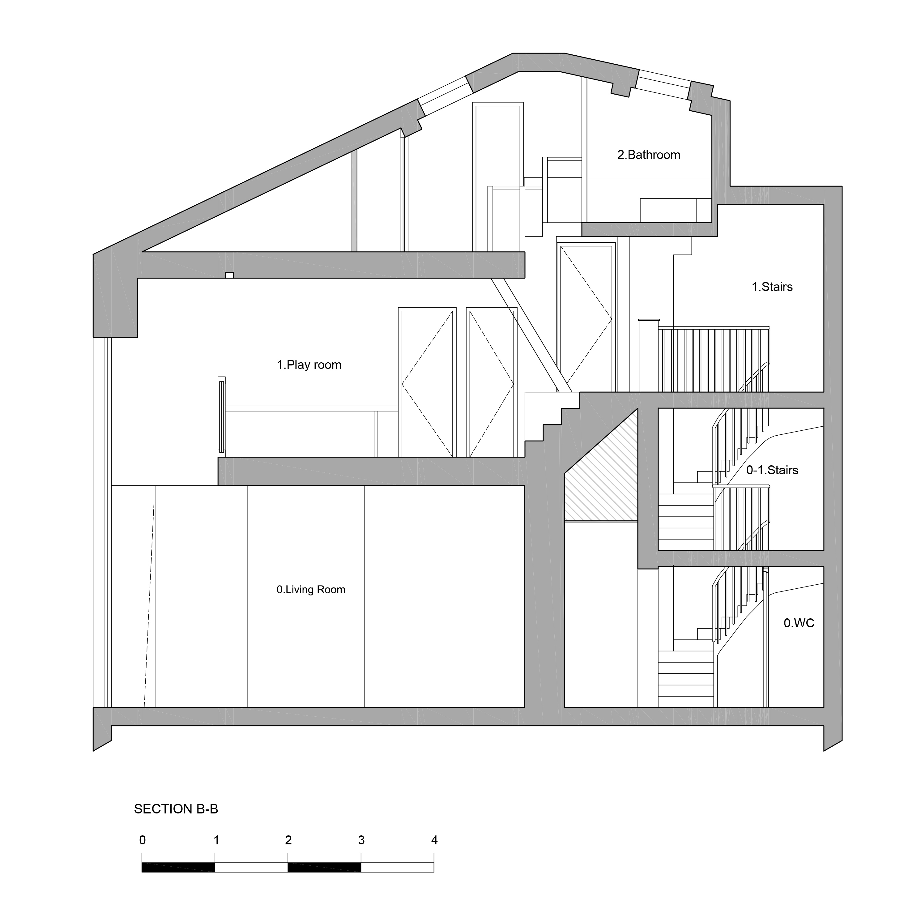
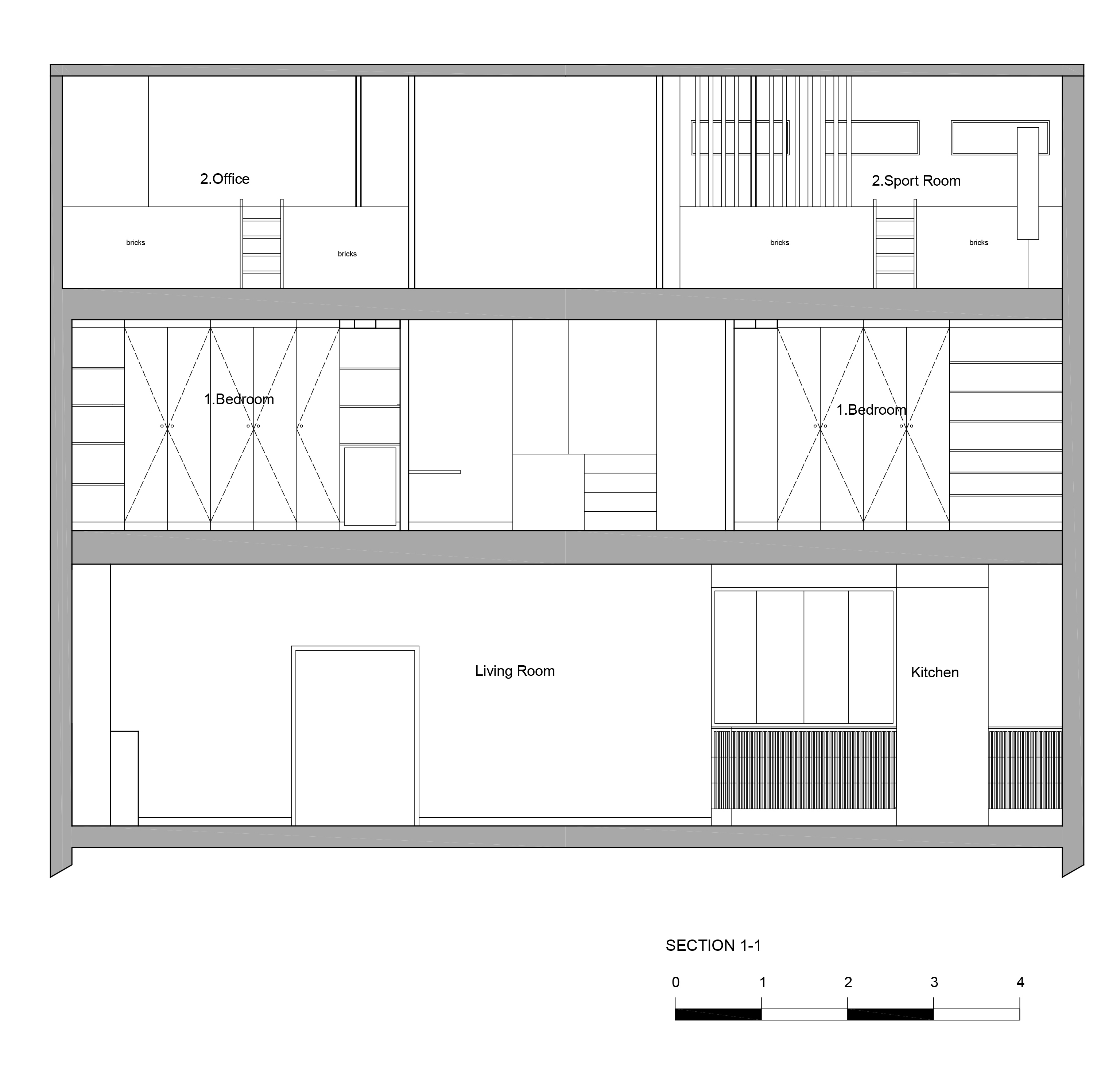
Le concept développé est celui d’un chalet contemporain en référence à l’amour de la montage des propriétaires. Le fil conducteur est créé par les différents agencements ,aménagements, garde corps revêtements de sols et escaliers en chêne qui se déploient sur les trois niveaux de l’appartement . Un travail minutieux a été porté sur le choix des matériaux et gamme chromatique. Le chêne clair et le bleu façonnent l’identité de l’appartement tout en lui donnant son caractère : créant du lien entre les différents espaces et offrant une harmonie à ce triplex entièrement réhabilité.
Catégorie | aménagement bois, aménagement intérieur |
---|---|
Numéro de projet | 7475 |
Adresse du projet | 75017 PARIS 17 |
Date de candidature | 04/02/2023 |
Liste des produits :
Produit | Essence | Provenances (lieu de croissance du bois) | Marque et certification produit | Finition | |
---|---|---|---|---|---|
Escalier | Tempéré | Europe | Saturateur | ||
Installation | Chêne | France | |||
Mobilier | Chêne | France | |||
Parquet | Chêne | France | Huile |
Approche environnementale : Une attention particulière a été portée afin d’adopter une démarche responsable : de l’organisation spatiale à la décoration d’intérieur, en passant par le choix de matériaux et du bois français. Le parti pris a été de conserver le maximum d’éléments anciens tels que la brique ou le parquet du rez de chaussée restaurés. De même, les radiateurs en fonte, et la cheminée ont pu être récupérés .Ces éléments au-delà de la démarche écologique de réemploi permettent de garder l’identité du logement tout en le transformant en une habitation chaleureuse et contemporaine.
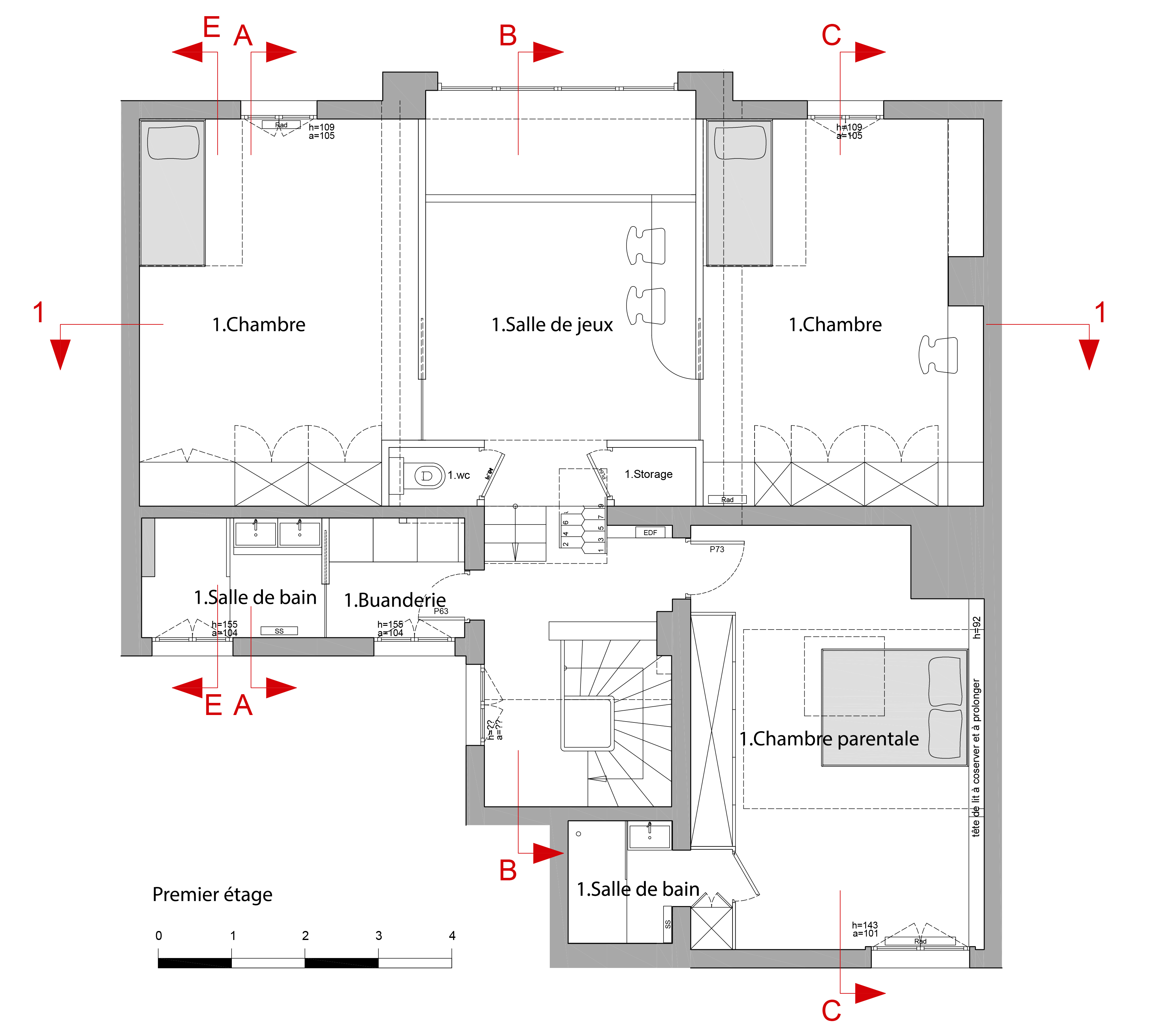
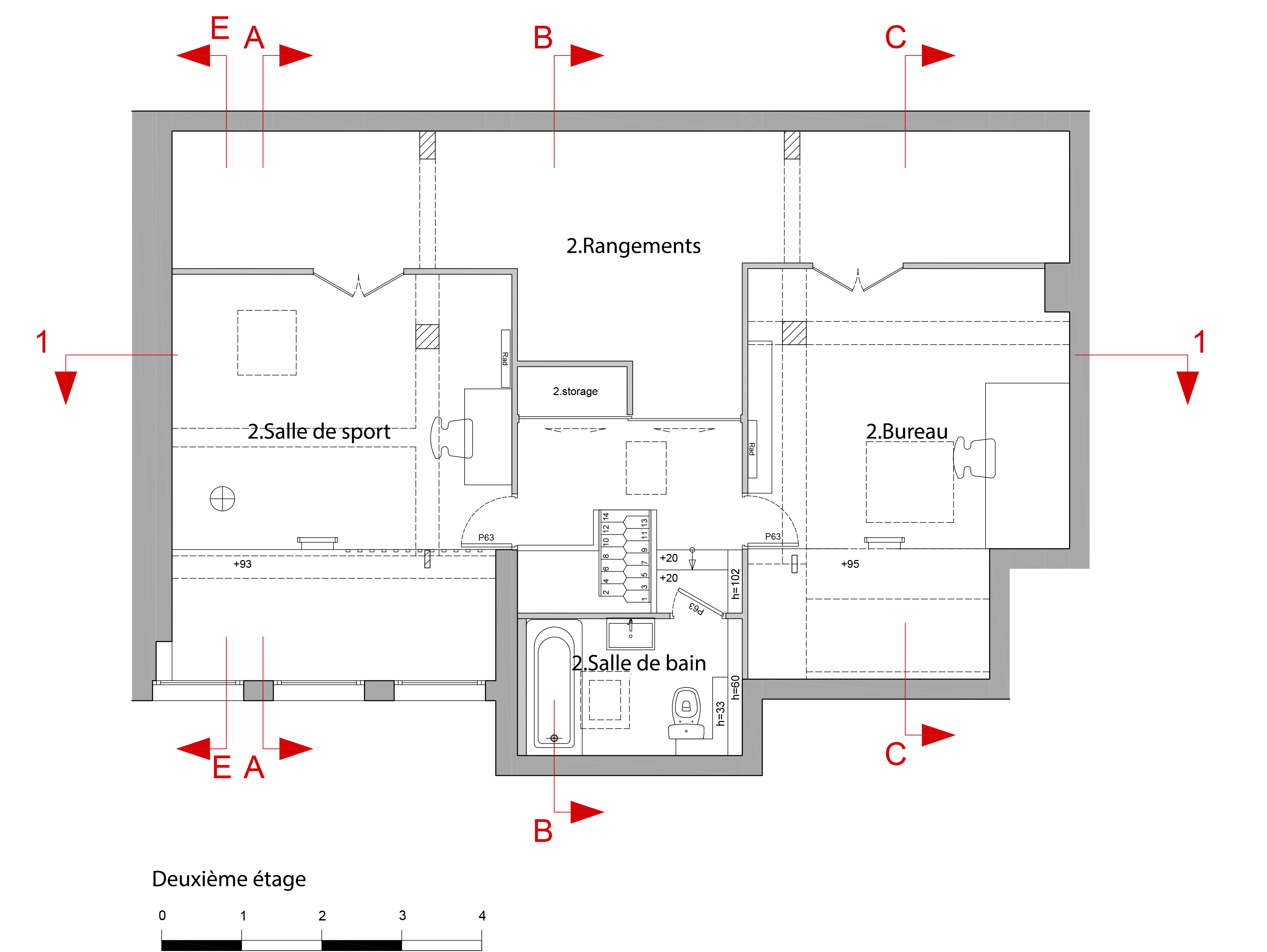
Descriptif technique de l'aménagement : Notre première préoccupation a été de revoir intégralement la répartition des espaces et leurs organisations afin de les adapter aux besoins des nouveaux propriétaires et de pouvoir évoluer avec eux. L’objectif a été ensuite de conserver et de mettre en valeur la lumière devenue traversante après démolition. La double hauteur du séjour, le revêtement de sol en chêne clair mais aussi les jeux de transparence à travers les gardes corps en chêne vitrés créent un lien entre les différentes pièces dans l’ensemble de l’appartement.
Des matériaux issus du ré-emploi ont été utilisés dans le projet : ouiBertina Minel architecture (75)
Bertina Minel architecture (75)