Travailler – accueillir
Travailler – accueillir

Ensemble de bureaux

19100 BRIVE LA GAILLARDE - Corrèze - Nouvelle-Aquitaine

BÂTIMENT / LOGEMENT

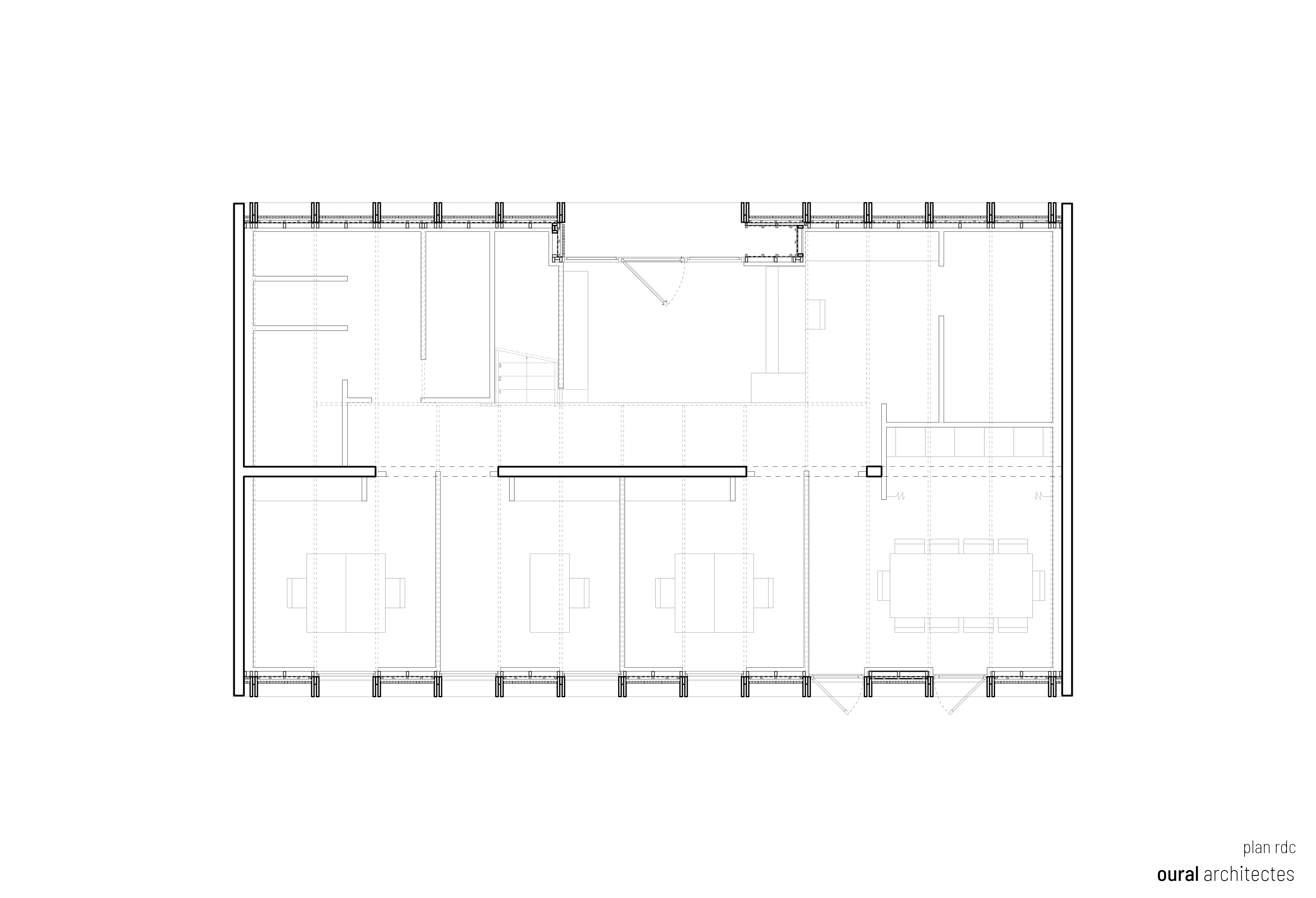
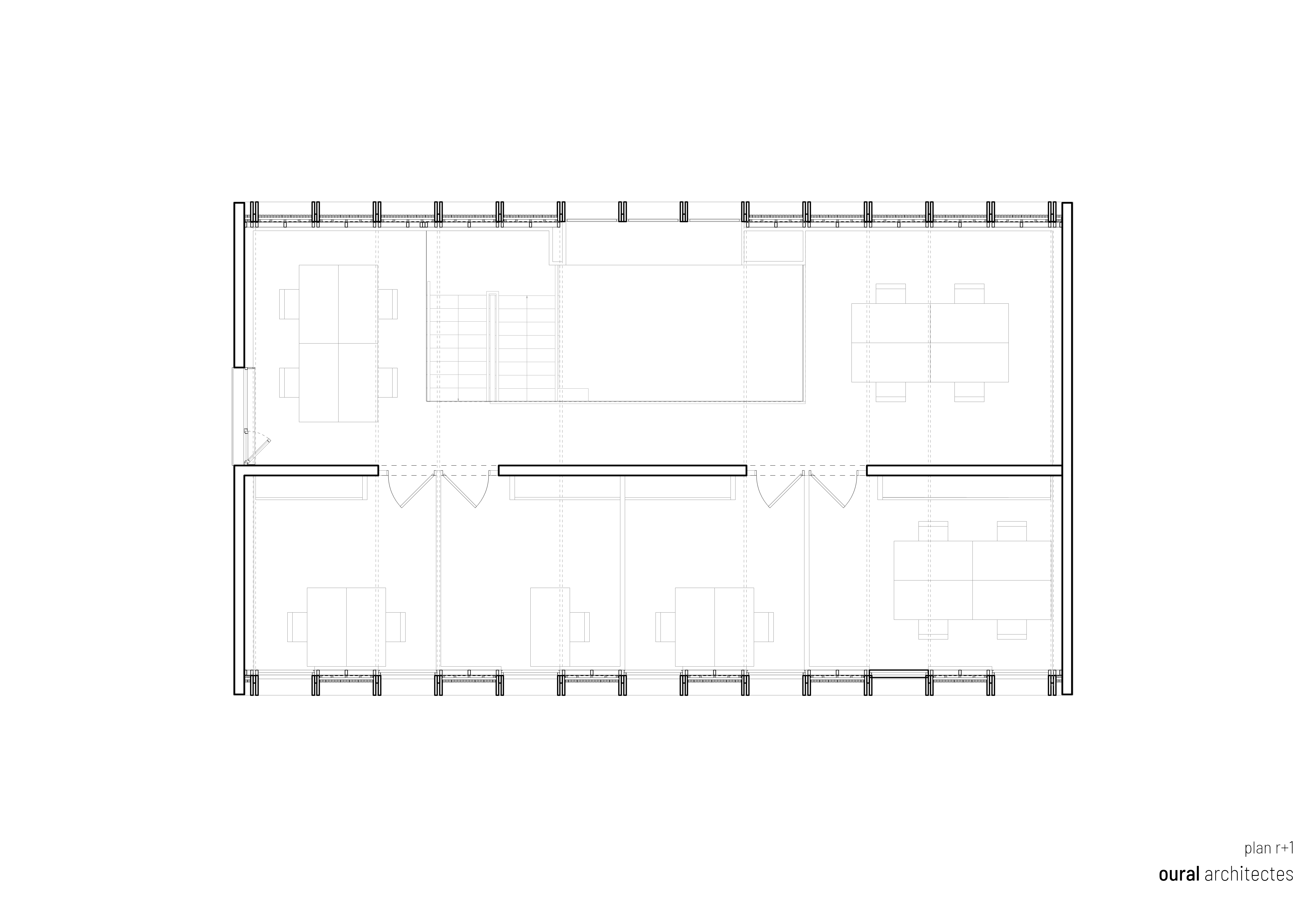
Ce projet en structure mixte bois et maçonnerie fait usage d'un ensemble de portiques LVL disposés selon une trame régulière. Des murs à ossature bois sont placés en remplissage de chaque portique créant ainsi un jeu de plein et de vide en façade. Ce système constructif en bois est motivé par la réduction des charge sur un terrain argileux, une diminution des temps de chantier et une approche durable dans le choix des matériaux mis en œuvre. La lisibilité de la structure bois en façade verticalise le bâtiment, lui donnant une échelle intermédiaire, entre le pavillon urbain et l'équipement.

Catégorie Bâtiment / logement
Numéro de projet7458
Adresse du projet 6 Ter avenue Léo Lagrange
19100 BRIVE LA GAILLARDE
Date de candidature02/02/2023

Bâtiment / logement

Détail projet

Typologie de bâtiment : Neuf
Type de bâtiment : Lieu d'entreprise
Année de livraison : 2022
Surface totale du bâtiment en m² : 225
Coût total en € HT (hors foncier, hors VRD, hors honoraires) : 425000
Lot bois n°1 concerné : Charpente bois,Bardage bois,ossature bois
Volume lot bois n°1 - m³ : 26
Coût du lot bois n°1 - € HT : 97000
Lot bois n°2 concerné : Menuiserie intérieure bois,Menuiserie extérieure bois
Volume lot bois n°2 - m³ : 3
Coût du lot bois n°2 - € HT : 47000
Bois Français : oui
Matériaux issus du ré-emploi (préciser dans le descriptif technique) : non
Isolations biosourcées (préciser dans le descriptif technique) : non
Matériaux géosourcés (préciser dans le descriptif technique) : non
Finitions intéreures biosourcées ou géosourcées (préciser dans le descriptif technique) : non

Structure bois du bâtiment

Structure verticale :

ProduitEssenceProvenances (lieu de croissance du bois)Traitements de préservationMarque et certification produit
Panneau ossature boisDouglasNouvelle-AquitaineTraitement Classe 2 (trempage)Je n'ai pas l'information
Poteau poutreÉpicéa communEuropeTraitement Classe 3a (trempage)

Structure horizontale :

ProduitEssenceProvenances (lieu de croissance du bois)Traitements de préservationMarque et certification produit
Plancher mixte bois-acier , Plancher mixte bois-béton, Solivage traditionnelÉpicéa communEuropeTraitement Classe 2 (trempage)

Charpente :

ProduitEssenceProvenances (lieu de croissance du bois)Traitements de préservationMarque et certification produit
Charpente bois lamellé-colléÉpicéa communEuropeTraitement Classe 2 (trempage)

Revêtement bois extérieur

Revêtement bois ou dérivés :

ProduitEssenceProvenances (lieu de croissance du bois)Marque et certification produitFinitionTraitements de préservation
Lame bois massifDouglasPEFCLasureTraitement Classe 3b (autoclave)

Menuiserie intérieure et extérieure

Menuiserie intérieure :

ProduitEssenceProvenances (lieu de croissance du bois)FinitionMarque et certification produit
Escalier, MobilierÉpicéa communHuilePEFC
Panneau massif d'agencementPeuplierNouvelle-AquitaineHuilePEFC

Menuiserie extérieure :

ProduitEssenceProvenances (lieu de croissance du bois)Marque et certification produitFinition
Menuiserie boisPin sylvestreFrancePEFCLasure

Isolation des murs

Isolation intérieure des murs :

Produit
Laine de verre
Epaisseur (mm) Isolation intérieure des murs : 45

Isolation entre-montant des murs :

Produit
Laine de roche
Epaisseur (mm) Isolation entre-montant des murs : 95

Isolation de la toiture

Epaisseur (mm) Isolation intérieure de la toiture : 230

Approche environnementale : Le bâtiment est guidé par une réflexion de bon sens sur un plan durable : - Les espaces traversants permettent une ventilation naturelle du bâtiment, - Les portiques créent une façade épaisse, limitant ainsi l’apport solaire, - Les matériaux sont laissés bruts, - L’inertie thermique est assurée par les planchers béton et le mur de refend situé au centre du projet, - Plus d’un tiers de la parcelle est végétalisé, avec la mise en place d’un jardin vers lequel les bureaux sont orientés.

Descriptif technique : Ensemble de portiques bois assemblés en atelier, formant la structure primaire et supportant un plancher béton sur solivage bois. Cette charpente asymétrique est contreventée sur les deux versants, tandis que le solivage est butonné au refend intermédiaire en poteau/poutre béton armé liaisonné aux pignons maçonnés. Les poteaux résultent d'un assemblage de deux sections (400*75) fixées entre elles, formant un joint creux. Des pieds de poteau en acier galvanisé reprenant ce détail de joint creux transmettent les descentes de charge aux fondations. Les éléments de charpente en LVL sont moisés et fixés en tête de portiques, les poussées horizontales étant reprises par un ensemble de tirants, libérant ainsi le volume. Cette charpente auto-stable permet le contreventement des têtes de pignons.

Chauffage au Bois : non
Données déclaratives

Acteurs du projet

Maître d'ouvrage (1)

Maître d'ouvrage - Industriels - commerçants - entreprise

SARL AGRIGIR (19)

Etudes et ingénieries (4)

Maître d'œuvre - Architecte mandataire

oural architectes (93)

Bureau d'études structure bois

BET HEMERY (87)

Economiste

oural architectes (93)

Autre intervenant de la construction - bureau de contrôle, AMO, BIM...

DEKRA INDUSTRIAL – Siège (87)

Entreprises des lots bois (3)

Charpentier

SAS DUBOIS ET ASSOCIES (19)

Menuisier

SAS DUBOIS ET ASSOCIES (19)
Delpy Valentin (19)

Fournisseurs du bois (1)

Industriel

CAP BOIS ET TOIT (19)




* : L'entreprise n'est plus active
Retour à la liste