Habiter une maison
Habiter une maison

Une fenêtre sur la nature

76840 SAINT MARTIN DE BOSCHERVILLE - Seine Maritime - Normandie

BÂTIMENT / LOGEMENT

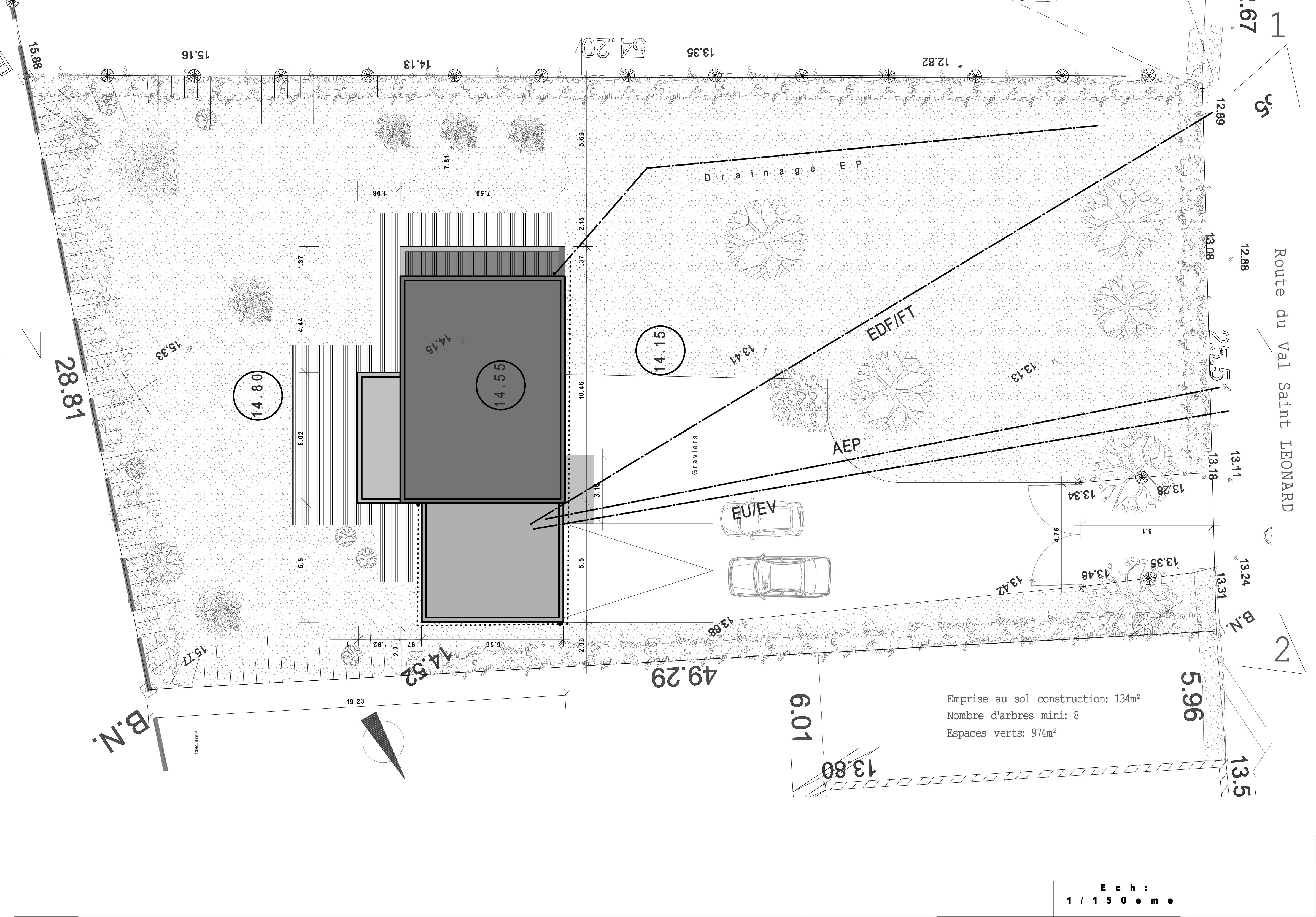
Situé dans un petit village normand réputé pour son abbatiale, la maison s'inscrit dans un environnement privilégié en bordure de forêt. Le projet résolument contemporain propose une ouverture vers la forêt en proposant des cadrages. Relativement fermé côté rue, la maison s'ouvre vers le sud et propose un jeu de volume avec un bandeau en bardage bois à faux clairevoie qui se retourne sur les différentes façades.

Catégorie Bâtiment / logement
Numéro de projet7426
Date de candidature31/01/2023

Bâtiment / logement

Détail projet

Typologie de bâtiment : Neuf
Type de bâtiment : Logement individuel supérieur à 120 m²
Année de livraison : 2022
Surface totale du bâtiment en m² : 149
Coût total en € HT (hors foncier, hors VRD, hors honoraires) : 300000
Bois Français : oui
Matériaux issus du ré-emploi (préciser dans le descriptif technique) : non
Isolations biosourcées (préciser dans le descriptif technique) : oui
Matériaux géosourcés (préciser dans le descriptif technique) : non
Finitions intéreures biosourcées ou géosourcées (préciser dans le descriptif technique) : non

Structure bois du bâtiment

Structure verticale :

ProduitEssenceProvenances (lieu de croissance du bois)Traitements de préservationMarque et certification produit
Panneau ossature bois, Poteau poutre

Structure horizontale :

ProduitEssenceProvenances (lieu de croissance du bois)Traitements de préservationMarque et certification produit
Dalle bois, Solivage traditionnel

Charpente :

ProduitEssenceProvenances (lieu de croissance du bois)Traitements de préservationMarque et certification produit
Charpente traditionnelle

Revêtement bois extérieur

Revêtement bois ou dérivés :

ProduitEssenceProvenances (lieu de croissance du bois)Marque et certification produitFinitionTraitements de préservation
Panneau de synthèse ou composite
Lame bois massifSaturateur

Revêtement minéral :

Produit
Autres

Menuiserie intérieure et extérieure

Menuiserie intérieure :

ProduitEssenceProvenances (lieu de croissance du bois)FinitionMarque et certification produit
EscalierHuile

Isolation des murs

Epaisseur (mm) Isolation intérieure des murs : 60
Epaisseur (mm) Isolation entre-montant des murs : 145

Isolation de la toiture

Epaisseur (mm) Isolation intérieure de la toiture : 100
Epaisseur (mm) Isolation extérieure de la toiture : 160

Approche environnementale : La maison est réalisée entièrement en ossature bois avec une isolation en laine de bois. Chauffage en plancher chauffant et pompe à chaleur.

Descriptif technique : Le système constructif est en panneau ossature bois avec solivage traditionnel.

Performance du bâtiment (Cep en kWhep/m²/an) : 39
Chauffage au Bois : non
Données déclaratives

Acteurs du projet

Maître d'ouvrage (1)

Maître d'ouvrage - Particuliers

particulier (x)

Etudes et ingénieries (1)

Bureau d'études thermique

EQUILECO (76)




* : L'entreprise n'est plus active
Retour à la liste