Travailler – accueillir
Travailler – accueillir

Pôle de recherche et développement agronomique et agroalimentaire du Grand Arras

62223 SAINT LAURENT BLANGY - Pas de Calais - Hauts-de-France

BÂTIMENT / LOGEMENT

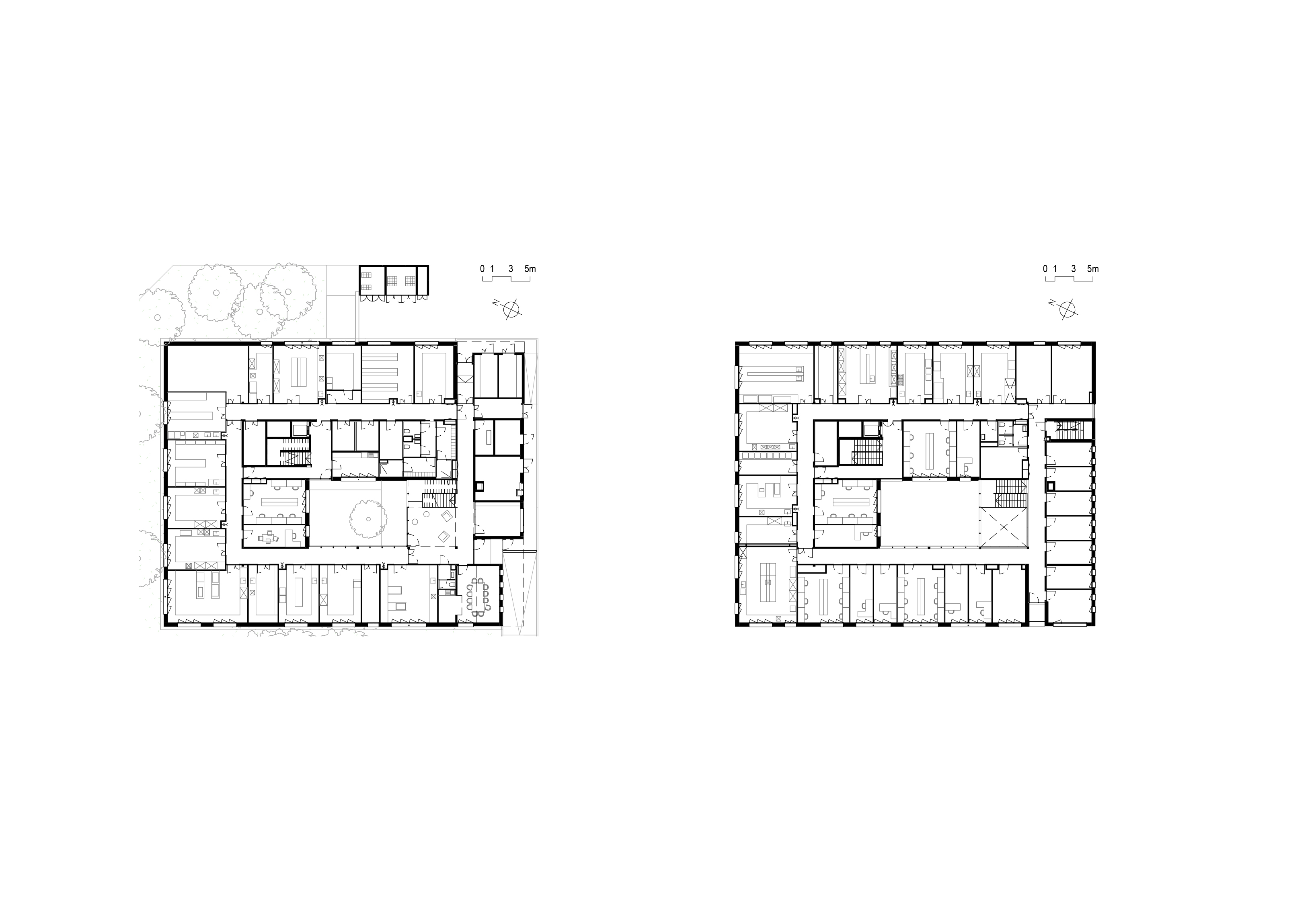
Cet ambitieux projet scientifique développera des recherches liant qualité des sols et des aliments et traitera les problématiques du cycle de vie des phytosanitaires. Le bâtiment est essentiellement conçu avec une structure bois elle-même revêtue d’un bardage bois en douglas autoclave. Cette structure s’appuie sur un soubassement en béton matricé travertin. Les menuiseries sont mixtes, bois-aluminium. C’est un bâtiment frugal, outil au service des chercheurs, sobre, minimal dans son expression, ouvert, transparent et généreux dans sa disposition et son organisation spatiale.

Catégorie Bâtiment / logement
Numéro de projet7334
Adresse du projet 700, avenue d'Immercourt
62223 SAINT LAURENT BLANGY
Date de candidature16/01/2023

Bâtiment / logement

Détail projet

Typologie de bâtiment : Neuf
Type de bâtiment : Lieu d'entreprise,Santé,Service institutionnel et public
Année de livraison : 2022
Surface totale du bâtiment en m² : 1821
Coût total en € HT (hors foncier, hors VRD, hors honoraires) : 4200000
Bois Français : oui
Matériaux issus du ré-emploi (préciser dans le descriptif technique) : non
Isolations biosourcées (préciser dans le descriptif technique) : non
Matériaux géosourcés (préciser dans le descriptif technique) : non
Finitions intéreures biosourcées ou géosourcées (préciser dans le descriptif technique) : oui

Structure bois du bâtiment

Structure verticale :

ProduitEssenceProvenances (lieu de croissance du bois)Traitements de préservationMarque et certification produit
Panneau ossature boisPin sylvestreEuropeAucun traitementMarques de territoire (à préciser dans le texte)

Structure horizontale :

ProduitEssenceProvenances (lieu de croissance du bois)Traitements de préservationMarque et certification produit
Plancher mixte bois-bétonÉpicéa communFranceJe n'ai pas l'informationJe n'ai pas l'information

Charpente :

ProduitEssenceProvenances (lieu de croissance du bois)Traitements de préservationMarque et certification produit
Non précisé

Revêtement bois extérieur

Menuiserie intérieure et extérieure

Isolation des murs

Epaisseur (mm) Isolation intérieure des murs : 140
Epaisseur (mm) Isolation entre-montant des murs : 140

Isolation de la toiture

Epaisseur (mm) Isolation extérieure de la toiture : 130

Approche environnementale : Le nouveau bâtiment de l’INRAE présente des dispositions constructives à la fois adaptées à son usage et exemplaires d’un point de vue environnemental. La structure est en bois avec des planchers mixtes bois / béton permettant de grandes portées sans poteaux intermédiaires. Les réseaux sont visibles pour une maintenance plus aisée et une meilleure compréhension du fonctionnement des laboratoires. L’expression architecturale cherche d’abord à montrer une sobriété constructive et énergétique, sans démonstration forcée et complexe.

Descriptif technique : La structure porteuse verticale est en bois, les planchers sont mixtes bois / béton. Tous ces éléments, ainsi que les murs ossature bois et les voiles béton matricé « travertin », ont été préfabriqués en usine avant d'être acheminés et assemblés sur site. La nature très technique de ce type de bâtiment implique d’importants réseaux de nature et de dimensions très variées en fonction de chaque salle et du type de matériel utilisé. Rendre les réseaux visibles permet de faciliter la maintenance et d’affirmer le caractère technique des espaces tout en laissant apparente la structure en bois du plancher. L’absence de faux-plafonds rend plus aisée la modification des réseaux sur le long terme sans altérer l’esprit du projet.

Performance du bâtiment (Cep en kWhep/m²/an) : 73.9
Chauffage au Bois : non
Données déclaratives

Acteurs du projet

Maître d'ouvrage (1)

Maître d'ouvrage - Services publics

INRAE CENTRE HAUTS-DE-FRANCE (62)

Etudes et ingénieries (7)

Maître d'œuvre - Architecte mandataire

ATELIER TEQUI ARCHITECTES (75)

Bureau d'études acoustique

OTE INGENIERIE (67)

Bureau d'études structure bois

OTE INGENIERIE (67)

Bureau d'études environnement

OTELIO (68)

Bureau d'études thermique

OTE INGENIERIE (67)

Economiste

OTE INGENIERIE (67)

Autre intervenant de la construction - bureau de contrôle, AMO, BIM...

C.I.TECH - CONCEPTION D' INSTALLATIONS TECHNOLOGIQUES (91)

Entreprises des lots bois (1)

Constructeur bois

RAMERY CONSTRUCTION BOIS (62)




* : L'entreprise n'est plus active
Retour à la liste