Réhabiliter un logement

SAUBAN

24500 EYMET - Dordogne - Nouvelle-Aquitaine
Lauréat régional

BÂTIMENT / LOGEMENT

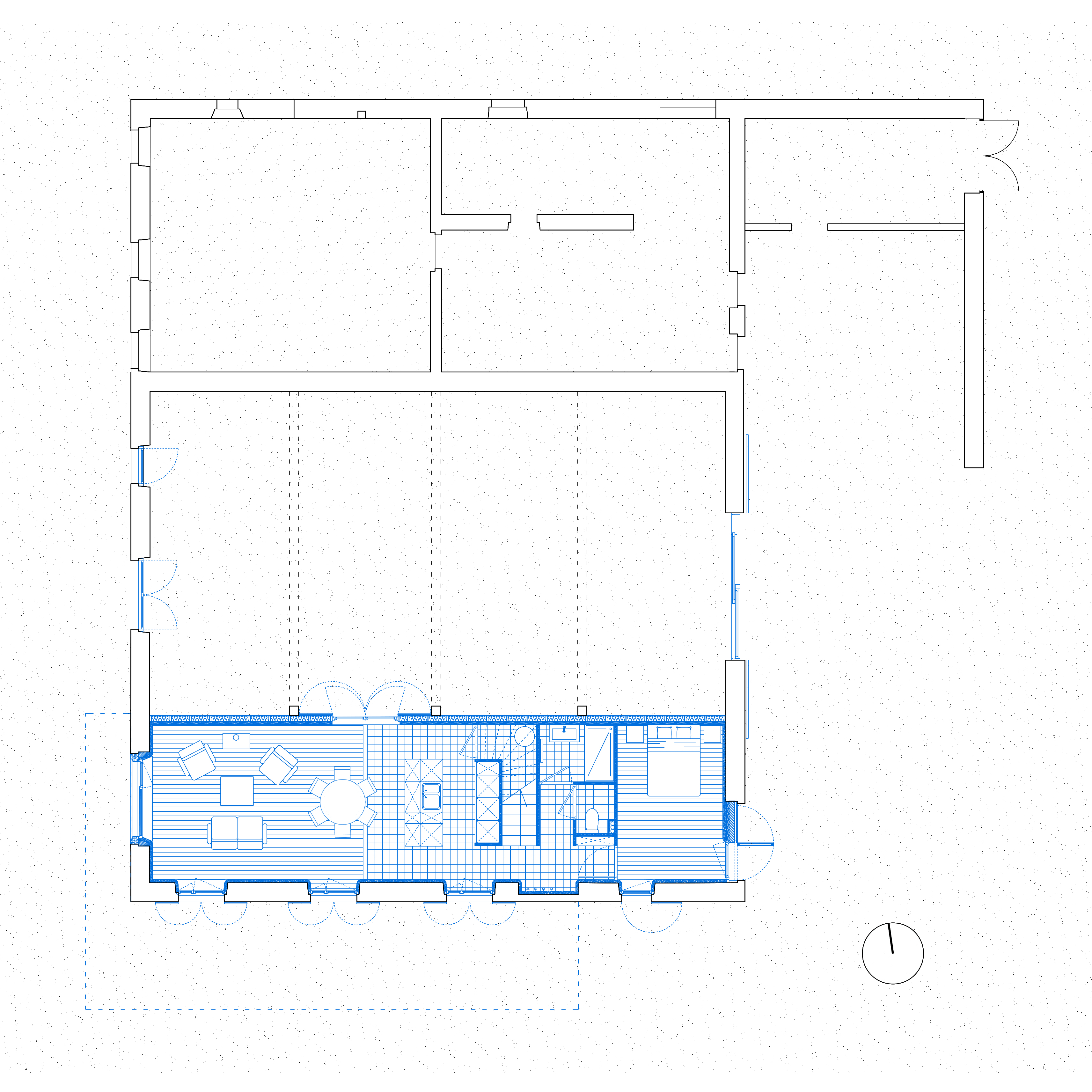
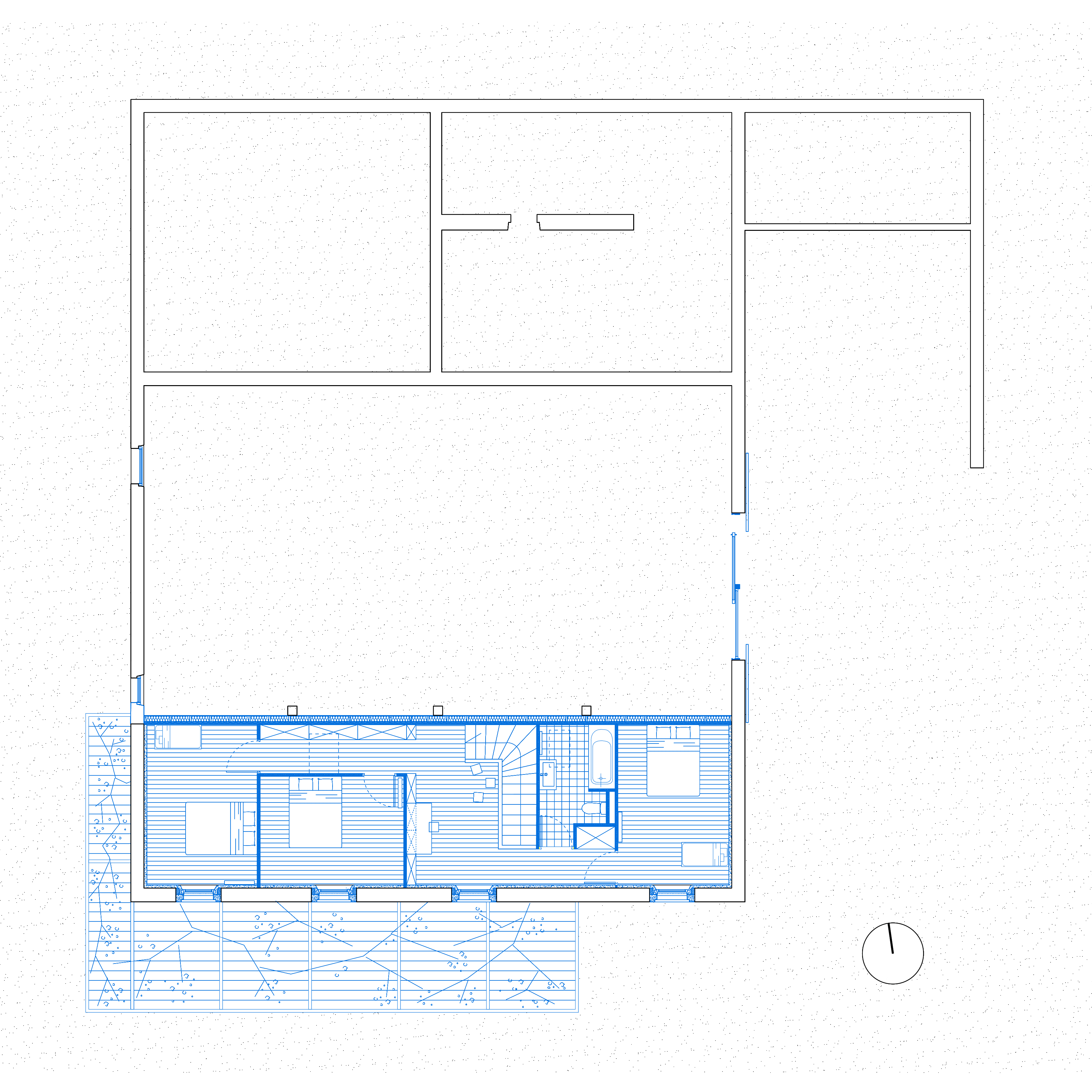
Le projet s'installe dans une ancienne grange familiale. Du fait de l'ampleur du bâti existant, le logement s’installe dans la grange sous la forme d’une sculpture minimaliste en bois venant se glisser derrière les fermes et poteaux en chêne et peuplier constituant la charpente existante. Seul le volume du logement est isolé, le reste de la grange n'est pas chauffé et constitue un espace inter-climatique aux usages évoluant selon les saisons ; jeux, atelier, fêtes expos ... L’intervention vise à se distinguer du déjà-là pour instaurer un dialogue entre bâti existant et bâti rapporté.

Catégorie Bâtiment / logement
Numéro de projet7313
Date de candidature11/01/2023

Bâtiment / logement

Détail projet

Typologie de bâtiment : Rénovation / Réhabilitation
Type de bâtiment : Logement individuel inférieur 120 m²
Année de livraison : 2022
Surface totale du bâtiment en m² : 260
Dont extension / surélévation en m² : 115
Coût total en € HT (hors foncier, hors VRD, hors honoraires) : 205000
Lot bois n°1 concerné : Charpente bois
Volume lot bois n°1 - m³ : 15
Coût du lot bois n°1 - € HT : 40000
Lot bois n°2 concerné : ossature bois
Volume lot bois n°2 - m³ : 8
Coût du lot bois n°2 - € HT : 20000
Bois Français : oui
Matériaux issus du ré-emploi (préciser dans le descriptif technique) : non
Isolations biosourcées (préciser dans le descriptif technique) : oui
Matériaux géosourcés (préciser dans le descriptif technique) : non
Finitions intéreures biosourcées ou géosourcées (préciser dans le descriptif technique) : oui

Structure bois du bâtiment

Structure verticale :

ProduitEssenceProvenances (lieu de croissance du bois)Traitements de préservationMarque et certification produit
Panneau ossature boisTempéréCentre-Val-de-LoireAucun traitementJe n'ai pas l'information

Structure horizontale :

ProduitEssenceProvenances (lieu de croissance du bois)Traitements de préservationMarque et certification produit
Solivage traditionnelTempéréNouvelle-AquitaineJe n'ai pas l'informationJe n'ai pas l'information

Charpente :

ProduitEssenceProvenances (lieu de croissance du bois)Traitements de préservationMarque et certification produit
Charpente traditionnelleTempéréCentre-Val-de-LoireJe n'ai pas l'informationJe n'ai pas l'information

Revêtement bois extérieur

Revêtement bois ou dérivés :

ProduitEssenceProvenances (lieu de croissance du bois)Marque et certification produitFinitionTraitements de préservation
Panneau bois massif contrecolléTempéréPEFCAucune finitionJe n'ai pas l'information

Menuiserie intérieure et extérieure

Menuiserie intérieure :

ProduitEssenceProvenances (lieu de croissance du bois)FinitionMarque et certification produit
EscalierTempéréNouvelle-AquitaineLasureJe n'ai pas l'information
ParquetTempéréNouvelle-AquitaineAutres Marques de territoire (à préciser dans le texte)

Menuiserie extérieure :

ProduitEssenceProvenances (lieu de croissance du bois)Marque et certification produitFinition
Menuiserie boisTropicalAfriqueJe n'ai pas l'informationJe n'ai pas l'information
Volet boisTempéréNouvelle-AquitaineJe n'ai pas l'informationJe n'ai pas l'information

Isolation des murs

Isolation intérieure des murs :

Produit
Béton de chanvre
Epaisseur (mm) Isolation intérieure des murs : 140

Isolation entre-montant des murs :

Produit
Fibre de bois (Panneaux)
Epaisseur (mm) Isolation entre-montant des murs : 145

Isolation de la toiture

Epaisseur (mm) Isolation intérieure de la toiture : 300

Approche environnementale : En résonnance avec les éléments déjà en place, un travail a été mené sur le choix de matériaux peu transformés, locaux, et mis en œuvre à l'aide des savoir-faires traditionnels. Ainsi, la structure du logement est en ossature bois français, et l'ensemble des finitions intérieures proviennent de la scierie de Vallereuil installée près de Bergerac. Les tomettes ont été fabriquées pour le projet à la briqueterie du Fleix situé à moins de 30 km. L'isolation des murs existant en pierre a été réalisé en chaux-chanvre banché, deux matériaux produits et transformés localement.

Descriptif technique : Afin de profiter des apports solaires, le projet a été placé contre la façade Sud de la grange. Les ouvertures ont été élargies pour maximiser l'éclairement. La façade Nord donne dans la grange permettant ainsi une ventilation naturelle, celle-ci restant fraîche l'été. Le principe de la "boîte dans la boîte" nous a permis de maîtriser les proportions du volume habitable. Seul ce volume est isolé, le reste de la grange constitue quant à lui un espace inter-climatique, aux usages évolutifs selon les saisons. Les murs en pierre ont été isolés avec un chaux chanvre banché. Il permet de conserver l'inertie tout en laissant respirer les murs. Aucun système de chauffe n'a encore été installé. Seul un convecteur d'appoint 1000w portatif est nécessaire en cas de temps couvert prolongé.

Chauffage au Bois : non
Données déclaratives

Acteurs du projet

Maître d'ouvrage (1)

Maître d'ouvrage - Particuliers

particulier (x)

Etudes et ingénieries (2)

Maître d'œuvre - Architecte mandataire

FLEUVE ARCHI (24)

Bureau d'études thermique

CREA LEAD (34)

Entreprises des lots bois (2)

Charpentier

ROUSSILLE CHARPENTE (47)

Menuisier

VALOGNES MENUISERIE (47)

Fournisseurs du bois (1)

Scierie

Scierie Parqueterie de VALLEREUIL (24)




* : L'entreprise n'est plus active
Retour à la liste