Réhabiliter un équipement

La Station M

38000 GRENOBLE - Isère - Auvergne-Rhône-Alpes

BÂTIMENT / LOGEMENT

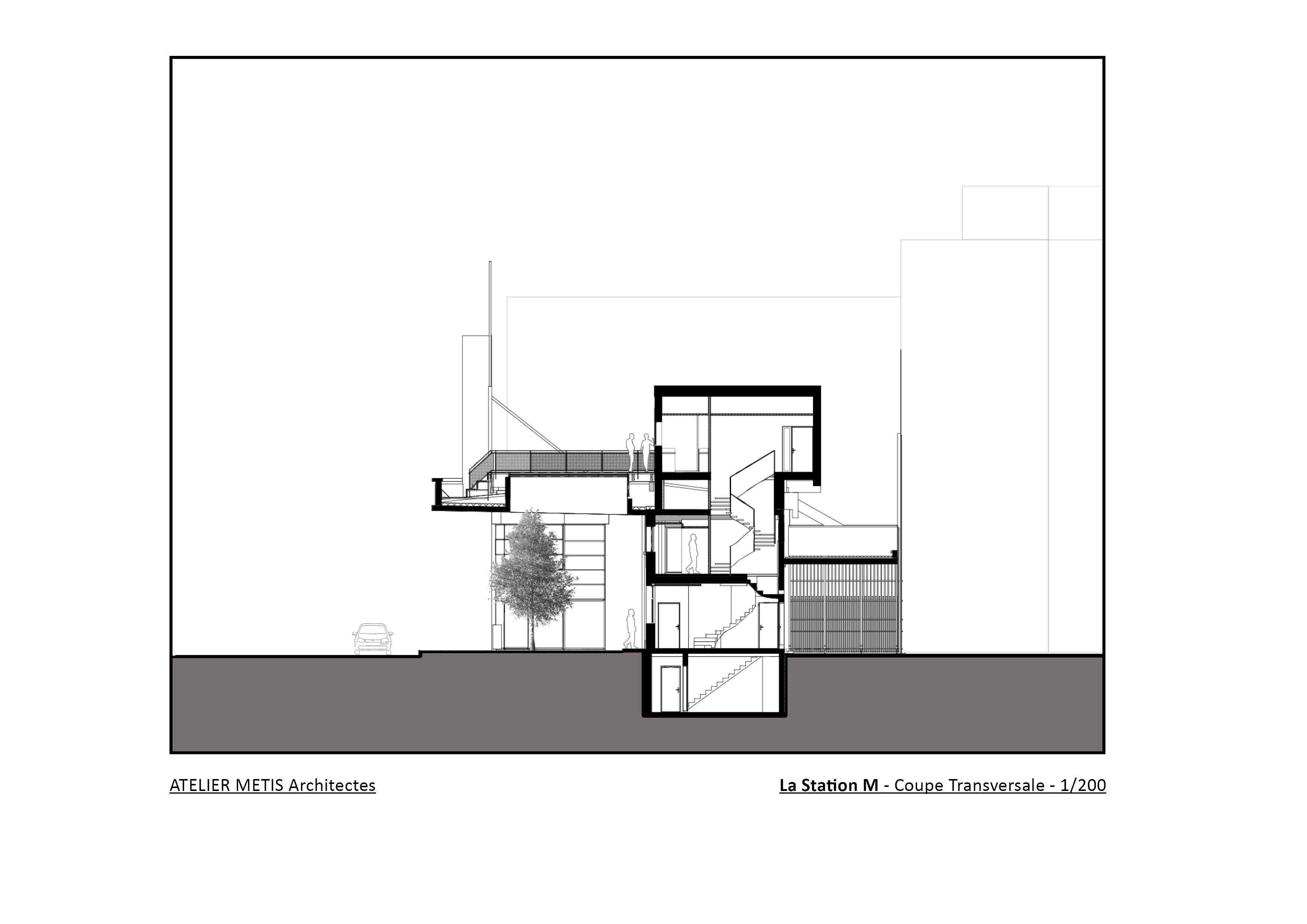
C’est un ancien garage des années 30, à l’abandon, Route de Lyon. Eventré, décharné, il n’en est pas moins remarquable avec son auvent de 8m en porte-à-faux qui le classe parmi les bâtiments patrimoniaux du XX ème siècle. Pour panser ses plaies, nous avons réalisé un travail chirurgicale de couture, grâce aux performances offertes par le matériau bois : plancher en pin massif, volumes suspendus habillés de résilles en fraqué, escalier en chêne, plafonds acoustiques en tasseaux et larges châssis vitrés, associés au « béton planchette » d’origine, donnent un second souffle à la STATION M.

Catégorie Bâtiment / logement
Numéro de projet7300
Adresse du projet 55 Route de Lyon
38000 GRENOBLE
Date de candidature09/01/2023

Bâtiment / logement

Détail projet

Typologie de bâtiment : Rénovation / Réhabilitation
Type de bâtiment : Lieu d'entreprise
Année de livraison : 2021
Surface totale du bâtiment en m² : 830
Dont extension / surélévation en m² : 114
Coût total en € HT (hors foncier, hors VRD, hors honoraires) : 968501
Lot bois n°1 concerné : Charpente bois
Volume lot bois n°1 - m³ : 40
Coût du lot bois n°1 - € HT : 223700
Lot bois n°2 concerné : Menuiserie intérieure bois
Volume lot bois n°2 - m³ : 10
Coût du lot bois n°2 - € HT : 104200
Bois Français : oui
Matériaux issus du ré-emploi (préciser dans le descriptif technique) : non
Isolations biosourcées (préciser dans le descriptif technique) : oui
Matériaux géosourcés (préciser dans le descriptif technique) : non
Finitions intéreures biosourcées ou géosourcées (préciser dans le descriptif technique) : oui

Structure bois du bâtiment

Structure verticale :

ProduitEssenceProvenances (lieu de croissance du bois)Traitements de préservationMarque et certification produit
Panneau ossature boisTempéréAuvergne-Rhône-AlpesTraitement Classe 2 (trempage)Marques de territoire (à préciser dans le texte)

Structure horizontale :

ProduitEssenceProvenances (lieu de croissance du bois)Traitements de préservationMarque et certification produit
Solivage traditionnelTempéréAuvergne-Rhône-AlpesJe n'ai pas l'informationMarques de territoire (à préciser dans le texte)

Charpente :

ProduitEssenceProvenances (lieu de croissance du bois)Traitements de préservationMarque et certification produit
Caisson de toitureTempéréAuvergne-Rhône-AlpesTraitement Classe 2 (trempage)Marques de territoire (à préciser dans le texte)

Revêtement bois extérieur

Revêtement bois ou dérivés :

ProduitEssenceProvenances (lieu de croissance du bois)Marque et certification produitFinitionTraitements de préservation
Lame bois massifTempéréFranceBois de FranceAucune finitionTraitement Classe 4 (autoclave)

Autre revêtement métallique :

Produit
Zinc

Menuiserie intérieure et extérieure

Menuiserie intérieure :

ProduitEssenceProvenances (lieu de croissance du bois)FinitionMarque et certification produit
MobilierTempéréAuvergne-Rhône-AlpesAutres Marques de territoire (à préciser dans le texte)
EscalierTempéréEuropeLasurePEFC

Isolation des murs

Epaisseur (mm) Isolation intérieure des murs : 50
Epaisseur (mm) Isolation entre-montant des murs : 180
Epaisseur (mm) Isolation extérieure des murs : 13

Isolation de la toiture

Epaisseur (mm) Isolation intérieure de la toiture : 100
Epaisseur (mm) Isolation entre-montant de la toiture : 180

Approche environnementale : Réhabiliter, c’est relever le défi de la valorisation d’une architecture des années 30, sans confort. Le bois est utilisé pour ses capacités structurelle, isolante, acoustique et environnementale. Sur le auvent est installé une nappe en pin maritime, vaste terrasse face à la Bastille, qui crée une ombrière efficiente pour lutter contre la chaleur estivale. La cafétéria prend place sur ce « roof-top », totem original en ossature et laine de bois ciselé de zinc. Les bois de construction sont certifiés « Bois des Alpes », valorisant le circuit court et la faible empreinte carbone de cette réhabilitation.

Descriptif technique : Choisir de rapporter des structures bois dans un bâtiment en béton, déjà ancien, c’est faire le choix de structures légères, plus faciles à accepter pour les descentes charges. Nous décidons d’utiliser le bois pour toutes les structures rapportées : • Murs à ossatures bois et caissons de toiture pour l’extension en toit-terrasse • Solivage et terrasse bois pour le roof top, • Solivage et Planchers bois pour les niveaux intérieurs rapportés. Nous décidons de laisser le bois apparent pour le valoriser, pour montrer les techniques constructives choisies. C’est aussi notre volonté de valoriser les métiers du bâtiment et les compagnons qui mettent les matériaux en œuvre. Le Roof Top a été préfabriqué en atelier, en 2D, et assemblé sur site. L’habillage zinc à été réalisé sur site.

Chauffage au Bois : non
Certifications, labels et marques bâtiment : Bois de France
Données déclaratives

Acteurs du projet

Maître d'ouvrage (1)

Maître d'ouvrage - Industriels - commerçants - entreprise

ATELIER METIS (38)

Etudes et ingénieries (5)

Maître d'œuvre - Architecte mandataire

ATELIER METIS (38)

Bureau d'études structure bois

SORAETEC (38) *

Bureau d'études environnement

CANOPEE (38)

Bureau d'études thermique

CET BATIMENT ET ENERGIE (38)

Paysagiste

H2MPC (38)

Entreprises des lots bois (3)

Charpentier

SOCIETE DAUPHINOISE DE CHARPENTE COUVERTURE (SDCC) (38)

Menuisier

SUSCILLON (38)
CBMA CONCEPT BOIS MENUISERIE ASSO (38)

Fournisseurs du bois (3)

Scierie

SCIERIE BOIS DU DAUPHINE (38)
SCIERIE BLANC (26)

Industriel

PIVETEAU SARL (16)




* : L'entreprise n'est plus active
Retour à la liste