Habiter une maison
Habiter une maison

Maison des Fauconnelles

19130 Voutezac - Corrèze - Nouvelle-Aquitaine

BÂTIMENT / LOGEMENT

L’objectif : Offrir à la location une maison individuelle à très haute performance énergétique, s’intégrant dans le paysage et l’histoire architecturale du village médiéval de Voutezac. Le volume du bâtiment d’habitation, très ramassé, reprend par sa forme et ses dimensions celui d’une grange. Les matériaux extérieurs protègent au mieux l’habitation tout en respectant l’histoire locale: ardoise naturelle, bardage de douglas laissé à griser, enduit terre/chaux. Seule petite note contemporaine : la dimension et la couleur bleue des menuiseries extérieures.

Catégorie Bâtiment / logement
Numéro de projet729
Date de candidature10/04/2018

Bâtiment / logement

Détail projet

Typologie de bâtiment : Neuf
Type de bâtiment : Logement individuel supérieur à 120 m²
Année de livraison : 2017
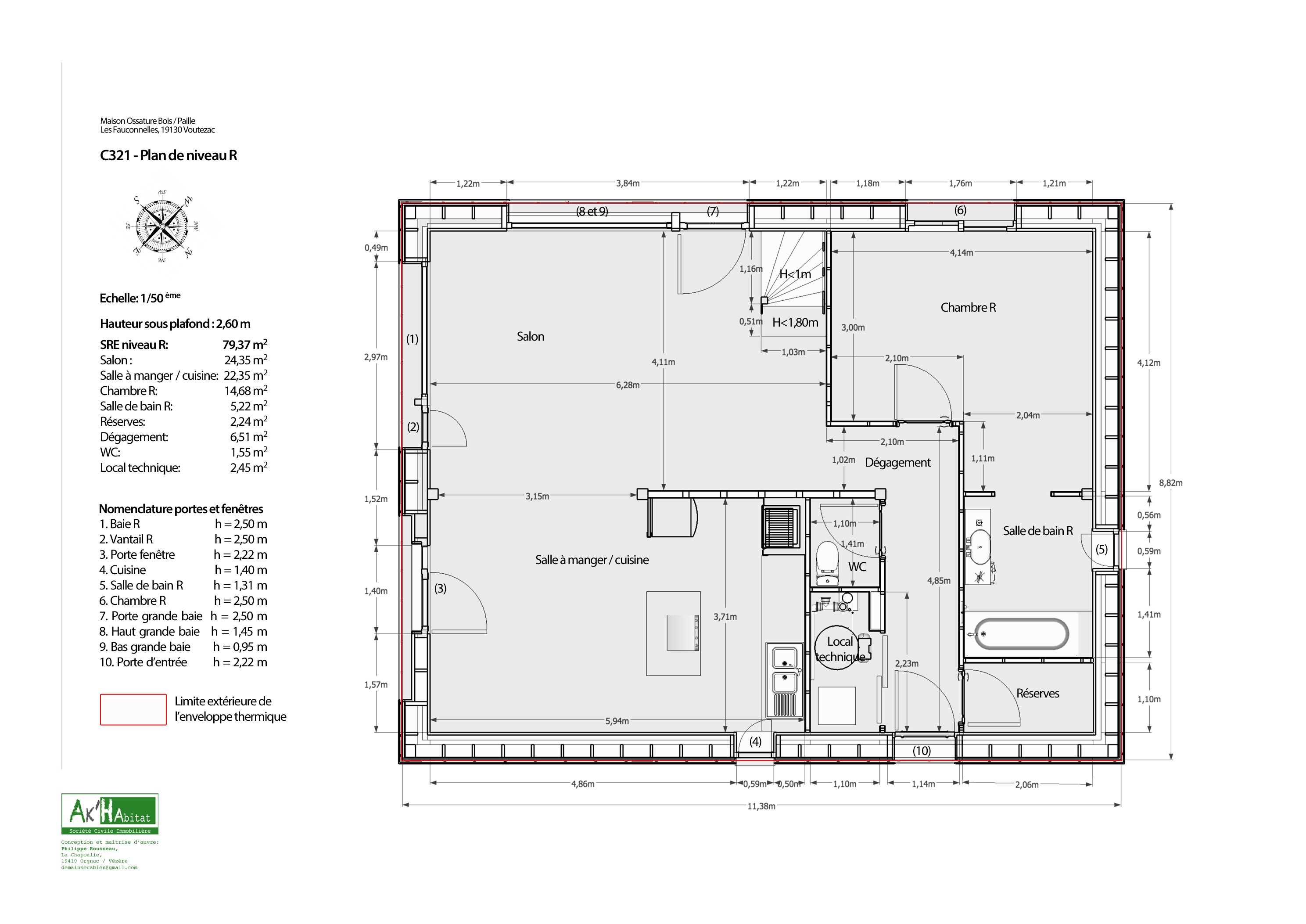
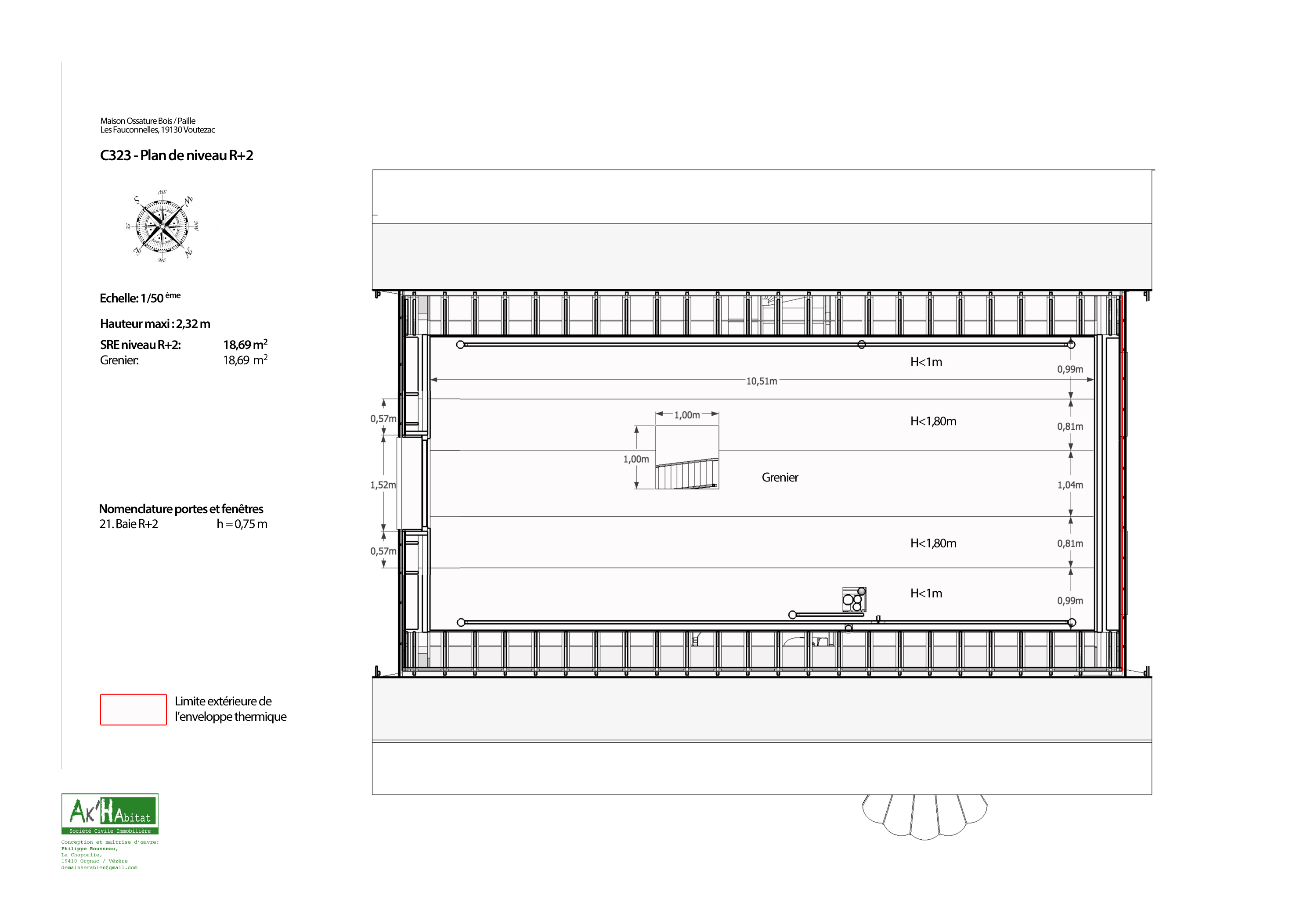
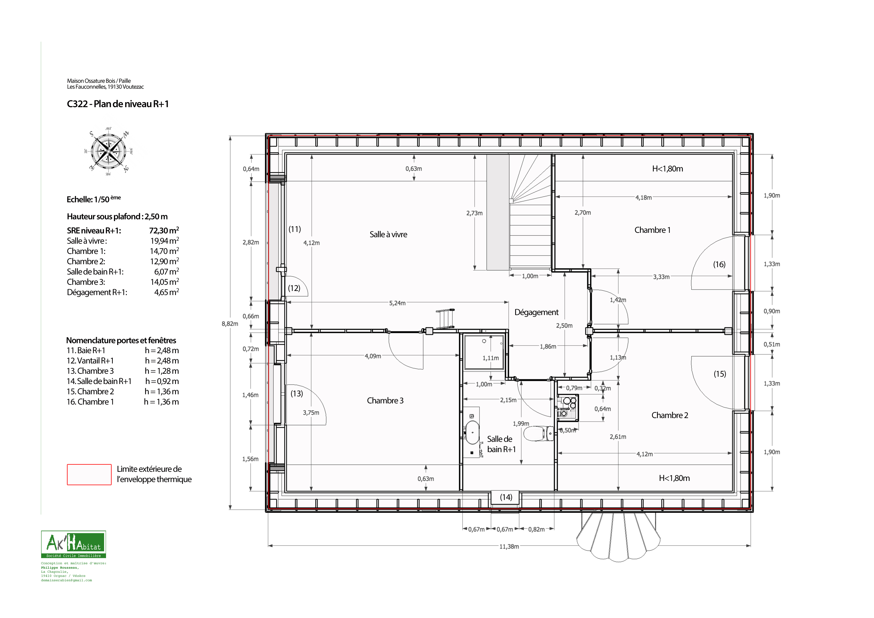
Surface totale du bâtiment en m² : 176
Coût total en € HT (hors foncier, hors VRD, hors honoraires) : 96497
Lot bois n°1 concerné : ossature bois
Volume lot bois n°1 - m³ : 30.22
Coût du lot bois n°1 - € HT : 8463
Lot bois n°2 concerné : Bardage bois
Volume lot bois n°2 - m³ : 8.49
Coût du lot bois n°2 - € HT : 2377
Bois Français : non

Structure bois du bâtiment

Structure verticale :

ProduitEssenceProvenances (lieu de croissance du bois)Traitements de préservationMarque et certification produit
Panneau ossature boisDouglasNouvelle-AquitaineAucun traitement

Structure horizontale :

ProduitEssenceProvenances (lieu de croissance du bois)Traitements de préservationMarque et certification produit
Dalle boisDouglasNouvelle-AquitaineAucun traitement

Charpente :

ProduitEssenceProvenances (lieu de croissance du bois)Traitements de préservationMarque et certification produit
Caisson de toitureDouglasNouvelle-AquitaineAucun traitement

Revêtement bois extérieur

Revêtement bois ou dérivés :

ProduitEssenceProvenances (lieu de croissance du bois)Marque et certification produitFinitionTraitements de préservation
Bardeau boisDouglasNouvelle-AquitaineAucune finitionAucun traitement

Revêtement minéral :

Produit
Enduit ciment

Menuiserie intérieure et extérieure

Menuiserie extérieure :

ProduitEssenceProvenances (lieu de croissance du bois)Marque et certification produitFinition
Menuiserie boisMélèzeEuropePeinture

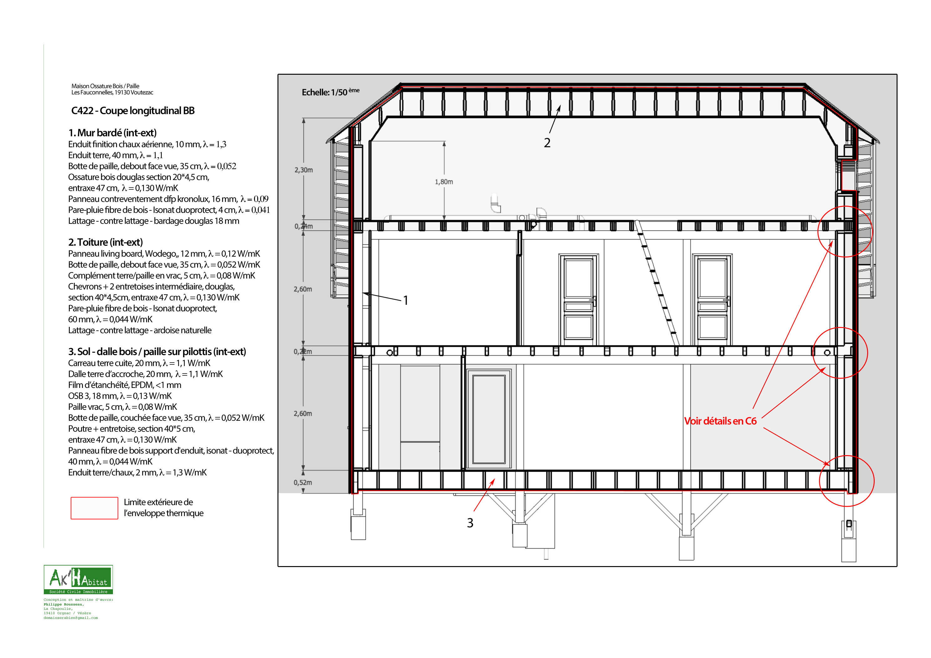
Isolation des murs

Isolation intérieure des murs :

Produit
Paille
Epaisseur (mm) Isolation intérieure des murs : 60

Isolation entre-montant des murs :

Produit
Paille
Epaisseur (mm) Isolation entre-montant des murs : 350

Isolation extérieure des murs :

Produit
Fibre de bois (Panneaux)
Epaisseur (mm) Isolation extérieure des murs : 40

Isolation de la toiture

Epaisseur (mm) Isolation entre-montant de la toiture : 350
Epaisseur (mm) Isolation extérieure de la toiture : 60

Approche environnementale : La construction en matériaux locaux et bio-sourcés, sur pilotis, limite l’empreinte écologique (incluant une démolition complète et sans déchets) et supprime tout travaux de terrassement. Elle permet la mise en œuvre d’une enveloppe isolante continue et homogène, supprimant tous ponts thermiques, gage d’un très haut niveau de performance énergétique (besoin de chauffage < à 10 kWh/m2/an). Les deux faces largement vitrées sont orientées afin de capter un maximum de soleil en hivers tout en étant, pour la face la plus ouverte, placée à l’abri du vent.

Descriptif technique : Ossature douglas de haute Corrèze, remplissage bottes de paille, sur-isolation et habillage des ponts thermiques en fibre de bois (40 mm mur et dalle, 60 mm toiture). Inertie intérieure : 60 mm de torchis sur tous les murs de l’enveloppe. Plancher chêne et châtaignier. Cloison ossature bois/fibre de bois/Fermacell. VMC double flux très haut rendement, chauffe eau solaire. Chauffage par 2 sèche-serviettes et 1 radiateur électrique (1000 W). Maison conçue sur logiciel PHPP et maquette 3D SketchUp pour optimiser les coûts et faciliter l’auto-construction, une méthodologie mise au point par l’association E-coco pour l’accompagnement d’auto-constructeur. Maison Haute Performance Energétique

Chauffage au Bois : non
Certifications, labels et marques bâtiment : Maison Haute Performance Energétique
Données déclaratives

Acteurs du projet

Etudes et ingénieries (2)

Maître d'œuvre - Architecte mandataire

Pierre Briolant (19)
E-coco (19)

Fournisseurs du bois (2)

Scierie

Scierie - exploitation forestière, Estaurges Laurent (19)

Industriel

Novibois (19) *




* : L'entreprise n'est plus active
Retour à la liste