Réhabiliter un logement
Réhabiliter un logement

GENETTES

61270 LES GENETTES - Orne - Normandie

BÂTIMENT / LOGEMENT

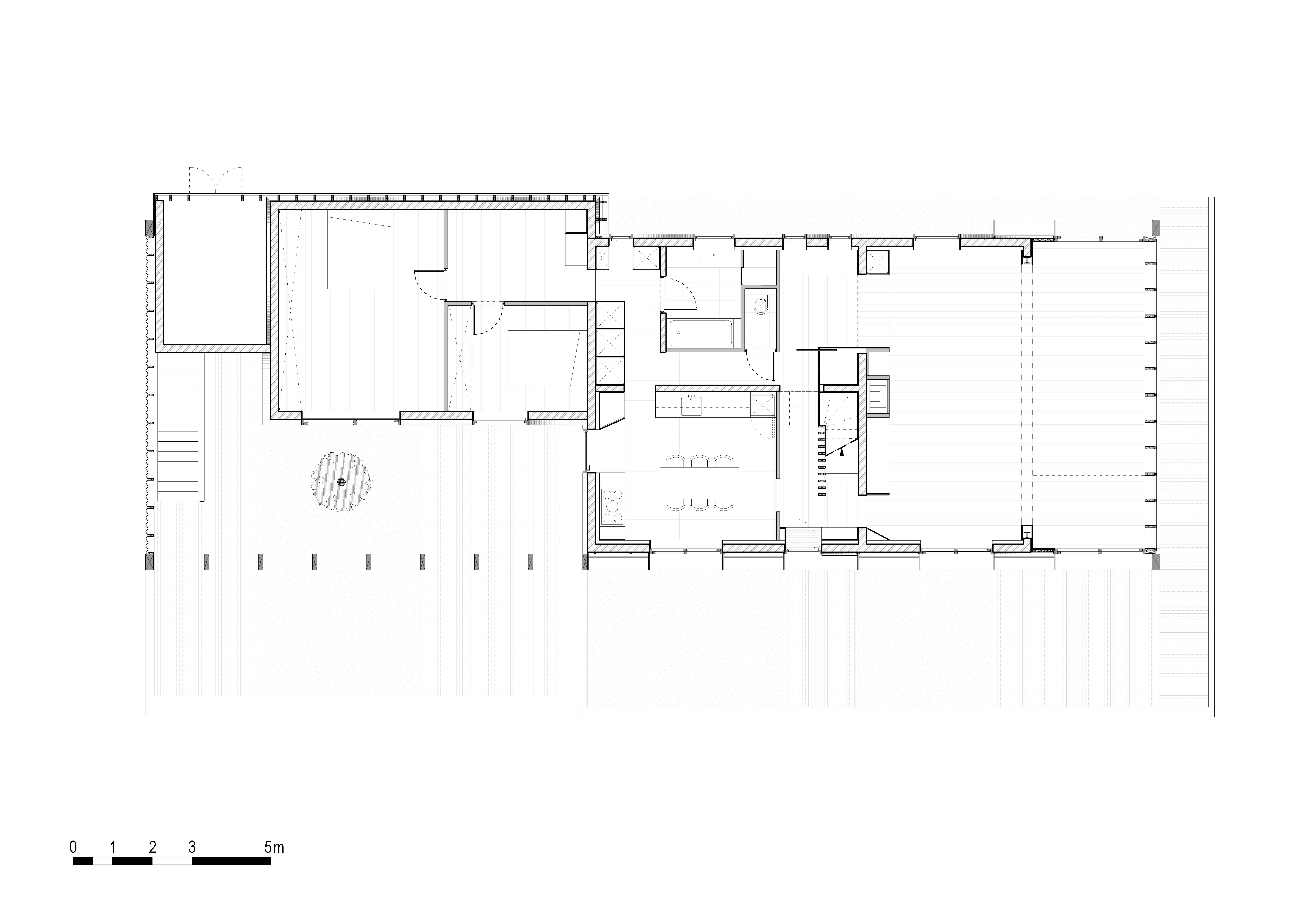
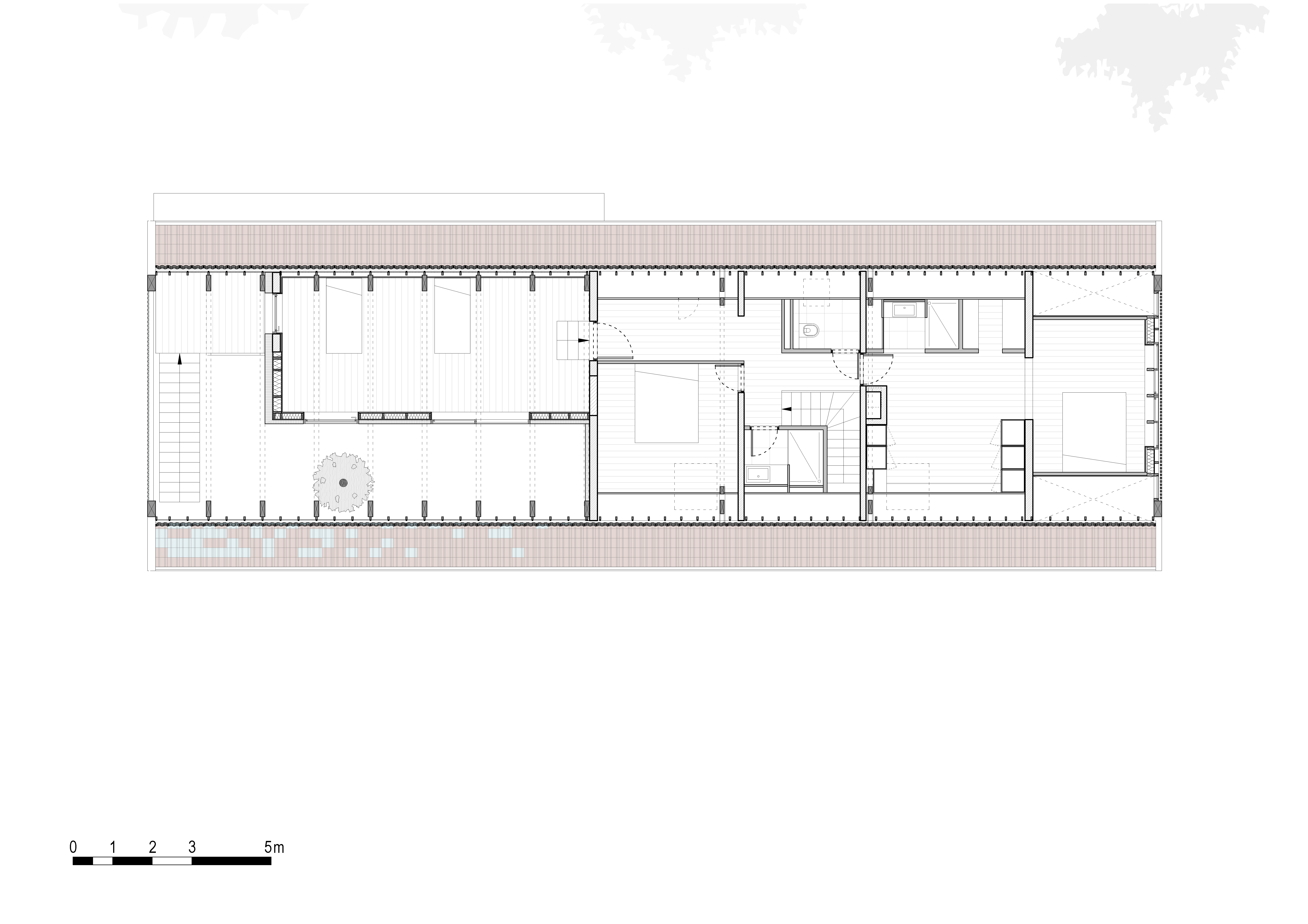
Une maison Phénix isolée au centre d'une clairière demande à être rénovée. Les propriétaires ont d'abord pensé à une démolition / reconstruction. La proposition consistait à conserver au maximum la maison existante tout en la modifiant considérablement pour en améliorer l'esthétique et le confort. Les volumes hétérogènes de la maison existante ont été rassemblés sous une toiture neuve en prolongation de celle du corps central. Le résultat final offre une maison unifiée avec charpente et bardages bois apparents et ouverte sur une large terrasse en bois qui vient souligner le paysage.

Catégorie Bâtiment / logement
Numéro de projet7276
Date de candidature03/01/2023

Bâtiment / logement

Détail projet

Typologie de bâtiment : Extension / surélévation,Rénovation / Réhabilitation
Type de bâtiment : Logement individuel supérieur à 120 m²
Année de livraison : 2022
Surface totale du bâtiment en m² : 223
Dont extension / surélévation en m² : 65
Coût total en € HT (hors foncier, hors VRD, hors honoraires) : 346000
Lot bois n°1 concerné : Charpente bois,Bardage bois,ossature bois,Autre lot bois
Volume lot bois n°1 - m³ : 25
Coût du lot bois n°1 - € HT : 42000
Lot bois n°2 concerné : Menuiserie intérieure bois,Menuiserie extérieure bois
Bois Français : oui
Matériaux issus du ré-emploi (préciser dans le descriptif technique) : non
Isolations biosourcées (préciser dans le descriptif technique) : non
Matériaux géosourcés (préciser dans le descriptif technique) : non
Finitions intéreures biosourcées ou géosourcées (préciser dans le descriptif technique) : non

Structure bois du bâtiment

Structure verticale :

ProduitEssenceProvenances (lieu de croissance du bois)Traitements de préservationMarque et certification produit
Poteau poutreDouglasFranceTraitement Classe 3b (autoclave)PEFC

Structure horizontale :

ProduitEssenceProvenances (lieu de croissance du bois)Traitements de préservationMarque et certification produit
Solivage traditionnelDouglasFranceTraitement Classe 4 (autoclave)PEFC

Charpente :

ProduitEssenceProvenances (lieu de croissance du bois)Traitements de préservationMarque et certification produit
Charpente traditionnelleDouglasFranceTraitement Classe 4 (autoclave)PEFC

Revêtement bois extérieur

Revêtement bois ou dérivés :

ProduitEssenceProvenances (lieu de croissance du bois)Marque et certification produitFinitionTraitements de préservation
Lame bois massifDouglasFrancePEFCAucune finitionTraitement Classe 4 (autoclave)

Menuiserie intérieure et extérieure

Menuiserie intérieure :

ProduitEssenceProvenances (lieu de croissance du bois)FinitionMarque et certification produit
MobilierFrêneAutres Je n'ai pas l'information
ParquetChêneAutres Je n'ai pas l'information

Menuiserie extérieure :

ProduitEssenceProvenances (lieu de croissance du bois)Marque et certification produitFinition
Menuiserie boisChêneJe n'ai pas l'informationJe n'ai pas l'information

Isolation des murs

Isolation entre-montant des murs :

Produit
Laine de verre
Epaisseur (mm) Isolation entre-montant des murs : 150

Isolation extérieure des murs :

Produit
Polystyrène
Epaisseur (mm) Isolation extérieure des murs : 100

Isolation de la toiture

Epaisseur (mm) Isolation entre-montant de la toiture : 200

Approche environnementale : La maison existante était très vétuste. Les propriétaires ont envisagé de la démolir. Nous avons proposé une rénovation / surélévation permettant ainsi d'éviter le surcoût financier de la démolition. Ainsi, la conservation de la majeure partie de la maison a évité la production de déchets non recyclables. L'utilisation du bois pour la quasi totalité des travaux neufs a été choisie non seulement pour son aspect esthétique mais aussi pour des raisons environnementales. Enfin, l'agencement des volumes permet de mieux se protéger de la chaleur et de profiter d'espaces extérieurs toute l'année..

Descriptif technique : Hormis les interventions sur les murs porteurs intérieurs et les fondations de la nouvelle terrasse réalisées en béton, la totalité de la structure est en bois Douglas. Cette structure, laissée apparente, est traitée en classe 3.2. L'absence d'entrait sur les fermes de charpente a nécessité un travail sur les encastrements entre poteaux et arbalétriers. Dans la partie du jardin d'hiver (extérieure), la toiture n'est pas isolée. Certaines tuiles ont été remplacées par des tuiles de verre laissant passer la lumière et ainsi mettre en valeur la structure. Les remplissages sont réalisés en murs à ossature bois avec enduit minéral sur isolant extérieur, à l'exception du pignon Ouest dont le remplissage est en polycarbonate ondulé.

Chauffage au Bois : oui
Appareil de chauffage au bois : Poële/insert
Données déclaratives

Acteurs du projet

Maître d'ouvrage (1)

Maître d'ouvrage - Particuliers

particulier (x)

Etudes et ingénieries (2)

Maître d'œuvre - Architecte mandataire

Java architectes (75)

Bureau d'études structure bois

RAAI Ingénierie (75)

Entreprises des lots bois (2)

Charpentier

TREFIBOIS (61)

Menuisier

MENUISERIE GADEYNE (61)




* : L'entreprise n'est plus active
Retour à la liste