Habiter une maison
Habiter une maison

Maison bois à Lagord

17140 lagord - Charente maritime - Nouvelle-Aquitaine

BÂTIMENT / LOGEMENT

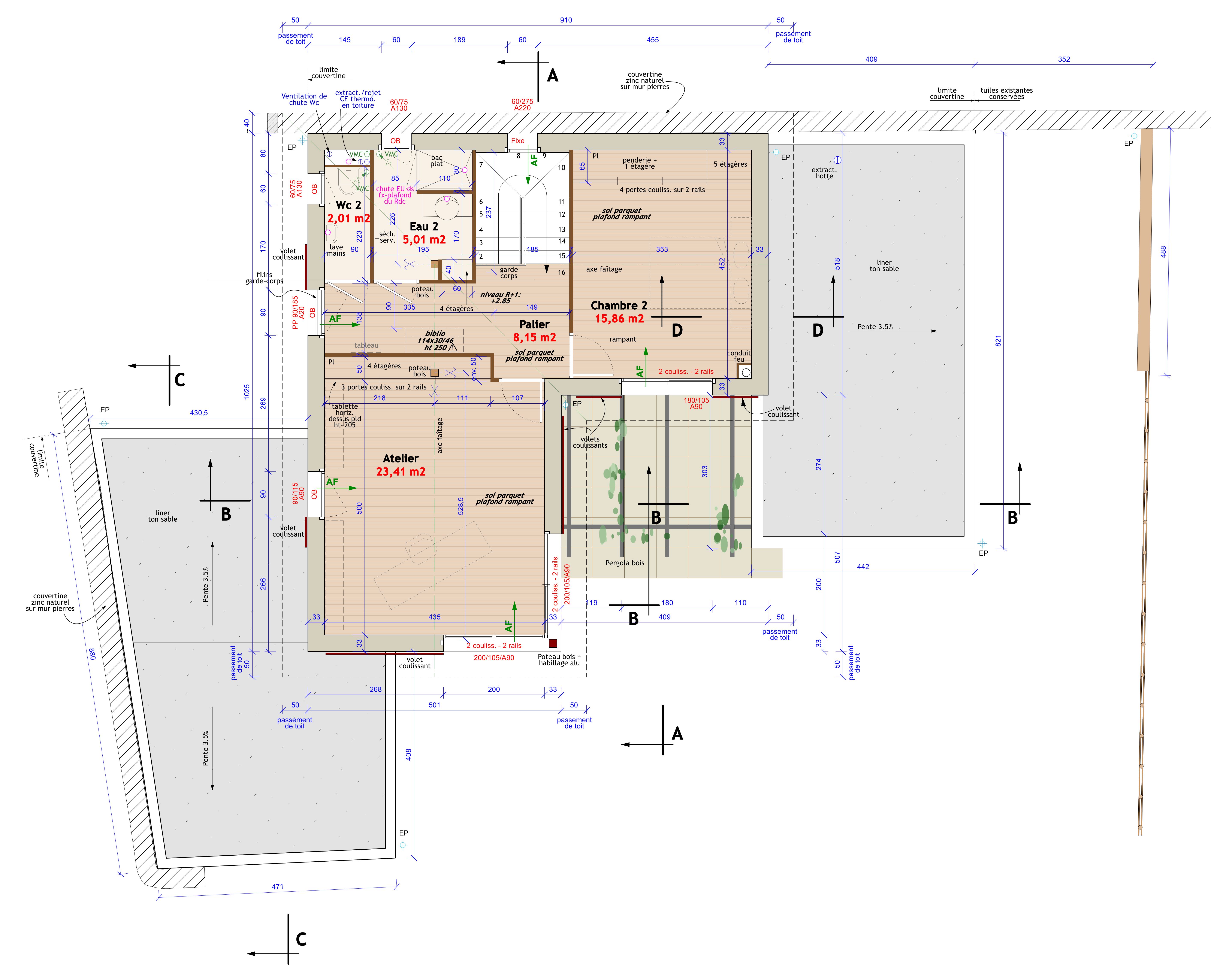
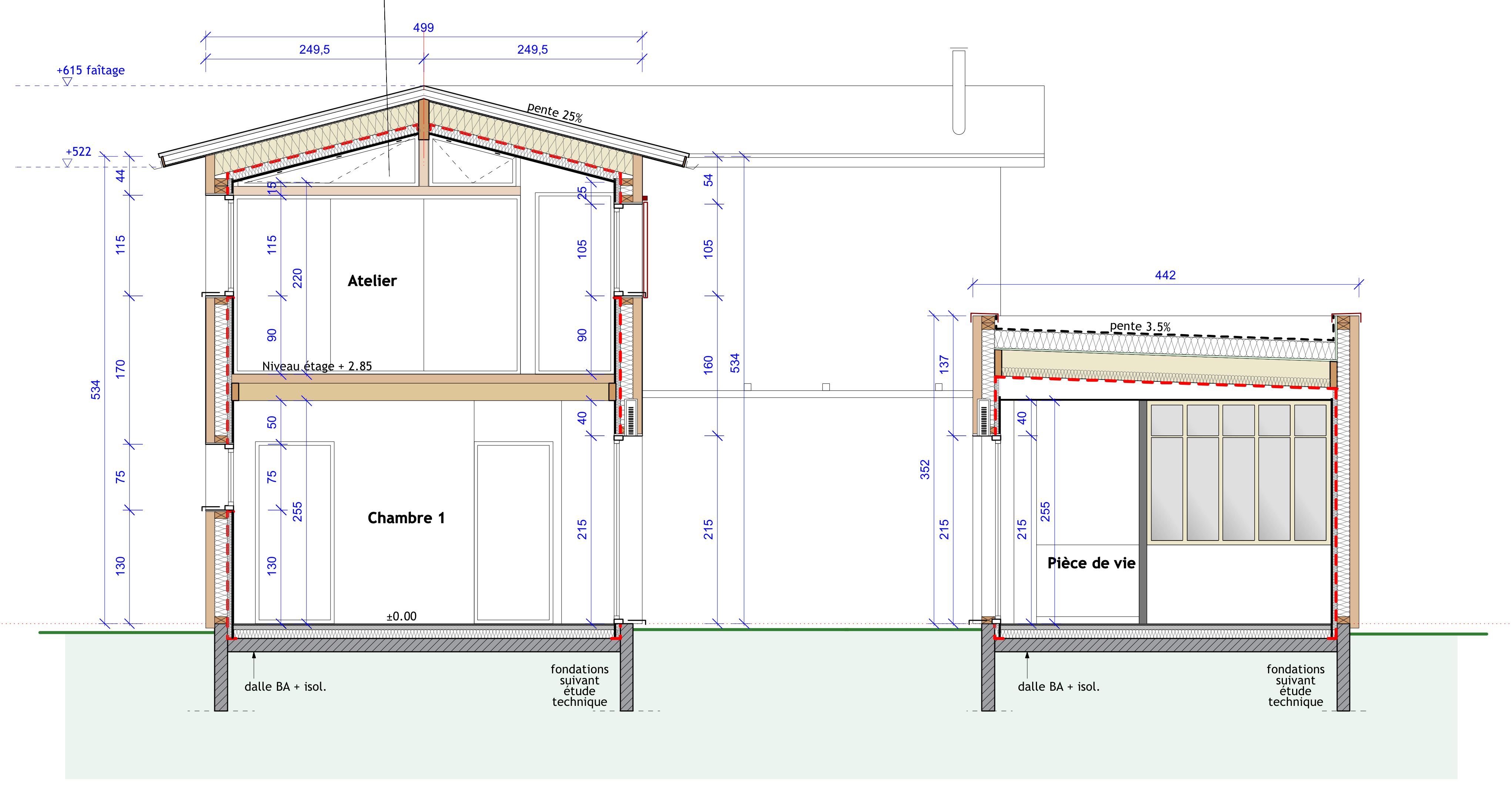
-Volumes rectangulaires sobres à étage partiel, couverture métallique à faible pente. Simplicité des volumes. -Implantation en limite de propriété Nord pour gagner de l'espace au Sud (jardin). -Bioclimatisme passif: larges ouvertures au sud , débord de toit . Inertie thermique par le fermacell. - Architecture contemporaine: menuiseries rouges, bardage bois en clins ajourés ton naturel avec pare-pluie rouge vif, toiture métallique, toit terrasse. - Conservation du mur pierre existant au Nord et à l'Ouest. - Accès parcelle en angle en grave compactée, ton sable (langage piétonnier).

Catégorie Bâtiment / logement
Numéro de projet723
Date de candidature05/04/2018

Bâtiment / logement

Détail projet

Typologie de bâtiment : Neuf
Type de bâtiment : Logement individuel supérieur à 120 m²
Année de livraison : 2018
Surface totale du bâtiment en m² : 140
Coût total en € HT (hors foncier, hors VRD, hors honoraires) : 250000
Lot bois n°1 concerné : Aucun
Lot bois n°2 concerné : Aucun
Bois Français : oui

Structure bois du bâtiment

Structure verticale :

ProduitEssenceProvenances (lieu de croissance du bois)Traitements de préservationMarque et certification produit
Panneau ossature boisSapin pectinéTraitement Classe 2 (trempage)

Structure horizontale :

ProduitEssenceProvenances (lieu de croissance du bois)Traitements de préservationMarque et certification produit
Solivage traditionnelSapin pectiné

Charpente :

ProduitEssenceProvenances (lieu de croissance du bois)Traitements de préservationMarque et certification produit
Caisson de toitureSapin pectinéTraitement Classe 2 (trempage)

Revêtement bois extérieur

Revêtement bois ou dérivés :

ProduitEssenceProvenances (lieu de croissance du bois)Marque et certification produitFinitionTraitements de préservation
Lame bois massifDouglasHuile pigmentéeTraitement Classe 3b (autoclave)

Menuiserie intérieure et extérieure

Menuiserie extérieure :

ProduitEssenceProvenances (lieu de croissance du bois)Marque et certification produitFinition
Menuiserie mixteÉpicéa communHuile

Isolation des murs

Isolation intérieure des murs :

Produit
Laine de bois souple
Epaisseur (mm) Isolation intérieure des murs : 50
Epaisseur (mm) Isolation entre-montant des murs : 145

Isolation de la toiture

Epaisseur (mm) Isolation entre-montant de la toiture : 340

Approche environnementale : -Omniprésence du bois: ossature murs, bardages, charpente, entresol... -Bioclimatisme passif: larges ouvertures au sud, cloisonnement en fermacell pour l'inertie thermique. -Vitrages sud à facteur solaire élevé : 0,66. -Isolants à faible énergie grise et à déphasage important : laine de bois, ouate de cellulose, fibre de bois compressée. -Compacité pour limiter les déperditions et assurer la stabilité thermique. -L'ensemble de la maison est chauffé par un poêle à pellets (bilan carbone neutre). - Présence de volets extérieurs coulissants en amélioration de la protection solaire d'été.

Descriptif technique : Dalle béton et carrelage au rdc pour améliorer l'inertie thermique. Murs en ossature 145/45 avec laine de bois (déphasage), et complément 50 mm de laine de bois en contre cloison. Charpente par panne en lamellé collé centrale et chevrons planches 340/45 formant des caissons d'injection de ouate de cellulose (déphasage). Présence du bois aussi pour l'entresol rdc/r+1, avec solives sapin apparentes en sous face, et traitement acoustique par OSB, puis fibre de bois et fermasol, le tout en pose flottante. Le fermacell est présent aussi en murs / plafonds, en plaque de 18mm (inertie thermique).

Chauffage au Bois : oui
Appareil de chauffage au bois : Poële/insert
Données déclaratives

Acteurs du projet

Maître d'ouvrage (1)

Maître d'ouvrage - Particuliers

particulier (x)

Etudes et ingénieries (3)

Maître d'œuvre - Architecte mandataire

METISSE ARCHITECTURE (79)

Bureau d'études structure bois

B.A.-BOIS BUREAU D'ETUDE TECHNIQUE ATLANTIQUE BOIS (79)

Bureau d'études thermique

Sarl Ace (79)

Entreprises des lots bois (4)

Charpentier

SARL BETIN ET COMPAGNIE (86)

Menuisier

SARL BETIN ET COMPAGNIE (86)

Constructeur bois

SARL BETIN ET COMPAGNIE (86)

Autre lot de la construction (en lien avec le bois)

LAURENDEAU (79) *




* : L'entreprise n'est plus active
Retour à la liste