Aménager
Aménager

Agencement accueil périscolaire/ALSH du Plessis Grammoire

49124 Le plesssis grammoire - Maine et Loire - Pays de la Loire
Lauréat régional
Finaliste national

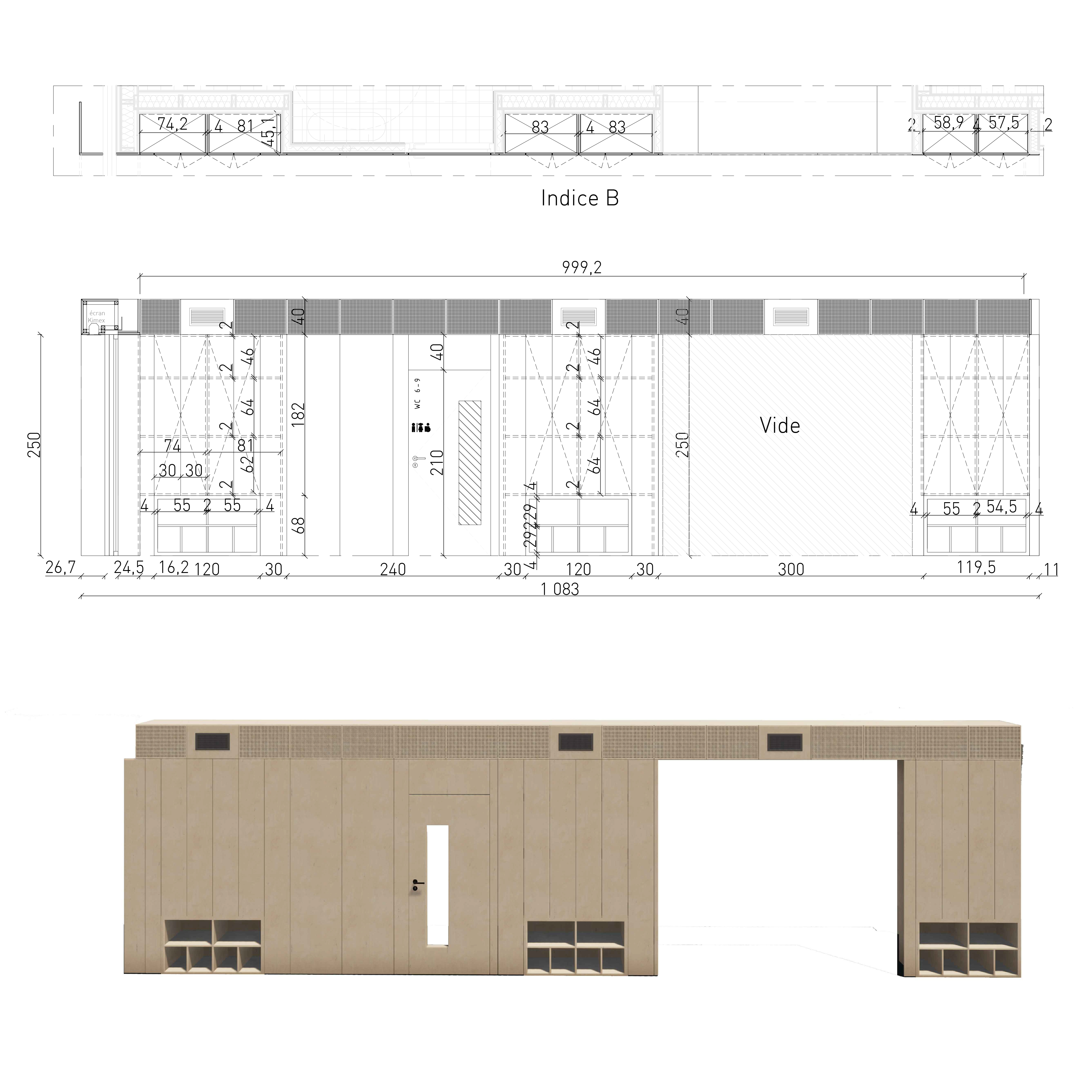
AMÉNAGEMENT BOIS

Aménagement intérieur

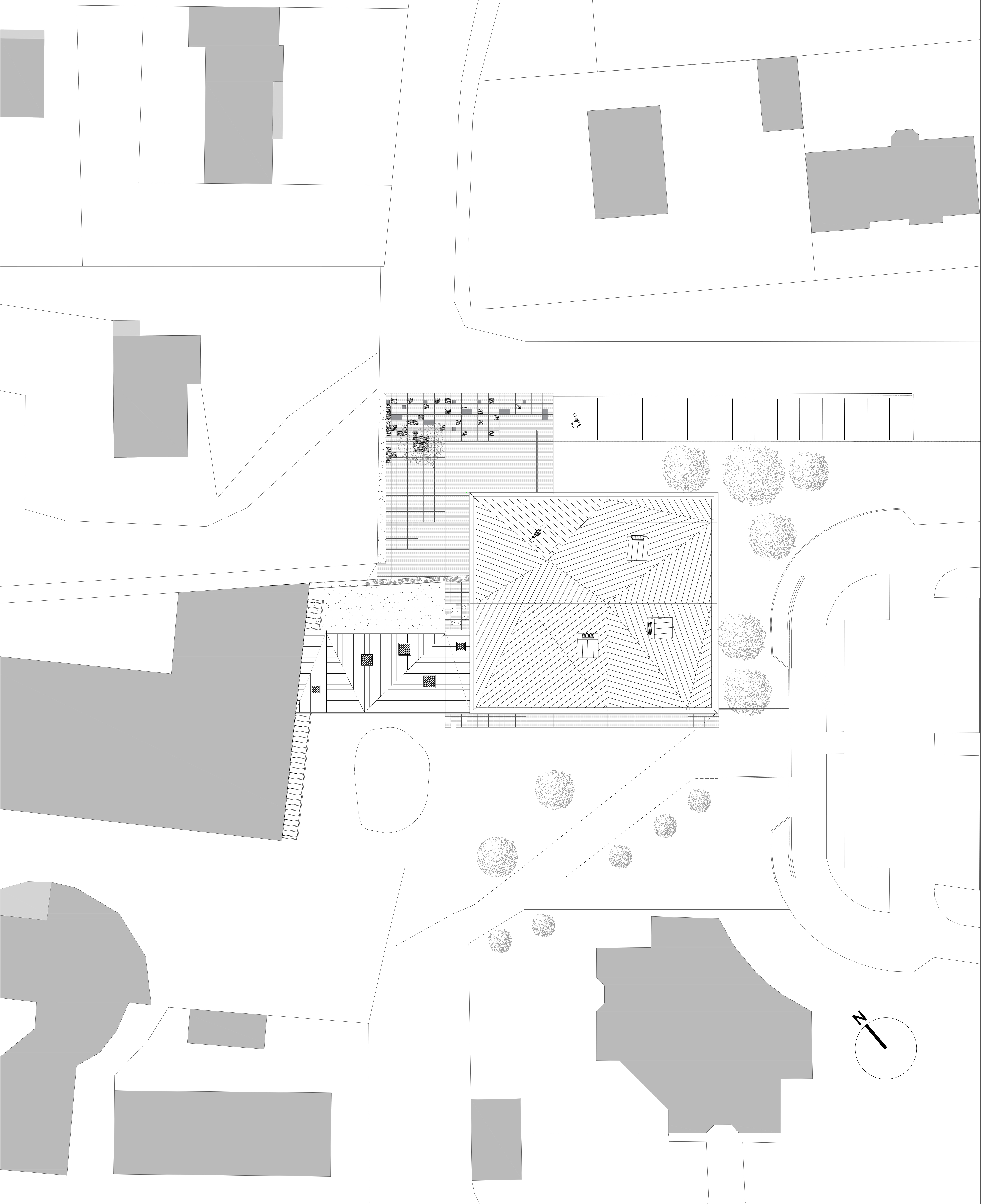
Situé au cœur du pôle scolaire du Plessis Grammoire en frange d'un quartier pavillonnaire diffus, la nouvelle construction doit s'inscrire dans un parcellaire contraint. Empreint de l'étymologie du nom de la commune « Plessis » qui se traduit du latin « plectare » , tresser, entrelacer de branches, le périmètre du bâtiment reconstitue la clôture de la cour initiale, son bardage est ainsi traité en tasseaux de bois verticaux alternés reprenant l'esthétique des haies de bois d'osiers plessés. Cette nouvelle enveloppe dévoile sa structure primaire et s'ouvre au droit de l'entrée principal et des espaces d'activités sur la cour. De part la compacité du bâti de plein pied, un jeu de toiture en origami reprend la diversité confuse des toitures environnantes, il contribue à la variété des volumes intérieurs et anime les élévations en rapport avec le plan fonctionnel.

Catégorie aménagement bois, aménagement intérieur
Numéro de projet7215
Adresse du projet Place Jean Lurçat
49124 Le plesssis grammoire
Date de candidature11/03/2022

aménagement bois

typologie : Enseignement ou éducation
Coût total en € HT : 1182000

aménagement intérieur

Année de réalisation : 2022
Coût total Aménagement Intérieur en € HT : 128014
Coût lots bois en € HT : 363234
Surface aménagée en m² : 602

Liste des produits :

ProduitEssenceProvenances (lieu de croissance du bois)Marque et certification produitFinition
Lambris, Panneau acoustique, Panneau massif d'agencementPeuplierFranceHuile
Bois Français : oui

Approche environnementale : Largement ouvert sur l'extérieur et sur la cour, les salles sont également éclairées zénithalement par des canons de lumières orientés Nord pour un meilleur confort visuel et permettre une "surventilation" l'été, les locaux de services, vestiaires et sanitaires plus fermés se répartissent fonctionnellement autour ou au centre des espaces d'activités et peuvent être mutualisés. Le traitements de revêtements de sols en caoutchouc naturel, les parements et agencement en bois naturel de peuplier et l'utilisation parcimonieuse de peintures minérales assure la qualité de l'air intérieur.

Descriptif technique de l'aménagement : Construction réalisée en murs ossature bois isolé surmonté d'une charpente bois lamellé collé apparente assemblée à queue d'aronde. La mise en valeur de la structure bois à l'intérieur des espaces d'activités participe d'autant aux ambiances chaleureuses par la présence du bois et de par la diversité volumétrique qu'au traitement acoustique par le biais des caissons inhérents remplis en dalles en fibres de bois Organic.

Des matériaux issus du ré-emploi ont été utilisés dans le projet : non
Données déclaratives

Acteurs du projet

Maître d'ouvrage (1)

Maître d'ouvrage - Services publics

Commune de Plessis-Grammoire (Le) (49)

Etudes et ingénieries (4)

Maître d'œuvre - Architecte mandataire

Atome Architectes (49)

Bureau d'études acoustique

Db Acoustic (49)

Bureau d'études structure bois

Even Structures (49)

Bureau d'études thermique

AB Ingénierie (49)

Entreprises des lots bois (1)

Menuisier

SARL PARCHARD (49)




* : L'entreprise n'est plus active
Retour à la liste