Réhabiliter un logement
Réhabiliter un logement

Eden Sud_ Villard-de-Lans

38250 Villard-de-Lans - Isère - Auvergne-Rhône-Alpes

BÂTIMENT / LOGEMENT

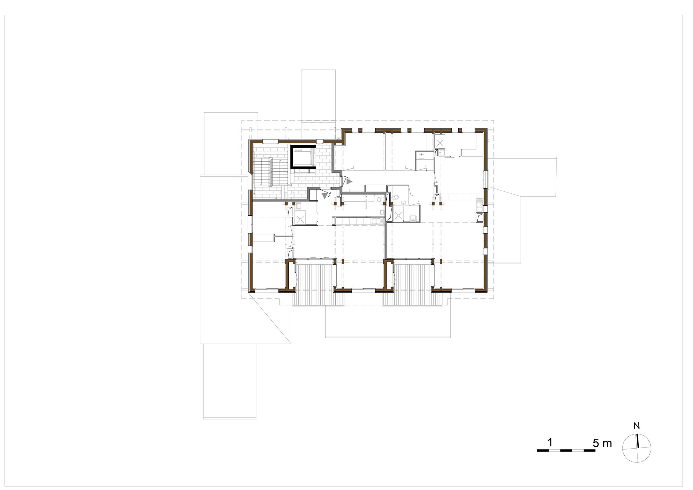
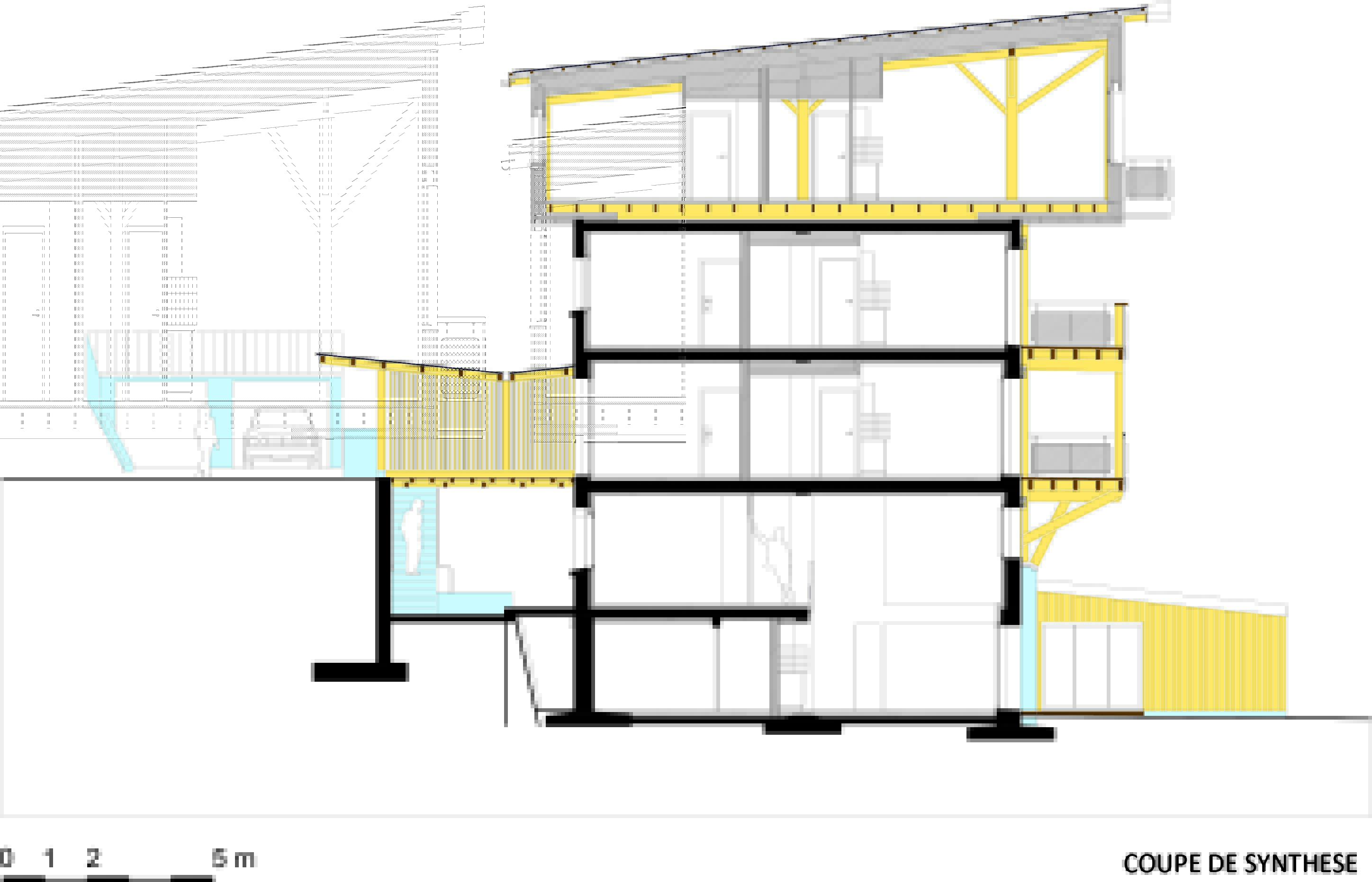
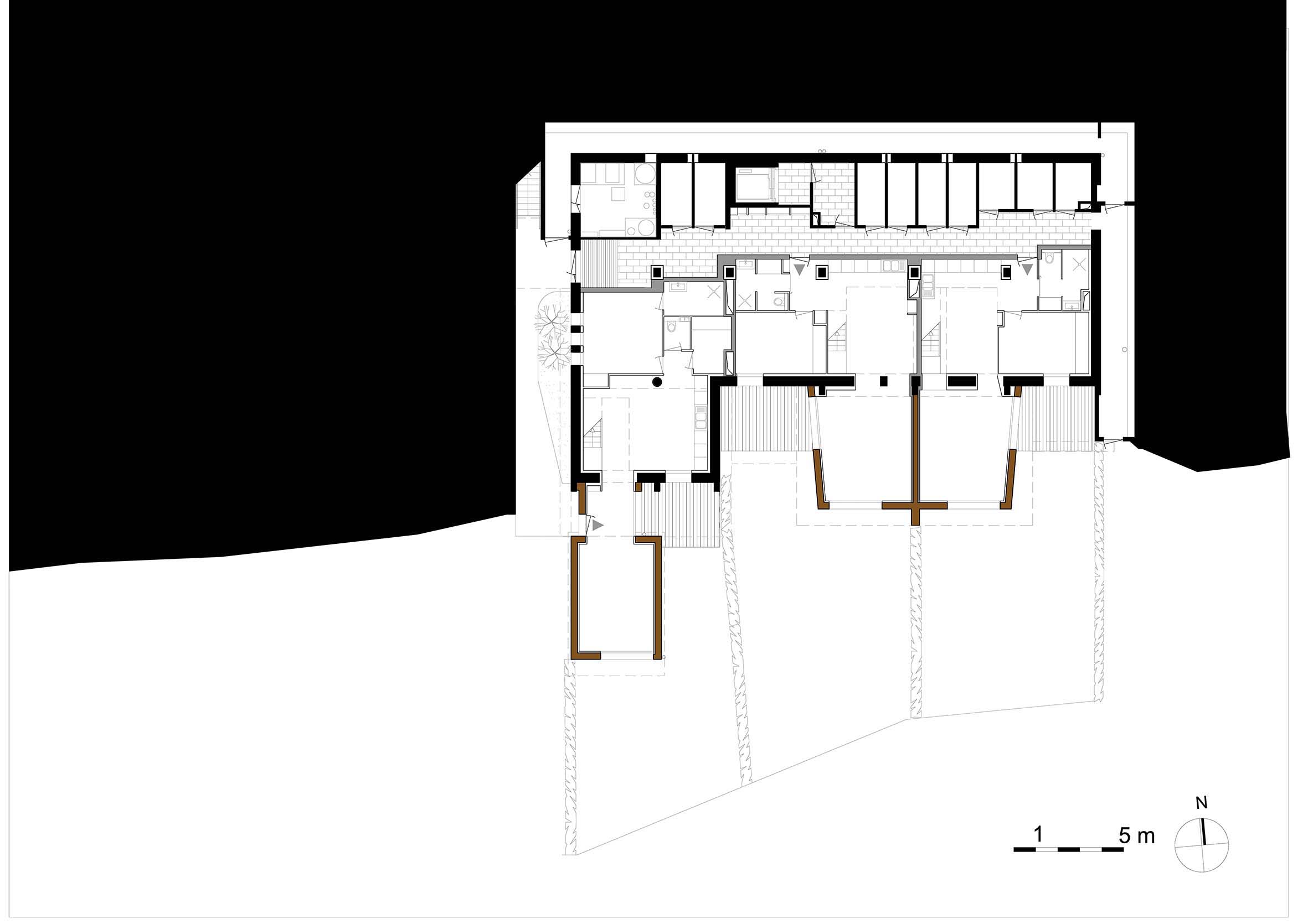
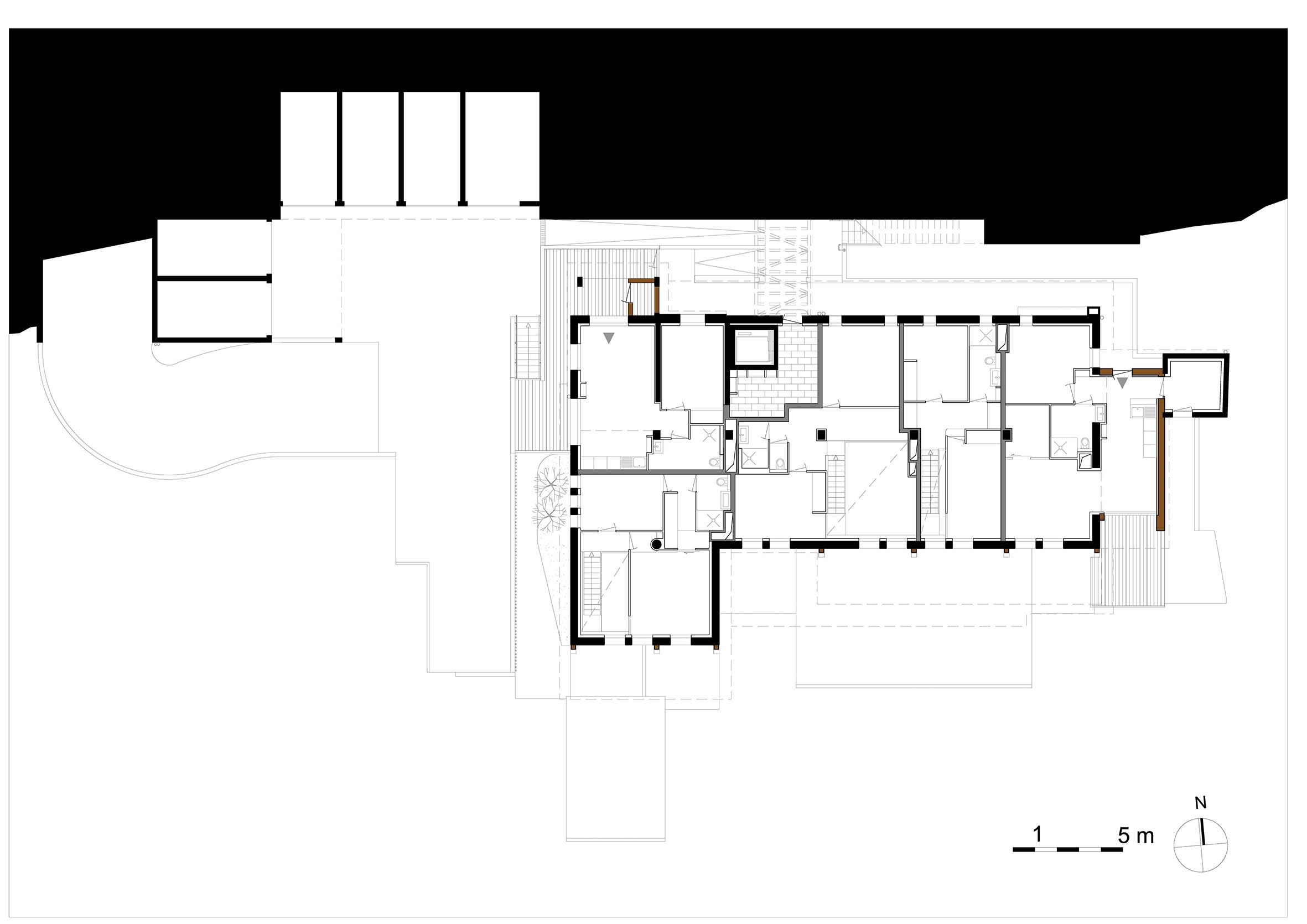
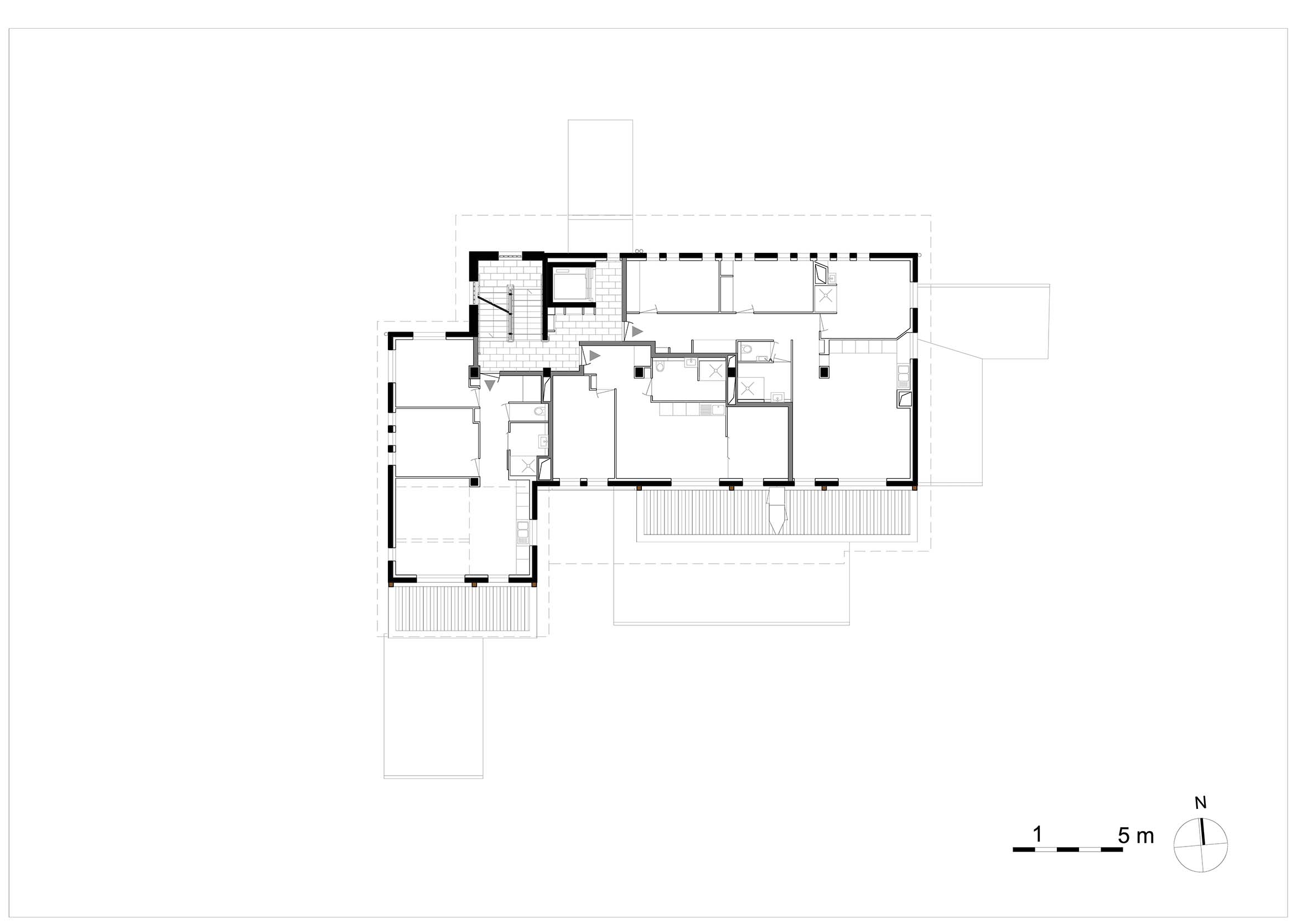
Le bâtiment a été conçu en 1963 à usage de maison d’enfance. Pour occuper le rez‐de‐jardin, dont la hauteur sous plafond est limitée (2.26m), notre projet implante des duplex, prolongés d’un volume de séjour en ossature bois, et dotés de jardins. Au-dessus, deux niveaux de simplex sont aménagés et un hall-passerelle en bois ajouté, accessible depuis la rue. Les coursives sud sont remplacées par de vastes balcons filants en bois. Enfin, les combles sont remplacés par un attique en bois. Posé sur l’arase du bâtiment, il présente de généreux porte-à-faux, protégeant façades et balcons.

Catégorie Bâtiment / logement
Numéro de projet7204
Date de candidature11/03/2022

Bâtiment / logement

Détail projet

Typologie de bâtiment : Extension / surélévation,Rénovation / Réhabilitation
Type de bâtiment : Logement collectif
Année de livraison : 2020
Surface totale du bâtiment en m² : 1050
Dont extension / surélévation en m² : 504
Coût total en € HT (hors foncier, hors VRD, hors honoraires) : 1550000
Bois Français : non
Isolations biosourcées (préciser dans le descriptif technique) : non
Matériaux géosourcés (préciser dans le descriptif technique) : non
Finitions intéreures biosourcées ou géosourcées (préciser dans le descriptif technique) : non

Structure bois du bâtiment

Structure verticale :

ProduitEssenceProvenances (lieu de croissance du bois)Traitements de préservationMarque et certification produit
Panneau ossature bois, Poteau poutre

Structure horizontale :

ProduitEssenceProvenances (lieu de croissance du bois)Traitements de préservationMarque et certification produit
Solivage traditionnel

Charpente :

ProduitEssenceProvenances (lieu de croissance du bois)Traitements de préservationMarque et certification produit
Charpente bois lamellé-collé

Revêtement bois extérieur

Revêtement bois ou dérivés :

ProduitEssenceProvenances (lieu de croissance du bois)Marque et certification produitFinitionTraitements de préservation
Lame bois massifDouglasAucune finitionAucun traitement

Menuiserie intérieure et extérieure

Isolation des murs

Epaisseur (mm) Isolation intérieure des murs : 60
Epaisseur (mm) Isolation entre-montant des murs : 200

Isolation de la toiture

Epaisseur (mm) Isolation intérieure de la toiture : 60
Epaisseur (mm) Isolation entre-montant de la toiture : 260

Approche environnementale : Plutôt que de démolir l'existant, nous avons argumenté en faveur de sa sauvegarde et transformation, en le considérant comme une ressource. Le projet s'est appliqué à valoriser l'exposition plein sud du bâtiment, en y augmentant les percements et en les protégeant par des prolongements extérieurs et débords de toit. Bénéficiant d'une possibilité de raccordement au chauffage urbain, nous avons pris le parti d'un chauffage au sol à eau chaude, avec des chapes très fines et peu d'inertie, compatible avec des appartements occupés occasionnellement pour la plupart.

Descriptif technique : L'usage du béton, laissé brut, a été réservé aux dispositifs d'accès, pris dans la pente, et aux murs des boxes auto. Partout ailleurs, le projet utilise le bois. La dépose des combles, la création de trémies pour les duplex et la suppression des chapes lourde, remplacées par des complexes isolants légers, ont permis de soulager sensiblement la descente de charges. Ainsi a été rendu possible l’ajout des balcons et de l’attique en bois, sans avoir à justifier les existants et à répondre au cadre parasismique de la construction neuve, le projet ajoutant moins de 20 % de surcharge.

Performance du bâtiment (Cep en kWhep/m²/an) : 109.4
Chauffage au Bois : non
Données déclaratives

Acteurs du projet

Maître d'ouvrage (1)

Maître d'ouvrage - Promoteurs immobiliers privés

PR INVEST (38) *

Etudes et ingénieries (4)

Maître d'œuvre - Architecte mandataire

MULTIPLE (38)

Bureau d'études structure bois

ATELIER BOIS.BE (26)
BOIS CONSEIL (38)

Bureau d'études thermique

THERMIBEL (38)

Entreprises des lots bois (1)

Charpentier

ROYANS CHARPENTES (26)




* : L'entreprise n'est plus active
Retour à la liste