Habiter une maison
Habiter une maison

Villa Pétunia

40150 soorts hossegor - Landes - Nouvelle-Aquitaine

BÂTIMENT / LOGEMENT

Le projet est une maison pour un jeune chef d'entreprise accueillant sa mère. Il a fallu, dans un contexte règlementaire local contraignant, imaginer un lieu liant des espaces à la fois d’intimité, de développement personnel mais également des lieux du vivre ensemble. Outre le fort enjeu d'insertion paysagère, nous avons dû imaginer une maison permettant la cohabitation intergénérationnelle, aux espaces flexibles et adaptables. Le rez de chaussée est un socle contemporain, surmonté de 3 volumes comme des cabanes perchées, articulés par des verrières permettant respirations et cadrages de vue

Catégorie Bâtiment / logement
Numéro de projet7203
Date de candidature11/03/2022

Bâtiment / logement

Détail projet

Typologie de bâtiment : Neuf
Type de bâtiment : Logement individuel supérieur à 120 m²
Année de livraison : 2021
Surface totale du bâtiment en m² : 183
Coût total en € HT (hors foncier, hors VRD, hors honoraires) : 772000
Lot bois n°1 concerné : Charpente bois,Bardage bois,ossature bois
Volume lot bois n°1 - m³ : 28
Coût du lot bois n°1 - € HT : 155177
Lot bois n°2 concerné : Menuiserie intérieure bois
Coût du lot bois n°2 - € HT : 63391
Bois Français : oui
Isolations biosourcées (préciser dans le descriptif technique) : oui
Matériaux géosourcés (préciser dans le descriptif technique) : non
Finitions intéreures biosourcées ou géosourcées (préciser dans le descriptif technique) : oui

Structure bois du bâtiment

Structure verticale :

ProduitEssenceProvenances (lieu de croissance du bois)Traitements de préservationMarque et certification produit
Panneau ossature boisÉpicéa communNouvelle-AquitaineTraitement Classe 2 (trempage)

Structure horizontale :

ProduitEssenceProvenances (lieu de croissance du bois)Traitements de préservationMarque et certification produit
Plancher béton

Charpente :

ProduitEssenceProvenances (lieu de croissance du bois)Traitements de préservationMarque et certification produit
Charpente traditionnelleÉpicéa communNouvelle-AquitaineTraitement Classe 2 (trempage)

Revêtement bois extérieur

Revêtement bois ou dérivés :

ProduitEssenceProvenances (lieu de croissance du bois)Marque et certification produitFinitionTraitements de préservation
Bardeau boisSapin pectinéNouvelle-AquitaineLasureTraitement Classe 3b (autoclave)

Menuiserie intérieure et extérieure

Isolation des murs

Isolation intérieure des murs :

Produit
Laine de verre
Epaisseur (mm) Isolation intérieure des murs : 120

Isolation entre-montant des murs :

Produit
Laine de verre

Isolation de la toiture

Epaisseur (mm) Isolation intérieure de la toiture : 280

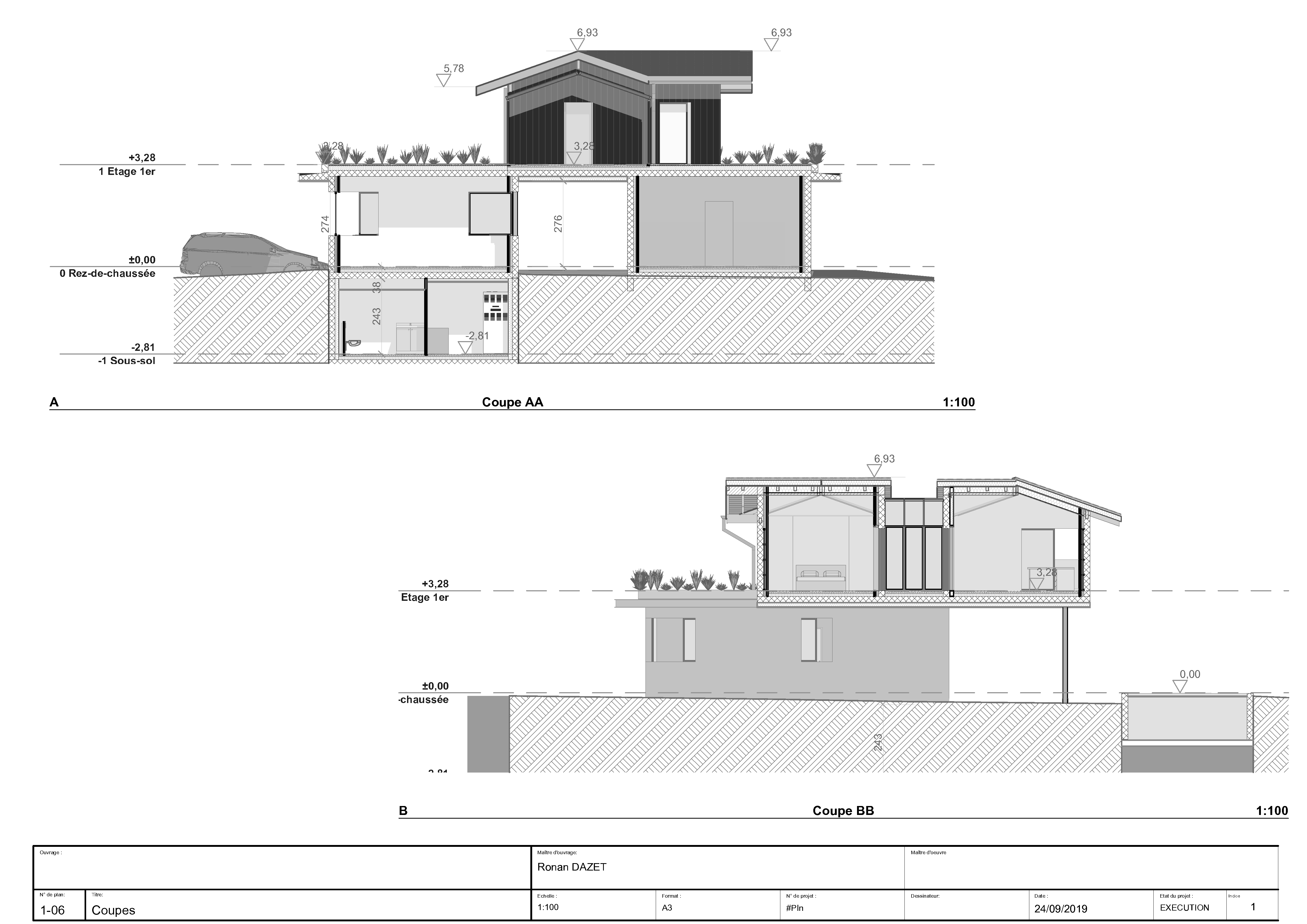
Approche environnementale : La première démarche écologique du projet a été d’analyser la course du soleil pour s’orienter au mieux et imaginer une implantation du bâti conservant les arbres existants. Les hautes baies du rez-de- chaussée permettent l’hiver la captation des apports calorifiques solaires, les larges casquettes permettent quant à elle de s’en protéger l’été. Chauffée et climatisée par pompes à chaleur la maison tend à des performances énergétique proche d'un BBC.

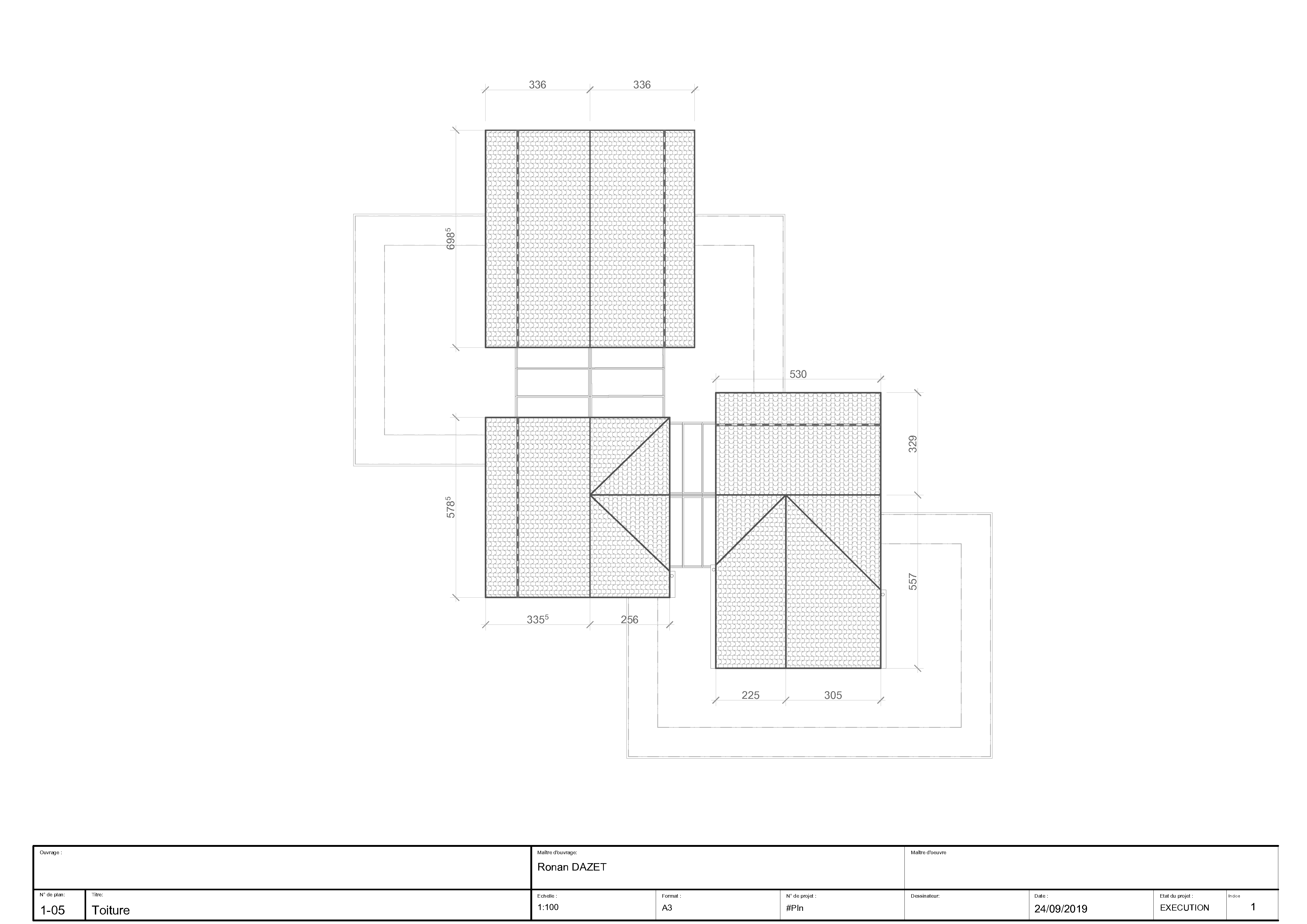
Descriptif technique : Construit sur un sol sableux, la construction a dû s'adapter aux contraintes de nappe affleurante. Les volumes détachés du sol cherchent à s'affranchir d'éventuels risques ponctuels d'inondabilité. Le rez-de-chaussée du projet est composé de deux volumes maçonnés, très vitrés, revêtu d'un enduit couleur proche du sable et de la végétation locale. La toiture de ces volumes est en terrasse, en partie végétalisée. L'étage, composé de trois volumes est en ossature bois avec comme peau un bardage bois foncé dont la couleur est similaire aux écorces de pins, très présents sur le littoral landais.

Performance du bâtiment (Cep en kWhep/m²/an) : 34.6
Chauffage au Bois : non
Données déclaratives

Acteurs du projet

Maître d'ouvrage (1)

Maître d'ouvrage - Particuliers

particulier (x)

Etudes et ingénieries (2)

Maître d'œuvre - Architecte mandataire

ATELIER FLORIAN MICHEL (75)

Bureau d'études structure bois

IGC (64)

Entreprises des lots bois (2)

Charpentier

SA MASSY et FILS (40)

Menuisier

covibois (40)

Fournisseurs du bois (1)

Scierie

LESBATS - Siège social (40)




* : L'entreprise n'est plus active
Retour à la liste