Réhabiliter un équipement
Réhabiliter un équipement

Réhabilitation d'un bâtiment en Agence d'architecture

56650 Inzinzac-Lochrist - Morbihan - Bretagne

BÂTIMENT / LOGEMENT

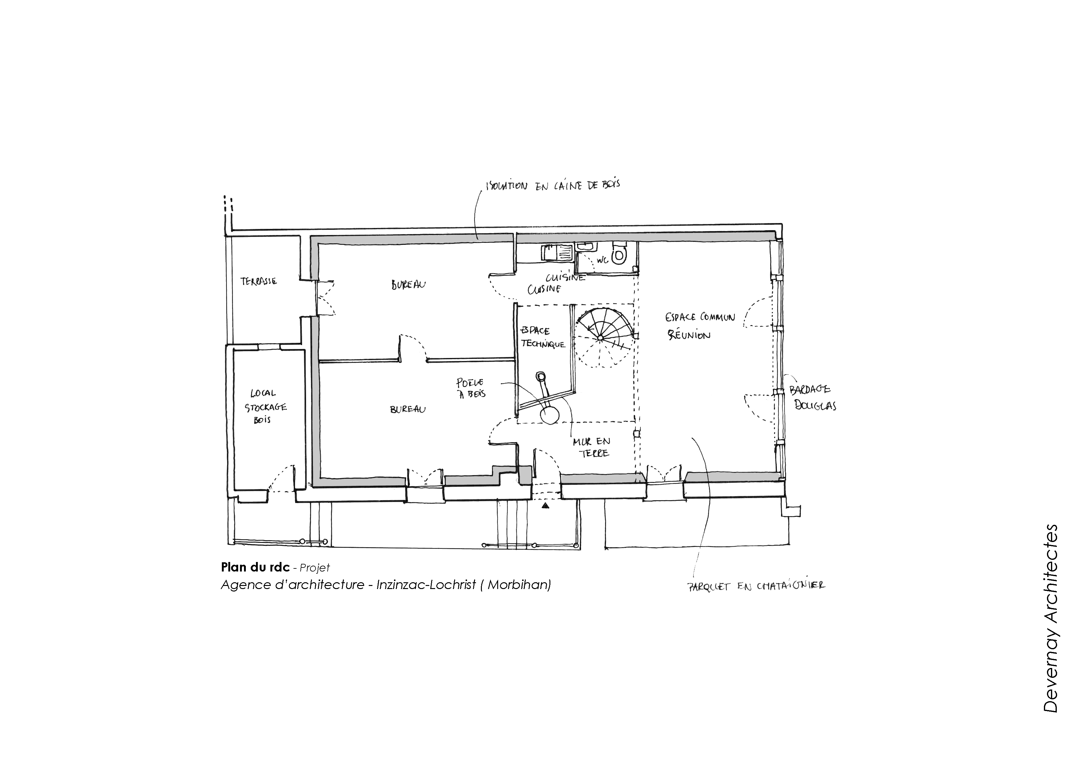
Réhabilitation d'un bâtiment issu d'un hangar industriel en agence d'architecture. Ce projet s'inscrit dans la continuité de l'architecture de site des forges d'Inzinzac-Lochrist. La toiture a été modifiée pour concevoir un espace très ouvert vers le sud et permettre un aménagement sur deux niveaux. Au rdc deux bureaux, sanitaire, cuisine et une salle de réunion; au R+1 un espace de co-working profitant de la volumétrie de la charpente. Le tout est aménagé avec du mobilier privilégiant le bois.

Catégorie Bâtiment / logement
Numéro de projet7193
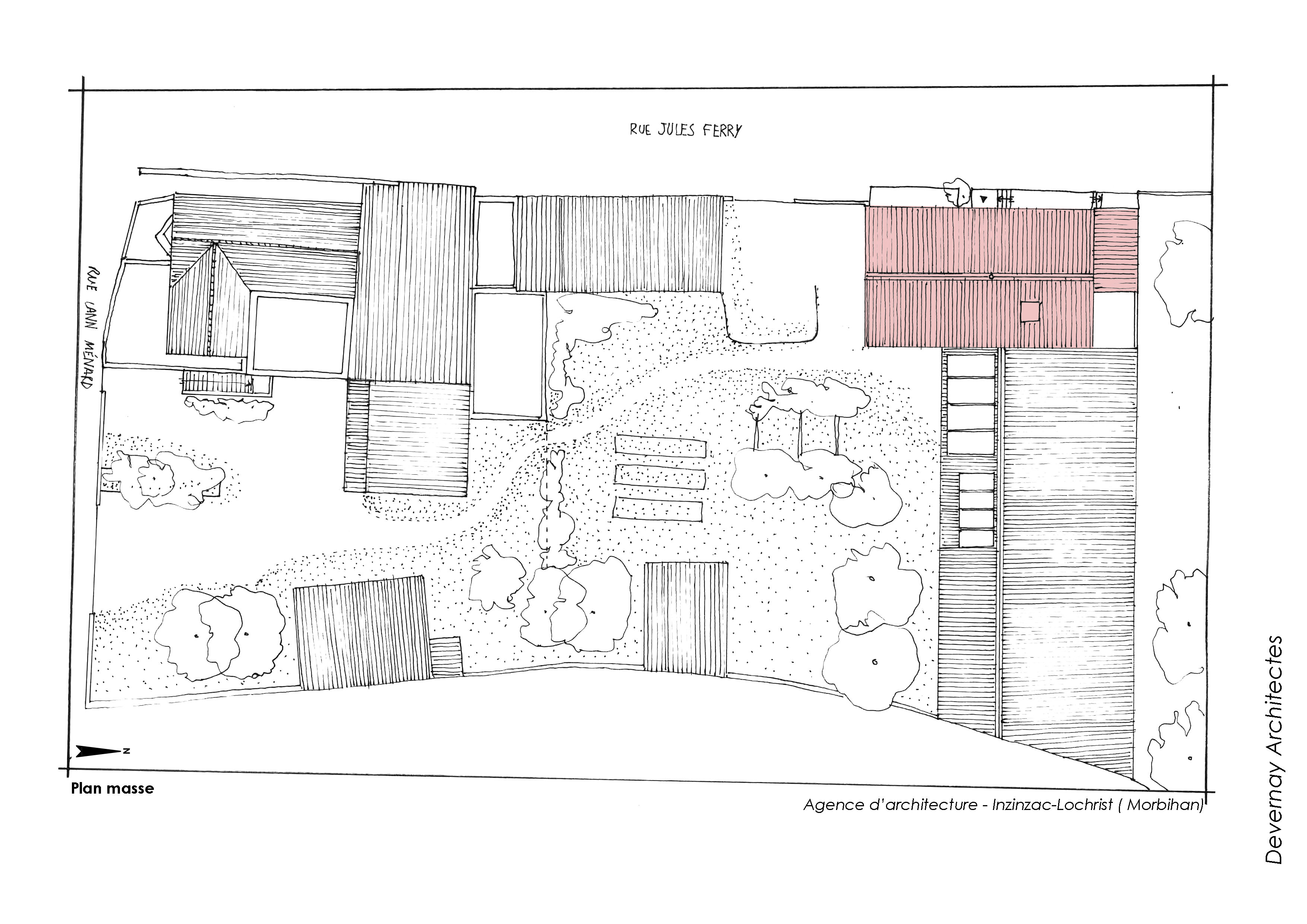
Adresse du projet 3 rue Jules Ferry
56650 Inzinzac-Lochrist
Date de candidature11/03/2022

Bâtiment / logement

Détail projet

Typologie de bâtiment : Extension / surélévation,Rénovation / Réhabilitation
Type de bâtiment : Lieu d'entreprise
Année de livraison : 2019
Surface totale du bâtiment en m² : 134.8
Dont extension / surélévation en m² : 20.8
Coût total en € HT (hors foncier, hors VRD, hors honoraires) : 122165.75
Lot bois n°1 concerné : Charpente bois,Bardage bois,Menuiserie extérieure bois,ossature bois
Coût du lot bois n°1 - € HT : 57580.9
Lot bois n°2 concerné : Menuiserie intérieure bois
Coût du lot bois n°2 - € HT : 16205
Bois Français : oui
Isolations biosourcées (préciser dans le descriptif technique) : oui
Matériaux géosourcés (préciser dans le descriptif technique) : oui
Finitions intéreures biosourcées ou géosourcées (préciser dans le descriptif technique) : oui

Structure bois du bâtiment

Structure verticale :

ProduitEssenceProvenances (lieu de croissance du bois)Traitements de préservationMarque et certification produit
Panneau ossature bois, Poteau poutreDouglasBretagne

Structure horizontale :

ProduitEssenceProvenances (lieu de croissance du bois)Traitements de préservationMarque et certification produit
Solivage traditionnelDouglasBretagneAucun traitement

Charpente :

ProduitEssenceProvenances (lieu de croissance du bois)Traitements de préservationMarque et certification produit
Charpente traditionnelleDouglasBretagne

Revêtement bois extérieur

Revêtement bois ou dérivés :

ProduitEssenceProvenances (lieu de croissance du bois)Marque et certification produitFinitionTraitements de préservation
Lame bois massifDouglasBretagneAucune finitionAucun traitement

Menuiserie intérieure et extérieure

Menuiserie extérieure :

ProduitEssenceProvenances (lieu de croissance du bois)Marque et certification produitFinition
Menuiserie boisChâtaignierBretagnePeinture

Isolation des murs

Isolation intérieure des murs :

Produit
Laine de bois souple
Epaisseur (mm) Isolation intérieure des murs : 240

Isolation de la toiture

Epaisseur (mm) Isolation entre-montant de la toiture : 300

Approche environnementale : Ce projet s'inscrit dans une démarche globale de développement durable. Le choix d’implantation du projet sur une friche en agglomération renouvelle la ville sur elle-même, ne consomme pas d’espace agricole ou naturel et minimise les déplacements quotidiens.Le bâtiment a été conçu avec une surélévation en ossature bois non traitée, un bardage en douglas non traité et une isolation en laine de bois. Avec de larges ouvertures au sud, qui permettent d'optimiser les apports de chaleur et de lumière naturelle, tout en étant régulés par une VMC DF.

Descriptif technique : L'orientation du bâti, la ventilation double flux, l'isolation en laine de bois, le poêle à bois permettent d'obtenir un bâtiment aux performances élevées avec un faible impact énergétique. CTB A Traitement des bois en oeuvre CTB Structures NF Contreplaqués (CTBX - CTBC) NF Parquets NF Ameublement NF Environnement Ameublement Marquage CE

Performance du bâtiment (Cep en kWhep/m²/an) : 19
Chauffage au Bois : oui
Appareil de chauffage au bois : Poële/insert
Données déclaratives

Acteurs du projet

Maître d'ouvrage (1)

Maître d'ouvrage - Particuliers

particulier (x)

Etudes et ingénieries (2)

Maître d'œuvre - Architecte mandataire

FLORENCE DEVERNAY ARCHITECTES (56)

Bureau d'études thermique

EFFICIENCE CONSTRUCTION ENVIRONNEMENT (ECE) (29)

Entreprises des lots bois (2)

Charpentier

ENTREPRISE DE COUVERTURE ET DE DESAMIANTAGE LAFOSSE (56) *

Menuisier

MENUISERIE DE LANVAUX-LE BODIC (56)




* : L'entreprise n'est plus active
Retour à la liste