La réhabilitation de l’Hôtel Calemard de Montjoly en médiathèque municipale et 2 logements traduit un projet de réutilisation basé sur la reconnaissance du site, son histoire et son héritage. Cet édifice est le premier élément de la redynamisation du centre-bourg s’inscrivant le programme de reconquête de celui-ci. L’édifice conduit le projet de par l’adaptation de l’usage au bâti existant et non l’inverse. L'examen des éléments du XVIIe et XVIIIe siècles, ses décors et son architecture, ont permis d’affirmer et de révéler, la qualité et la matière d’un lieu, autrefois clos et inconnu.
Catégorie | aménagement bois, aménagement intérieur |
---|---|
Numéro de projet | 7182 |
Adresse du projet |
4 rue des voûtes 43500 CRAPONNE-SUR-ARZON |
Date de candidature | 10/03/2022 |
Liste des produits :
Produit | Essence | Provenances (lieu de croissance du bois) | Marque et certification produit | Finition | |
---|---|---|---|---|---|
Parquet | Chêne | Auvergne-Rhône-Alpes | Huile | ||
Escalier | Chêne | Auvergne-Rhône-Alpes | Huile | ||
Lambris | Chêne | Auvergne-Rhône-Alpes | Peinture | ||
Mobilier | Tempéré | Auvergne-Rhône-Alpes | Aucune finition |
Approche environnementale : Le projet s’inscrit dans l’actualité architecturale et écologique, en y associant son histoire. La réutilisation de l’existant limite ainsi au maximum l’empreinte carbone. Une grande partie des matériaux sont préservés, restaurés, participant à une reconversion de l’édifice. C'est un exemple remarquable de mise en valeur patrimoniale et préservation d’un édifice inscrit à la liste supplémentaire des Monuments historiques, à travers la double fonction de service public et de logements, passant du privé à la collectivité, reconnu comme bien d’intérêt et investi pour une ouverture aux citoyens.
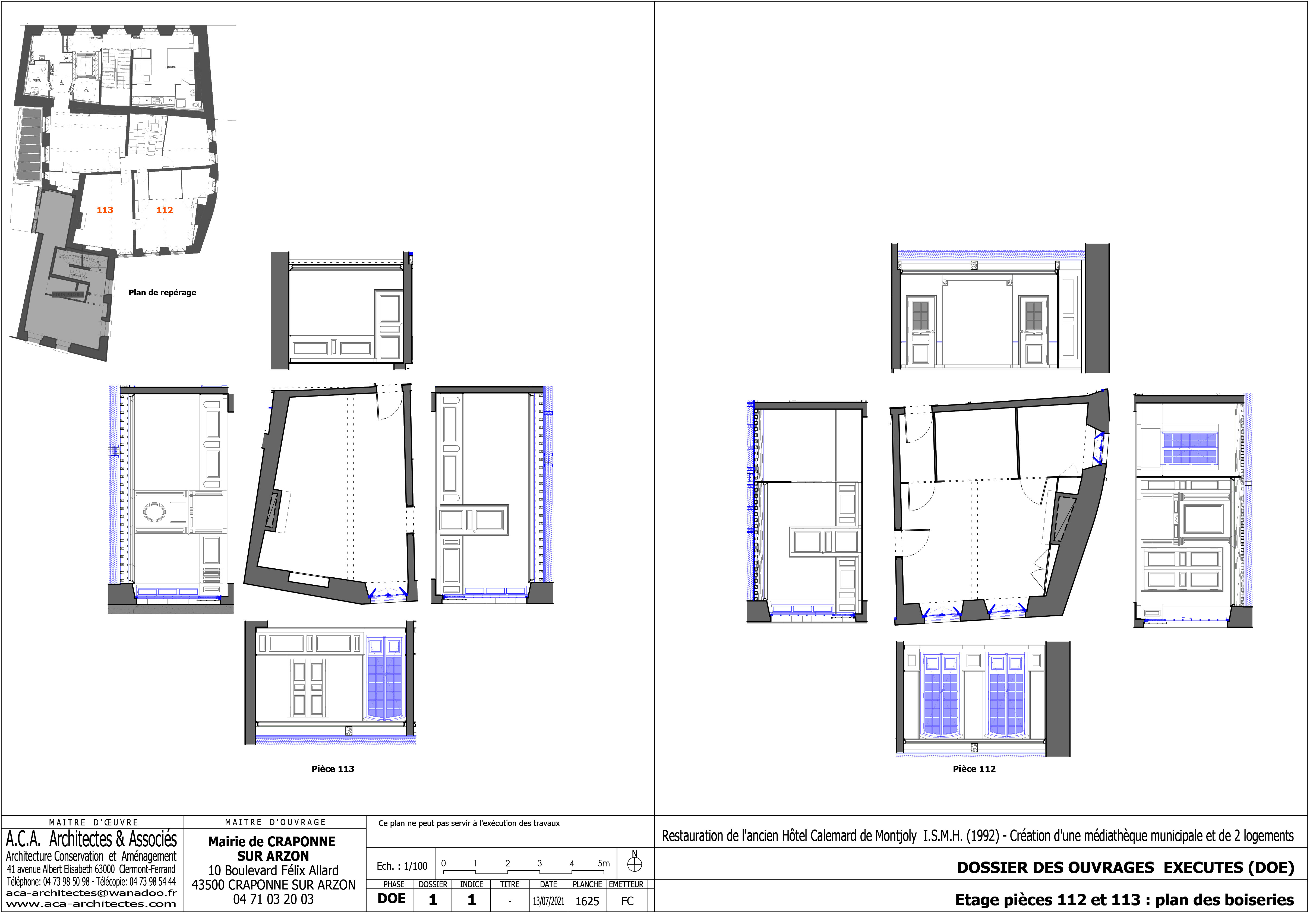
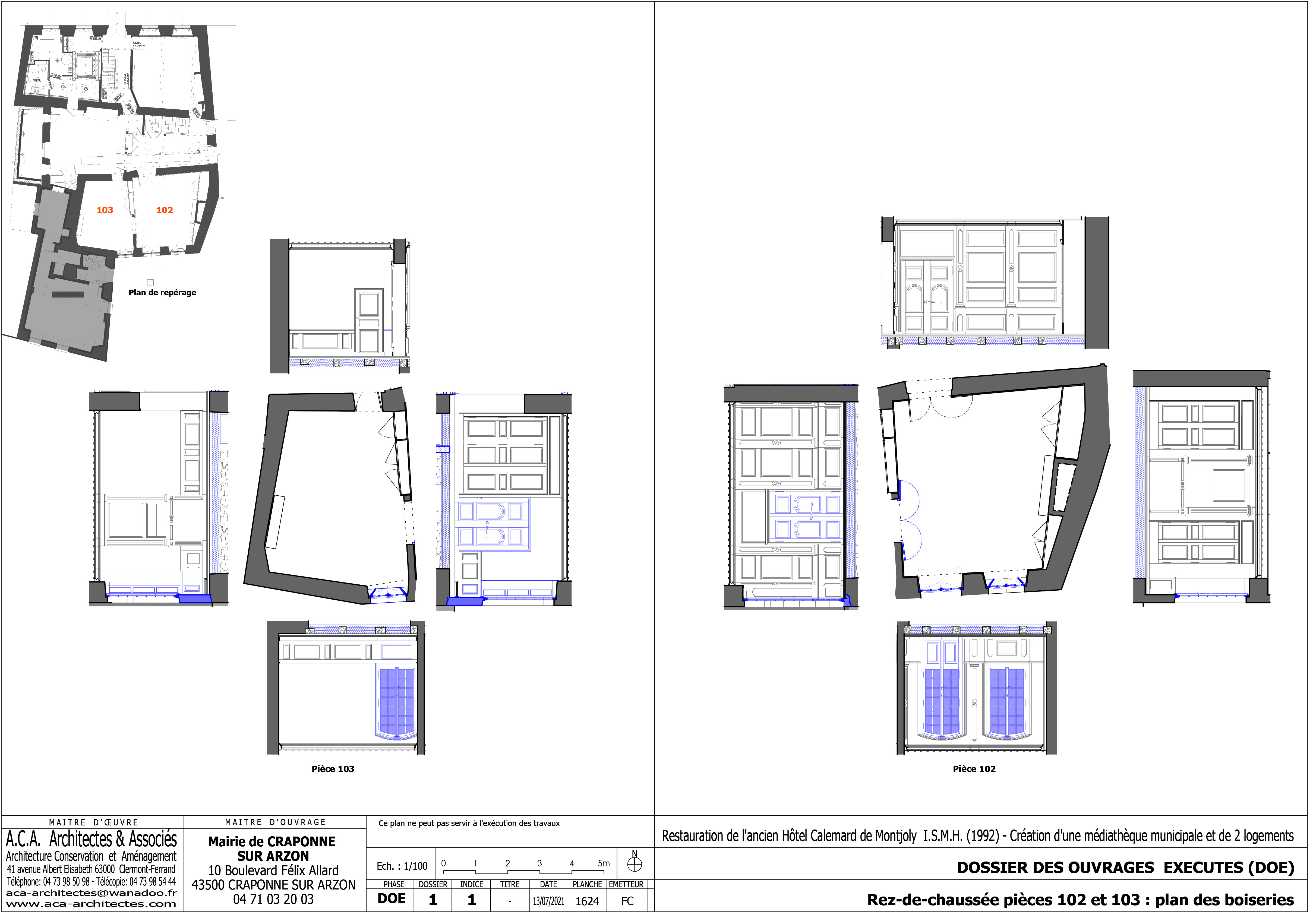
Descriptif technique de l'aménagement : Des interventions structurelles mesurées et ponctuelles réalisées pour la bonne mise en œuvre du programme, l’utilisation des potentiels architecturaux, structurels, économiques, patrimoniaux et historiques, ont également permis l’aménagement et la mise en place mobilier qui participe à la préservation des décors et des boiseries existants. Le mobilier est constitué principalement d’ilots dont l’agencement est variable d’une pièce à l’autre, et s’adaptant au public. Ergonomique, accessible à tous publics, discret, le mobilier s’intègre parfaitement dans les ouvrages architecturaux existants.
Des matériaux issus du ré-emploi ont été utilisés dans le projet : ouiCOMMUNE DE CRAPONNE SUR ARZON (43)
ACA ARCHITECTES ET ASSOCIES (63)
ACA ARCHITECTES ET ASSOCIES (63)