Apprendre – se divertir
Apprendre – se divertir

Tribune et club house du stade de Saint-Cernin

15310 SAINT-CERNIN - Cantal - Auvergne-Rhône-Alpes
Finaliste national

BÂTIMENT / LOGEMENT

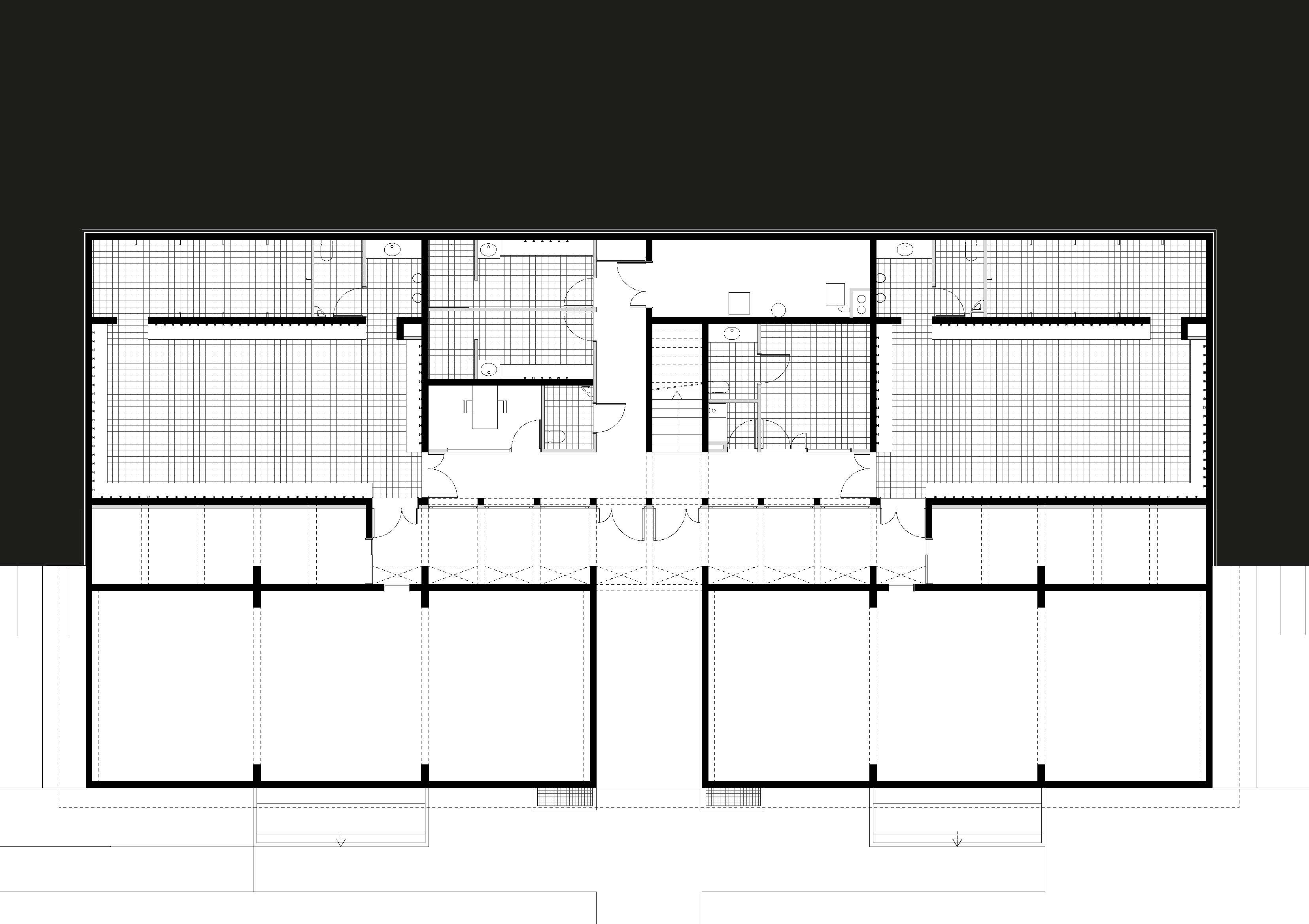
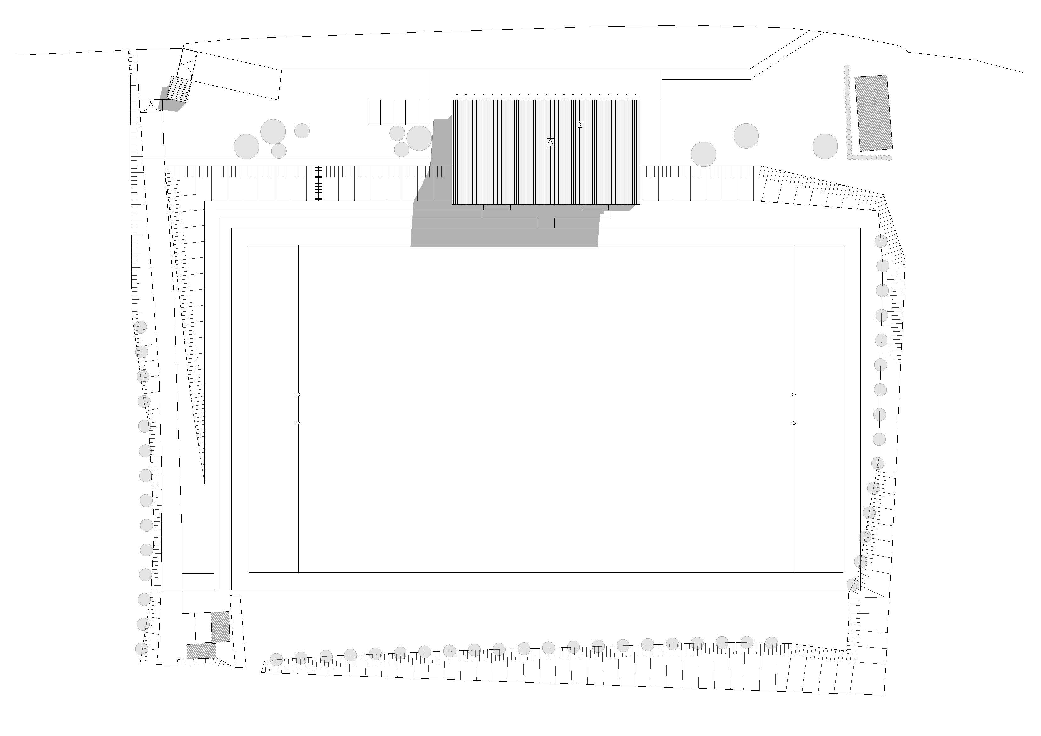
Le projet consiste en la reconstruction d’une tribune répondant aux normes actuelles, celles existantes n'étant plus adaptées aux besoins des usagers. Afin d’améliorer les conditions d’utilisation et l’attrait du stade, un nouvel établissement avec une capacité d’accueil plus importante est créé. L’édifice est orienté dans le sens des courbes de niveaux, parallèlement au stade. La pente du terrain permet les accès aux deux différents niveaux du bâtiment, au rez-de-chaussée pour l’accès du public aux tribunes et au club-house, et au rez-de-jardin pour les vestiaires et l’accès à la pelouse.

Catégorie Bâtiment / logement
Numéro de projet7152
Adresse du projet Stade du Moulin à vent
15310 SAINT-CERNIN
Date de candidature10/03/2022

Bâtiment / logement

Détail projet

Typologie de bâtiment : Neuf
Type de bâtiment : Sport
Année de livraison : 2021
Surface totale du bâtiment en m² : 844
Coût total en € HT (hors foncier, hors VRD, hors honoraires) : 1676000
Volume lot bois n°1 - m³ : 140
Coût du lot bois n°1 - € HT : 179000
Volume lot bois n°2 - m³ : 48
Coût du lot bois n°2 - € HT : 93000
Bois Français : oui
Isolations biosourcées (préciser dans le descriptif technique) : non
Matériaux géosourcés (préciser dans le descriptif technique) : non
Finitions intéreures biosourcées ou géosourcées (préciser dans le descriptif technique) : oui

Structure bois du bâtiment

Structure verticale :

ProduitEssenceProvenances (lieu de croissance du bois)Traitements de préservationMarque et certification produit
Panneau ossature boisÉpicéa communAuvergne-Rhône-Alpes

Structure horizontale :

ProduitEssenceProvenances (lieu de croissance du bois)Traitements de préservationMarque et certification produit
Plancher béton

Charpente :

ProduitEssenceProvenances (lieu de croissance du bois)Traitements de préservationMarque et certification produit
Charpente bois lamellé-collé, Charpente traditionnelleDouglasAuvergne-Rhône-Alpes

Revêtement bois extérieur

Revêtement bois ou dérivés :

ProduitEssenceProvenances (lieu de croissance du bois)Marque et certification produitFinitionTraitements de préservation
Lame bois massifDouglasAuvergne-Rhône-AlpesAucune finitionAucun traitement

Menuiserie intérieure et extérieure

Isolation des murs

Isolation intérieure des murs :

Produit
Laine de verre
Epaisseur (mm) Isolation intérieure des murs : 60

Isolation entre-montant des murs :

Produit
Laine de verre
Epaisseur (mm) Isolation entre-montant des murs : 180

Isolation de la toiture

Epaisseur (mm) Isolation intérieure de la toiture : 320

Approche environnementale : Le projet favorise les structure en bois de provenance local. L'orientation est favorable aux apports solaires des espaces chauffés (club-house et bureaux). Les autres locaux sont pensés dans une logique de durabilité avec des matériaux très pérennes. L'isolation de l'ensemble (bien que non biosourcée pour des raisons économiques) est renforcée. Les menuiseries extérieures sont en aluminium pour des questions de durabilités.

Descriptif technique : La construction est constituée d’un volume simple avec une toiture à un pan débordante pour protéger les tribunes. Les façades du rez-de-chaussée sont couvertes d’un bardage bois ajouré surmonté de panneaux de trois-plis protégé par les débords de toiture. Ces débords permettent l’expression de la trame structurelle en lamellé-collé. Les ouvertures, toutes identiques, suivent les dimensions de cette trame et sont disposées de manière à répondre aux usages intérieurs. Les façades du rez-de-jardin sont construites en béton restant apparent. Ce socle permet un ancrage dans la pente du terrain.

Chauffage au Bois : non
Données déclaratives

Acteurs du projet

Maître d'ouvrage (1)

Maître d'ouvrage - État ou collectivité (locale et territ)

COMMUNAUTE COM DU PAYS DE SALERS (15)

Etudes et ingénieries (7)

Maître d'œuvre - Architecte mandataire

ATELIER DU ROUGET SIMON TEYSSOU ET ASSOCIES (15)

Maître d’œuvre - Architecte associé

ATELIER CYRIL VIDAL, ARCHITECTE (15)

Bureau d'études structure bois

INGENIERIE GENERALE TECHNIQUES DE LA CONSTRUCTION (IGETEC) (15)

Bureau d'études environnement

INGENIERIE GENERALE TECHNIQUES DE LA CONSTRUCTION (IGETEC) (15)

Bureau d'études thermique

INGENIERIE GENERALE TECHNIQUES DE LA CONSTRUCTION (IGETEC) (15)

Economiste

INGENIERIE GENERALE TECHNIQUES DE LA CONSTRUCTION (IGETEC) (15)

Paysagiste

ATELIER DU ROUGET SIMON TEYSSOU ET ASSOCIES (15)

Entreprises des lots bois (1)

Charpentier

HUBERT JOANNY MENUISERIE CHARPENTE (15)




* : L'entreprise n'est plus active
Retour à la liste