Aménager
Aménager

Aménagement d’un plateau pour agence d’architecture à Nantes

44000 Nantes - Loire Atlantique - Pays de la Loire

AMÉNAGEMENT BOIS

Aménagement intérieur

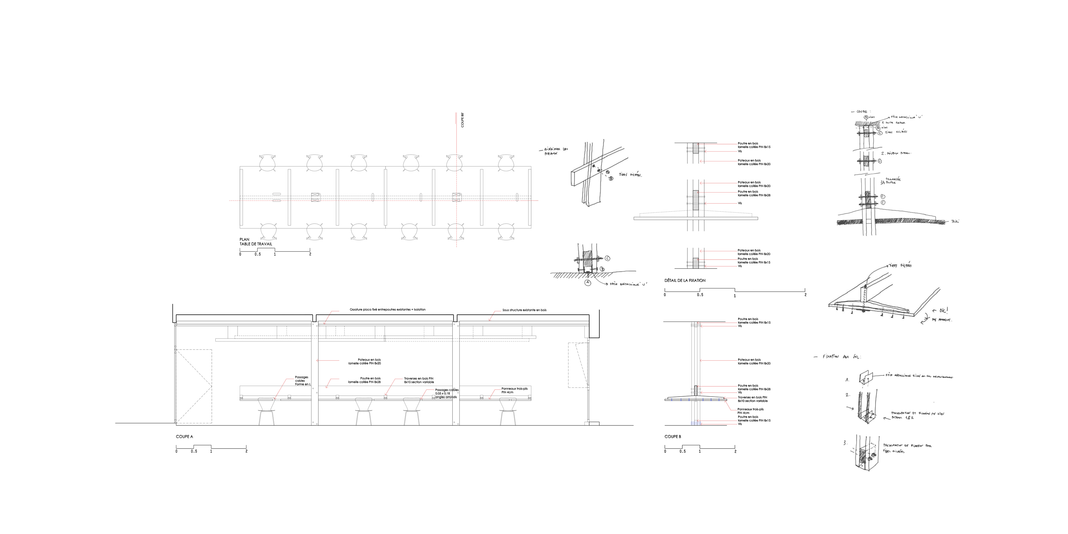
Les bureaux de l’agence Onze04 sont situés dans un bâtiment qui hébergeait un ancien garage. Les travaux de démolition ont dévoilé, sous les couches de remplissage, un bâtiment à la structure poteaux-poutres ou le plateau s’est révélé diaphane et très lumineux. Dans la salle principale nous avons construit une nouvelle table de travail suspendue : la ‘Ta-vola!’, qui comporte deux poteaux en bois massif alignés avec ceux du local entre lesquels une grande poutre lamellé-collé soutient les sept traverses auxquelles est fixé le grand plan de travail.

Catégorie aménagement bois, aménagement intérieur
Numéro de projet7134
Adresse du projet 8 bis rue de Mayence
44000 Nantes
Date de candidature10/03/2022

aménagement bois

typologie : Lieu d'entreprise
Coût total en € HT : 125000

aménagement intérieur

Année de réalisation : 2019-2020
Coût total Aménagement Intérieur en € HT : 125000
Coût lots bois en € HT : 46000
Volume bois m³ : 4
Surface aménagée en m² : 140

Liste des produits :

ProduitEssenceProvenances (lieu de croissance du bois)Marque et certification produitFinition
Mobilier, Panneau acoustique, ParquetHêtreLasure
Bois Français : oui

Descriptif technique de l'aménagement : Un patio intérieur central distribue tous les locaux du plateau. Les nouvelles ouvertures vers cet espace et les closions vitrées des divisions intérieures ont été réalisées en menuiseries en bois d’hêtre massif. La grand table de réunion et les étagères de l’ancien local Finques Area (Barcelone 1999), que nous avons réhabilité, ont été réalisées en contreplaqué marin en hêtre aussi. Le mur du fond du local et le plan de travail de la table ‘Ta-vola!’ ont été revêtus de lino vert foncé qui donne une texture et un touché velouté.

Des matériaux issus du ré-emploi ont été utilisés dans le projet : oui
Données déclaratives

Acteurs du projet

Maître d'ouvrage (1)

Autres

ONZE04 architectes Nantes (44)

Etudes et ingénieries (1)

Maître d'œuvre - Architecte mandataire

ONZE04 architectes Nantes (44)

Entreprises des lots bois (2)

Charpentier

ISOLEX BOIS (44)

Menuisier

ISOLEX BOIS (44)




* : L'entreprise n'est plus active
Retour à la liste