Habiter ensemble

La Semblada, habitat groupé participatif pour 7 familles

63100 Clermont-Ferrand - Puy de Dôme - Auvergne-Rhône-Alpes

BÂTIMENT / LOGEMENT

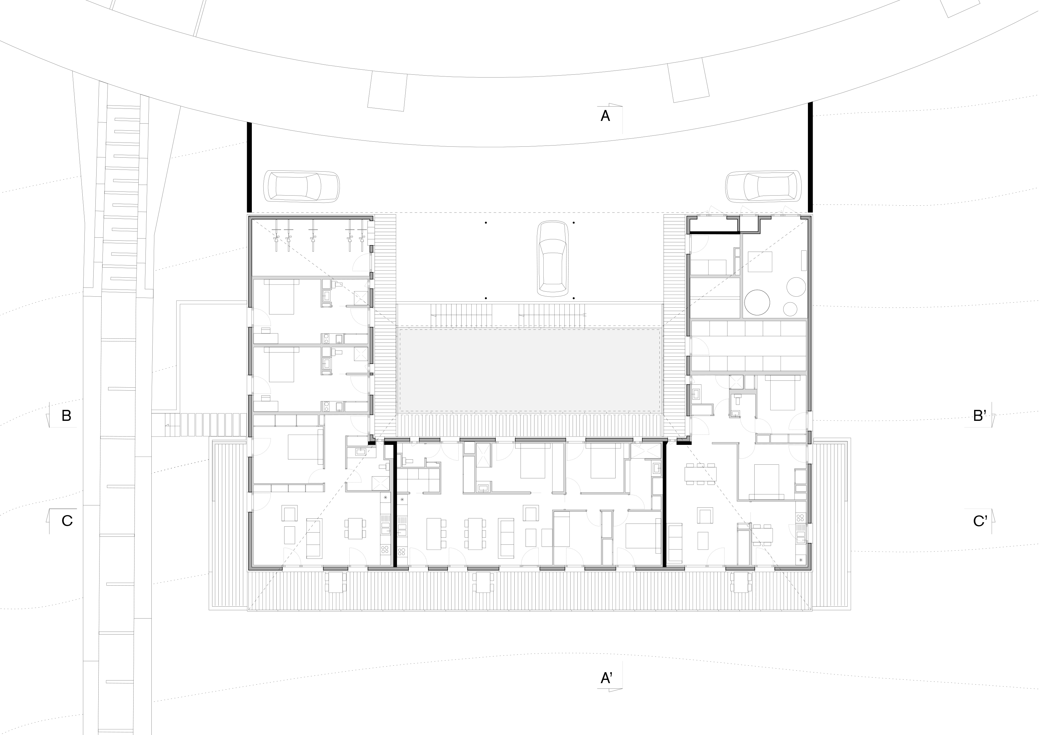
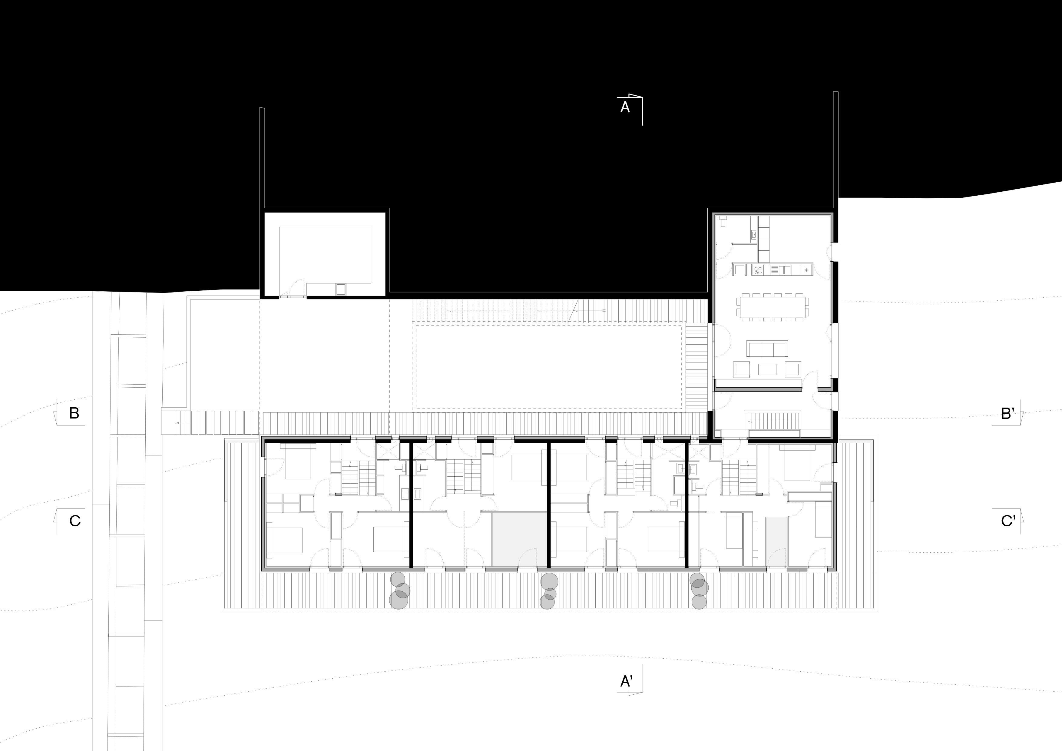
La Semblada est le nom donné au groupe formé par sept familles clermontoises désireuses de construire un projet d’habitat participatif à Clermont-Ferrand. L’architecture proposée est conçue comme un iceberg : la partie de l’édifice élevée au-dessus de la voie représente une part restreinte du programme. L’habitant pénètre dans l’édifice par le haut, le premier étage, et descend par un escalier couvert dans le volume construit évidé. Le vide est occupé par un patio, un espace extérieur commun, qui distribue quatre duplex et les espaces collectifs.

Catégorie Bâtiment / logement
Numéro de projet7127
Adresse du projet Rue Victor Charreton
63100 Clermont-Ferrand
Date de candidature09/03/2022

Bâtiment / logement

Détail projet

Typologie de bâtiment : Neuf
Type de bâtiment : Logement collectif
Année de livraison : 2019
Surface totale du bâtiment en m² : 772
Coût total en € HT (hors foncier, hors VRD, hors honoraires) : 1350000
Volume lot bois n°1 - m³ : 102
Coût du lot bois n°1 - € HT : 497000
Volume lot bois n°2 - m³ : 27
Coût du lot bois n°2 - € HT : 60000
Bois Français : oui
Isolations biosourcées (préciser dans le descriptif technique) : oui
Matériaux géosourcés (préciser dans le descriptif technique) : non
Finitions intéreures biosourcées ou géosourcées (préciser dans le descriptif technique) : oui

Structure bois du bâtiment

Structure verticale :

ProduitEssenceProvenances (lieu de croissance du bois)Traitements de préservationMarque et certification produit
Panneau ossature boisÉpicéa communAuvergne-Rhône-AlpesTraitement Classe 2 (trempage)

Structure horizontale :

ProduitEssenceProvenances (lieu de croissance du bois)Traitements de préservationMarque et certification produit
Plancher mixte bois-bétonÉpicéa communAuvergne-Rhône-AlpesTraitement Classe 2 (trempage)

Charpente :

ProduitEssenceProvenances (lieu de croissance du bois)Traitements de préservationMarque et certification produit
Charpente bois lamellé-colléSapin pectinéFranceTraitement Classe 2 (trempage)
Charpente bois lamellé-colléDouglasFranceAucun traitement

Revêtement bois extérieur

Revêtement bois ou dérivés :

ProduitEssenceProvenances (lieu de croissance du bois)Marque et certification produitFinitionTraitements de préservation
Lame bois massifDouglasNouvelle-AquitaineAucune finitionAucun traitement

Menuiserie intérieure et extérieure

Menuiserie extérieure :

ProduitEssenceProvenances (lieu de croissance du bois)Marque et certification produitFinition
Menuiserie boisPin sylvestreAuvergne-Rhône-AlpesPeinture

Isolation des murs

Isolation intérieure des murs :

Produit
Fibre de bois (Panneaux)
Epaisseur (mm) Isolation intérieure des murs : 80

Isolation entre-montant des murs :

Produit
Epaisseur (mm) Isolation entre-montant des murs : 180

Isolation de la toiture

Epaisseur (mm) Isolation intérieure de la toiture : 50
Epaisseur (mm) Isolation entre-montant de la toiture : 350

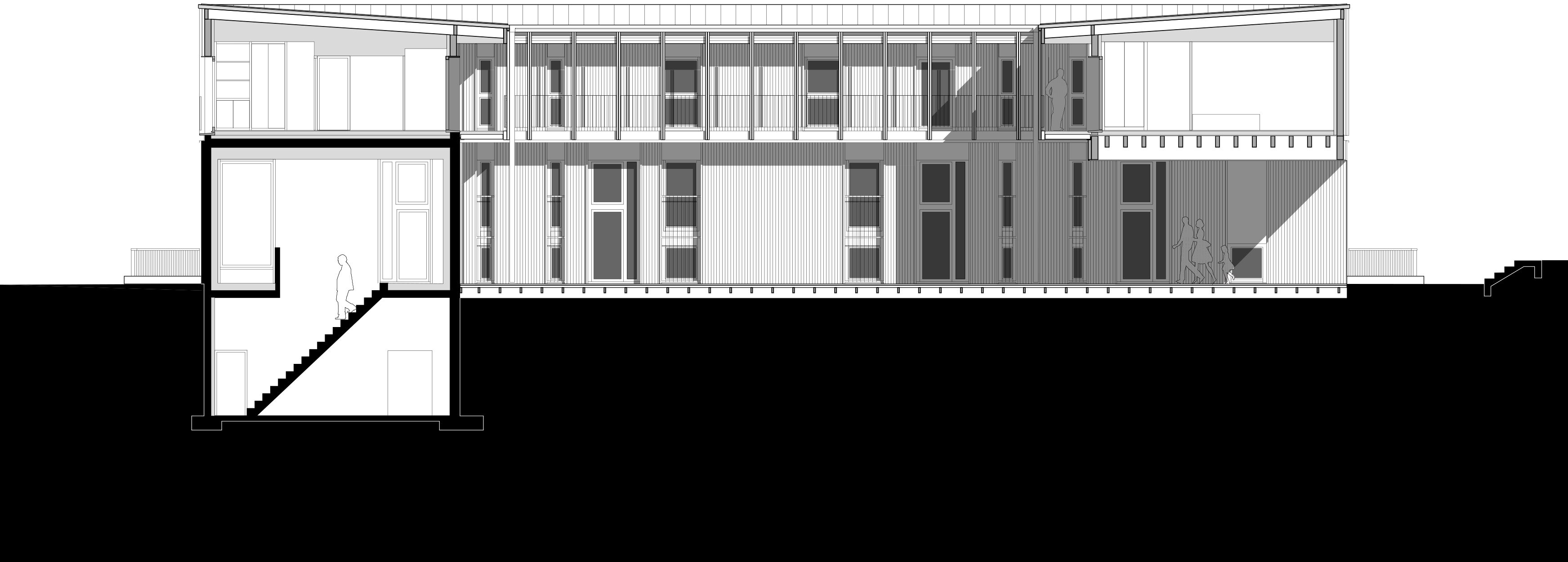
Approche environnementale : La prise en compte des données environnementales a été considérée comme une opportunité de projet, susceptible de faire émerger une architecture singulière. Le projet développe une forme d'hybridation de structures en béton et en bois. Le balcon suspendue et le large débord de toit protègent les logements de la surchauffe estival, tout en laissant passer le rayonnement hivernal. Les chappes et murs bétons jouent un rôle essentiel pour le confort d'été. L'isolation est entièrement biosourcée (ouate de cellulose, fibre de bois).

Descriptif technique : L’édifice est réalisé en structure mixte béton et bois. Toutes les structures en contact avec le sol sont en béton. Les deux duplex en partie centrale de la figure disposent de murs de refends et de planchers en béton. Les communs du rez de chaussée (niveau haut du patio) étant contre terrier, leurs structures seront en béton. Les murs de façades et les autres planchers sont en structure bois. Les menuiseries extérieures sont produite localement, en pin sylvestre abouté finition peinture, tout comme les persiennes qui occultent le projet. PEFC (Gestion forestière durable) Marquage CE

Performance du bâtiment (Cep en kWhep/m²/an) : 74.30
Chauffage au Bois : oui
Appareil de chauffage au bois : Chaudière
Données déclaratives

Acteurs du projet

Maître d'ouvrage (1)

Maître d'ouvrage - Particuliers

particulier (x)

Etudes et ingénieries (3)

Maître d'œuvre - Architecte mandataire

ATELIER DU ROUGET SIMON TEYSSOU ET ASSOCIES (15)

Bureau d'études thermique

BREHAULT INGENIERIE (46) *

Economiste

ATELIER DU ROUGET SIMON TEYSSOU ET ASSOCIES (15)

Entreprises des lots bois (3)

Charpentier

CHARLES TAILLANDIER (63)

Menuisier

MENUISERIE MARC DEFIX SARL (43)

Constructeur bois

CM BOIS ET HABITAT (12)

Fournisseurs du bois (1)

Industriel

CHARLES ET MOUYSSET (12)




* : L'entreprise n'est plus active
Retour à la liste