Travailler – accueillir
Travailler – accueillir

Bureaux en structure bois, quartier de la Montjoie

93210 Saint-Denis - Seine Saint Denis - Ile de France

BÂTIMENT / LOGEMENT

Cette opération de bureaux en blanc est conçue dans un esprit de grande compacité. Le bâtiment s’étire dans la diagonale de son terrain d’assiette, évitant tout vis-à-vis. Cette disposition dégage deux grands jardins en pleine terre qui offrent un linéaire boisé important sur la rue. L’un des deux est longé par une galerie – espace bioclimatique – qui valorise l’espace de restauration ; l’autre est un lieu de représentation. La répartition des masses bâties et des jardins est envisagée dans une relation de perméabilité : les espaces extérieurs fertilisent les espaces publics environnants.

Catégorie Bâtiment / logement
Numéro de projet7125
Adresse du projet 15-17 rue du Landy
93210 Saint-Denis
Date de candidature09/03/2022

Bâtiment / logement

Détail projet

Typologie de bâtiment : Neuf
Type de bâtiment : Lieu d'entreprise,Industrie et commerce,Service institutionnel et public
Année de livraison : 2020
Surface totale du bâtiment en m² : 24400
Coût total en € HT (hors foncier, hors VRD, hors honoraires) : 57000000
Volume lot bois n°1 - m³ : 5000
Bois Français : non
Isolations biosourcées (préciser dans le descriptif technique) : non
Matériaux géosourcés (préciser dans le descriptif technique) : non
Finitions intéreures biosourcées ou géosourcées (préciser dans le descriptif technique) : non

Structure bois du bâtiment

Structure verticale :

ProduitEssenceProvenances (lieu de croissance du bois)Traitements de préservationMarque et certification produit
Panneau de bois massif (CLT collé ou CLT cloué), Poteau poutreÉpicéa communEuropeJe n'ai pas l'information

Structure horizontale :

ProduitEssenceProvenances (lieu de croissance du bois)Traitements de préservationMarque et certification produit
Panneau de bois massif (CLT collé ou CLT cloué)Épicéa communEuropeJe n'ai pas l'information

Charpente :

ProduitEssenceProvenances (lieu de croissance du bois)Traitements de préservationMarque et certification produit
Charpente bois lamellé-colléÉpicéa communEuropeJe n'ai pas l'information

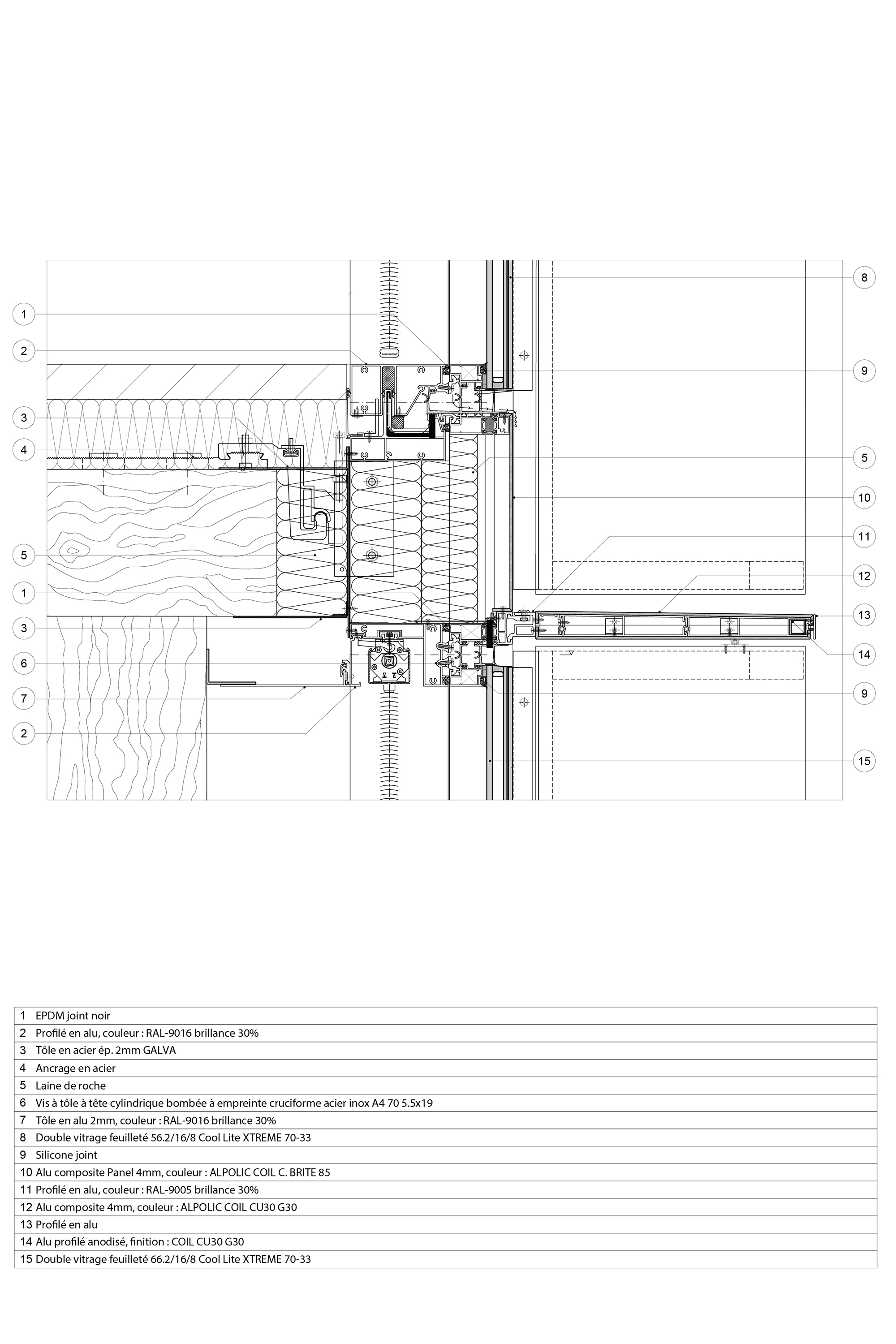
Revêtement bois extérieur

Autre revêtement métallique :

Produit
Alu

Menuiserie intérieure et extérieure

Isolation des murs

Isolation entre-montant des murs :

Produit
Laine de roche

Isolation de la toiture

Epaisseur (mm) Isolation extérieure de la toiture : 180

Approche environnementale : Les espaces verts sont pensés comme des leviers de pérennisation et équilibre d’un nouvel écosystème qui s’intègre dans le dessein écologique de la Zac et de la région. Ces zones de pleine terre représentent 1371 m² soit 22% de la surface du terrain. On y trouve trois strates de végétation : l’îlot boisé, constitué d’arbre de hautes tiges ; la fruticée, comprenant des arbustes et composant une lisière ; et la prairie accueillant des herbacées.

Descriptif technique : L’ensemble du projet est conçu en structure mixte, majoritairement bois, permettant une grande flexibilité des plateaux. Ils s'articulent autour de plusieurs noyaux centraux en béton qui contreventent le bâtiment, et reposent sur un squelette en poteau-poutre. Des poutres cintrées en bois lamellé-collé ont été fabriquées spécifiquement. Les matériaux sont utilisés pour ce qu’ils sont et se révèlent dans chaque espace de manière authentique. En façade, l'assemblage d'épines métalliques en aluminium anodisé conçues comme brise soleil provoque un effet cinétique dans le jeu des reflets. PEFC (Gestion forestière durable) NF Bâtiments Tertiaires Démarche HQEe

Performance du bâtiment (Cep en kWhep/m²/an) : 67
Chauffage au Bois : non
Certifications, labels et marques bâtiment : E + C -,Effinergie,Bâtiment Bas Carbone (BBCA)
Données déclaratives

Acteurs du projet

Maître d'ouvrage (1)

Maître d'ouvrage - Promoteurs immobiliers privés

BNP Paribas Immobilier (92)

Etudes et ingénieries (10)

Maître d'œuvre - Architecte mandataire

CHARTIER DALIX SAS (75)

Bureau d'études acoustique

CAPRI Acoustique (92)

Bureau d'études structure bois

TERRELL (92)

Bureau d'études environnement

ALTO INGENIERIE (77)

Bureau d'études thermique

BERIM (69)

Economiste

DELPORTE AUMOND LAIGNEAU (DAL) (75)

Autre intervenant de la construction - bureau de contrôle, AMO, BIM...

Socotec Agence Construction Seine Saint-Denis (93)

Designer / architecte d'intérieur

RF STUDIO (93)

Paysagiste

D ici la (75)
Franges paysage (Davide Costelli) (75)

Entreprises des lots bois (1)

Constructeur bois

MATHIS SA (67)




* : L'entreprise n'est plus active
Retour à la liste