Aménager
Aménager

PREAU ECOLE ARSAC

33460 ARSAC - Gironde - Nouvelle-Aquitaine

AMÉNAGEMENT BOIS

Aménagement exterieur

L'école maternelle dispose d'un préau préfabriqué depuis de nombreuses années. La demande est de remplacer ce préau. Nous proposons de l'amplifier dans l'espace comme dans l'usage. Ainsi il vient connecter les deux entrées de l'école et intègre en son sein un mur meuble servant les activités extérieures. L'atmosphère intérieure, celui des enfants et des professeurs privilégie le bois par le plafond et le mur meuble, support d'usages. Dans l'expression nous avons cherché à nous inspirer et tempérer l'architecture formellement complexe et chargée de l'école pour intégrer ce nouvel élément.

Catégorie aménagement bois, aménagement exterieur
Numéro de projet712
Adresse du projet 12 avenue de Ligondras
33460 ARSAC
Date de candidature30/03/2018

aménagement bois

typologie : Enseignement ou éducation
Coût total en € HT : 158000

aménagement exterieur

Année de réalisation : 2017
Coût total aménagement extérieur en € HT : 158000
Coût lots bois : 44000
Surface aménagée en m² : 233

Liste des produits :

ProduitEssenceProvenances (lieu de croissance du bois)Traitements de préservationFinitionMarque et certification produit
MobilierOKOUMEAucun traitementAucune finition
Notice architecturale : L'école maternelle dispose d'un préau préfabriqué depuis de nombreuses années. La demande est de remplacer ce préau. Nous proposons de l'amplifier dans l'espace comme dans l'usage. Ainsi il vient connecter les deux entrées de l'école et intègre en son sein un mur meuble servant les activités extérieures. L'atmosphère intérieure, celui des enfants et des professeurs privilégie le bois par le plafond et le mur meuble, support d'usages. Dans l'expression nous avons cherché à nous inspirer et tempérer l'architecture formellement complexe et chargée de l'école pour intégrer ce nouvel élément.
Approche environnementale : Le bois utilisé est non traité mais d'une essence exotique afin de résister aux intempéries, il s'agit d'un okoumé. L'orientation du préau est principalement Nord et Ouest. A ce titre la toiture est dimensionnée pour déborder à l'Ouest et protéger les ouvertures existantes de l'école. La hauteur de la structure du préau est adaptée à la conservation de la lumière naturelle dans l'école maternelle. Nous accrochons notre projet à deux éléments prégnants : la couleur blanche de l'enduit de l'école et le bandeau de toiture qui nous permet l'apparente continuité.
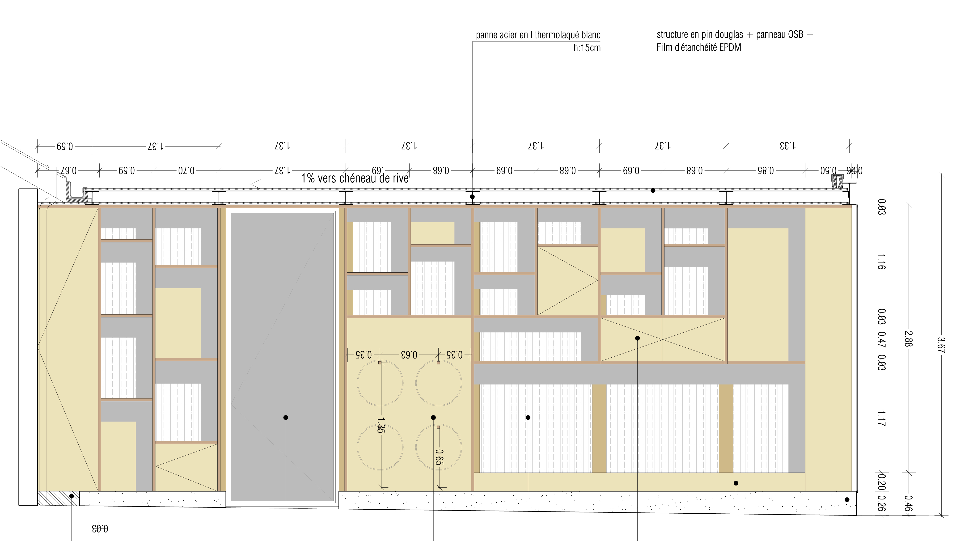
Descriptif technique de l'aménagement : La structure principale est une ossature métallique thermolaquée blanche. La couverture est constituée d'une membrane epdm posée sur une structure plancher fait de panne et de plaques d'osb. La sous face tout comme le mur meuble sont constituée de plaques jointives de contreplaqué marine en okoumé. Celui-ci est posé sur un socle béton et intègre une porte translucide toute hauteur et un habillage de polycarbonate alvéolaire afin de casser les vents tout en amenant de la lumière. Les rangements sont adaptés aux usages des enfants : porte manteaux / ranges cerceaux / casiers ouverts et fermés.
Données déclaratives

Acteurs du projet

Maître d'ouvrage (1)

Maître d'ouvrage - État ou collectivité (locale et territ)

MAIRIE D'ARSAC MEDOC (33)

Etudes et ingénieries (1)

Maître d'œuvre - Architecte mandataire

2PM ARCHITECTURES (33)

Entreprises des lots bois (1)

Menuisier

ENTREPRISE JUSTE (33)




* : L'entreprise n'est plus active
Retour à la liste