Réhabiliter un logement
Réhabiliter un logement

NLD Louis David

44000 Nantes - Loire Atlantique - Pays de la Loire

BÂTIMENT / LOGEMENT

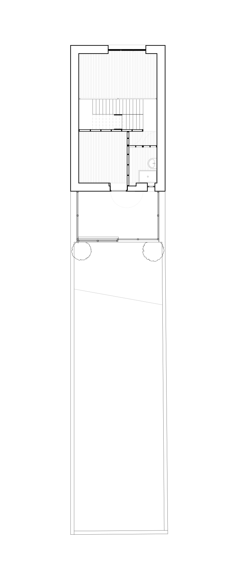
Sur une parcelle étroite, la maison existante est petite et peu fonctionnelle. L’objectif est d’augmenter la surface habitable dans les limites du volume existant. En procédant par petites touches indépendantes les unes des autres, le tableau d’une nouvelle habitation en bois est dessiné, en paliers et demi-niveaux en charpente bois, véranda et serre légère en ossature bois et espaces intermédiaires en contreplaqué entre intérieur et extérieur en aménagement bois.

Catégorie Bâtiment / logement
Numéro de projet7089
Date de candidature08/03/2022

Bâtiment / logement

Détail projet

Typologie de bâtiment : Extension / surélévation,Rénovation / Réhabilitation
Type de bâtiment : Logement individuel inférieur 120 m²
Année de livraison : 2021
Surface totale du bâtiment en m² : 92
Dont extension / surélévation en m² : 16
Coût total en € HT (hors foncier, hors VRD, hors honoraires) : 75334
Lot bois n°1 concerné : Charpente bois,ossature bois
Coût du lot bois n°1 - € HT : 22500
Lot bois n°2 concerné : Menuiserie intérieure bois
Coût du lot bois n°2 - € HT : 12500
Bois Français : non
Isolations biosourcées (préciser dans le descriptif technique) : oui
Matériaux géosourcés (préciser dans le descriptif technique) : non
Finitions intéreures biosourcées ou géosourcées (préciser dans le descriptif technique) : oui

Structure bois du bâtiment

Structure verticale :

ProduitEssenceProvenances (lieu de croissance du bois)Traitements de préservationMarque et certification produit
Panneau ossature bois

Structure horizontale :

ProduitEssenceProvenances (lieu de croissance du bois)Traitements de préservationMarque et certification produit
Solivage traditionnel

Charpente :

ProduitEssenceProvenances (lieu de croissance du bois)Traitements de préservationMarque et certification produit
Charpente traditionnelle

Revêtement bois extérieur

Menuiserie intérieure et extérieure

Isolation des murs

Isolation extérieure des murs :

Produit
Laine de bois souple
Epaisseur (mm) Isolation extérieure des murs : 145

Isolation de la toiture

Epaisseur (mm) Isolation extérieure de la toiture : 220

Approche environnementale : Pour des raisons d'économies, le système de chauffage au gaz a été conservé. La maison existante, très mal isolée, sur sa façade sud-ouest, se voit avec cette extension serre complètement remodelée et améliorée. La maison très sombre devient très lumineuse par l'agrandissement des murs maçonnés existants et l'ajout d'une grande fenêtre de toit dans le puit de lumière central. Ces ouvertures et la nouvelle serre créées tourne radicalement la maison vers son jardin.

Chauffage au Bois : non
Données déclaratives

Acteurs du projet

Maître d'ouvrage (1)

Maître d'ouvrage - Particuliers

particulier (x)

Etudes et ingénieries (1)

Maître d'œuvre - Architecte mandataire

0101 Agence D'Architecture (44)

Entreprises des lots bois (1)

Charpentier

Sinéco Charpente (44)

Fournisseurs du bois (1)

Scierie

ARBA (Artisans Réunis Bois Atlantique) (44)




* : L'entreprise n'est plus active
Retour à la liste