Réhabiliter un équipement

Mairie de Locmaria-Plouzané

29280 LOCMARIA-PLOUZANE - Finistère - Bretagne

BÂTIMENT / LOGEMENT

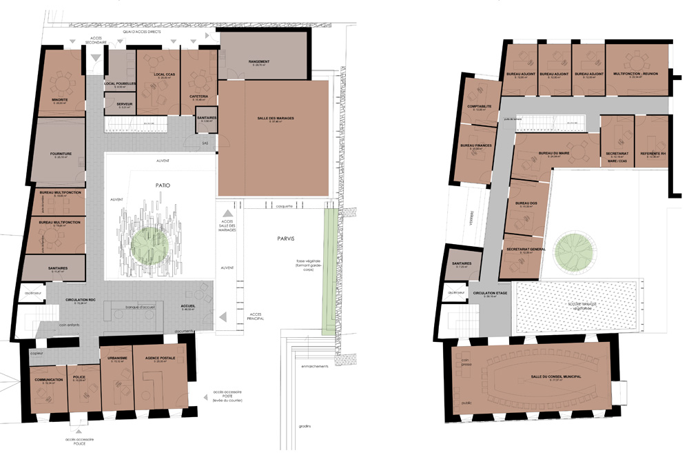
Le projet de restructuration de la mairie existante de Locmaria-Plouzané nait du déficit fonctionnel et thermique du bâtiment existant. Le bâtiment principal en pierre participe à la constitution du bourg. C'est pourquoi le projet s'en éloigne pour le mettre en valeur et créer un nouvel espace public autour d'un patio. La salle des mariages de l'extension en façade de pierre vient contrebalancer la salle du conseil installée dans l'étage de l'existant. L'ensemble du projet se développe sur un socle de granit, formant le nouveau parvis de la mairie, devant le futur aménagement du bourg.

Catégorie Bâtiment / logement
Numéro de projet7055
Adresse du projet Place de l'Hôtel de Ville
29280 LOCMARIA-PLOUZANE
Date de candidature08/03/2022

Bâtiment / logement

Détail projet

Typologie de bâtiment : Extension / surélévation,Rénovation / Réhabilitation
Type de bâtiment : Service institutionnel et public
Année de livraison : 2021
Surface totale du bâtiment en m² : 884
Dont extension / surélévation en m² : 834
Coût total en € HT (hors foncier, hors VRD, hors honoraires) : 1880000
Lot bois n°1 concerné : Charpente bois,ossature bois
Volume lot bois n°1 - m³ : 49.5
Coût du lot bois n°1 - € HT : 212677.61
Bois Français : non
Isolations biosourcées (préciser dans le descriptif technique) : oui
Matériaux géosourcés (préciser dans le descriptif technique) : non
Finitions intéreures biosourcées ou géosourcées (préciser dans le descriptif technique) : non

Structure bois du bâtiment

Structure verticale :

ProduitEssenceProvenances (lieu de croissance du bois)Traitements de préservationMarque et certification produit
Panneau ossature boisÉpicéa communEuropeTraitement Classe 2 (trempage)

Structure horizontale :

ProduitEssenceProvenances (lieu de croissance du bois)Traitements de préservationMarque et certification produit
Plancher mixte bois-acier , Solivage traditionnelÉpicéa communEuropeTraitement Classe 2 (trempage)

Charpente :

ProduitEssenceProvenances (lieu de croissance du bois)Traitements de préservationMarque et certification produit
Caisson de toiture, Charpente bois lamellé-collé, Charpente traditionnelleÉpicéa communEuropeTraitement Classe 2 (trempage)

Revêtement bois extérieur

Revêtement bois ou dérivés :

ProduitEssenceProvenances (lieu de croissance du bois)Marque et certification produitFinitionTraitements de préservation
Panneau de synthèse ou composite

Revêtement minéral :

Produit
Pierre agraphée

Autre revêtement métallique :

Produit
Acier
Alu

Menuiserie intérieure et extérieure

Isolation des murs

Isolation entre-montant des murs :

Produit
Epaisseur (mm) Isolation entre-montant des murs : 220

Isolation de la toiture

Epaisseur (mm) Isolation entre-montant de la toiture : 315

Approche environnementale : Lauréat de l'appel à projet de l'Ademe/Région concernant les bâtiment environnementaux (Démarche ACV), le projet dissimule discrètement ses qualités techniques et environnementales. Si les parois présentent des revêtements non représentatifs des matériaux bio-sourcés hormis la pierre, l'extension au-dessus de son socle est entièrement traitée en ossature bois isolée en fibre de bois par l'extérieur et insufflée en ouate de cellulose. Le projet présente un corps de bâtiment relativement compact autour du patio, tandis que les façades menuisées sont calibrées en fonction de leurs orientations.

Descriptif technique : L’enveloppe fortement isolée, une inertie intérieure est apportée par des chapes béton à tous les niveaux, y compris pour l’étage par un plancher collaborant. L’existant suit les performances de l’extension, avec une isolation en fibre de bois, tandis que la ventilation double flux irrigue l’ensemble du bâtiment. Une chaufferie bois granulé assure le chauffage, tandis que des panneaux photovoltaïques sont implantés en lestage sur la toiture terrasse, dans un but d’intégration optimale.

Performance du bâtiment (Cep en kWhep/m²/an) : 26
Chauffage au Bois : oui
Appareil de chauffage au bois : Chaudière
Données déclaratives

Acteurs du projet

Maître d'ouvrage (1)

Maître d'ouvrage - État ou collectivité (locale et territ)

Commune de Locmaria Plouzané (29)

Etudes et ingénieries (5)

Maître d'œuvre - Architecte mandataire

Atelier Rubin Associés (22)

Bureau d'études acoustique

Alhyange Acoustique (44)

Bureau d'études structure bois

QSB – Lannion (22)

Bureau d'études thermique

EICE (22)

Economiste

ECMO Ingenierie (29)

Entreprises des lots bois (1)

Charpentier

MCA SCOP (29)




* : L'entreprise n'est plus active
Retour à la liste