Travailler – accueillir

Base de maintenance de La Turballe, EDFen

44420 La Turballe - Loire Atlantique - Pays de la Loire
Lauréat régional
Finaliste national

BÂTIMENT / LOGEMENT

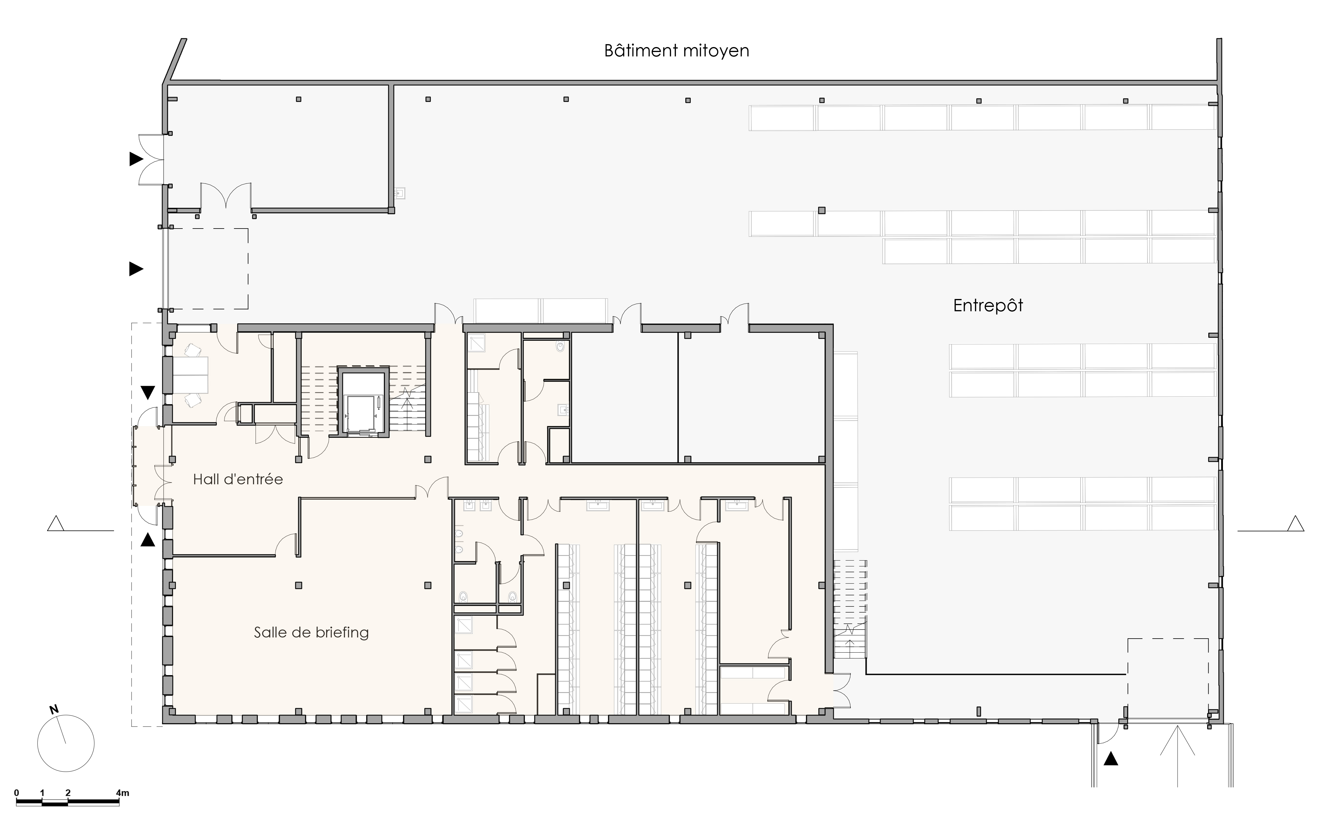
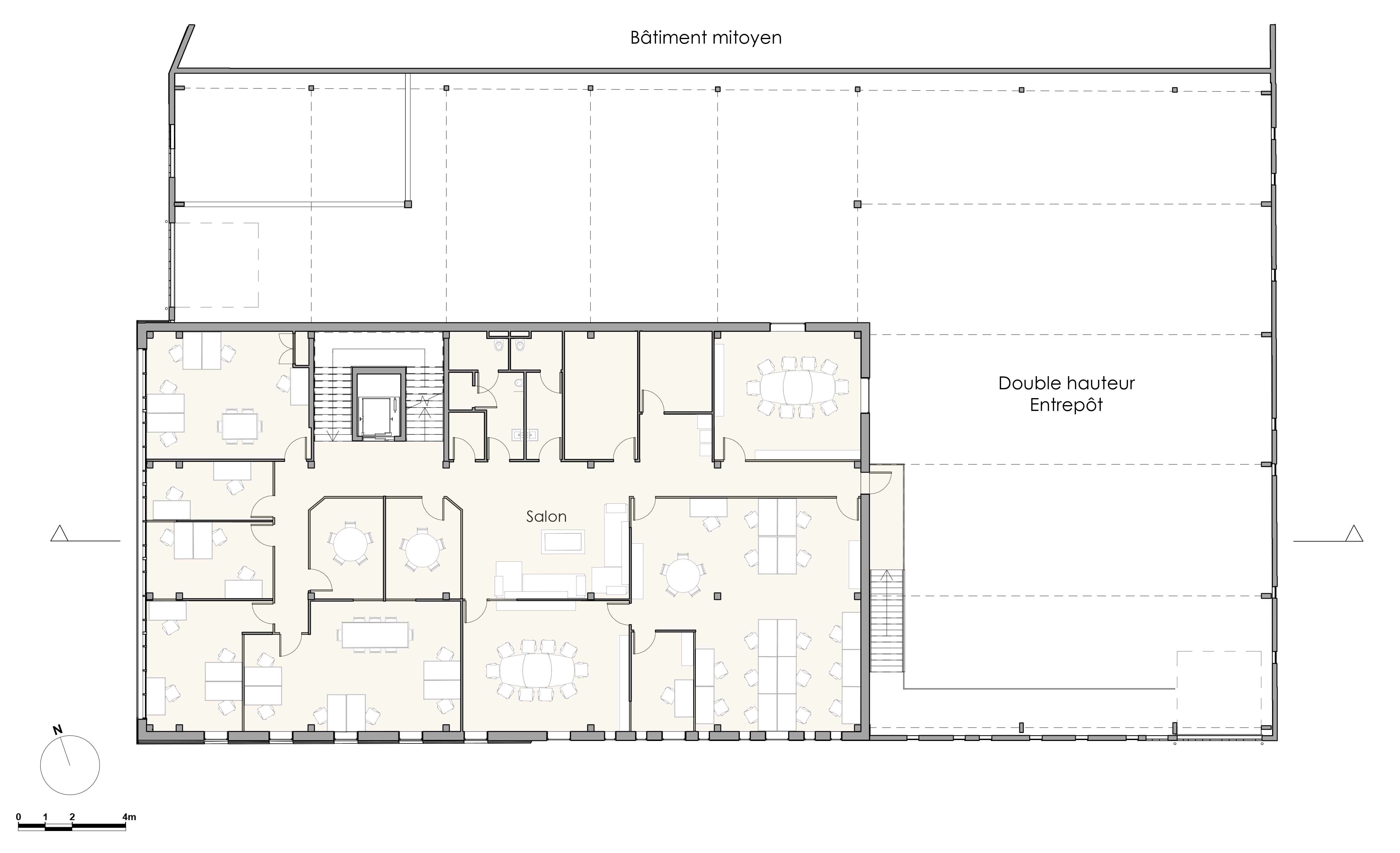
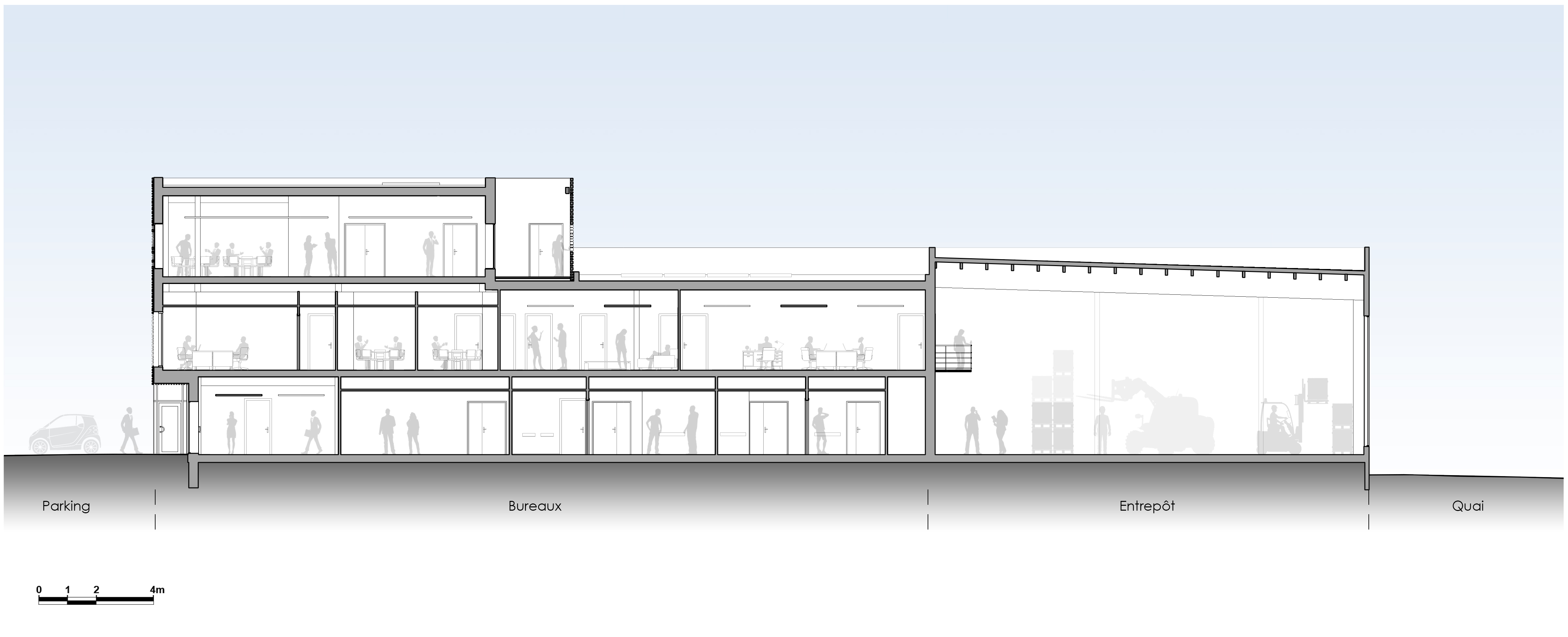
La base de maintenance accueille les équipes du parc éolien offshore de Guérande, à quelques kilomètres de la côte. Les bureaux et l’entrepôt ont été pensés pour que la performance énergétique et l’impact carbone du bâtiment soient en accord avec l’activité du site, tout en offrant des conditions de travail optimales aux salariés, par des espaces de travail agréables et des matériaux sains. L’intégration du bâtiment dans le port est un enjeu majeur du projet. Celui-ci distingue deux volumes imbriqués, l’un bardé de bois et l’autre bardé d’inox poli-miroir mat, reflétant les couleurs du port.

Catégorie Bâtiment / logement
Numéro de projet7036
Adresse du projet Base de maintenance, Parc du Banc de Guérande
44420 La Turballe
Date de candidature07/03/2022

Bâtiment / logement

Détail projet

Typologie de bâtiment : Neuf
Type de bâtiment : Lieu d'entreprise,Industrie et commerce
Année de livraison : 2021
Surface totale du bâtiment en m² : 1700
Coût total en € HT (hors foncier, hors VRD, hors honoraires) : 3100000
Lot bois n°1 concerné : Autre lot bois
Volume lot bois n°1 - m³ : 340.54
Coût du lot bois n°1 - € HT : 27427437.5
Lot bois n°2 concerné : Bardage bois,Menuiserie intérieure bois,ossature bois
Volume lot bois n°2 - m³ : 41.21
Coût du lot bois n°2 - € HT : 140726.02
Bois Français : oui
Isolations biosourcées (préciser dans le descriptif technique) : oui
Matériaux géosourcés (préciser dans le descriptif technique) : non
Finitions intéreures biosourcées ou géosourcées (préciser dans le descriptif technique) : oui

Structure bois du bâtiment

Structure verticale :

ProduitEssenceProvenances (lieu de croissance du bois)Traitements de préservationMarque et certification produit
Panneau ossature boisDouglasFranceAucun traitement
Poteau poutreÉpicéa communEuropeAucun traitement

Structure horizontale :

ProduitEssenceProvenances (lieu de croissance du bois)Traitements de préservationMarque et certification produit
Panneau de bois massif (CLT collé ou CLT cloué)TempéréFranceAucun traitement

Charpente :

ProduitEssenceProvenances (lieu de croissance du bois)Traitements de préservationMarque et certification produit
Charpente industrielleÉpicéa communFranceAucun traitement

Revêtement bois extérieur

Revêtement bois ou dérivés :

ProduitEssenceProvenances (lieu de croissance du bois)Marque et certification produitFinitionTraitements de préservation
Lame bois massifSapin pectinéEuropeTropicalpré-griséTraitement Classe 3b (autoclave)

Autre revêtement métallique :

Produit
Acier

Menuiserie intérieure et extérieure

Menuiserie extérieure :

ProduitEssenceProvenances (lieu de croissance du bois)Marque et certification produitFinition
Menuiserie mixteÉpicéa communEuropeTropicalpré-grisé

Isolation des murs

Isolation intérieure des murs :

Produit
Epaisseur (mm) Isolation intérieure des murs : 150

Isolation entre-montant des murs :

Produit
Béton de chanvre
Epaisseur (mm) Isolation entre-montant des murs : 200

Isolation extérieure des murs :

Produit
Fibre de bois (Panneaux)
Laine de roche
Epaisseur (mm) Isolation extérieure des murs : 120

Isolation de la toiture

Epaisseur (mm) Isolation extérieure de la toiture : 100

Approche environnementale : Le projet suit la RT2012, avec une anticipation de la RT2020. Le bâtiment a été réalisé avec le plus de matériaux biosourcés possible. L’enveloppe de bureaux est isolée différemment selon les localisations. Celle-ci est performante pour assurer un confort d’été et d’hivers pour les utilisateurs. La partie bureaux est orientée Sud-Ouest pour profiter des apports solaires et les exploiter pour un apport thermique naturel. Les bureaux sont alimentés en énergie renouvelable par un champ de panneaux photovoltaïques sur une partie de la toiture. Le bâtiment est labélisé Cradle to Cradle (C2C).

Descriptif technique : La parcelle est située sur l’embouchure du port de La Turballe et présente la particularité d'avoir des fondations préexistantes sur lesquelles le bâtiment devrait s'implanter. La logique du projet est de respecter les implantations des fondations existantes, constituées par des pieux. La structure bois a été choisie pour sa légèreté. Sur la partie bureaux, la structure est contreventée par un système de planchers CLT, une cage d’escalier en CLT et un ensemble de murs à ossatures bois reprennent les efforts. Sur la partie atelier, le contreventement est réalisé par des diagonales en bois.

Performance du bâtiment (Cep en kWhep/m²/an) : 75.3
Chauffage au Bois : non
Données déclaratives

Acteurs du projet

Maître d'ouvrage (2)

Maître d'ouvrage - Industriels - commerçants - entreprise

Parc du Banc de Guérande (92)

Autres

EDF IMMO (75)

Etudes et ingénieries (6)

Maître d'œuvre - Architecte mandataire

Can Ingenieurs Architectes (44)

Maître d’œuvre - Architecte collaborateur

ATELIER WOA (75)

Bureau d'études structure bois

3C ECO STRUCTURES (35)

Economiste

Can Ingenieurs Architectes (44)

Autre intervenant de la construction - bureau de contrôle, AMO, BIM...

AIREO ENERGIES (44)
KORNOG (56) *

Entreprises des lots bois (3)

Charpentier

CCL CONSTRUCTION (35)

Menuisier

MIROITERIES D'ARMOR (22)
AGENTEC DELAHAIE (49)

Fournisseurs du bois (3)

Industriel

ACERBOIS (75)
ANTE-HOLZ Gmbh (D-)
LALLIARD (74)




* : L'entreprise n'est plus active
Retour à la liste