Habiter une maison
Habiter une maison

Maison individuelle en paille, bois et terre

67550 Vendenheim - Bas Rhin - Grand Est

BÂTIMENT / LOGEMENT

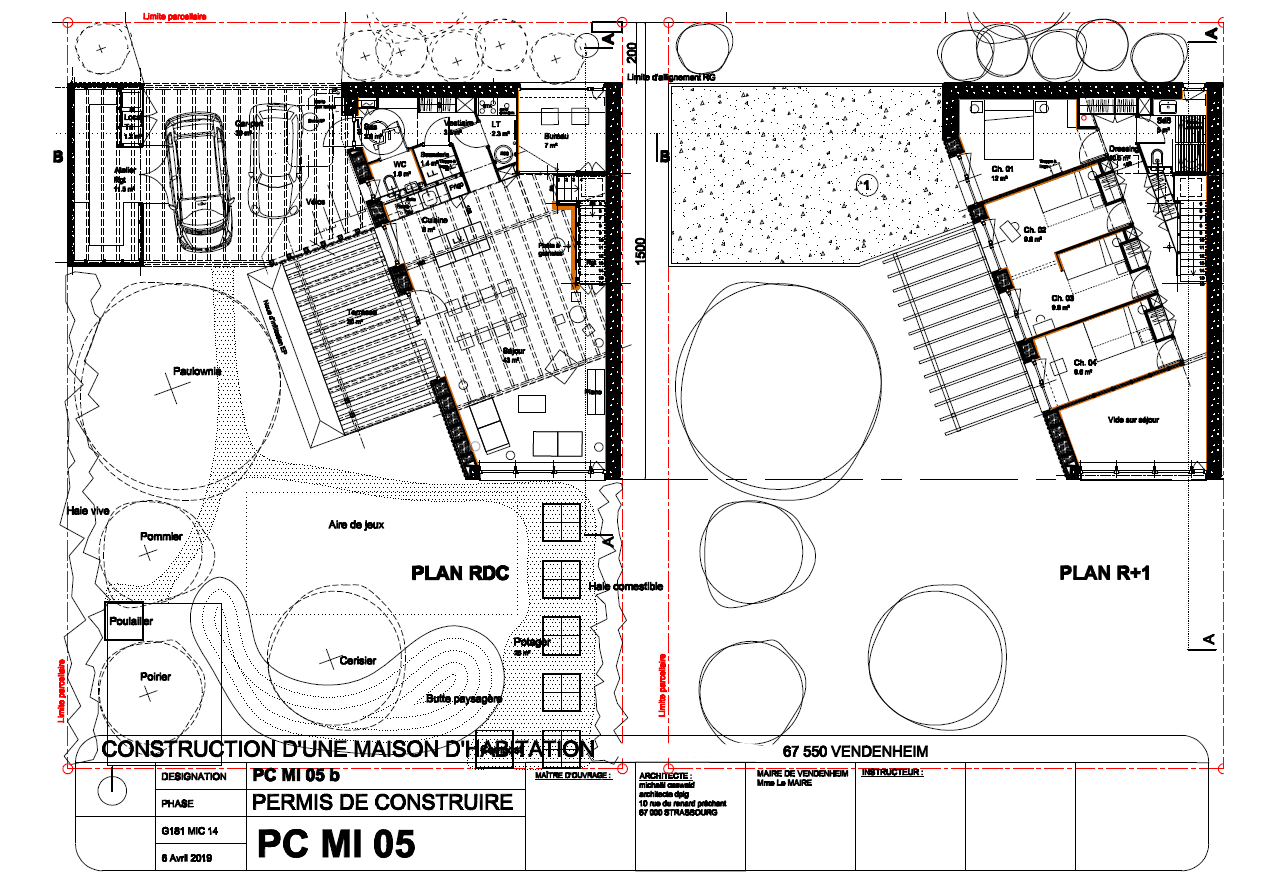
Le projet s'inscrit dans la logique initiée par les urbanistes de l'éco-quartier. Construire sur limite parcellaire en mitoyenneté et constituer un front bâti sur rue. Le volume principal de l’habitation est taillé comme une pièce de bois avec des angles pour à la fois en façade s’ouvrir sur le terrain et en toiture former une pente pour drainer les eaux pluviales vers l’intérieur de la parcelle. Un car-port positionné entre la maison et un local de rangement en limite parcellaire forme la façade sur rue. Une grande baie vitrée est positionnée sur le pignon Sud.

Catégorie Bâtiment / logement
Numéro de projet7025
Date de candidature07/03/2022

Bâtiment / logement

Détail projet

Typologie de bâtiment : Neuf
Type de bâtiment : Logement individuel supérieur à 120 m²
Année de livraison : 2021
Surface totale du bâtiment en m² : 130
Coût total en € HT (hors foncier, hors VRD, hors honoraires) : 300000
Volume lot bois n°1 - m³ : 30
Coût du lot bois n°1 - € HT : 65000
Volume lot bois n°2 - m³ : 3
Coût du lot bois n°2 - € HT : 31000
Bois Français : oui
Isolations biosourcées (préciser dans le descriptif technique) : oui
Matériaux géosourcés (préciser dans le descriptif technique) : non
Finitions intéreures biosourcées ou géosourcées (préciser dans le descriptif technique) : oui

Structure bois du bâtiment

Structure verticale :

ProduitEssenceProvenances (lieu de croissance du bois)Traitements de préservationMarque et certification produit
Panneau ossature boisÉpicéa communEuropeTraitement Classe 2 (trempage)

Structure horizontale :

ProduitEssenceProvenances (lieu de croissance du bois)Traitements de préservationMarque et certification produit
Poutre en I ou mixteÉpicéa communEuropeTraitement Classe 2 (trempage)

Charpente :

ProduitEssenceProvenances (lieu de croissance du bois)Traitements de préservationMarque et certification produit
Caisson de toitureÉpicéa communEuropeTraitement Classe 2 (trempage)

Revêtement bois extérieur

Revêtement bois ou dérivés :

ProduitEssenceProvenances (lieu de croissance du bois)Marque et certification produitFinitionTraitements de préservation
Lame bois massifMélèzeGrand-EstAucune finition

Revêtement minéral :

Produit
Enduit chaux

Menuiserie intérieure et extérieure

Menuiserie extérieure :

ProduitEssenceProvenances (lieu de croissance du bois)Marque et certification produitFinition
Menuiserie boisMélèzeEuropeSaturateur

Isolation des murs

Isolation intérieure des murs :

Produit
Laine de chanvre
Epaisseur (mm) Isolation intérieure des murs : 30

Isolation entre-montant des murs :

Produit
Epaisseur (mm) Isolation entre-montant des murs : 300

Isolation extérieure des murs :

Produit
Fibre de bois (Panneaux)
Epaisseur (mm) Isolation extérieure des murs : 60

Isolation de la toiture

Epaisseur (mm) Isolation entre-montant de la toiture : 200
Epaisseur (mm) Isolation extérieure de la toiture : 120

Approche environnementale : Bâtiment à 80 % en filière sèche, bois massif, bottes de paille, plaques d’argile, … Conception bioclimatique avec les orientations des baies vitrées, masse intérieure avec la terre crue et forte isolation de l’enveloppe avec des menuiseries LC mélèze à triple vitrage. Chauffage par poêle à granulés de 6 kW et ventilation double flux équipée d’un puits canadien.

Descriptif technique : Le volume de la maison est isolé par des caissons à ossature bois et bottes de paille. Les parements intérieurs des murs sont constitués de plaques d’argile avec un enduit terre-paille de finition. L’ensemble des toitures sont végétalisées. La maison est marquée par un pignon enduit à la chaux alors que l’ensemble des façades sont bardées de planches de mélèze brut avec couvres joints.

Chauffage au Bois : oui
Appareil de chauffage au bois : Poële/insert
Données déclaratives

Acteurs du projet

Maître d'ouvrage (1)

Maître d'ouvrage - Particuliers

particulier (x)

Etudes et ingénieries (2)

Maître d'œuvre - Architecte mandataire

K&+ architecture globale (67)

Bureau d'études thermique

SOLARES BAUEN (67)

Entreprises des lots bois (4)

Charpentier

CHARPENTES MARTIN FILS (67)

Menuisier

MENUISERIE EBENISTERIE KERN CHRISTOPHE (67)
VOLLMER menuiseries extérieures (67)

Autre lot de la construction (en lien avec le bois)

BATILIBRE (67)

Fournisseurs du bois (1)

Scierie

MOMBERT PHILIPPE (57)




* : L'entreprise n'est plus active
Retour à la liste