Travailler – accueillir
Travailler – accueillir

Reconstruction du gite d'hébergement du Col de Légal

15140 Saint-Projet-de-Salers - Cantal - Auvergne-Rhône-Alpes

BÂTIMENT / LOGEMENT

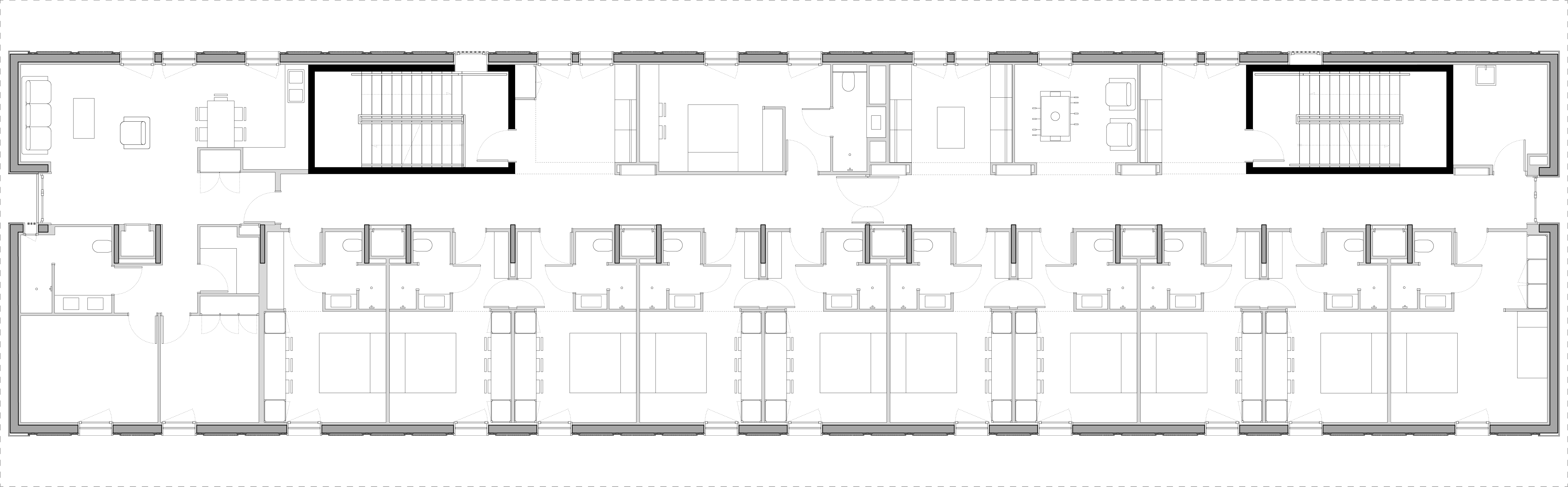
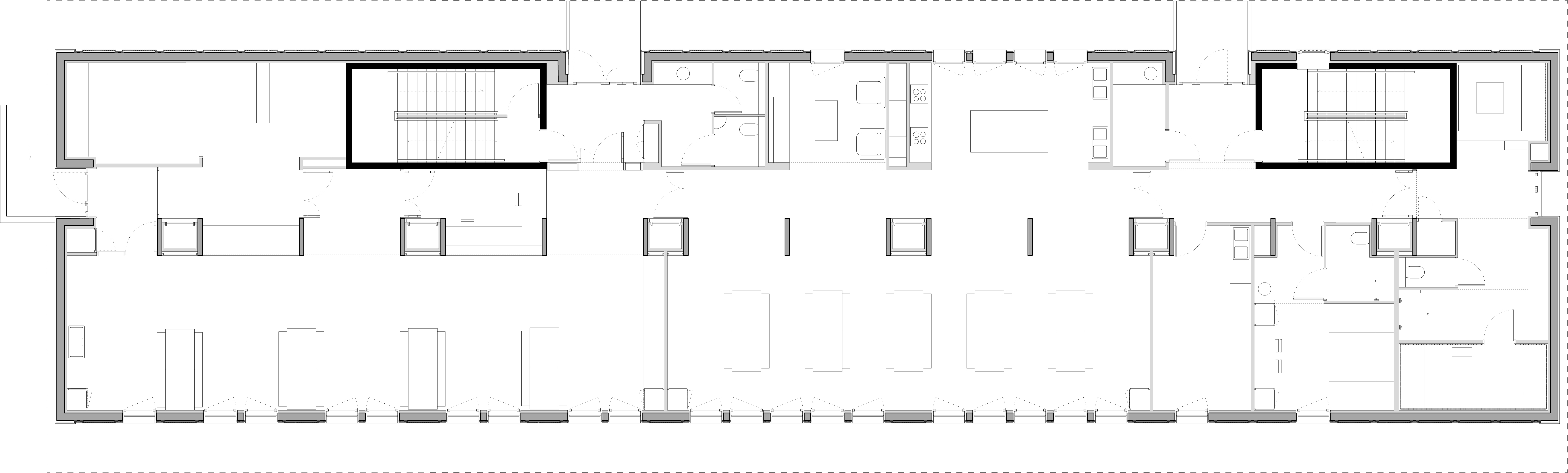
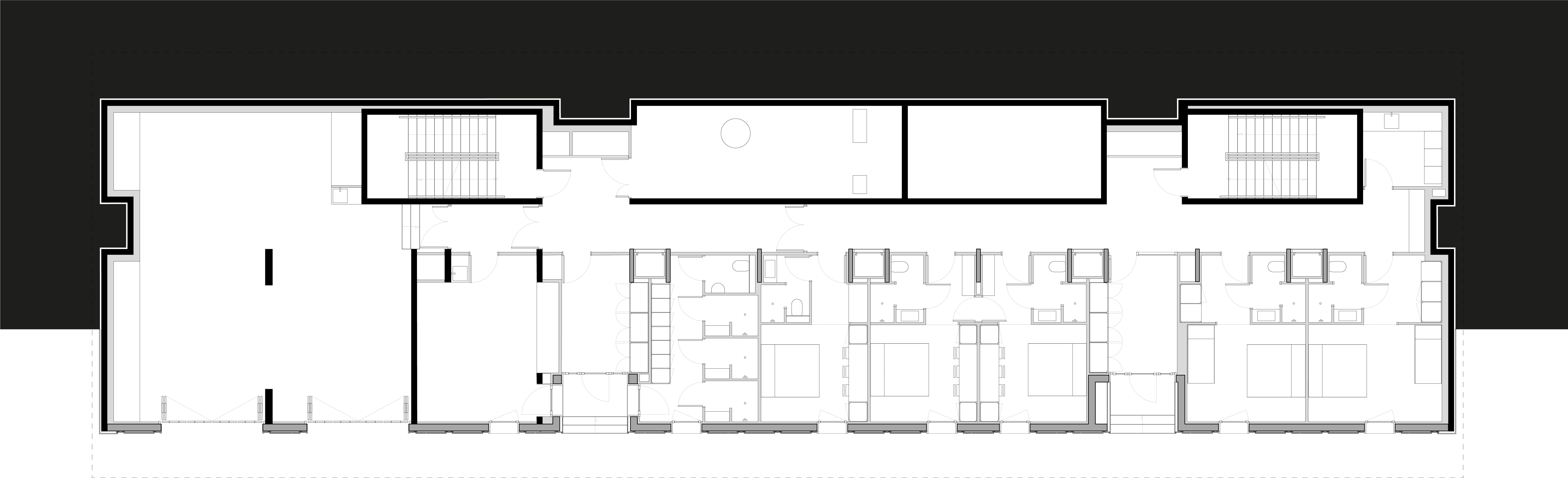
Le projet du Col de Légal consiste à redonner vie à un site touristique d’exception du paysage cantalien. Pour retrouver une attractivité certaine, le choix de la maitrise d’ouvrage s’est porté sur la démolition des du gîte et du foyer de ski de fond, vétustes et inadapté au confort d’usage contemporain. Le projet consiste en la création d’un nouvel établissement regroupant les deux programmes. La structure d’hébergement dispose d’une capacité d’accueil portée à 48 personnes pour recevoir des classes scolaires.

Catégorie Bâtiment / logement
Numéro de projet7016
Adresse du projet Col de Légal
15140 Saint-Projet-de-Salers
Date de candidature07/03/2022

Bâtiment / logement

Détail projet

Typologie de bâtiment : Neuf
Type de bâtiment : Hébergement
Année de livraison : 2020
Surface totale du bâtiment en m² : 1145
Coût total en € HT (hors foncier, hors VRD, hors honoraires) : 2094000
Volume lot bois n°1 - m³ : 181
Coût du lot bois n°1 - € HT : 496000
Volume lot bois n°2 - m³ : 15
Coût du lot bois n°2 - € HT : 136000
Bois Français : oui
Isolations biosourcées (préciser dans le descriptif technique) : oui
Matériaux géosourcés (préciser dans le descriptif technique) : non
Finitions intéreures biosourcées ou géosourcées (préciser dans le descriptif technique) : oui

Structure bois du bâtiment

Structure verticale :

ProduitEssenceProvenances (lieu de croissance du bois)Traitements de préservationMarque et certification produit
Panneau ossature boisDouglasNouvelle-Aquitaine
Poteau poutreDouglasNouvelle-Aquitaine

Structure horizontale :

ProduitEssenceProvenances (lieu de croissance du bois)Traitements de préservationMarque et certification produit
Solivage traditionnelDouglasNouvelle-Aquitaine

Charpente :

ProduitEssenceProvenances (lieu de croissance du bois)Traitements de préservationMarque et certification produit
Charpente bois lamellé-colléDouglas

Revêtement bois extérieur

Revêtement bois ou dérivés :

ProduitEssenceProvenances (lieu de croissance du bois)Marque et certification produitFinitionTraitements de préservation
Lame bois massifDouglasNouvelle-AquitaineAucune finitionAucun traitement

Menuiserie intérieure et extérieure

Menuiserie extérieure :

ProduitEssenceProvenances (lieu de croissance du bois)Marque et certification produitFinition
Menuiserie boisMélèzeNouvelle-AquitaineLasure

Isolation des murs

Isolation intérieure des murs :

Produit
Fibre de bois (Panneaux)
Epaisseur (mm) Isolation intérieure des murs : 80

Isolation entre-montant des murs :

Produit
Fibre de bois (Panneaux)
Epaisseur (mm) Isolation entre-montant des murs : 220

Isolation de la toiture

Epaisseur (mm) Isolation intérieure de la toiture : 450

Approche environnementale : Situé sur un terrain contraint par sa topographie et soumis à un climat de montagne (1230 mètres d’altitude), l’édifice s’adosse à la pente en s’implantant parallèlement aux courbes de niveaux. Cette disposition permet d’exposer les pièces de vie ainsi que les chambres au Sud pour chercher un rayonnement solaire favorable des vues lointaines sur le grand paysage. L’isolation est en fibre de bois. A l’instar de l’architecture traditionnelle du Nord Cantal, les pignons sont bardés de métal pour éviter leur altération dans le temps.

Descriptif technique : Le projet est entièrement en structure bois (murs, planchers et charpente). Les menuiseries extérieures sont en mélèze et les bardages en douglas purgé d’aubier. Largement débordante, la couverture en zinc protège les murs gouttereaux en bois. L’importante garde au sol des ouvrages en bois permet, en outre, de mettre les façades à l’abri des projections d’eau de pluie et des chutes de neige. Elle est aussi le prétexte pour créer des dispositifs qualifiant les seuils de l’édifice sous forme de passages surélevés, de porches et d’emmarchements.

Chauffage au Bois : oui
Appareil de chauffage au bois : Chaudière
Données déclaratives

Acteurs du projet

Maître d'ouvrage (1)

Maître d'ouvrage - État ou collectivité (locale et territ)

COMMUNAUTE COM DU PAYS DE SALERS (15)

Etudes et ingénieries (5)

Maître d'œuvre - Architecte mandataire

ATELIER DU ROUGET SIMON TEYSSOU ET ASSOCIES (15)

Bureau d'études structure bois

BUREAU INGENIERIE MODELING (BIM.B) (82)

Bureau d'études thermique

BREHAULT INGENIERIE (46) *

Economiste

ATELIER DU ROUGET SIMON TEYSSOU ET ASSOCIES (15)

Autre intervenant de la construction - bureau de contrôle, AMO, BIM...

SETERSO (47)

Entreprises des lots bois (2)

Charpentier

ETS GUILLAUMIE (87)

Menuisier

ETS GUILLAUMIE (87)




* : L'entreprise n'est plus active
Retour à la liste