Réhabiliter un logement
Réhabiliter un logement

Benoit

13100 beaurecueil - Bouches du rhône - Provence Alpes Côte d'Azur

BÂTIMENT / LOGEMENT

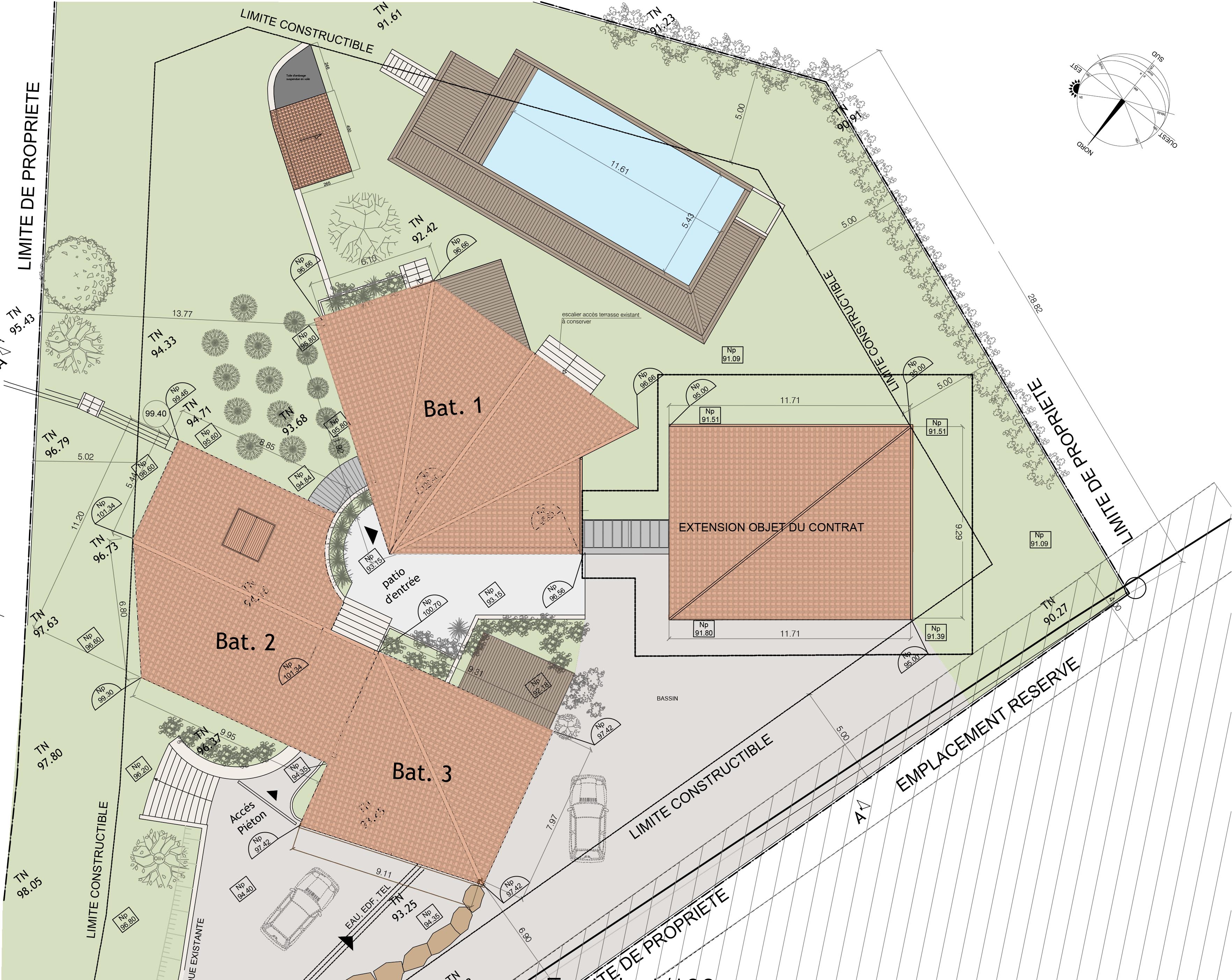
Situé dans un cadre Cézannien, le terrain a pour arrière-plan la Sainte Victoire. Une maison en ossature bois a été construite il y a une dizaine d'année par l'Agence Solari et Associés pour laquelle une extension avait été envisagée. Le maître d’ouvrage recherchait l’esprit des maisons varoises de Maurice Sauzet dont l’inspiration japonaise et méditerranéenne est basée sur un véritable dialogue avec le paysage et les parcours avec de petits jardins patios. Ce projet répond à un site en restanques et le désir d’une architecture éco performante et contemporaine en pays provençal.

Catégorie Bâtiment / logement
Numéro de projet6999
Date de candidature07/03/2022

Bâtiment / logement

Détail projet

Typologie de bâtiment : Extension / surélévation
Type de bâtiment : Logement individuel inférieur 120 m²
Année de livraison : 2019
Surface totale du bâtiment en m² : 298
Dont extension / surélévation en m² : 73
Coût total en € HT (hors foncier, hors VRD, hors honoraires) : 120000
Lot bois n°1 concerné : Charpente bois,Bardage bois,ossature bois
Volume lot bois n°1 - m³ : 17
Coût du lot bois n°1 - € HT : 68288
Bois Français : oui
Isolations biosourcées (préciser dans le descriptif technique) : oui
Matériaux géosourcés (préciser dans le descriptif technique) : non
Finitions intéreures biosourcées ou géosourcées (préciser dans le descriptif technique) : oui

Structure bois du bâtiment

Structure verticale :

ProduitEssenceProvenances (lieu de croissance du bois)Traitements de préservationMarque et certification produit
Panneau ossature bois, Poteau poutreÉpicéa communProvence-Alpes-Côte-d'Azur

Structure horizontale :

ProduitEssenceProvenances (lieu de croissance du bois)Traitements de préservationMarque et certification produit
Plancher béton

Charpente :

ProduitEssenceProvenances (lieu de croissance du bois)Traitements de préservationMarque et certification produit
Caisson de toiture, Charpente bois lamellé-collé, Charpente traditionnelleÉpicéa communProvence-Alpes-Côte-d'Azur

Revêtement bois extérieur

Revêtement bois ou dérivés :

ProduitEssenceProvenances (lieu de croissance du bois)Marque et certification produitFinitionTraitements de préservation
Lame bois massifDouglasCentre-Val-de-Loire

Revêtement minéral :

Produit
Enduit chaux

Autre revêtement métallique :

Produit
Zinc

Menuiserie intérieure et extérieure

Menuiserie extérieure :

ProduitEssenceProvenances (lieu de croissance du bois)Marque et certification produitFinition
Volet bois

Isolation des murs

Isolation entre-montant des murs :

Produit
Laine de bois souple
Epaisseur (mm) Isolation entre-montant des murs : 145

Isolation extérieure des murs :

Produit
Fibre de bois (Panneaux)
Epaisseur (mm) Isolation extérieure des murs : 60

Isolation de la toiture

Epaisseur (mm) Isolation entre-montant de la toiture : 300

Approche environnementale : Le projet est conçu selon les préceptes de l'architecture bioclimatique et bénéficie d'apports solaires optimaux en hiver tout en étant protégé des surchauffes estivales par de larges débords de toiture qui offrent des espaces extérieurs généreux au projet. Les matériaux choisis s'inscrivent dans une démarche écologique cohérente et sont essentiellement bio-sourcés.

Descriptif technique : La maison et son extension sont construites en ossature bois isolée en matériaux bio-sourcés sur des dalles béton afin d'apporter de l'inertie au bâtiment spécialement utile pour le confort d'été.

Chauffage au Bois : oui
Appareil de chauffage au bois : Poële/insert
Données déclaratives

Acteurs du projet

Maître d'ouvrage (1)

Maître d'ouvrage - Particuliers

particulier (x)

Etudes et ingénieries (2)

Maître d'œuvre - Architecte mandataire

SOLARI & ASSOCIES SARL (13)

Bureau d'études structure bois

CALDER (34)

Entreprises des lots bois (2)

Charpentier

EXE ECO-CONSTRUCTION BOIS SCOP (13)

Autre lot de la construction (en lien avec le bois)

OOKI Construction (13)




* : L'entreprise n'est plus active
Retour à la liste