Réhabiliter un équipement
Réhabiliter un équipement

Sur la cascade

73160 SAINT CASSIN - Savoie - Auvergne-Rhône-Alpes

BÂTIMENT / LOGEMENT

Notre projet comprend la création d’une quatrième classe, d’une salle de repos, d’une salle des maîtres, d’un bureau de direction et d’une tisanerie. Afin de proposer des locaux plus adaptés aux besoins, nous prévoyons une salle de repos différenciée de la salle d’activité, des vestiaires mieux répartis, le tout permettant un fonctionnement fluidifié.Le confort et le bien-être des usagers est au cœur de ce projet, il est primordial pour nous de proposer un projet adapté aux enfants et adultes qui vivent l’école dans son fonctionnement quotidien.

Catégorie Bâtiment / logement
Numéro de projet6990
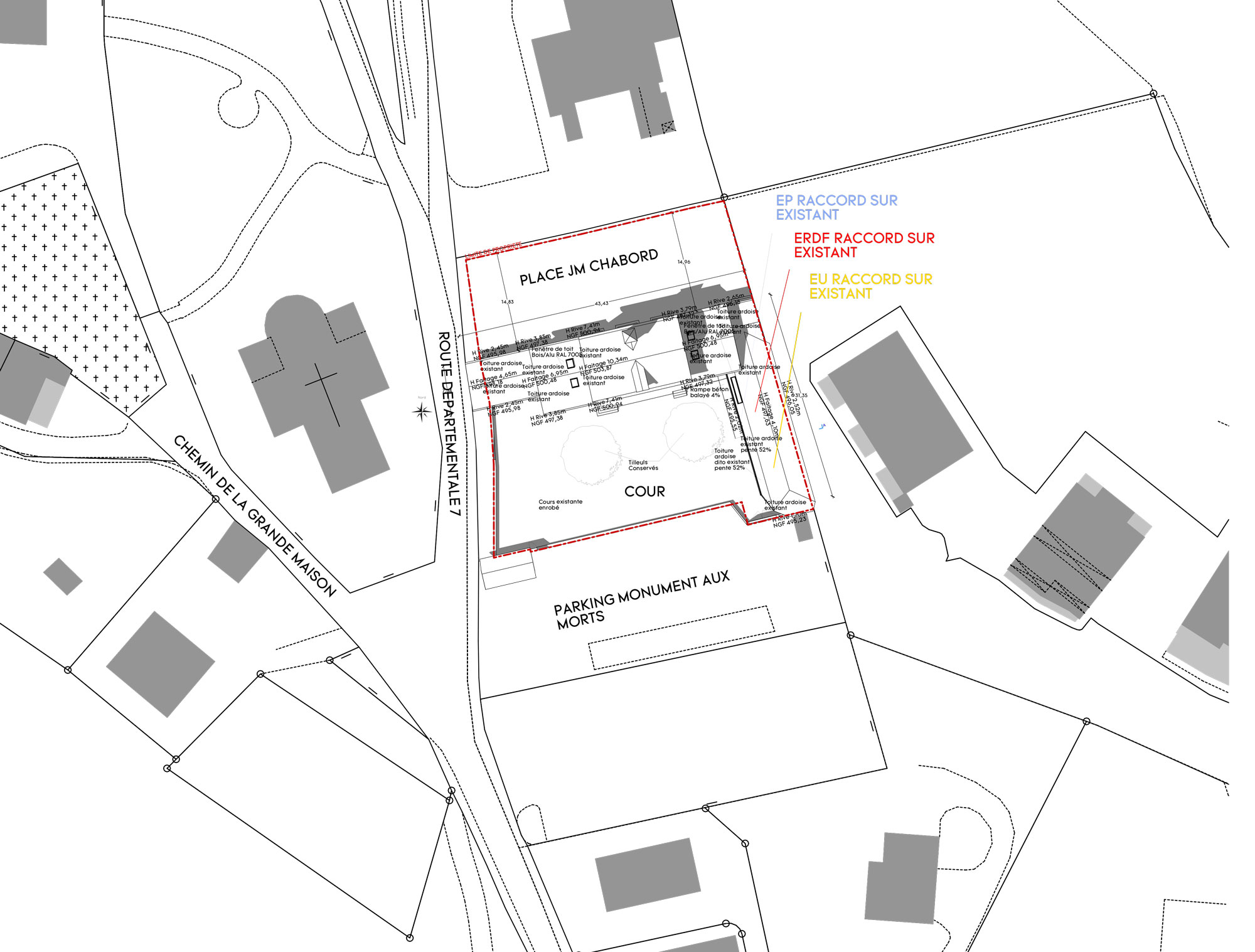
Adresse du projet 20 place JM Chabord
73160 SAINT CASSIN
Date de candidature07/03/2022

Bâtiment / logement

Détail projet

Typologie de bâtiment : Extension / surélévation
Type de bâtiment : Enseignement ou éducation
Année de livraison : 2021
Surface totale du bâtiment en m² : 420
Dont extension / surélévation en m² : 51
Coût total en € HT (hors foncier, hors VRD, hors honoraires) : 740000
Volume lot bois n°1 - m³ : 6
Coût du lot bois n°1 - € HT : 64285.06
Coût du lot bois n°2 - € HT : 53451
Bois Français : oui
Isolations biosourcées (préciser dans le descriptif technique) : oui
Matériaux géosourcés (préciser dans le descriptif technique) : oui
Finitions intéreures biosourcées ou géosourcées (préciser dans le descriptif technique) : non

Structure bois du bâtiment

Structure verticale :

ProduitEssenceProvenances (lieu de croissance du bois)Traitements de préservationMarque et certification produit
Panneau ossature bois, Poteau poutreÉpicéa communAuvergne-Rhône-AlpesAucun traitement

Structure horizontale :

ProduitEssenceProvenances (lieu de croissance du bois)Traitements de préservationMarque et certification produit
Solivage traditionnelÉpicéa communAuvergne-Rhône-AlpesAucun traitement

Charpente :

ProduitEssenceProvenances (lieu de croissance du bois)Traitements de préservationMarque et certification produit
Charpente traditionnelleÉpicéa communAuvergne-Rhône-AlpesAucun traitement

Revêtement bois extérieur

Revêtement bois ou dérivés :

ProduitEssenceProvenances (lieu de croissance du bois)Marque et certification produitFinitionTraitements de préservation
Lame bois massifDouglasAuvergne-Rhône-AlpesAucune finitionAucun traitement

Menuiserie intérieure et extérieure

Isolation des murs

Isolation intérieure des murs :

Produit
Laine de chanvre
Laine de bois souple
Epaisseur (mm) Isolation intérieure des murs : 60

Isolation entre-montant des murs :

Produit
Laine de chanvre
Epaisseur (mm) Isolation entre-montant des murs : 140

Isolation extérieure des murs :

Produit
Fibre de bois (Panneaux)
Epaisseur (mm) Isolation extérieure des murs : 60

Isolation de la toiture

Epaisseur (mm) Isolation intérieure de la toiture : 200
Epaisseur (mm) Isolation entre-montant de la toiture : 80

Approche environnementale : Nous avons conçu, en coopération avec la Maîtrise d’Ouvrage, un projet d’école vertueux environnementalement avec une recherche de performances énergétiques du bâtiment en privilégiant les matériaux biosourcés et le réemploi de matériaux existants afin de garantir un chantier à faible impact.

Descriptif technique : Bois des Alpes

Chauffage au Bois : oui
Appareil de chauffage au bois : Chaudière
Données déclaratives

Acteurs du projet

Maître d'ouvrage (1)

Maître d'ouvrage - Services publics

COMMUNE DE SAINT CASSIN (73)

Etudes et ingénieries (6)

Maître d'œuvre - Architecte mandataire

WILD ARCHITECTURE (69)

Bureau d'études structure bois

IOA-OTEIS (74)

Bureau d'études thermique

EPCO ENERGIES (69)

Economiste

DEQUAES JEAN PAUL ROSE (69)

Autre intervenant de la construction - bureau de contrôle, AMO, BIM...

DYN'A.M.O. (73)
ENER'BAT (73) *

Entreprises des lots bois (2)

Charpentier

ATELIER CHAR.ME.BOIS (38)

Menuisier

CARRE MENUISERIE (38)

Fournisseurs du bois (1)

Scierie

SCIERIE FRISON (73)




* : L'entreprise n'est plus active
Retour à la liste