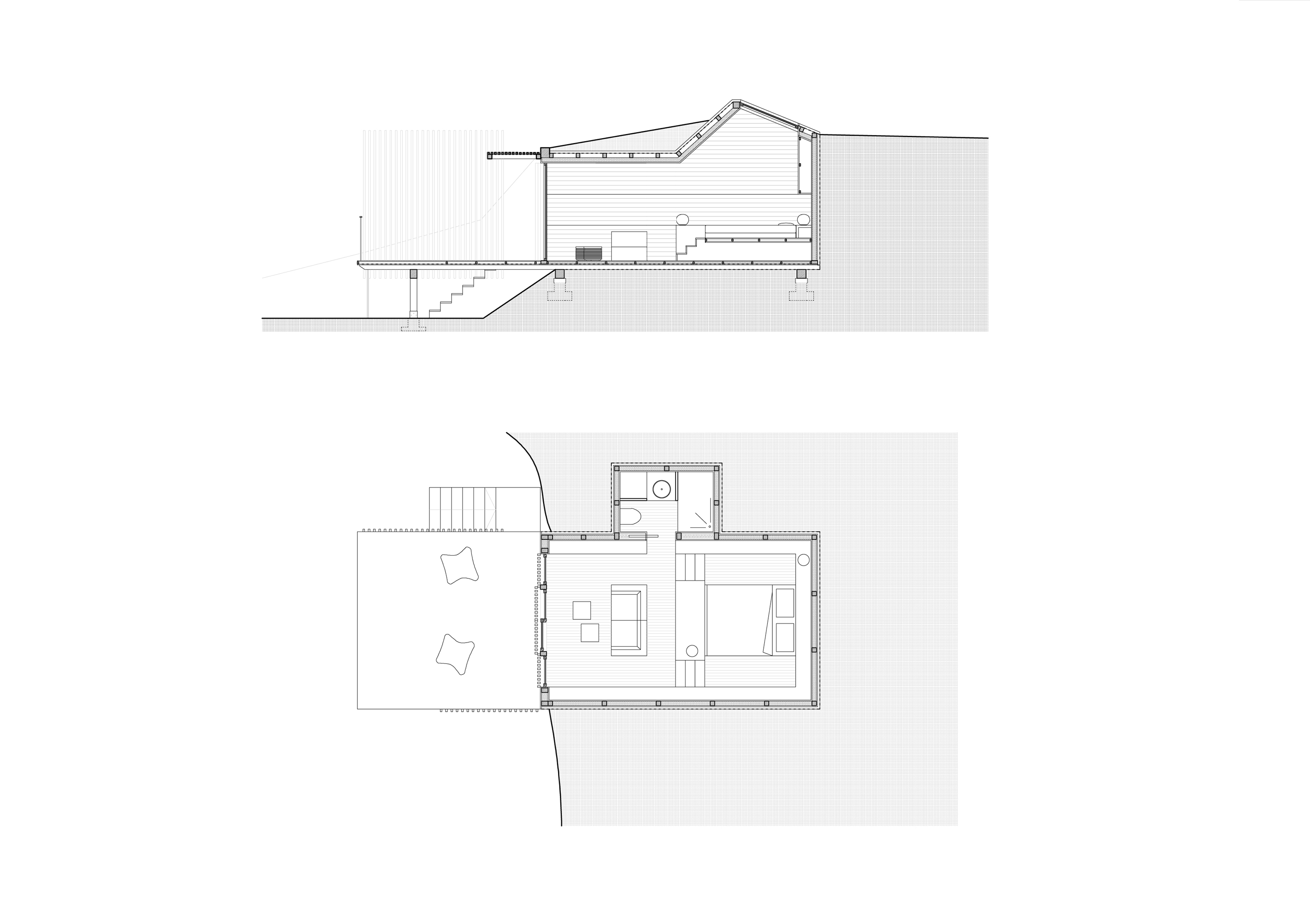
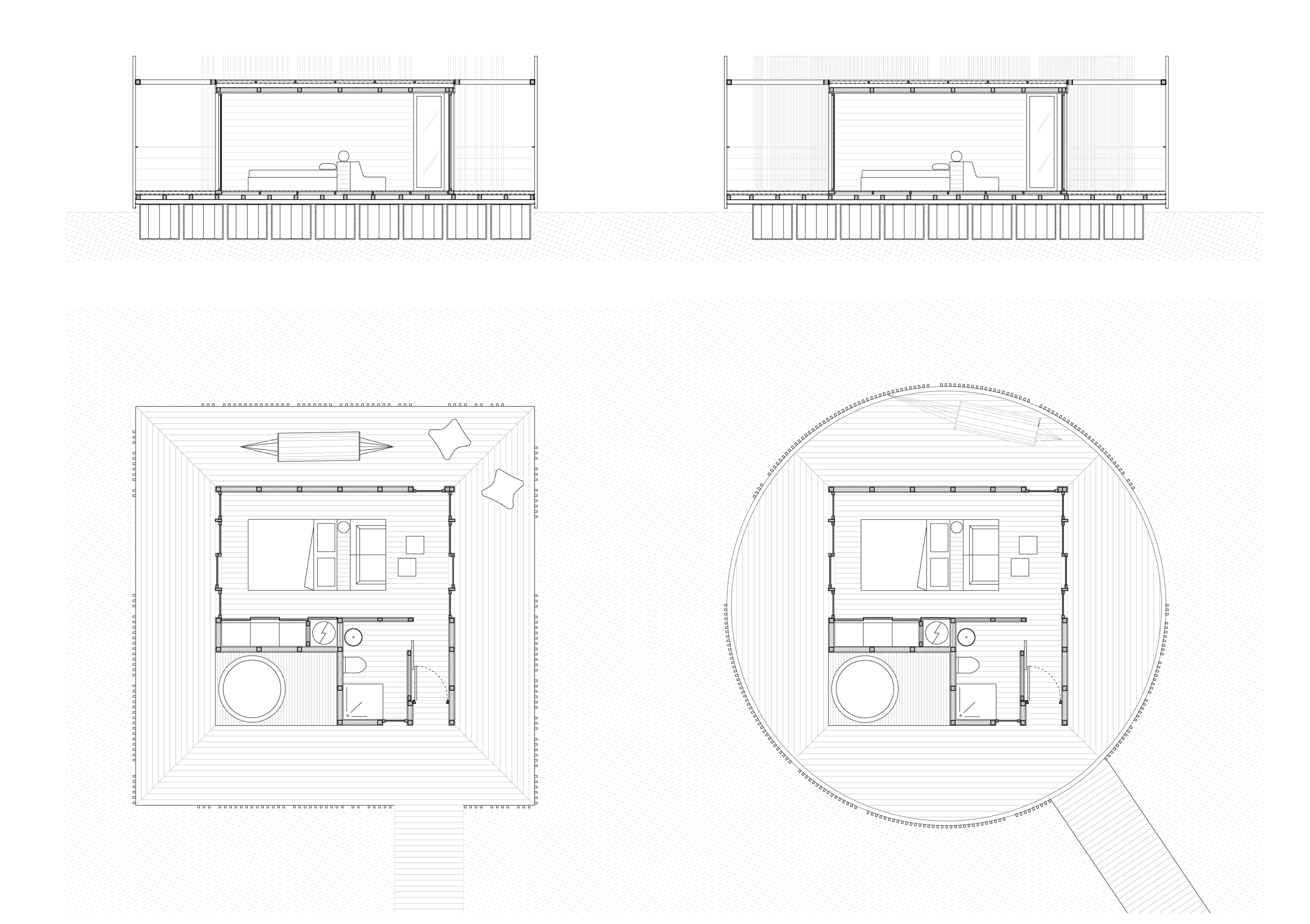
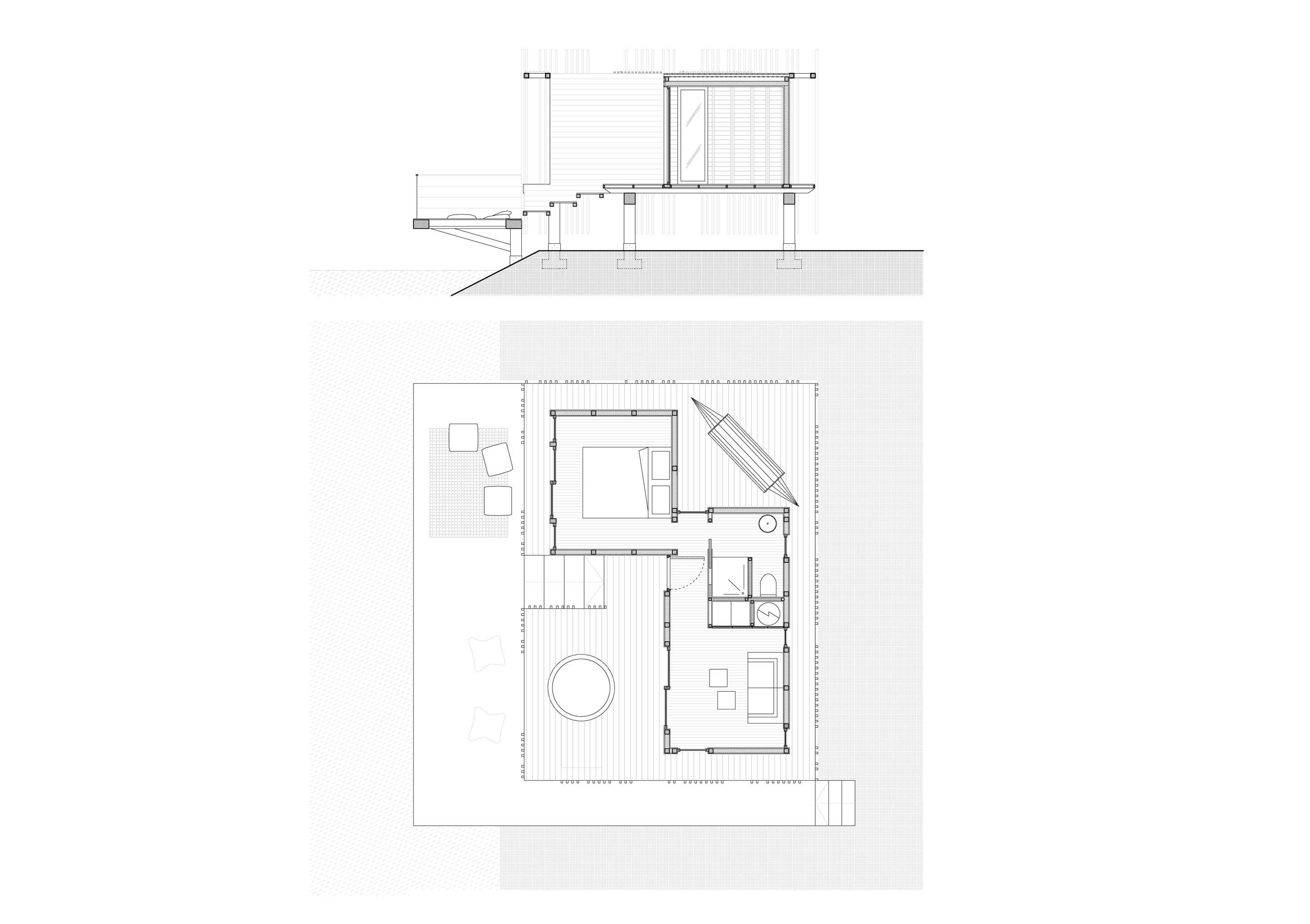
L’éco-domaine est situé dans une réserve de pêche à Avignon. Les suites évoquent des bâtiments primitifs au bord du lac; flottant sur l’eau comme des radeaux ou sur des pilotis comme des palafittes. L’attention n’est pas portée seulement sur les matériaux utilisés dans le revêtement extérieur, mais aussi sur le confort de l’espace qui doit répondre aux besoins de ses habitants: confort acoustique, thermique et économie d'énergie dans la pratique quotidienne des suites dans la nature.
L’éco-domaine est situé dans une réserve de pêche à Avignon. Les suites évoquent des bâtiments primitifs au bord du lac; flottant sur l’eau comme des radeaux ou sur des pilotis comme des palafittes. L’architecture dialogue parfaitement avec les roseaux du lac dont elle reprend l’élégant élan vertical. Le rythme irrégulier des brises vues autour des cabanes garantit l’intimité de ses habitants tout en les mettant à l’abri du soleil et du vent.
Catégorie | aménagement bois, aménagement intérieur, aménagement exterieur |
---|---|
Numéro de projet | 689 |
Adresse du projet |
2061 Chemin des Pompes Lac de la Lionne 84700 SORGUES |
Date de candidature | 30/03/2018 |
Liste des produits :
Produit | Essence | Provenances (lieu de croissance du bois) | Marque et certification produit | Finition | |
---|---|---|---|---|---|
Lambris | Sapin pectiné | Nouvelle-Aquitaine | Aucune finition | ||
Mobilier | Châtaignier | Nouvelle-Aquitaine | Aucune finition | ||
Parquet | Pin maritime | Nouvelle-Aquitaine | Aucune finition |
Approche environnementale : Les structures en bois et les matériaux d’isolation en fibre naturelle (laine de mouton, fibre de bois, chanvre…) permettent d’isoler thermiquement et acoustiquement les cabanes de l’extérieur en préservant le confort du client final et l'écologie du projet. Le bois provienne exclusivement des forêts certifiées PEFC. La conception architecturale devient un exercice de retour aux sources, une pensée totale pour qu’on puisse retranscrire le sentiment d’appartenance à l’univers naturel dont la ville d’aujourd’hui nous éloigne.
Descriptif technique de l'aménagement : L'ensemble des cabanes est constitué d'un volume centrale, isolé thermiquement en ossature bois et avec un revêtement en lamelle de bois ajourées. Pour éviter des aléas de chantier sur des sites éloignés, les projets sont largement préfabriqués. Les composants sont en partie numérotés, démontés et reconstruits sur place. La préfabrication réduit les coûts de production et de main-d'œuvre lors de l'installation avec très peu d’impact sur le paysage. Pour ses qualités techniques, telles que la légèreté, le bois devient l'une des ressources durables les plus intéressantes. Il est également très résistant, recyclable et biodégradable.
Liste des produits :
Produit | Essence | Provenances (lieu de croissance du bois) | Traitements de préservation | Finition | Marque et certification produit |
---|---|---|---|---|---|
Lame de terrasse | Douglas | Nouvelle-Aquitaine | Aucune finition | ||
Mobilier | Châtaignier | Nouvelle-Aquitaine | Aucune finition | ||
Passerelle / Estacade | Douglas | Nouvelle-Aquitaine | Aucune finition |
LES CABANES DES GRANDS CEPAGES (84)
SARL MAISONS DANS LES ARBRES (24)