Réhabilitation et extension d'un groupe scolaire Pasteur

95110 Sannois - Val d'Oise - Ile de France

BÂTIMENT / LOGEMENT

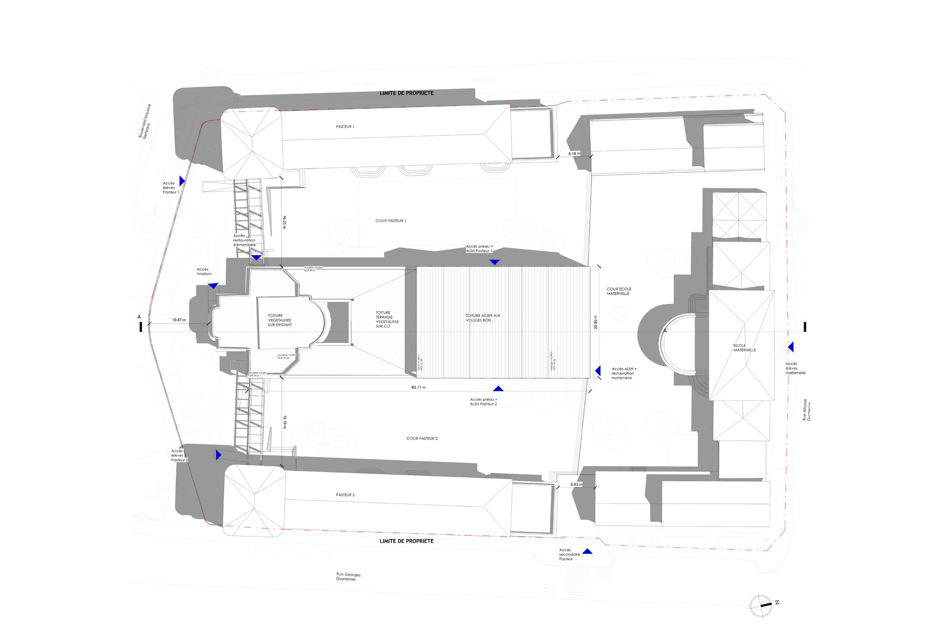
La composition des volumes émane de la conception même du bâtiment qui est imaginé comme une succession de portiques en bois. Le bâtiment, au centre d'un vaste complexe scolaire, nait à la jonction avec l'ancienne cantine et prend de la hauteur à travers une toiture conçue comme un origami. Celle-ci abrite une salle polyvalente ainsi qu'un préau en lien avec les cours du groupe scolaire. Les différentes salles d'activité sont desservies depuis ces espaces communs. Elles bénéficient, sous la double pente en toiture, d’un ample volume propice au développement de l’imaginaire des enfants.

Catégorie Bâtiment / logement
Numéro de projet6870
Adresse du projet 23 boulevard Maurice Berteaux
95110 Sannois
Date de candidature25/02/2022

Bâtiment / logement

Détail projet

Typologie de bâtiment : Aucun
Type de bâtiment : Enseignement ou éducation
Année de livraison : Janvier 2021
Surface totale du bâtiment en m² : 4270
Dont extension / surélévation en m² : 1585
Coût total en € HT (hors foncier, hors VRD, hors honoraires) : 3500000
Lot bois n°1 concerné : Charpente bois,ossature bois
Volume lot bois n°1 - m³ : 225
Coût du lot bois n°1 - € HT : 614749.76
Lot bois n°2 concerné : Bardage bois
Volume lot bois n°2 - m³ : 15.4
Coût du lot bois n°2 - € HT : 197899.69
Bois Français : non
Isolations biosourcées (préciser dans le descriptif technique) : non
Matériaux géosourcés (préciser dans le descriptif technique) : non
Finitions intéreures biosourcées ou géosourcées (préciser dans le descriptif technique) : non

Structure bois du bâtiment

Structure verticale :

ProduitEssenceProvenances (lieu de croissance du bois)Traitements de préservationMarque et certification produit
Panneau ossature boisMélèzeTraitement Classe 2 (trempage)

Structure horizontale :

ProduitEssenceProvenances (lieu de croissance du bois)Traitements de préservationMarque et certification produit
Panneau de bois massif (CLT collé ou CLT cloué)Épicéa communTraitement Classe 2 (trempage)

Charpente :

ProduitEssenceProvenances (lieu de croissance du bois)Traitements de préservationMarque et certification produit
Caisson de toitureMélèzeTraitement Classe 2 (trempage)

Revêtement bois extérieur

Revêtement bois ou dérivés :

ProduitEssenceProvenances (lieu de croissance du bois)Marque et certification produitFinitionTraitements de préservation
Lame bois massifMélèzeAsieSaturateurTraitement Classe 3a (trempage)

Autre revêtement métallique :

Produit
Acier

Menuiserie intérieure et extérieure

Menuiserie extérieure :

ProduitEssenceProvenances (lieu de croissance du bois)Marque et certification produitFinition
Menuiserie mixtePin maritimeLasure

Isolation des murs

Isolation intérieure des murs :

Produit
Laine de verre
Epaisseur (mm) Isolation intérieure des murs : 45
Epaisseur (mm) Isolation entre-montant des murs : 200

Isolation extérieure des murs :

Produit
Laine de verre

Isolation de la toiture

Epaisseur (mm) Isolation entre-montant de la toiture : 200

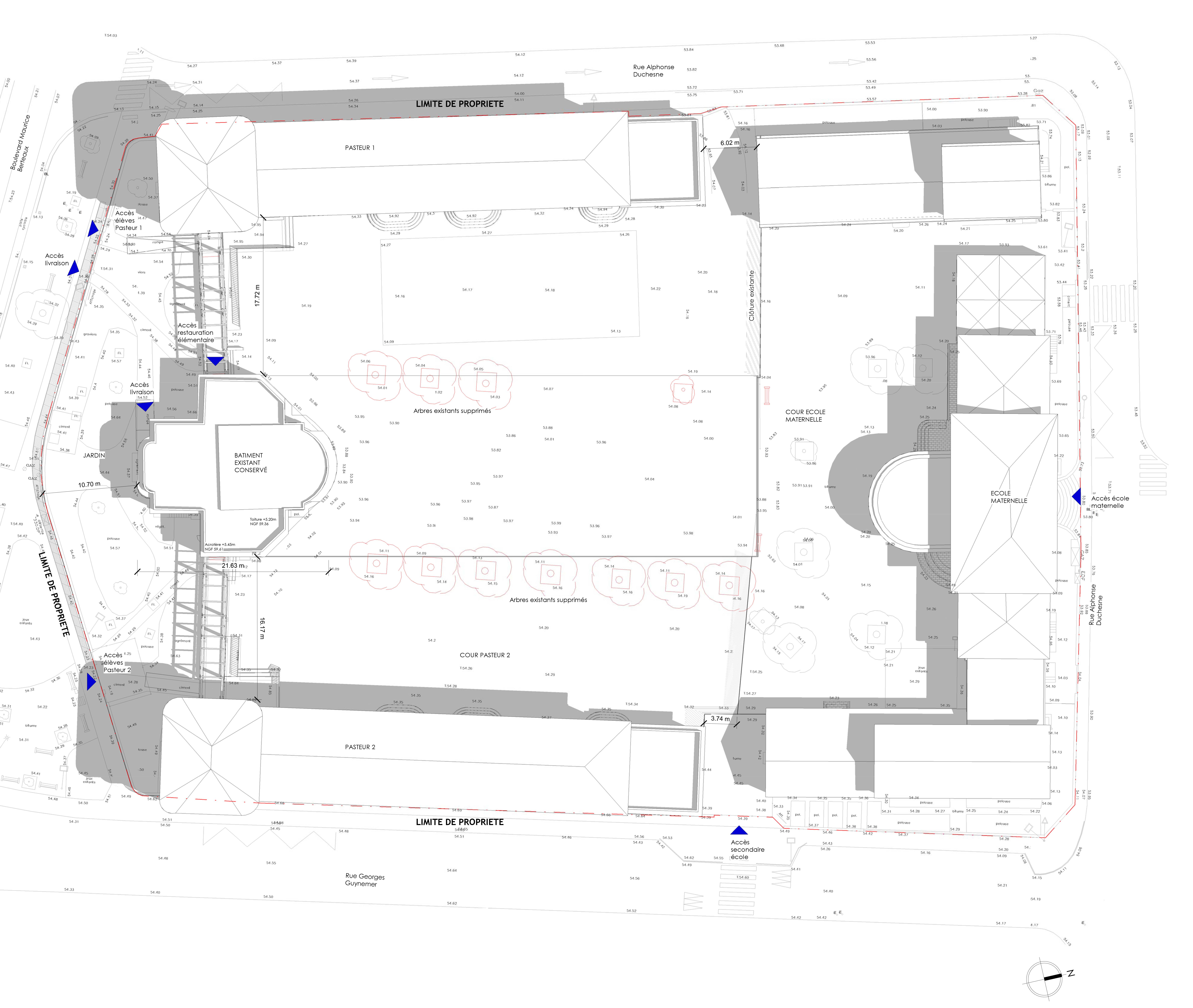
Approche environnementale : Le projet vise à valoriser l’ensemble urbain et à s'intégrer discrètement tout en offrant un nouveau visage au groupe scolaire. Le choix de l’implantation, en continuité de l’office existant, permet d’organiser les espaces extérieurs de chaque école et d’offrir un préau qui assure la liaison et fédère les fonctions. Le choix d'une ossature bois était cohérent avec les délais et la réalisation en milieu occupé et permettait surtout de soigner l'intégration de l'extension au sein d'un patrimoine bâtit en brique d'une grande qualité. Le revêtement de façade en bardage bois valorise ce parti pris.

Descriptif technique : Ce bâtiment est conçu avec une structure bois permettant d’allier rapidité constructive et chantier propre et sec en limitant les nuisances liées à la construction en milieu occupé. Les façades sont habillées d’un bardage en bois permettant d’offrir un bâtiment qui s’inscrit pleinement dans les préoccupations actuelles. Les menuiseries mixtes alu/bois allient performances thermiques, pérennité et esthétique. L’utilisation du bois se retrouve à l’intérieur d'une part avec l'ossature visible et d'autre part avec la laine de bois en plafond qui assure le confort acoustique de l’établissement. PEFC (Gestion forestière durable) FSC (Gestion forestière responsable) CTB B Marquage CE

Performance du bâtiment (Cep en kWhep/m²/an) : 122.70
Chauffage au Bois : non
Certifications, labels et marques bâtiment : Aucun
Données déclaratives

Acteurs du projet

Maître d'ouvrage (1)

Maître d'ouvrage - État ou collectivité (locale et territ)

COMMUNE DE SANNOIS (95)

Etudes et ingénieries (4)

Maître d'œuvre - Architecte mandataire

Atelier Les Particules (75)

Bureau d'études structure bois

SAEG (83)

Bureau d'études thermique

BETHIC (95)

Economiste

E2 - Ecallard Economiste (75)

Entreprises des lots bois (3)

Charpentier

AUX CHARPENTIERS DE FRANCE (91)

Menuisier

AUX CHARPENTIERS DE FRANCE (91)

Constructeur bois

AUX CHARPENTIERS DE FRANCE (91)




* : L'entreprise n'est plus active
Retour à la liste