Réhabiliter un logement
Réhabiliter un logement

L'Alambic

71960 Bussières - Saône et Loire - Bourgogne-Franche-Comté
Finaliste national

BÂTIMENT / LOGEMENT

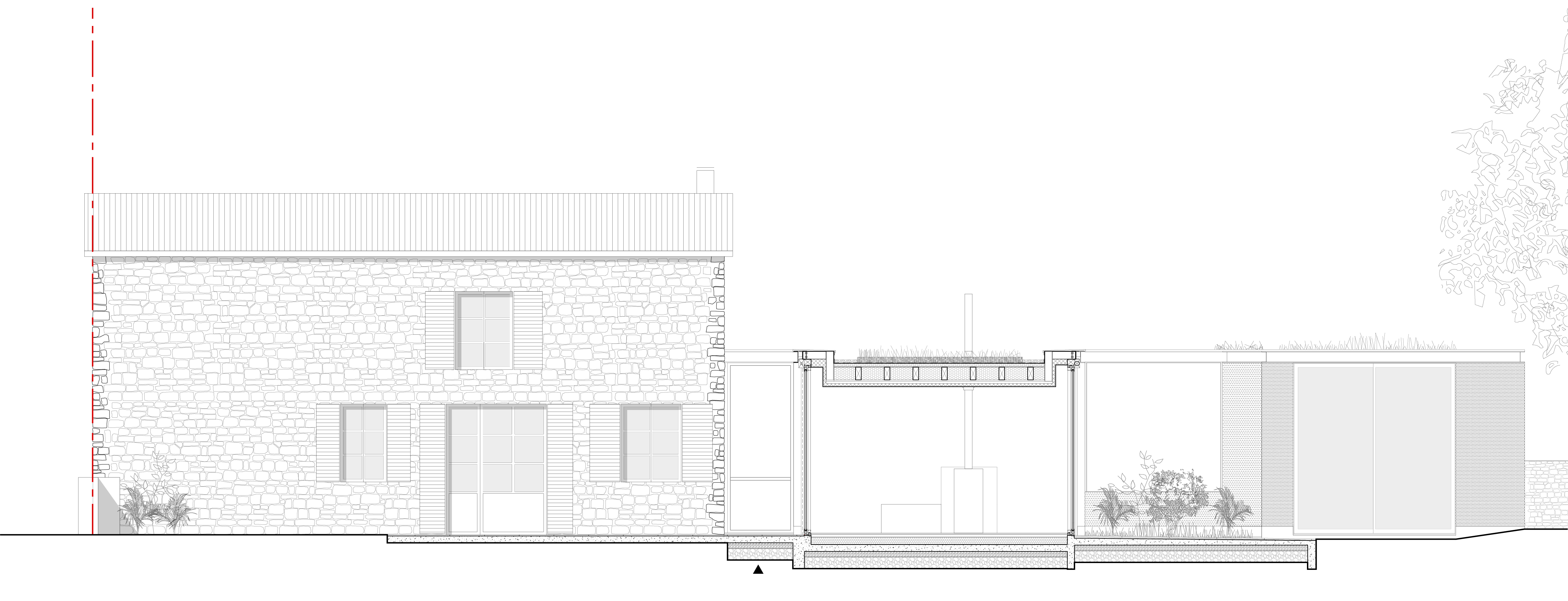
Dans le Maconnais, aux pieds des vignes, un ancien Alambic réhabilité il y a 10 ans en résidence secondaire nécessite d’être agrandi. Une extension de plain pied, en ossature bois, est alors apposée dans le prolongement de la maison existante. Elle se compose de deux volumes : le premier contient le salon triplement orienté et très ouvert sur les terrasses extérieures. Le second est une suite parentale qui clôt le projet au Nord. Un espace bureau-bibliothèque fait la jonction entre les deux volumes. Ainsi implanté, le projet créé des espaces extérieurs aux ambiances diverses.

Catégorie Bâtiment / logement
Numéro de projet6856
Date de candidature24/02/2022

Bâtiment / logement

Détail projet

Typologie de bâtiment : Extension / surélévation
Type de bâtiment : Logement individuel supérieur à 120 m²
Année de livraison : 2020
Surface totale du bâtiment en m² : 134
Dont extension / surélévation en m² : 75.5
Coût total en € HT (hors foncier, hors VRD, hors honoraires) : 172654
Lot bois n°1 concerné : ossature bois
Lot bois n°2 concerné : Charpente bois
Bois Français : oui
Isolations biosourcées (préciser dans le descriptif technique) : oui
Matériaux géosourcés (préciser dans le descriptif technique) : non
Finitions intéreures biosourcées ou géosourcées (préciser dans le descriptif technique) : non

Structure bois du bâtiment

Structure verticale :

ProduitEssenceProvenances (lieu de croissance du bois)Traitements de préservationMarque et certification produit
Panneau ossature boisDouglasAuvergne-Rhône-AlpesAucun traitement

Structure horizontale :

ProduitEssenceProvenances (lieu de croissance du bois)Traitements de préservationMarque et certification produit
Plancher béton

Charpente :

ProduitEssenceProvenances (lieu de croissance du bois)Traitements de préservationMarque et certification produit
Charpente traditionnelleSapin pectinéAuvergne-Rhône-AlpesTraitement Classe 2 (trempage)

Revêtement bois extérieur

Autre revêtement métallique :

Produit
Acier

Menuiserie intérieure et extérieure

Isolation des murs

Isolation intérieure des murs :

Produit
Laine de verre
Epaisseur (mm) Isolation intérieure des murs : 50

Isolation entre-montant des murs :

Produit
Fibre de bois (Panneaux)
Epaisseur (mm) Isolation entre-montant des murs : 150

Isolation de la toiture

Epaisseur (mm) Isolation intérieure de la toiture : 45
Epaisseur (mm) Isolation entre-montant de la toiture : 220
Epaisseur (mm) Isolation extérieure de la toiture : 50

Approche environnementale : Le projet l'Alambic s'inscrit dans une démarche constructive durable et responsable, en proposant une extension en ossature bois et charpente bois. En faisant la part belle aux matériaux biosourcés (isolation, charpente, murs, mobilier), l'objectif était de réduire au maximum l'empreinte carbone du projet. Le confort thermique est assuré par l'usage d'isolants de différentes natures, et par l'intégration d'éléments en maçonnerie ponctuels, favorisant l'inertie thermique. Les baies possèdent des performances élevées (UW:1.2W/m².k) et sont dotées de stores textiles extérieurs.

Descriptif technique : Le volume en ossature bois s'appuie sur des fondations et des relevés en béton coulés sur place. Ces derniers sont laissés apparents et utilisés dans la composition de façade. Les menuiseries extérieures étant toute hauteur, jusqu'à l'arase supérieure des acrotères, la toiture est traitée en "bac" planté et fonçures bois très larges, habillées de couvertines. Au niveau des 2 baies vitrées du salon, un portique en IPN est intégré dans l'ossature et la charpente pour assurer la stabilité de l'ouvrage. Le mur mitoyen, à l'ouest, est traité en béton et fait office de contreventement. PEFC (Gestion forestière durable) Marquage CE

Chauffage au Bois : oui
Appareil de chauffage au bois : Poële/insert
Certifications, labels et marques bâtiment : Aucun,Origine France Garantie (OFG),Bois de France
Données déclaratives

Acteurs du projet

Maître d'ouvrage (1)

Maître d'ouvrage - Particuliers

particulier (x)

Etudes et ingénieries (3)

Maître d'œuvre - Architecte mandataire

CLAIRE TOURNIER ARCHITECTE (69)

Bureau d'études structure bois

ACI-BE (69)

Bureau d'études thermique

ACTEMISS (69) *

Entreprises des lots bois (2)

Charpentier

C2C (69)

Menuisier

MPE CREATION BOIS (69)

Fournisseurs du bois (2)

Scierie

FRANCIS MONNET (01)

Industriel

SAINBIOSE (69)




* : L'entreprise n'est plus active
Retour à la liste