Habiter une maison
Habiter une maison

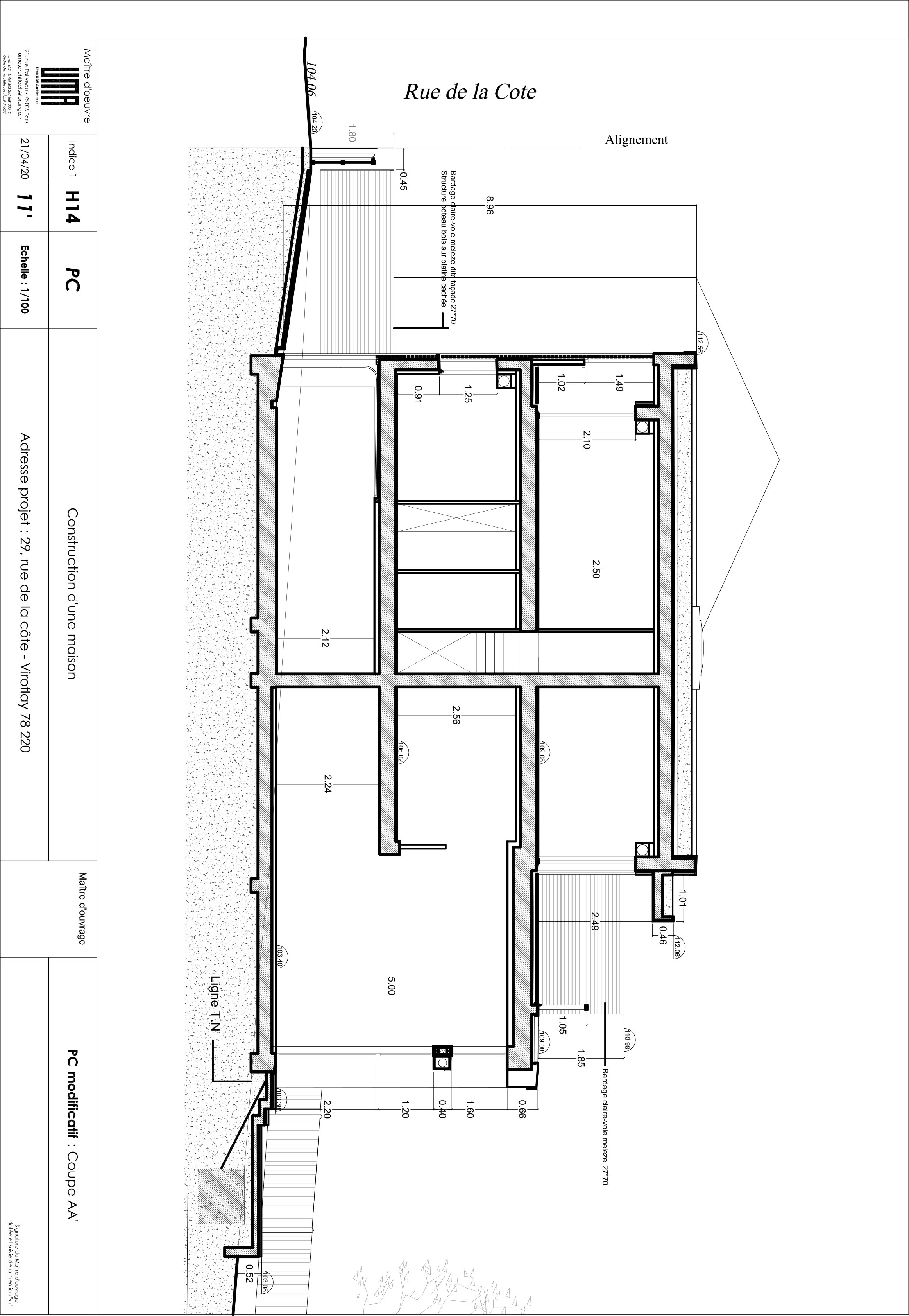
H 14 - Viroflay

78220 Viroflay - Yvelines - Ile de France

BÂTIMENT / LOGEMENT

Sur un terrain étroit et long aux contraintes réglementaires importantes, il nous fallait faire tenir le programme de nos maîtres d’ouvrage. Programme consistant en une maison protégée de la rue mais ouverte qui permette d’accueillir la famille constituée de 4 personnes et éventuellement des amis de passage. Les maîtres d’ouvrage n’avaient pas d’idée préconçue de ce à quoi devrait ressembler leur maison. ils souhaitaient du confort et de la lumière.

Catégorie Bâtiment / logement
Numéro de projet6813
Date de candidature21/02/2022

Bâtiment / logement

Détail projet

Typologie de bâtiment : Neuf
Type de bâtiment : Logement individuel supérieur à 120 m²
Année de livraison : 2021
Surface totale du bâtiment en m² : 165
Coût total en € HT (hors foncier, hors VRD, hors honoraires) : 500000
Lot bois n°1 concerné : Bardage bois,ossature bois
Bois Français : oui
Isolations biosourcées (préciser dans le descriptif technique) : oui
Matériaux géosourcés (préciser dans le descriptif technique) : non
Finitions intéreures biosourcées ou géosourcées (préciser dans le descriptif technique) : non

Structure bois du bâtiment

Structure verticale :

ProduitEssenceProvenances (lieu de croissance du bois)Traitements de préservationMarque et certification produit
Panneau ossature boisTempéréTraitement Classe 2 (trempage)

Structure horizontale :

ProduitEssenceProvenances (lieu de croissance du bois)Traitements de préservationMarque et certification produit
Dalle bois, Plancher mixte bois-acier , Solivage traditionnelTempéréTraitement Classe 2 (trempage)

Charpente :

ProduitEssenceProvenances (lieu de croissance du bois)Traitements de préservationMarque et certification produit
Caisson de toiture, Charpente bois lamellé-colléTempéréTraitement Classe 2 (trempage)

Revêtement bois extérieur

Revêtement bois ou dérivés :

ProduitEssenceProvenances (lieu de croissance du bois)Marque et certification produitFinitionTraitements de préservation
Lame bois massifDouglasLasureTraitement Classe 2 (trempage)

Menuiserie intérieure et extérieure

Menuiserie extérieure :

ProduitEssenceProvenances (lieu de croissance du bois)Marque et certification produitFinition
Volet boisDouglasLasure

Isolation des murs

Isolation intérieure des murs :

Produit
Autres laines végétales ou animales
Epaisseur (mm) Isolation intérieure des murs : 140
Epaisseur (mm) Isolation entre-montant des murs : 140

Isolation extérieure des murs :

Produit
Autres laines végétales ou animales
Epaisseur (mm) Isolation extérieure des murs : 140

Isolation de la toiture

Chauffage au Bois : non
Données déclaratives

Acteurs du projet

Maître d'ouvrage (1)

Maître d'ouvrage - Particuliers

particulier (x)

Etudes et ingénieries (1)

Maître d'œuvre - Architecte mandataire

Uma (75)

Entreprises des lots bois (1)

Constructeur bois

BESNARD CHARPENTE (45)




* : L'entreprise n'est plus active
Retour à la liste