Réhabiliter un équipement
Réhabiliter un équipement

Restructuration du Stade Nautique d'Antibes

06600 ANTIBES - Alpes maritimes - Provence Alpes Côte d'Azur

BÂTIMENT / LOGEMENT

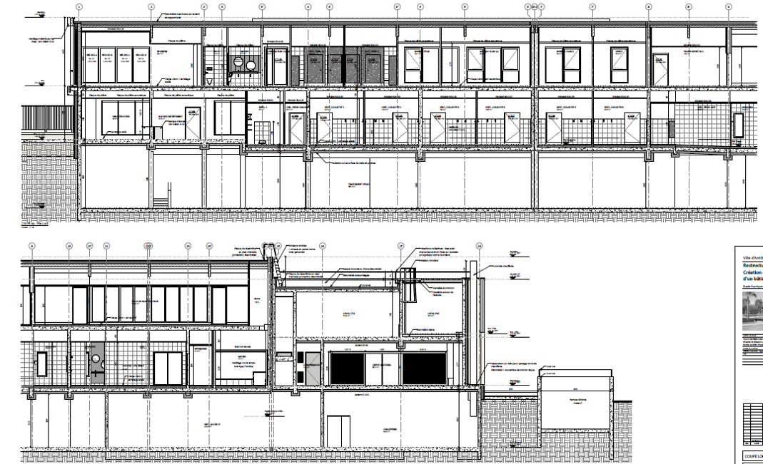
La restructuration du Stade Nautique d'Antibes consiste en la création et réhabilitation des bassins extérieurs et la construction d’un bâtiment neuf. C'est un projet de rénovation/extension qui relance l’attractivité du centre nautique. Un premier niveau enterré en béton abrite les installations techniques et au rez de chaussé, les vestiaires. Le r+1 en structure poteaux/poutres bois supporte la toiture en bois massif. Les murs sont en ossature bois isolés entre montants + 2 panneaux de fibre de bois par l'extérieur et habillé d'un bardage bois à claire voie.

Catégorie Bâtiment / logement
Numéro de projet6795
Adresse du projet Stade Nautique – 210 Avenue Jules Grec
06600 ANTIBES
Date de candidature17/02/2022

Bâtiment / logement

Détail projet

Typologie de bâtiment : Rénovation / Réhabilitation
Type de bâtiment : Sport
Année de livraison : 2019
Surface totale du bâtiment en m² : 1800
Coût total en € HT (hors foncier, hors VRD, hors honoraires) : 9900000
Bois Français : non
Isolations biosourcées (préciser dans le descriptif technique) : non
Matériaux géosourcés (préciser dans le descriptif technique) : non
Finitions intéreures biosourcées ou géosourcées (préciser dans le descriptif technique) : non

Structure bois du bâtiment

Structure verticale :

ProduitEssenceProvenances (lieu de croissance du bois)Traitements de préservationMarque et certification produit
Panneau ossature bois, Poteau poutre

Structure horizontale :

ProduitEssenceProvenances (lieu de croissance du bois)Traitements de préservationMarque et certification produit
Plancher béton

Charpente :

ProduitEssenceProvenances (lieu de croissance du bois)Traitements de préservationMarque et certification produit
Caisson de toiture

Revêtement bois extérieur

Menuiserie intérieure et extérieure

Isolation des murs

Isolation entre-montant des murs :

Produit
Laine de bois souple
Epaisseur (mm) Isolation entre-montant des murs : 200

Isolation extérieure des murs :

Produit
Fibre de bois (Panneaux)
Epaisseur (mm) Isolation extérieure des murs : 40

Isolation de la toiture

Approche environnementale : Points forts : •Mise en œuvre de matériaux bio sourcés en quantité importante •Conception bioclimatique du projet et gestion passive du confort d’été •Confort visuel important (vues sur l’extérieur et éclairage naturel) •Création d’espaces extérieurs de qualité Bâtiment labellisé BDM Argent Récupération de chaleur sur les eaux grises

Descriptif technique : La toiture est constituée de panneaux de bois contrecollés liaisonnés de manière à jouer le rôle de diaphragme horizontal de toiture. La toiture repose sur une structure bois stabilisée par des palées de stabilité en diagonales bois ou croix de saint-andré métal et par voiles travaillant OSB cloués sur les montants des ossatures bois. Les efforts verticaux alternés, concentrés sur les montants d’extrémités des palées de stabilité, sont transmis à la dalle béton du RDC par des ferrures pré-scellées dans l’infrastructure béton. Un joint sismique de 6cm recoupe le bâtiment en deux parties. Un autre joint sismique de 6cm sépare le bâtiment principal du local technique au sud.

Performance du bâtiment (Cep en kWhep/m²/an) : 123
Chauffage au Bois : non
Données déclaratives

Acteurs du projet

Maître d'ouvrage (1)

Maître d'ouvrage - État ou collectivité (locale et territ)

VILLE D'ANTIBES (06)

Etudes et ingénieries (4)

Maître d'œuvre - Architecte mandataire

ATLAS ARCHITECTES (69) *

Maître d’œuvre - Architecte associé

Sarl Leteissier Corriol Architecture & Urbanisme (13)

Bureau d'études structure bois

GAUJARD TECHNOLOGIES SCOP (84)

Economiste

KORELL (69)

Entreprises des lots bois (2)

Charpentier

TM SCOP - TOITURES MONTILIENNES (26)

Menuisier

SYLVAIN QUAGLIA (06)




* : L'entreprise n'est plus active
Retour à la liste