Habiter une maison

maisonnette en bois

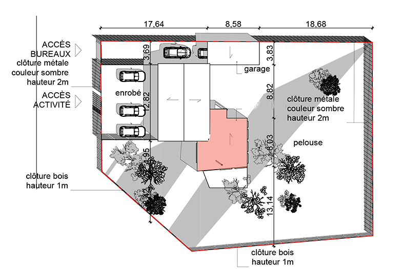
72560 Changé - Sarthe - Pays de la Loire

BÂTIMENT / LOGEMENT

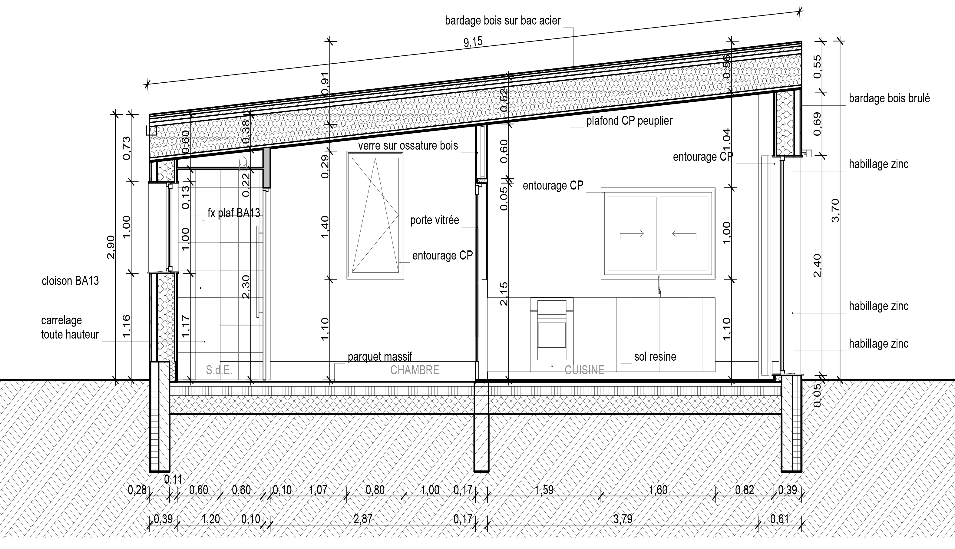
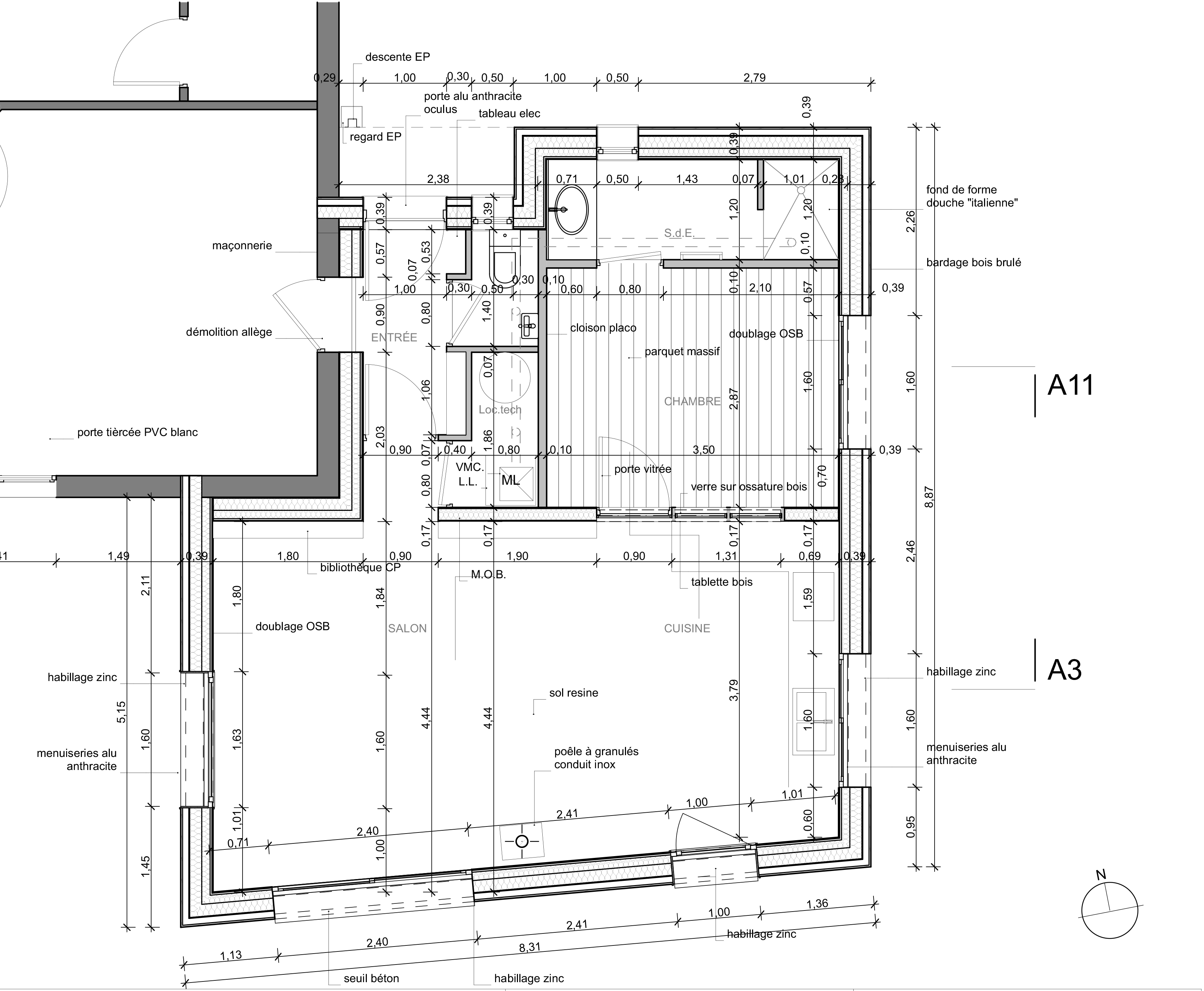
La construction est en bois, structure et bardage ; pour une meilleure intégration dans ce paysage plutôt naturel, un bardage brûlé est posé en façade et en couverture. De plus, cette technique ancestrale dispense de toute application de produit pour l'entretien et la conservation du bois. Les performances d'isolation réalisée nous permettent d'installer comme unique système de chauffage un poêle à granulés.

Catégorie Bâtiment / logement
Numéro de projet6754
Date de candidature11/02/2022

Bâtiment / logement

Détail projet

Typologie de bâtiment : Neuf
Type de bâtiment : Logement individuel inférieur 120 m²
Année de livraison : 2021
Surface totale du bâtiment en m² : 54
Coût total en € HT (hors foncier, hors VRD, hors honoraires) : 90100
Lot bois n°1 concerné : Charpente bois,Bardage bois,Menuiserie intérieure bois,ossature bois
Coût du lot bois n°1 - € HT : 44149
Bois Français : non
Isolations biosourcées (préciser dans le descriptif technique) : non
Matériaux géosourcés (préciser dans le descriptif technique) : non
Finitions intéreures biosourcées ou géosourcées (préciser dans le descriptif technique) : non

Structure bois du bâtiment

Structure verticale :

ProduitEssenceProvenances (lieu de croissance du bois)Traitements de préservationMarque et certification produit
Panneau ossature bois

Structure horizontale :

ProduitEssenceProvenances (lieu de croissance du bois)Traitements de préservationMarque et certification produit
Plancher béton

Charpente :

ProduitEssenceProvenances (lieu de croissance du bois)Traitements de préservationMarque et certification produit
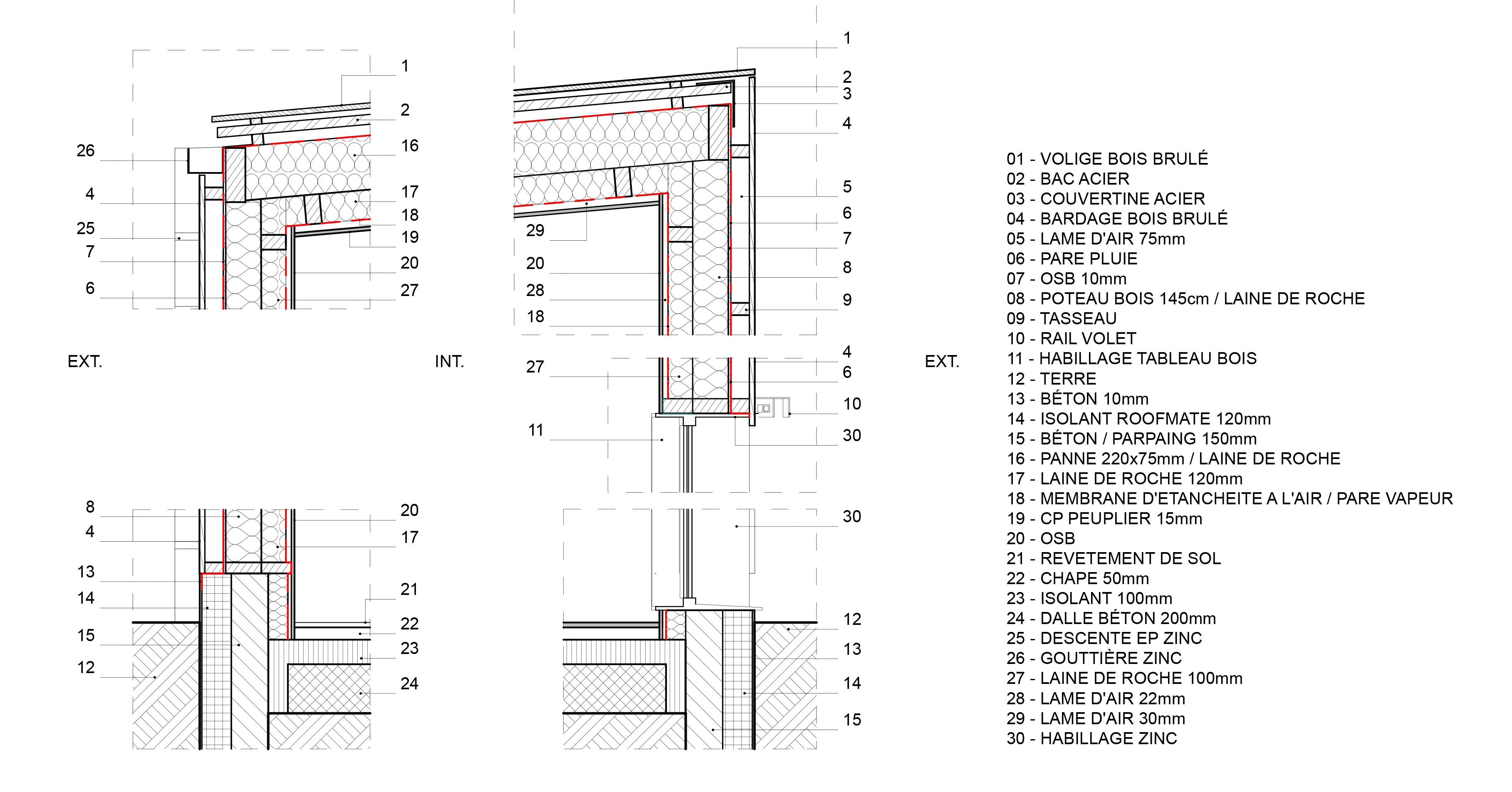
Charpente bois lamellé-collé

Revêtement bois extérieur

Revêtement bois ou dérivés :

ProduitEssenceProvenances (lieu de croissance du bois)Marque et certification produitFinitionTraitements de préservation
Lame bois massifDouglasBois brulé

Menuiserie intérieure et extérieure

Isolation des murs

Epaisseur (mm) Isolation intérieure des murs : 100
Epaisseur (mm) Isolation entre-montant des murs : 145

Isolation de la toiture

Epaisseur (mm) Isolation intérieure de la toiture : 100
Epaisseur (mm) Isolation entre-montant de la toiture : 220
Chauffage au Bois : oui
Appareil de chauffage au bois : Poële/insert
Données déclaratives

Acteurs du projet

Maître d'ouvrage (1)

Maître d'ouvrage - Particuliers

particulier (x)

Etudes et ingénieries (1)

Maître d'œuvre - Architecte mandataire

Guillaume Payeur architecte DPLG (72)

Entreprises des lots bois (1)

Charpentier

LE CHOIX DU BOIS LELIEVRE ET MONERIE (72)




* : L'entreprise n'est plus active
Retour à la liste