Apprendre – se divertir, Travailler – accueillirApprendre – se divertir, Travailler – accueillir
Apprendre – se divertir, Travailler – accueillir

Salle Communale

59147 Chemy - Nord - Hauts-de-France
Lauréat régional
Finaliste national

BÂTIMENT / LOGEMENT

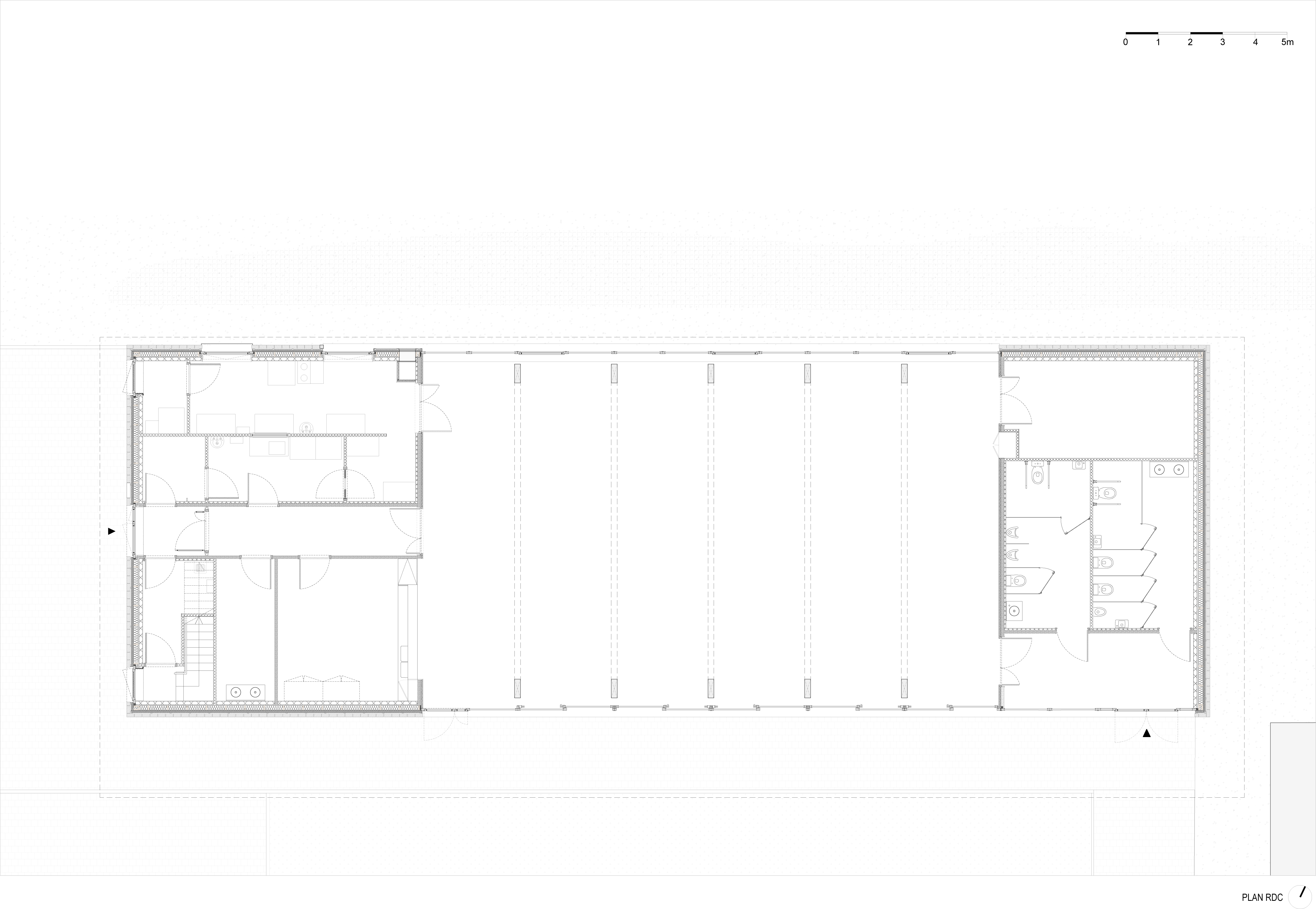
Ce nouvel équipement est multi-usage, comme il se doit dans une commune de 800 habitants : cantine scolaire pour les enfants de l’école voisine, salle des fêtes, espace associatif. Il vient compléter un ensemble d’équipements publics. Nous choisissons de nous inscrire dans le patrimoine local en réinventant le principe de la grange. Traversante, elle s’adresse au parvis et aux champs. Sa matérialité locale en briques et bois s’inscrit dans le site avec simplicité. En intérieur, le plafond bois strié crée un évènement qui marque les visiteurs.

Catégorie Bâtiment / logement
Numéro de projet6732
Adresse du projet rue de la mairie
59147 Chemy
Date de candidature09/02/2022
Récompense1er prix

Bâtiment / logement

Détail projet

Typologie de bâtiment : Neuf
Type de bâtiment : Enseignement ou éducation,Restauration
Année de livraison : 2021
Surface totale du bâtiment en m² : 321
Coût total en € HT (hors foncier, hors VRD, hors honoraires) : 1114274
Lot bois n°1 concerné : Enseignement ou éducation,Restauration
Volume lot bois n°1 - m³ : 98
Coût du lot bois n°1 - € HT : 331000
Lot bois n°2 concerné : Menuiserie intérieure bois,Menuiserie extérieure bois
Volume lot bois n°2 - m³ : 10
Coût du lot bois n°2 - € HT : 89000
Bois Français : oui
Isolations biosourcées (préciser dans le descriptif technique) : oui
Matériaux géosourcés (préciser dans le descriptif technique) : non
Finitions intéreures biosourcées ou géosourcées (préciser dans le descriptif technique) : oui

Structure bois du bâtiment

Structure verticale :

ProduitEssenceProvenances (lieu de croissance du bois)Traitements de préservationMarque et certification produit
Panneau de bois massif (CLT collé ou CLT cloué)Épicéa communEuropeTraitement Classe 2 (trempage)
Panneau ossature boisPeuplierHauts-de-FranceTraitement Classe 2 (trempage)
Poteau poutrePeuplierHauts-de-FranceTraitement Classe 2 (trempage)

Structure horizontale :

ProduitEssenceProvenances (lieu de croissance du bois)Traitements de préservationMarque et certification produit
Panneau de bois massif (CLT collé ou CLT cloué)Épicéa communEuropeTraitement Classe 2 (trempage)

Charpente :

ProduitEssenceProvenances (lieu de croissance du bois)Traitements de préservationMarque et certification produit
Charpente bois lamellé-colléPeuplierHauts-de-FranceTraitement Classe 2 (trempage)
Charpente traditionnellePeuplierHauts-de-FranceTraitement Classe 2 (trempage)

Revêtement bois extérieur

Revêtement bois ou dérivés :

ProduitEssenceProvenances (lieu de croissance du bois)Marque et certification produitFinitionTraitements de préservation
Panneau contreplaquéPeuplierHauts-de-FranceLasureTraitement Classe 2 (trempage)

Revêtement minéral :

Produit
Brique

Menuiserie intérieure et extérieure

Menuiserie extérieure :

ProduitEssenceProvenances (lieu de croissance du bois)Marque et certification produitFinition
Menuiserie boisChêneHauts-de-FranceLasure

Isolation des murs

Isolation intérieure des murs :

Produit
Fibre de bois (Panneaux)
Epaisseur (mm) Isolation intérieure des murs : 100

Isolation entre-montant des murs :

Produit
Fibre de bois (Panneaux)
Epaisseur (mm) Isolation entre-montant des murs : 145

Isolation extérieure des murs :

Produit
Fibre de bois (Panneaux)
Epaisseur (mm) Isolation extérieure des murs : 60

Isolation de la toiture

Epaisseur (mm) Isolation entre-montant de la toiture : 220
Epaisseur (mm) Isolation extérieure de la toiture : 52

Approche environnementale : Notre approche environnementale est liée à la matérialité. Une fois lauréat du concours, nous avons proposé de modifier la matérialité pour intégrer le projet au dispositif «filière bois local» de la Région Hauts-de-France, en partenariat avec Fibois. Le projet est passé d’une structure en parpaing avec une charpente bois, à un projet en ossature bois filière bois locale. Nous avons notamment eu l’occasion de sensibiliser la maitrise d’ouvrage, ainsi que les habitants de Chemy, à cette démarche grâce aux visites d’une scierie de peuplier et de l’atelier de l’entreprise Goudalle.

Descriptif technique : En intérieur, nous avons souhaité offrir une grande salle avec un plafond à double pente sans tirant. La salle principale se compose de 5 portiques en bois de peuplier espacés d’un entraxe de 300 cm, et d’une section de 24x58 cm. A 3 articulations, ces portiques sont encastrés en tête de poteau par des tôles en âme et 96 broches. Le contreventement est effectué dans le plan de la toiture. Entre les portiques, des nervures en T en contreplaqué de peuplier sont fixées perpendiculairement à la toiture. Décoratives, elles participent également au traitement acoustique de la salle principale. PEFC (Gestion forestière durable) FSC (Gestion forestière responsable) NF Portes résistant au feu en bois NF Vantaux de portes planes NF Contreplaqués (CTBX - CTBC) Marquage CE

Performance du bâtiment (Cep en kWhep/m²/an) : 93.50
Chauffage au Bois : non
Certifications, labels et marques bâtiment : Aucun,Bois de France
Données déclaratives

Acteurs du projet

Maître d'ouvrage (1)

Maître d'ouvrage - État ou collectivité (locale et territ)

Commune Chemy (59)

Etudes et ingénieries (5)

Maître d'œuvre - Architecte mandataire

bureau faceB (59)

Bureau d'études acoustique

AKOUSTIK INGENIERIE & CONSEILS (59)

Bureau d'études structure bois

INGEBOIS STRUCTURES (59)

Bureau d'études thermique

TW Ingénierie (59)

Economiste

CABINET GHESQUIERE DIERICKX (59)

Entreprises des lots bois (3)

Charpentier

GOUDALLE CHARPENTE (62)

Menuisier

NOUVEAUX ETABLISSEMENTS MODULE (59)
Entreprise A2M (59)

Fournisseurs du bois (2)

Scierie

FCB CHARPENTES (62)
ALGLAVE HENRI ET FILS (62)




* : L'entreprise n'est plus active
Retour à la liste