Aménager

Escalier dans une maison des associations

56540 Saint-Tugdual - Morbihan - Bretagne

AMÉNAGEMENT BOIS

Aménagement intérieur

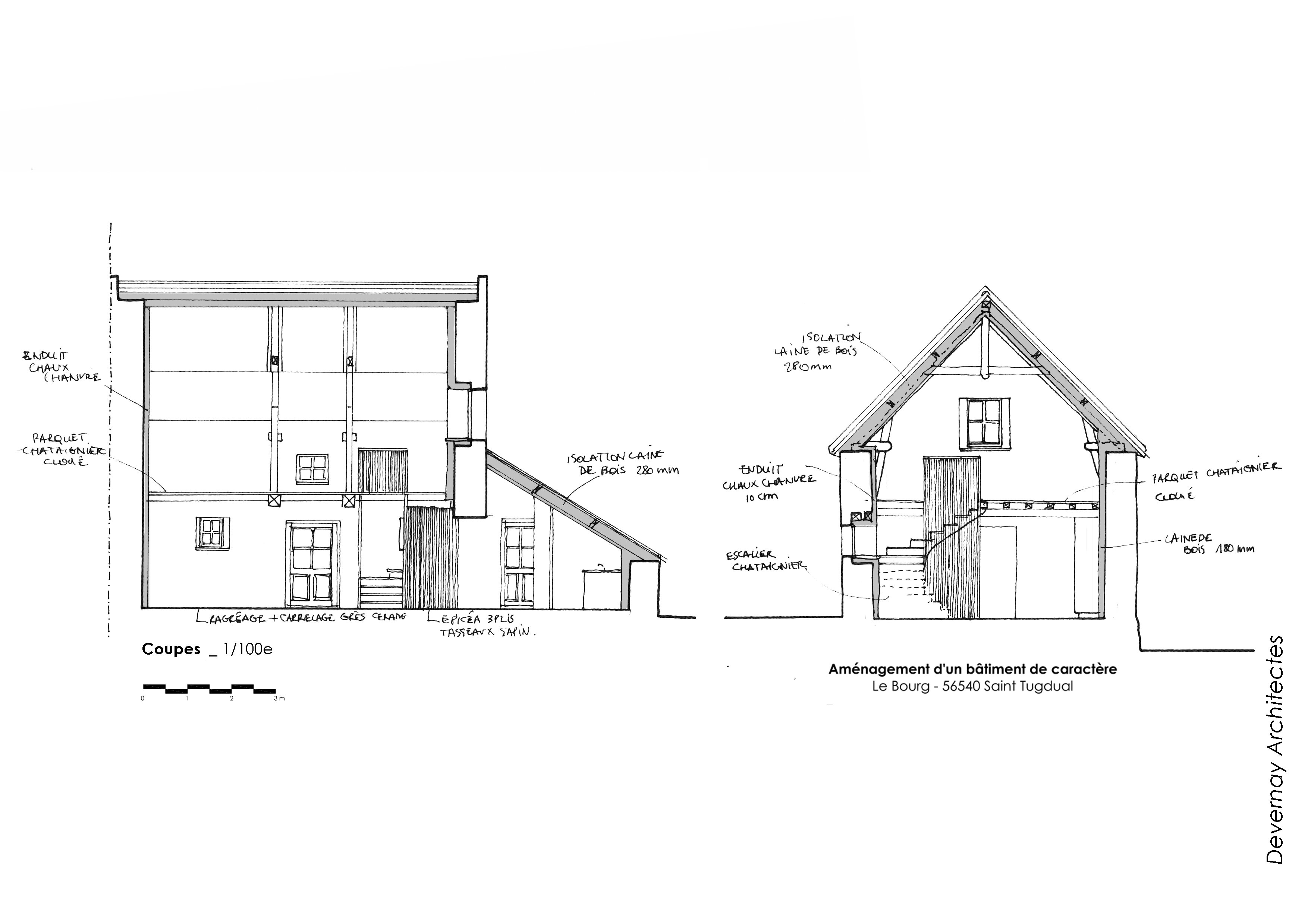
Quand l’escalier zèbre la lumière... Le projet de réhabilitation de la maison des associations de Saint-Tugdual a été l’occasion de concevoir un mobilier sur mesure. L’escalier en châtaignier se déploie dans un volume plein où le local technique disparaît entre les tasseaux en épicéa.

Catégorie aménagement bois, aménagement intérieur
Numéro de projet6721
Adresse du projet Le bourg
56540 Saint-Tugdual
Date de candidature07/02/2022

aménagement bois

typologie : Loisirs,Culture,Service institutionnel et public
Coût total en € HT : 85042

aménagement intérieur

Année de réalisation : 2022
Coût total Aménagement Intérieur en € HT : 85042
Coût lots bois en € HT : 20931.24
Volume bois m³ : 2.65
Surface aménagée en m² : 80

Liste des produits :

ProduitEssenceProvenances (lieu de croissance du bois)Marque et certification produitFinition
ParquetChâtaignierBretagneHuile
EscalierChâtaignierBretagne
Mobilier, Panneau massif d'agencementÉpicéa communFrance
Bois Français : oui

Approche environnementale : Améliorer la performance énergétique de cet habitat du XVIIIème avec des isolants bio-sourcés (laine de bois, chanvre) et privilégier l’usage de bois local avec du châtaignier pour l’escalier, épicéa 3 plis pour les cloisons & portes, chêne pour le parquet.

Descriptif technique de l'aménagement : L’escalier est un élément central de cet aménagement. Par le jeu de tasseaux posés en bardage à clair voie, il offre une lumière tamisée. L’ensemble permet de dissimuler un local technique sous l’escalier tout en laissant la lumière glisser sur les marches.

Des matériaux issus du ré-emploi ont été utilisés dans le projet : non
Données déclaratives

Acteurs du projet

Maître d'ouvrage (1)

Maître d'ouvrage - État ou collectivité (locale et territ)

Commune de Saint-Tugdual (56)

Etudes et ingénieries (1)

Maître d'œuvre - Architecte mandataire

FLORENCE DEVERNAY ARCHITECTES (56)

Entreprises des lots bois (1)

Menuisier

Atelier Cube (56)




* : L'entreprise n'est plus active
Retour à la liste