Apprendre – se divertir, Travailler – accueillir

École primaire Le chat Perché

56310 Quistinic - Morbihan - Bretagne
Lauréat régional

BÂTIMENT / LOGEMENT

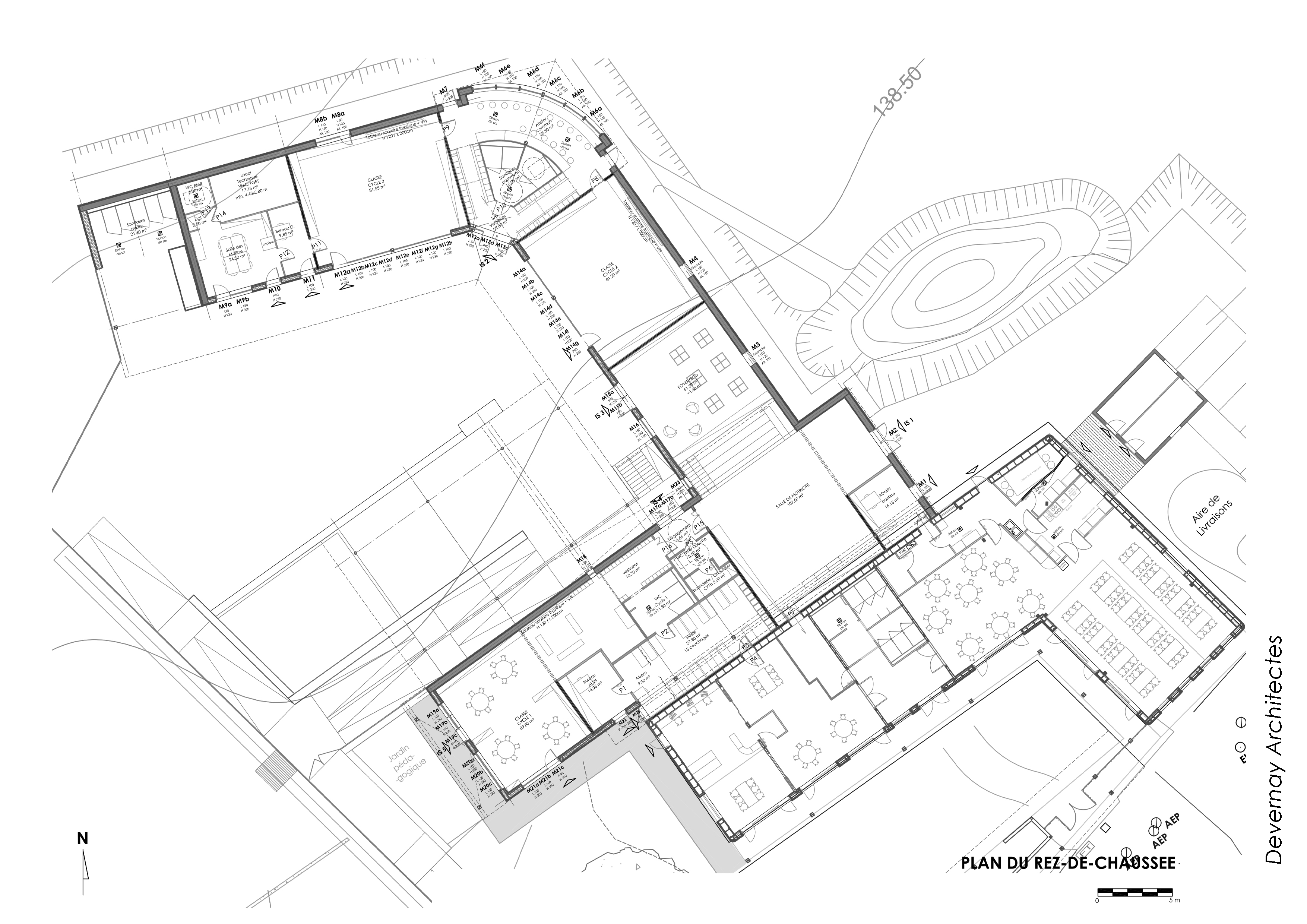
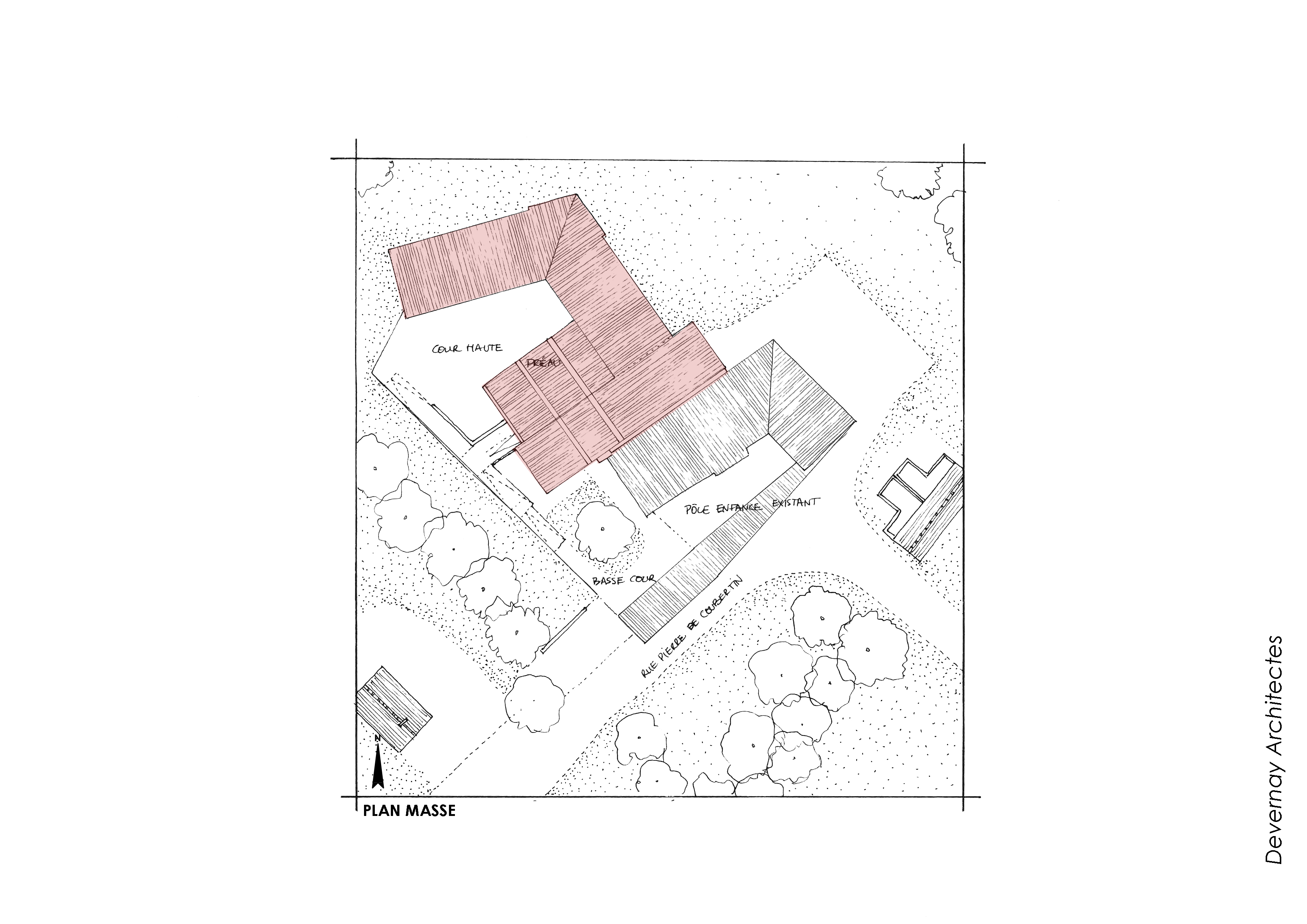
Construction d'une école primaire dans une démarche d'économie circulaire, à impacts et énergies positifs. Optimisation du programme avec les futurs usagers pour répondre à leurs besoins et les sensibiliser à la démarche. Objectif de mutualisation des espaces dans la continuité du pole enfance et de regrouper les équipements de l'enfance. Orientée autour d’une cour centrale, les classes profitent d’espaces communs avec le pôle. La salle de motricité est le point central de l’école, offrant un volume en double hauteur et profitant de la différence de niveau pour créer des espaces ludiques.

Catégorie Bâtiment / logement
Numéro de projet6691
Adresse du projet 1 Rue Pierre de Coubertin
56310 Quistinic
Date de candidature03/02/2022

Bâtiment / logement

Détail projet

Typologie de bâtiment : Neuf
Type de bâtiment : Enseignement ou éducation,Service institutionnel et public
Année de livraison : 2021
Surface totale du bâtiment en m² : 706
Coût total en € HT (hors foncier, hors VRD, hors honoraires) : 1310000
Lot bois n°1 concerné : Charpente bois,Bardage bois,ossature bois
Coût du lot bois n°1 - € HT : 441541.48
Lot bois n°2 concerné : Menuiserie intérieure bois,Menuiserie extérieure bois
Coût du lot bois n°2 - € HT : 128347.55
Bois Français : oui
Isolations biosourcées (préciser dans le descriptif technique) : oui
Matériaux géosourcés (préciser dans le descriptif technique) : oui
Finitions intéreures biosourcées ou géosourcées (préciser dans le descriptif technique) : oui

Structure bois du bâtiment

Structure verticale :

ProduitEssenceProvenances (lieu de croissance du bois)Traitements de préservationMarque et certification produit
Panneau ossature boisDouglasBretagne

Structure horizontale :

ProduitEssenceProvenances (lieu de croissance du bois)Traitements de préservationMarque et certification produit
Plancher béton

Charpente :

ProduitEssenceProvenances (lieu de croissance du bois)Traitements de préservationMarque et certification produit
Caisson de toiture, Charpente bois lamellé-colléDouglasBretagne

Revêtement bois extérieur

Revêtement minéral :

Produit
Enduit terre

Autre revêtement métallique :

Produit
Acier

Menuiserie intérieure et extérieure

Menuiserie extérieure :

ProduitEssenceProvenances (lieu de croissance du bois)Marque et certification produitFinition
Menuiserie boisChâtaignierBretagneLasure

Isolation des murs

Isolation intérieure des murs :

Produit
Epaisseur (mm) Isolation intérieure des murs : 360

Isolation entre-montant des murs :

Produit
Laine de bois souple
Epaisseur (mm) Isolation entre-montant des murs : 360

Isolation de la toiture

Epaisseur (mm) Isolation entre-montant de la toiture : 300

Approche environnementale : L’école est construite en ossature bois non traité, bardage châtaignier, isolation en paille locale et laine de bois. Les enduits intérieurs sont en terre crue et les sols en linoléum naturel. En privilégiant des matériaux biosourcés et locaux, cet équipement offre des performances élevées avec un faible impact énergétique et de faibles besoins, grâce à une implantation et orientation optimale de l’école. De larges ouvertures au sud permettent d’optimiser les apports de chaleur et de lumière naturelle, tout en étant régulés par des protections solaires contre les surchauffes et une VMC DF.

Descriptif technique : L'usage du bio-sourcé a été valorisé grâce aux chantiers participatifs sur l’isolation en bottes de pailles et les enduits en terre crue. L’orientation du bâti, la ventilation double flux, les protections solaires et l'isolation renforcée permettent d’obtenir un bâtiment aux performances élevées avec un faible impact énergétique. L’installation de panneaux photovoltaïques en toiture permet à cette école une autoproduction, correspondant à ces besoins en électricité et de rendre le bâtiment à énergie positive. CTB A Traitement des bois en oeuvre CTB Structures NF Contreplaqués (CTBX - CTBC) NF Ameublement NF Environnement Ameublement Marquage CE

Chauffage au Bois : non
Données déclaratives

Acteurs du projet

Maître d'ouvrage (1)

Maître d'ouvrage - État ou collectivité (locale et territ)

Commune de Quistinic (56)

Etudes et ingénieries (5)

Maître d'œuvre - Architecte mandataire

FLORENCE DEVERNAY ARCHITECTES (56)

Bureau d'études acoustique

ACOUSTIQUE ET ENVIRONNEMENT NORD OUEST (56)

Bureau d'études structure bois

FORCES & APPUIS (35)
KONSTRUKTIF (29)

Bureau d'études thermique

Batitherm Conseils (29)

Entreprises des lots bois (1)

Charpentier

ECHOPAILLE (56)




* : L'entreprise n'est plus active
Retour à la liste