Travailler – accueillir
Travailler – accueillir

SIEGE SOCIAL PICTURE ORGANIC CLOTHING

63118 Cebazat - Puy de Dôme - Auvergne-Rhône-Alpes

BÂTIMENT / LOGEMENT

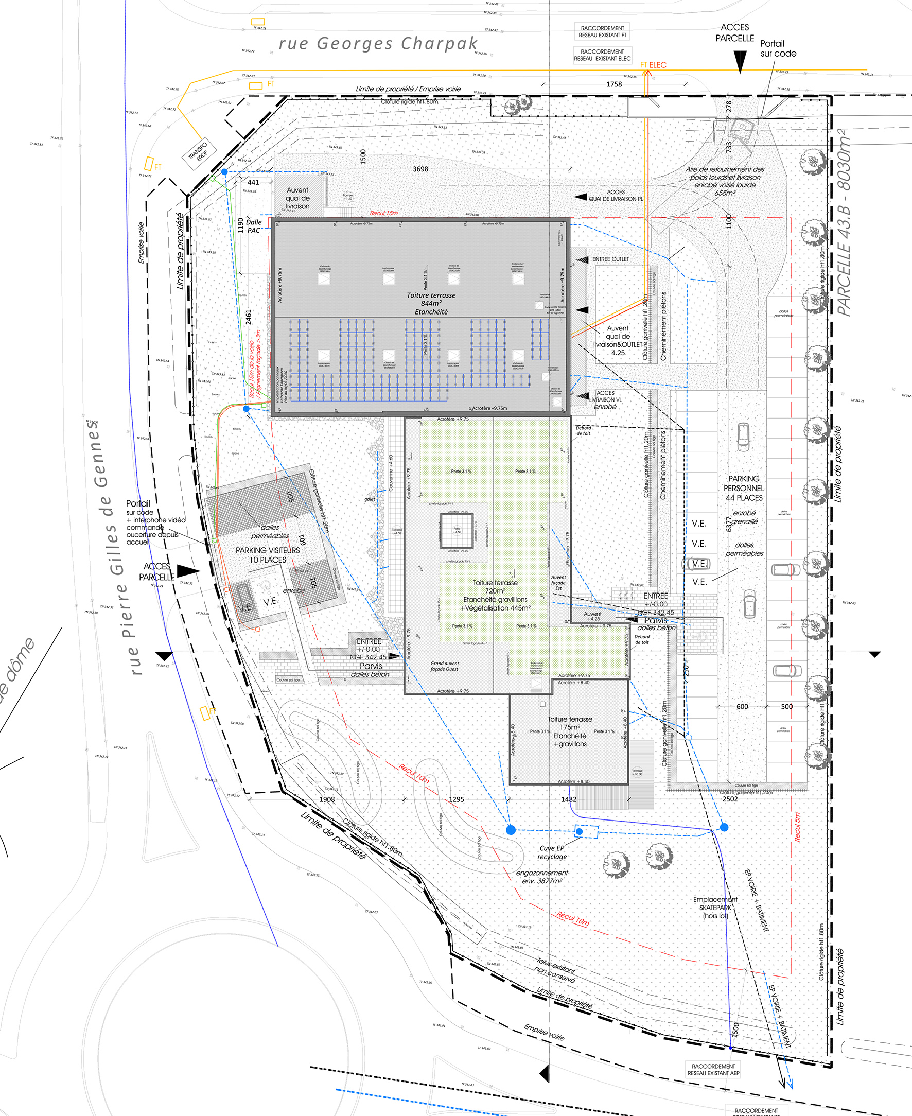
Le projet s'inscrit dans un site artisanal en entrée de zone. Notre approche a été de réaliser un bâtiment qui reflète l'identité de la marque Picture tant dans sa forme, que dans le choix des matériaux les plus éco responsable possible. Le projet est destiné à une nouvelle façon de travailler sur un site de bureau, avec comme ambition le bien être au travail.

Catégorie Bâtiment / logement
Numéro de projet6680
Adresse du projet 175 rue Georges Charpak
63118 Cebazat
Date de candidature02/02/2022

Bâtiment / logement

Détail projet

Typologie de bâtiment : Neuf
Type de bâtiment : Lieu d'entreprise
Année de livraison : 2021
Surface totale du bâtiment en m² : 2162
Coût total en € HT (hors foncier, hors VRD, hors honoraires) : 3102533
Volume lot bois n°1 - m³ : 320
Coût du lot bois n°1 - € HT : 488100
Lot bois n°2 concerné : Bardage bois
Volume lot bois n°2 - m³ : 26
Coût du lot bois n°2 - € HT : 139127
Bois Français : oui
Isolations biosourcées (préciser dans le descriptif technique) : oui
Matériaux géosourcés (préciser dans le descriptif technique) : non
Finitions intéreures biosourcées ou géosourcées (préciser dans le descriptif technique) : oui

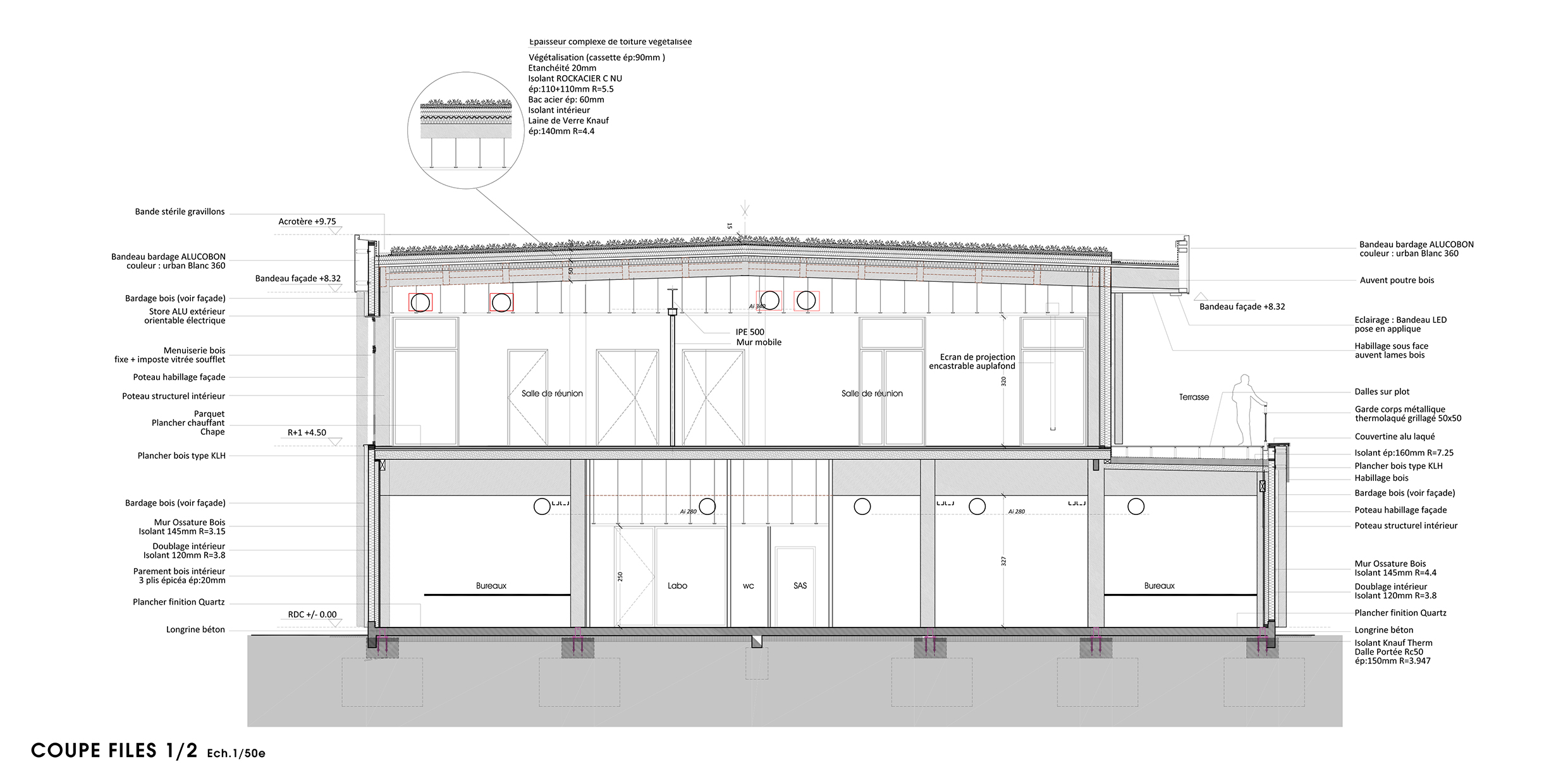
Structure bois du bâtiment

Structure verticale :

ProduitEssenceProvenances (lieu de croissance du bois)Traitements de préservationMarque et certification produit
Poteau poutreSapin pectinéAuvergne-Rhône-AlpesTraitement Classe 2 (trempage)
Panneau ossature boisÉpicéa communAuvergne-Rhône-AlpesTraitement Classe 2 (trempage)

Structure horizontale :

ProduitEssenceProvenances (lieu de croissance du bois)Traitements de préservationMarque et certification produit
Panneau de bois massif (CLT collé ou CLT cloué)Épicéa communAuvergne-Rhône-AlpesTraitement Classe 2 (trempage)

Charpente :

ProduitEssenceProvenances (lieu de croissance du bois)Traitements de préservationMarque et certification produit
Charpente bois lamellé-colléÉpicéa communAuvergne-Rhône-AlpesTraitement Classe 2 (trempage)
Charpente bois lamellé-colléDouglasAuvergne-Rhône-AlpesTraitement Classe 2 (trempage)

Revêtement bois extérieur

Revêtement bois ou dérivés :

ProduitEssenceProvenances (lieu de croissance du bois)Marque et certification produitFinitionTraitements de préservation
Lame bois massifDouglasAuvergne-Rhône-AlpesTropicalHuileTraitement Classe 2 (trempage)

Menuiserie intérieure et extérieure

Menuiserie extérieure :

ProduitEssenceProvenances (lieu de croissance du bois)Marque et certification produitFinition
Menuiserie boisMélèzeAuvergne-Rhône-AlpesTropicalHuile

Isolation des murs

Isolation intérieure des murs :

Produit
Fibre de bois (Panneaux)
Epaisseur (mm) Isolation intérieure des murs : 160

Isolation entre-montant des murs :

Produit
Fibre de bois (Panneaux)
Epaisseur (mm) Isolation entre-montant des murs : 145

Isolation de la toiture

Epaisseur (mm) Isolation extérieure de la toiture : 220

Approche environnementale : Utilisation d'un maximum de bois dans la construction: - pour la structure et le clos couvert (bureaux et entrepôt), y compris les planchers - sol R+1 : parquet contre collé chêne français - doublages intérieurs: panneaux en hêtre - isolation en laine de bois Espaces de stationnements perméables Récupération des eaux pluviales pour arrosage extérieur Production photovoltaïque en auto consommation

Descriptif technique : Chauffage et rafraichissement: PAC Air / Eau VMC double flux Production photovoltaïque en auto-consommation (40%) Ventilation naturelle possible avec la mise en place d'ouvrant sen soufflet sur chaque menuiseries extérieure. Brise soleil sur l'ensemble des Mext pour le contrôle d'apport de lumière naturelle suivant l'exposition Parking extérieurs en Evergreen pour la perméabilité à l'eau Récupération des eaux pluviales pour l'arrosage des espaces verts

Performance du bâtiment (Cep en kWhep/m²/an) : 80.2
Chauffage au Bois : non
Données déclaratives

Acteurs du projet

Maître d'ouvrage (1)

Maître d'ouvrage - Industriels - commerçants - entreprise

PICTURE ORGANIC CLOTHING (63)

Etudes et ingénieries (7)

Maître d'œuvre - Architecte mandataire

ATELIER D'ARCHITECTURE CASA (63)

Bureau d'études structure bois

CS2L INGENIERIE (63)

Bureau d'études thermique

ATELIER D'INGENIERIE CASA (63)

Economiste

ATELIER D'ARCHITECTURE CASA (63)

Autre intervenant de la construction - bureau de contrôle, AMO, BIM...

SECOBA - ALTAÏS INGENIERIE (63)
CABINET BISIO ET ASSOCIES (63)
APAVE SUDEUROPE SAS (74) *

Entreprises des lots bois (3)

Charpentier

BERNARD SUCHEYRE (63)

Menuisier

MENUISERIE CHARPENTE MEUNIER-MARNAT (42)

Autre lot de la construction (en lien avec le bois)

FACADE ET COUVERTURE INDUSTRIELLE (63)

Fournisseurs du bois (4)

Scierie

COSYLVA (23)
SCIERIE DES COMBRAILLES (63)
Bois et Sciages de Sougy (58)
SCIERIE FILAIRE (43)




* : L'entreprise n'est plus active
Retour à la liste